ILC LC
Larissa Costa Silva, 24 anos
ARQUITETURA E URBANISMO
Sou uma arquiteta apaixonada por criar ambientes funcionais, estéticos e sustentáveis. Formei-me em arquitetura e urbanismo pela USCS - Universidade Municipal de São Caetano do Sul em Junho de 2023, onde desenvolvi projetos de diferentes escalas e tipologias, desde residenciais até comerciais e institucionais.
Além disso, tenho um diploma técnico em informática, que me permite usar ferramentas digitais para planejar, desenhar e apresentar as minhas soluções arquitetônicas.
A minha experiência profissional mais recente foi como consultora de vendas na ABC da Construção S.A., uma empresa líder no segmento de revestimentos e acabamentos. Lá, eu fui responsável por projetos de ambientação e paginação, vendas de produtos, relacionamento com os clientes e pós-venda. Graças ao meu trabalho, eu contribuí para o aumento do faturamento, da satisfação e da fidelização dos clientes.
Antes disso, eu trabalhei como auxiliar de arquitetura na F3 Cortes Especiais em Porcelanato, onde coordenei obras, compras de materiais, leituras de projetos e planilhas de faturamento. Também auxiliei na produção, montagem e fiscalização de bancadas de porcelanato, um material que eu domino e que me diferencia no mercado.
As minhas principais competências são a capacidade de organização, a liderança, o atendimento ao cliente e a comunicação. Sou determinada, esforçada, atenciosa e ouvinte. Busco sempre realizar as minhas tarefas com disciplina e qualidade, superando as expectativas. Trabalho bem em equipe ou de forma independente, e sou capaz de lidar com pressão e multitarefas. Estou sempre pronta a aprender, aperfeiçoar e inovar, buscando novos desafios e oportunidades na área de arquitetura.

ILC LC









CRECHECÉUAZUL
O projeto teve como proposta a criação de uma creche para crianças até 4 anos. Situada em São Caetano do Sul. Tem por nome Céu Azul. Na proposta busquei trazer algo mais lúdico e divertido, cores e formas circulares para as janelas e um pátio integrado.
Esse foi meu primeiro projeto feito em modelagem 3D.
Modelagem: 3D SKETCHUP/AUTOCAD



PROJETOGAIA
O projeto Gaia traz a utilização da madeira e do concreto para a implantação completa de uma praça pública, a fim de proporcionar experiências únicas para todos, por meio do contato com a natureza, das intervenções humanas mais sutis e de elementos lúdicos para crianças. A intenção principal do projeto, é demonstrar, a partir do uso intencional da madeira, a união entre construção e natureza, de forma a se conectar o mais naturalmente possível ao espaço. Reforçando ainda mais a questão ecológica, por conta de se tratar de um material orgânico e sustentável, além de garantir a estrutura e estética do projeto. Para a justificativa do uso do concreto, partimos da premissa que o homem é o único animal do mundo que precisa intervir o ambiente que está para sobreviver, que, embora utilize de cálculos matemáticos e conceitos estruturais, mantém a harmonia, permitindo assim a manutenção natural aos olhos do observador. Além de garantir a uniformidade em todo o percurso utilizado, confere também um acabamento mais refinado e receptivo à limitações de mobilidade. Iniciando o percurso pela Rua João Euclides Pereira, o mirante, feito inteiramente de madeira, e coberto, dá a oportunidade de uma permanência maior, concomitantemente com o acesso visual completo ao terreno, levando a vista das praças laterais, que se fundem em pontos de permanência contemplativos.
Modelagem: 3D SKETCHUP/AUTOCAD



HIS-MATARAZZO

Modelagem: 3D SKETCHUP/AUTOCAD




RESIDÊNCIAKARLUC
A residência localizada no bairro Jardim São Caetano na cidade de São Caetano do Sul. Possui um terreno com topografia, assim permitindo a construção de maneira diferente e forma do padrão. A casa é composta por modulos de L, um sobre o outro de maneira contrária, tendo ao meio um vazio para um jardim central. Dando uma vista maravilhosa para aqueles que estão no térreo. Um ambiente totalmente integrado, para maior facilidade de acesso e comunicação entre as pessoas que ali estão. Feita de concreto, com vidraças aparentes para maior iluminação e ventilação no recinto. Logo acima encontramos um lazer, e um grande deck para festas futuras e outras confraternizações. Para maior agrado, as salas de jogos e nossa área gourmet estão integradas a esse deck para maior conforto e locomoção. Estando próxima da brinquedoteca para supervisão das crianças
Modelagem: 3D SKETCHUP/AUTOCAD/V-RAY






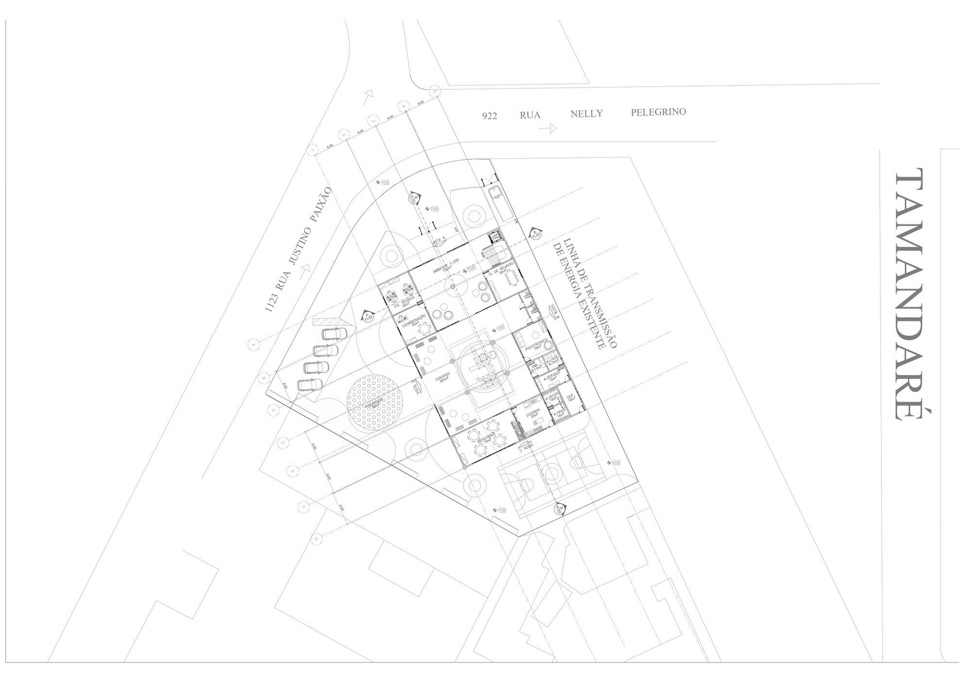
CENTRODEACOLHIMENTO
INSTITUCIONAL
Conceito: O projeto tem como conceito realizar um abrigo que acolha como um lar, que tenha características de uma residência unifamiliar, para que essas crianças realmente se sintam em casa. Trazendo organização no administrativo para que não interfira no cotidiano das crianças e elas não sintam que estão em um abrigo e sim na sua casa.
Conceituando conforto e privacidade a elas.
Partido: O partido arquitetônico i i i d l ã d dormitórios, com a dimensão de 6m essa dimensão. Dessa modulação, lar, contribuindo com a setoriz
Mantendo a privacidade das crianç área de moradia são independentes
Modelagem: 3D SKETCHUP/AUTO





DESENHOURBANO -MATARAZZO
Nosso projeto está localizado no bairro Fundação em São Caetano do Sul, o qual se encontra com uma série de problemas infraestruturais, ja que, grande parte dele, é abandonado. A maior problemática a ser resolvida com este projeto, foi pensar em algo que resolvesse os problemas locais mas que, ao mesmo tempo, trouxesse àquele vasto terreno um atrativo que possa englobar todas as querências locais. Foi pensado, então, um grande parque com vários atrativos localizados nas subglebas que foram designadas à atividades específicas para os frequentadores. Foi feito um enfoque no lazer e bem estar público contendo, ciclovia, grandes áreas verdes, espaços infantis e áreas contemplativas. Fora os atrativos que serão oferecidos à população, como: um museu, um centro cultural, academias, quadras esportivas, espaços para a pratica de dança e pista de skate. Também haverá melhorias na qualidade de vida, ja que o parque possuirá mercados, um prédio residencial, um posto de pronto atendimento, um local focado nas atividades e bem estar dos idosos e uma nova estação de trem. Com a realização desse parque, pretende-se alcançar uma qualidade de vida melhor para a população que mora no município e adjacências. O lugar será mais arborizado fazendo, assim, o calor ser dissipado com mais êxito. Também será aumentada a vazão do rio para que, com isso, as enchentes diminuam exponencialmente. Por fim, com esse parque, queremos encorajar o uso de espaços vazios e abandonados que não são utilizados para nada, para fazer algo que traria benefícios, tais como entretenimento, atividades, lazer e bem estar para as pessoas que precisam usufruir desses momentos.
Modelagem: 3D SKETCHUP/AUTOCAD


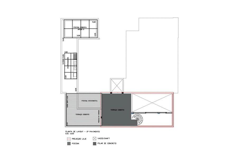
PROJETORESIDENCIAL-REF.
Projeto residencial de reforma para um cliente. A reforma seria apenas no 2 pavimento, adaptando coberturas para as áreas descobertas, adaptação de piscina ou academia ainda a definir com o cliente. Modelagem: 3D SKETCHUP/AUTOCAD/V-RAY








PROJETODEFACHADA
projeto de fachada para um prédio residencial, adaptação de fachada em vidro para um design mais moderno para o residencial.
Modelagem:

3D SKETCHUP/V-RAY


