Undergraduate Portfolio for Graduate Applications Fall '21

Page 1

LAMES AL-KEBSI

Bachelor of Science in Architecture University of Maryland, College Park

Dar Al Hajar | Sana’a, Yemen

COLLEGEPARK,MD,USA MONTREAL,CANADACAMBRIDGE,CANADA

SANA’A,YEMEN JEDDAH,SAUDIARABIA 1 2 3 4 5 7 INTERLOCKING REINVENT THE WHEEL ADAPTING WHAT MAKES A HOME? PROJECT TARMEEM SKETCHES MAIN STREET, ELLICOTT CITY BLAGDEN ALLEY, WASHINGTON D.C. MOUNT VERNON, BALTIMORE MOUNT VERNON, BALTIMORE UNIVERSITY OF MARYLAND 6 RESEARCH MAPPING HERITAGE DESTRUCTION IN YEMEN 01 04 07 09 12 14 16

ADAPTING | CIVIC CENTER

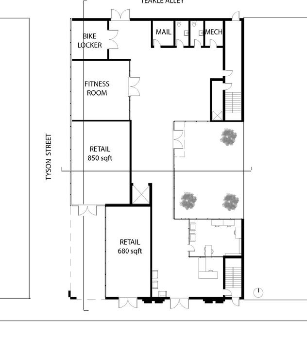
MAIN STREET, ELLICOTT CITY

ARCH403:

Studio IV | Professor Tilghman Individual Work | Fall ‘18 | 6 Weeks

Historic Ellicott City has suffered multiple flash floods over the recent years, causing irreparable damage to many of its 200 year-old buildings. The project recognizes Howard County’s proposal of demolishing 10 vulnerable buildings, subsequently it proposes a 60,000 s.q. ft. biorentention park and civic center situated below ground.

Instead of coming up with design solutions to resist the water, the project Adapting plays with typography to guide the water through the site. The design responds to the direction of flood currents, the site’s typography, and the adjacent urban blocks.

1
GUIDING WATER PROMOTING ACCESSIBILITY 01

UNDERGROUND FLOOR

LOBBY WC WC LIBRARY STUDY OFFICE

1ST FLOOR 2ND FLOOR

LOBBY CLOSET TICKETING
WC
CAFE WC WC
OFFICE
02
KIDS CORNER MAKERSPACE MECH. WC
WC JANITOR
LOUNGE
ELEVATION OF SOON-TO-BE DEMOLISHED WALLS

As a response to the county’s proposal to demolish 10 buildings, this project rehabilitates the buildings’ walls and repurposes them according to the users’ needs. Situated above metal tracks, these walls are intended to create makeshift spaces with a simple push. Furthermore, crevices are made to join the outside world with the heritage inside.

REPURPOSED WALLS 03

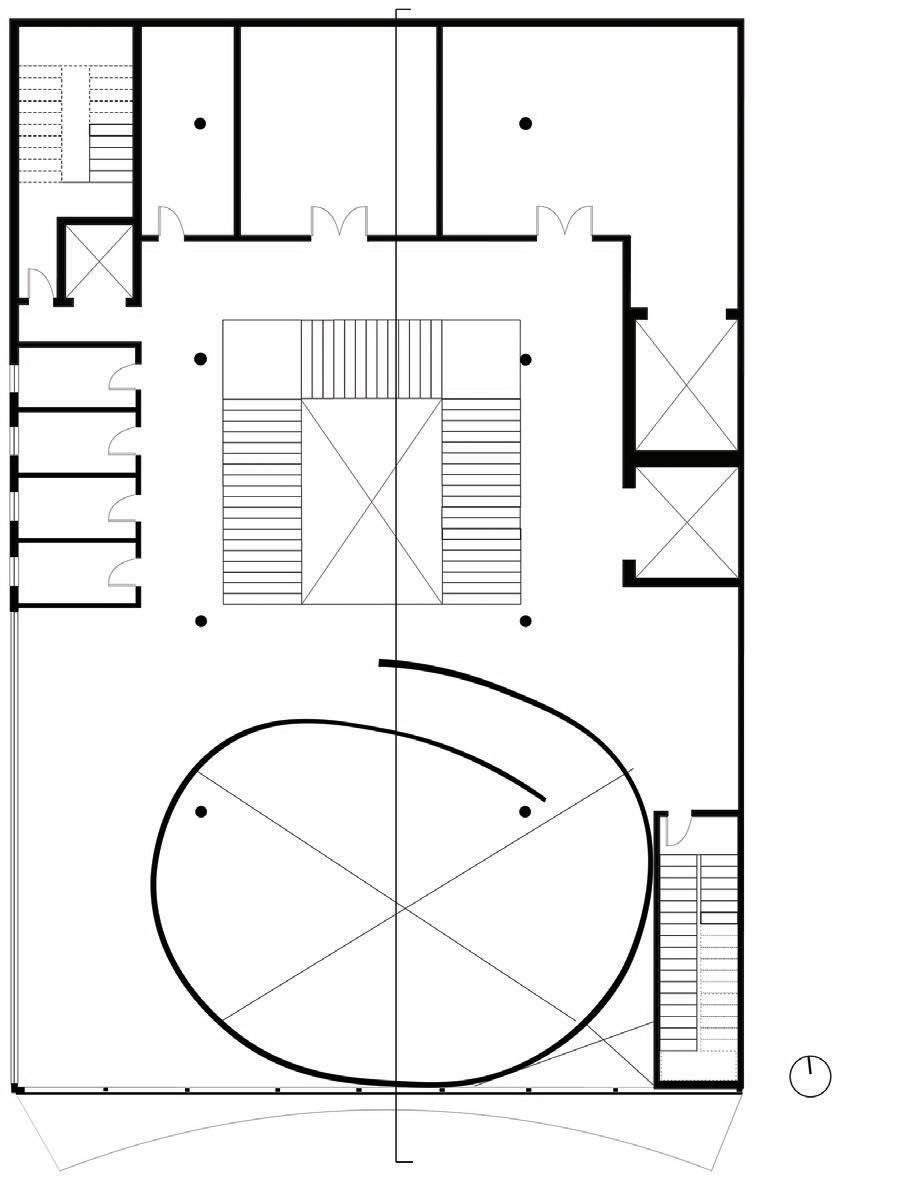
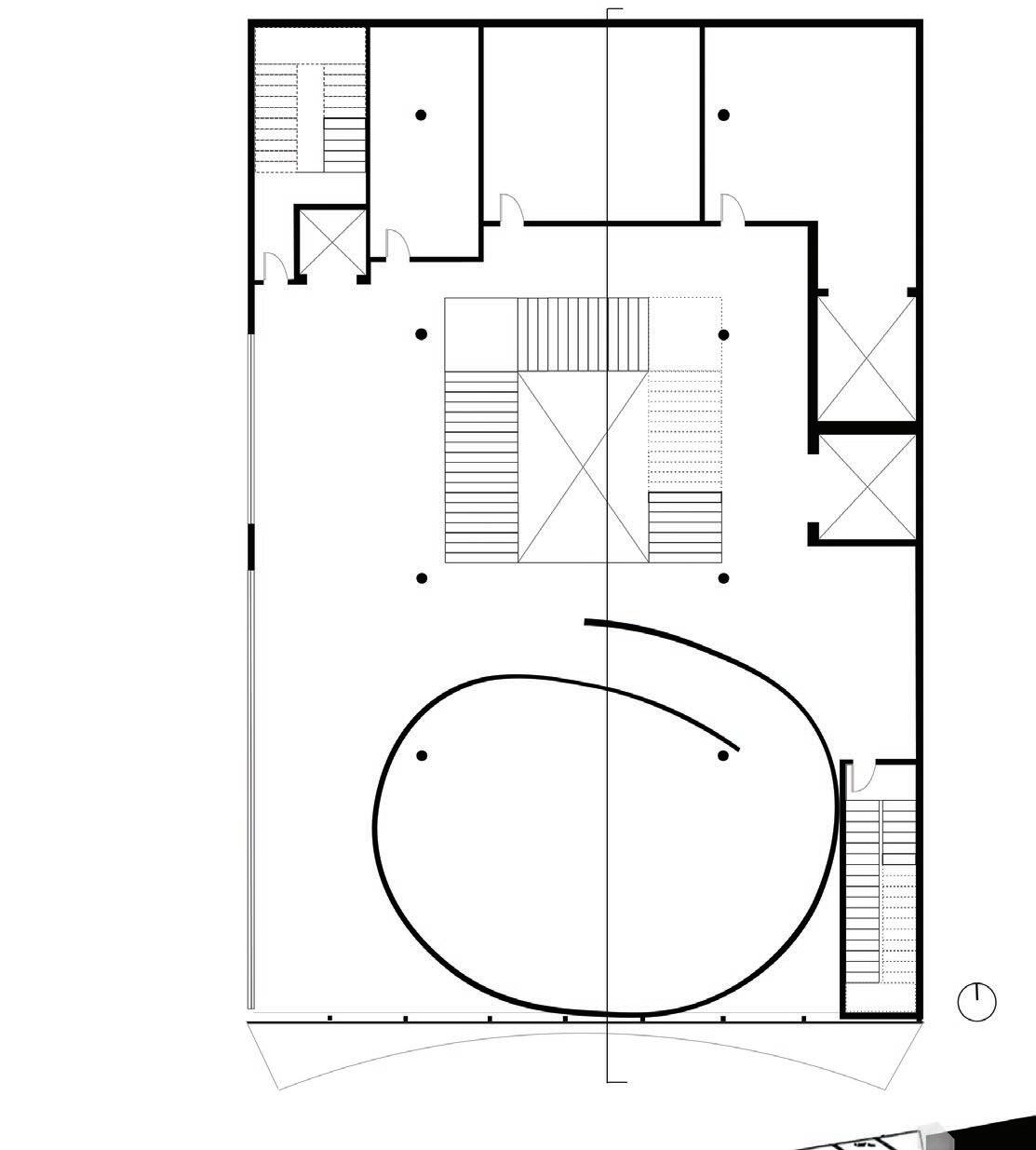
REINVENT THE WHEEL | MUSIC SCHOOL

MOUNT VERNON, BALTIMORE

ARCH402: Studio III | Professor Gabrielli Individual Work | Spring ‘18 | 6 Weeks

In the heart of Baltimore lies Mt. Vernon, a fashionable neighborhood filled with the city’s finest institutions and monuments including The Peabody Institute and Library, The Walters Art Museum and the original Washington Monument. The task at hand was to design a music school and a performance center that serve upcoming artists as well as the local audience.

The project reinvent the wheel is inspired by looking no further than one building for inspiration. In this case, that building is Le Corbusier’s Mill Owners’ Association, assigned by instructor from an earlier precedent study.

2

The Mill Owners’ Association building dabbles with prominent curvilinear spaces as well as the relationship of interior and exterior spaces through its facade. Consequently, it inspired the translucent polycarbonate facade, a modern take to connect the outside with the inside while still retaining some privacy. Additionally, it highlights the most dominant space of the building, the concert hall.

04
Mill
05
STORE CAFETERIA CONCERT HALL BACKSTAGE WC WC STORAGE FACILITY LOADING DECK DRESSING ROOM WC WC 1ST FLOOR 2ND FLOOR
OFFICE CONFERENCE ROOM CONFERENCE ROOM JANITOR CLOSET OFFICE OFFICE CLASSROOM PRACTICE ROOM PRACTICE ROOM PRACTICE ROOM PRACTICE ROOM CLASSROOM CLASSROOM CLASSROOM OFFICE 06 3RD FLOOR 4TH
FLOOR

HOUSING PROJECT

WHAT MAKES A HOME? | HOUSING PROJECT

MOUNT VERNON, BALTIMORE

MOUNT VERNON, BALIMORE

ARCH402: Studio III | Professor Gabrielli

ARCH405; FALL ‘17; 8 WEEKS

Individual Work | Spring ‘18 | 6 Weeks

The goal of this project is to provide a series of apartments to house the neighborhood’s young and diverse population while taking into consideration site obstacles including a joint parti wall and a narrow alley.

In the heart of Baltimore lies the Mt. Vernon, a fashionable neighborhood filled with the city’s finest institutions and monuments including The Peabody Institute and Library, The Walters Art Museum and the original Washington Monument.

3
TRASH COMMUNITY ROOM COURTYRAD 1st Floor 2nd-5th
6th
Floors
Floor
3

diverse population while taking into consideration site obstacles including a joint parti wall and a narrow alley.

The goal of this project is to provide a series of apartments to house the neighborhood’s diverse population while taking into consideration site obstacles including a joint parti wall and a narrow alley.

| Micro Unit | 340 sq. ft.

| 1 Bed 1 Bath | 640 sq. ft.

| 1 Bed 1 Bath | 640 sq. ft.

| 2 Bed 1 Bath | 640 sq. ft.

| 2 Bed 1 Bath | 640 sq. ft.

| 2 Bed 2 Bath | 950 sq. ft.

| 2 Bed 2 Bath | 950 sq. ft.

The building’s program is a result of studying what gives a sense of home and community within a site. The building’s facade also contributes to the infamous redbrick profile of Monument Street. The design oriented towards strengthening the sense of community within and around the site, as well as contribute to the infamous red-brick street facade of West Monument Street.

The design oriented towards strengthening the sense of community within and around the site, as well as contribute to the infamous red-brick street facade of West Monument Street.

07

WHAT MAKES A HOME?

FAMILY
ARRIVAL LOBBY PRIVACY LIVING ROOM
COMMUNITY AREA

WHAT MAKES A COMMUNITY?

PLAZA PLACE MAKING INNER COURTYARD CONNECTING TO THE INSIDE
CONNECTING TO THE OUTSIDE 08
OUTDOOR
ROOFTOP BALCONY

INTERLOCKING | MAKERSPACE & PLAZA

BLAGDEN ALLEY, WASHINGTON D.C.

ARCH401: Studio II | Professor Matthews

Individual Work | Fall ‘17 | 10 Weeks

Just steps away from the Convention Center lies the historic Blagden Alley that dates over two centuries. Today, the alley is home to trendy restaurants and ageing artists at risk of eviction due to high rents. The task was to enhance the placemaking condition of this hidden, sketchy alley by adding a plaza and later a cafe with an art gallery. The addition of a Makerspace is a personal decision to enhance the building’s program, reflecting back on the community’s character.

The design approach taken was to preserve the alley’s authenticity and relation to art, keeping in mind the local community’s interest and the use of local materials. Inspired by the idea of intersecting the built environment with art, the project plays around stacking interlocking layers of materials bound by art.

4
BUILD WITH LOCAL MATERIALS PRESERVE LOCAL ARTWORK CATER TO LOCAL ARTISTS 09

Given the option to choose the plaza’s site within the alley’s four quadrants, the southwest corner was chosen due to it being the quietest and least circulated out of the four corners. Although the site is accessible through 10th street, it is determined that its sketchy entrance with a “CAUTION” sign and an abandoned lot makes it the least approachable and thus the biggest factor to its unpopularity.

“SKETCHY“ ENTARNCES

The plaza’s design is derived by taking a large, unused portion and breaking it into fragments providing areas for social interaction. Local materials rise from the ground to create organic mats, benches, canopies and artboards.

10

The building’s program comes from an individual study of what the alley is lacking. Originally consisting of a sandwich shop and an art gallery, a makerspace is later added, blending both programs and providing a space for artists and residents alike.

The building’s program comes from an individual study of what the alley is lacking. Originally consisting of a sandwich shop and an art gallery, makerspace is later added, blending both programs and providing a space for artists and residents alike.

Keeping the concept of interlocking as both a design factor and a parti, the floors are split into four with a sculptural artwork piercing through the middle.

11
CAFE MAKERSPACE
TICKETING MECH. STORAGE WC STORAGE
ART GALLERY

EXTRACURRICULAR WORK | PROJECT TARMEEM

PROJECT TARMEEM

UNIV. OF MD, COLLEGE PARK Architectural Designer Group Work | Began Spring ‘18 | Completed Fall ‘21

UNIV. OF MD, COLLEGE PARK

EXTRACURRICULAR; PRESENT

Since 2001, the Muslim Student Association has been renting a 2000 sq. ft. room inside the unrenovated side of Cole Field House. Formerly a women’s locker room, there have been rising health issues including pest infestation, environmental issues and overpopulation.

Since 2001, the Muslim Student Association has been renting a 2000 sq. ft. room inside the unrenovated side of Cole Field House. Formerly the women’s locker room, there has been rising health issues including pest infestation, environmental issues and overpopulation.

Project Tarmeem consists of an architecture student, a civil engineering student and an environment science student. The $200,000 approved proposal intends to renovate and expand the space in response to the rising Muslim student population, solve environmental and health issues and provide a space equipped for proper Muslim prayer. All photos and illustrations are my own work.

Inspired by Solar Decathlon, Project Tarmeem intends to renovate the space to respond to the rising Muslim student population, solve environmental and health issues and provide a space equipped for proper Muslim prayer.

BEFORE

BEFORE PROPOSED

AFTER

2
5

The project also aspires to expand the current square footage by acquiring abandoned rooms as well as demolish any unnecessary walls. The project also aspires to expand the current square footage by aquiring abandoned rooms as well as demolishing any unnecessary walls.

12

PROPOSED

OPENING DAY, NOVEMBER 2021

With the Muslim population on campus exponentially rising, there has been a large demand of a fitting venue to host daily prayers and activities. Project Tarmeem aims to demolish tiled, locker-room walls to provide a larger space for the community.

With the Muslim population on campus exponentially rising, there has been a large demand of a fitting venue to host daily prayers and activities. Project Tarmeem aims to demolish tiled, locker room walls to provide a larger space for the community.

BEFORE

Another issue Project Tarmeem is looking into is providing better access to natural light and ventilation. This includes expanding the entrance for better navigation and access to light from the entrance windows.

13

RESEARCH

MAPPING HERITAGE DESTRUCTION IN YEMEN

Independent Research Fall ‘18 - Current www.destofheritageinyemen.com

This research aims to visualize the effects of the war on Yemen’s cultural heritage by using local professionals’ lists of destroyed sites documented from March 2015 to late 2016- giving each confirmed site its deserved place on the map. While most sources online are found in the form of numbered lists, providing the same factual data through mapping and subsequent visual analysis can lead to discussions and conclusions lists cannot achieve.

Heritage is an inexcusable yet expected casualty of war; however, deliberate and systematic erasure can be mistaken for collateral damage. Thus, this project runs the retrieved data through queries generated in GIS, searching for geospatial and temporal factors to reveal visual patterns.

6
14
www.destofheritageinyemen.com 15

SKETCHES

CONTINUOUS LINE DRAWING | 10 MIN. SAINT JOSEPH ORATORY, MONTREAL, QC

3 PERSPECTIVES

ANALYTIQUE | ARCH445 | 45 MIN. NAVY YARDS, WASHINGTON, DC

SKETCH | 15 MIN. NOTRE-DAME BASILICA, MONTREAL, QC

7
Bachelor of Science in Architecture University of Maryland, College Park
16
DIGITAL ART | 120 MIN. DAR AL HAJAR, SANA’A, YEMEN

Turn static files into dynamic content formats.

Create a flipbook
Issuu converts static files into: digital portfolios, online yearbooks, online catalogs, digital photo albums and more. Sign up and create your flipbook.