ENTREGA FINAL

Page 1

EDIFICIO DE OFICINAS

Laura Morales Guzm·n

Proyecto Integral II

Javeriana Cali

EDIFICIO DE OFICINAS

Laura Morales Guzm·n

Proyecto Integral II

Javeriana Cali

01
02
Proyecto Integral Bioclimatico II - Edificio Mixto 01 LOCALIZACI”N 03 IMPLANTACI”N 04 ESTRATEGIAS BIOCLIM£TICAS 05 TECNICA 02 CONTEXTO
04
Calle 5 Autopista Sur Autopis ta Simon B olÌvar AVColombia Autopista Cali-Jumbo VÌa Panamericana AV. CaÒas gordas Cra100 RÌo Cauca RÌoCali Cra 122 RÌoPance AV. 10 de Mayo - Cra 122 IndicedeocupaciÛn 0.6 1584.9 IndicedeconstrucciÛnbase 1.6 4226.4 IndicedecostrucciÛnadicional 2.5 6603.75 IndicecostrucciÛntotal 4.1 10830.15 % M2 05 Proyecto Integral Bioclimatico II - Edificio Mixto 01 LOCALIZACI”N
Lote de IntervenciÛn
Cali, Colombia Comuna 22 Barrio Pance

CONTEXTO

Variables Climaticas Generales

MicrozonificaciÛn clim·tica

Recorrido Solar y Vientos

de Calor

El ·rea de intervenciÛn se encuentra considerado con un microclima de c·lido semih˙medo, lo que implica una humedad relativa alta y la vegetaciÛn es de bosque c·lido h˙medo.

Las corrientes de viento predominan en dos direcciones, siendo el ladosuresteenlamaÒanayelnoroesteenlatarde.Apartirdeestas se plantean aperturas y estrategias para la circulaciÛn de los vientos en el edificio.

Humedad Relativa Precipitaciones

Esta variable podrÌa afectar la sensaciÛn tÈrmica que experimenta el usuario. Haciendo visible la necesidad de buena ventilaciÛn en el edificio.

Por las altas precipitaciones se podrÌan recoger las aguas lluvias, de esta manera se aprovecharÌan los recursos y se ahorrarÌa en agua.

Por su localizaciÛn en un ·rea con mucha vegetaciÛn y cerca de la montaÒa no cuenta con altas temperaturas, siendo m·s manejable para el desarrollo de las metas del edificio.

Isoyetas de Precipitaciones y Temperatura

A medida que se aproxima a los farallos las precipitaciones aumentan y la temperatura se ve disminuida.

N N 06 02
Islas Tomado de: ClasificaciÛn climatica Caldas - Lang Tomado de: Luis, Cuadros (2023) Tomado de: Propuesta para el tratamiento de islas de calor - CIAT, Dagma y CVC Tomado de: BoletÌn Calidad del aire y Ruido ambiental de Santiago-Mayo 2019-IDEAMTomado de: BoletÌn Calidad del aire y Ruido ambiental de Santiago-Mayo 2019-IDEAMTomado de: estudio para la microzonificacion climatica para el municipio de Santiago de Cali

Adem·s, se encuentra aislado por las zonas de vegetaciÛn, lo cual lo convierte en un espacio ideal para ubicar oficinas. Para esta actividad ya hay algunas edificaciones cercanas.

Universidad Javeriana
Parq. Universidad Javeriana Proyecto Centro Comercial Pance 122 CaÒaveral Pance Palo Alto Centro Empresarial
Alto Pance Plaza 01251020
AV. 10 de Mayo - Cra 122 07 Proyecto Integral Bioclimatico II - Edificio Mixto
Vivienda
Comercio EducaciÛn Oficinas Uso Mixto (oficinas y comercio)
Planta de Cubierta ESC. 2000
Actividad de la Zona En general el contexto inmediato del lote se encuentra predominada por viviendas unifamiliares. Sobre la avenida hay varios espacios comerciales que van con la actividad de la edificaciÛn.

Aprovechando el desnivel de que presenta el terreno se establecen los accesos partiendo del requerimiento de parqueaderos del edificio.

Teniendo en cuenta la normativa se desarrolla en altura un bloque, este se abre en la ˙ltima planta al lado oeste con la intenciÛn de priorizar la visual a los farallones

Planteamiento de tipologÌa torre plataforma tomando en cuenta las variables iniciales. Orientando los lados m·s largos a Norte y sur.

UbicaciÛn perpendicular a los laterales cambiando la manera en la que los vientos pegan sobre las fachadas.

UbicaciÛn de los espacios requeridos en el programa seg˙n su car·cter o escala de privacidad.

Desarrollo de jerarquÌas en circulaciones y accesos.

Con fines de funcionamiento realizan adiciones y sustracciones de ·reas, teniendo en cuenta la lectura el edificio y su estÈtica.

Acceso Peatonal Acceso Vehicular Calzada Anden Antejardin Gastrobar Oficinas Restaurantes Comercio/ Accseo 1-2 Pisos 3m 4-8 Pisos 4m 9-11 Pisos 7m 11-12 Pisos 10m Calzada Separador -1.15 m Parq. en primera planta que sigue la inclinaciÛn del terreno N N 08 03 IMPLANTACI”N Punto de Partida Operaciones de implantaciÛn TopografÌa Normativa Uso 01 - Primera aproximaciÛn 02 - Emplazamiento por Variables Climaticas 03 - UbicaciÛn de accesos y circulaciÛn04 - Gestos por las actividades
7
09 Proyecto Integral Bioclimatico II - Edificio Mixto
VolumetrÌa Suroeste Noroeste
NoresteSureste
03 - ImplantaciÛn 10
F2 CT1 F3 CT1 CL1 F1 CL1 F4 9 GASTROBAR £rea de mesas Cocina Bar BaÒos 4 PLANTA TIPO 2 7 Oficinas BaÒos Hombres BaÒo PMR 1 COMERCIO Locales Ancla Lobby Oficinas 21 Parq. Carros S1 PARQUEADERO 33 Carros 56 Bicicletas UAR PUNTO FIJO Escaleras Ascensor BuitrÛn 2 RESTAURANTES 2 Cocinas + Barra BaÒos Terraza 3 PLANTA TIPO 1 6 Oficinas Sala de Juntas BaÒos Mujeres BaÒo PMR 01251020 Planta 2 - Comercio-Espacio P˙blico ESC. 1:400 Programa 11 Proyecto Integral Bioclimatico II - Edificio Mixto

Velocidad del viento- Cali / Alfonso Bonill, Valle, COL

ESTRATEGIAS BIOCLIMATICAS

Brechas de Confort

Temperatura - Cali / Alfonso Bonill, Valle, COL

Temperatura

m·s alta

Rango

Temperatura m·s baja

Zona de confort

IluminaciÛn - Cali / Alfonso Bonill, Valle, COL

Gr·fica tomada de Climate Consultant

La temperatura promedio en Cali es de 24 C y el rango de confort oscila entre los 20 C y 24 C, esto garantiza que durante la mayorÌa de los meses del aÒo, las personas se encuentran en confort tÈrmico.

Humedad relativa y bulbo seco - Cali / Alfonso Bonill, Valle, COL

Humedad

Bulbo seco

Zona de confort

Carta PsicometrÌca

Aunque la humedad relativa permanece en 20% y 40% y el bulbo seco presenta variaciones de manera progresiva a medida que avanzan el aÒo, el rango de ìconfortî se establece por debajo de 30% en relaciÛn a la temperatura de 24 C Si aumentan estas variables la sensaciÛn tÈrmica podrÌa generar molestia en el usuario.

Mientras que los vientos de la maÒana provienen en su mayorÌa del suroeste, con una velocidad promedio de 1.08; los vientos de la tarde del noreste, aunque tienen menor velocidad. A lo largo del dÌa el rango de velocidad se encuentra entre 0.36 m/s y 1.44m/s, tomando como factor de confort 0.72 m/s.

Seg˙n la tabla, se establece el rango de confort lumÌnico en pasillos y baÒos, entre 100 y 150 luxes; mientras que en oficinas se necesitan mÌnimo 500 luxes; esto se logra por medio del cerramiento y los materiales que permiten la difusiÛn de la luz.

A partir de la gr·fica podemos determinar las estrategias para mantener el confort al interior de los espacios con una temperatura de 24 C y una humedad relativa no mayor al 70%.

-ProtecciÛn de las ventanas - DeshumidificaciÛn -VentilaciÛn Natural

Gr·fica tomada de ResoluciÛn 180540 del 2010 - Anexo General del Reglamento TÈcnico de IluminaciÛn y Alumbrado P˙blico Gr·ficas tomadas de Tesis Luis cuadros (2023) Gr·fica tomada de Climate Consultant
12 04
Gr·fica tomada de Climate Consultant
CT1 CT1 012510 012510
CT1
13 Proyecto Integral Bioclimatico II - Edificio Mixto
CL1 CL1
CL1 CL1
CT1
Planta 3 - Oficinas Tipo 1 ESC. 1:200 Planta 4 - Oficinas Tipo 2 ESC. 1:200

Asoleamiento EsteSur

NorteOeste

Teniendo encuentra las horas crÌticas se proyecta sobre las planimetrÌas los resultados arrojados por el an·lisis de incidencia y radiaciÛn. Para este ejercicio se tomar· en cuenta solo el ·rea de oficinas debido a su car·cter de permanencia.

Teniendo en cuenta el an·lisis de radiaciÛn se plantean 2 elementos ( cortasoles y materas ) que permitan el desarrollo de las actividades a lo largo de todo el aÒo, partiendo de un horario laboral entre las 7:00-18:00.

FACHADAMESESHORAS

NorteJunio12:00-13:00

OesteTodo el aÒo14:00-16:00

SurNov/Dic/Ene12:00-14:00

EsteTodo el aÒo8:00-10:00

Meses: Junio

Horas: 11 a.m - 14 p.m

Altitud: 64 -50

Azimuth: 150 -230

Corte

El punto cumbre de la entrada de sol para esta fachada son las 12 del dia pero solo tiene radiaciÛn de 300 W/m2. Entendiendo que la oficina 1 no cuenta con el elemento de protecciÛn adicional se puede ver como una mayor entrada de iluminaciÛn natural.

Oficinas Norte

Oficinas Sur Corte

Meses: Nov/Dic/Ene

Horas: 10 a.m - 13 p.m

Altitud: 70 -60

Azimuth: 50 -320

El punto cumbre de la entrada de sol para esta fachada son las 13:00 llegando a una radiaciÛn de 400 W/m2. Antes y despuÈs de esta hora se mantiene en 300 W/m2 entre 11:00 y 14:00

400 500400 14 16 18 17 M/06 M/06 100 200 300 400 500 400 300 200 100 16 11 11 M/06 M/06 300 400 500 400 18 15 12 18 M/06 M/06 400 300 200 14 10 17 18 M/06 M/06
3 4 5 4.50 7.00 9.8504 ARQ. P3 13.7005 ARQ. P4
3 4 5 4.50 7.00 9.8504 ARQ. P3 13.7005 ARQ. P4 500 400 300 RadiaciÛn 500 400 300 RadiaciÛn 04 - Estrategias Bioclimaticas 14

La ubicaciÛn en direcciÛn norte y sur de las oficinas fue pensada para tener las mejores de condiciones de ìconfortî, mientras que las circulaciones se abren al este y oeste por las visuales y mÈtodo de aislamiento

IluminaciÛn Natural

El uso de ventanas de piso a techo permite la entrada de una cantidad considerable de iluminaciÛn natural a pesar de los elementos de protecciÛn. Reduciendo el uso de iluminaciÛn artificial requerida seg˙n las brechas de ìconfortî y de esta manera ahorra energÌa.

Board

Terminado: Liso

Color: Blanco

* Recubrimiento de los pasillos para permitir el rebote de la luz a lo largo del pasillo

Planta

SimulaciÛn en Andrew March - interior de las Oficinas

Las oficinas, que requieren de m·s iluminaciÛn se ubican en los bordes de la planta dejando en el espacio central la circulaciÛn generando una doble crujÌa. Debido a que es un ·rea com˙n se plantean materiales claros y lisos para asegurar la iluminaciÛn por toda ·rea.

Ofina 5-6Ofina 7 -S.JOfina 4-3-2

ABAJO B C D E 3 4 5 1 1 10.50 5.80 8.00 4.50 7.00 35.04 OFICINA 34.77m OFICINA 3 33.12 OFICINA 2 49.66m OFICINA 41.10m OFICINA 5 41.18m OFICINA 6 16.28m SALA B C D E 5 ABAJO B C D E 3 4 5 1 1 10.50 5.80 8.00 4.50 7.00 35.04m OFICINA 34.77m OFICINA 3 33.12 OFICINA 2 49.66m OFICINA 41.10m OFICINA 5 41.18m OFICINA 6 16.28m SALA 500 400 300 RadiaciÛn 500 400 300 RadiaciÛn
3 5 4.50
15 Proyecto Integral Bioclimatico II - Edificio Mixto Planta

VentilaciÛn

Estrategia de ventilaciÛn en oficinas

Para la entrada de los vientos y se genera la renovaciÛn de aire se implementan 2 estrategias.

Renovaciones de aire

Ambas fachadas se realizan para asegurar la circulaciÛn de aire, tanto en la tarde como en la maÒana.

1. EleveciÛn de las materas

2. Usos de ventanas proyectantes +

CortePlanta

Tarde

CortePlanta

Velocidad promedio del viento: 0.9 m/s

Edificiencia: 51%

Volumen del piso tipo: 1597.75 m

£rea de ingreso de aire: 32.6 m

N˙mero de renovaciones

0.9 x 32.6 x 51 x 3600 =33 1597.75 m

3 4 5 4.50 7.00 9.8504 ARQ. P3 13.7005 ARQ. P4 3 4 5 4.50 7.00 9.8504 ARQ. P3 13.7005 ARQ. P4 MaÒana 1 2 1 2                                                                  
16 04 - Estrategias Bioclimaticas
CT1-Corte Trasversal ESC. 1:400 uso de rejillas en la parte inferior de la ventana *CirculaciÛn del viento en la parte superior *CirculaciÛn del viento en la parte superior

El edificio podrÌa generar un alto impacto por la poca velocidad y cantidad de vientos que circulan sobre su contexto, debido a que es una zona en su mayorÌa de edificaciones de poca altura.

Dimensiones

2.2A= 33mts

9.2A= 138mts

3.2A= 48mts

Actualmente la zona esta predominada por lotes con bajo Ìndice de ocupaciÛn separando los vecinos a una distancia considerable por lo que afecta poco la sombra de viento que genera.

Si se desarrollan edificios m·s cercanos se podrÌan ver afectados.

01251020 01251020 En Contexto 3.2A 2.2A 9.2A 17 Proyecto Integral Bioclimatico II - Edificio Mixto
Sombra de Vientos
CL1-Corte Longitudinal ESC. 1:400

Incidencia sobre Fachada

En la simulaciÛn se puede observar como las fachadas se encuentran totalmente expuestas a la radiaciÛn, siendo la este y la oeste m·s afectadas por la trayectoria del sol. De igual manera se observa que la fachada sur si tiene m·s afectaciÛn que la norte, aunque esta cuenta con un volumen (Escalera de emergencia) que la protege un poco m·s.

Carpinteria y Materialidad

Fachada Conformanda por 2 pieles, la de protecciÛn y la de cerramiento

04 - Estrategias Bioclimaticas 01251020 01251020 18
F3-Fachada Este ESC. 1:400 F1-Fachada Sur ESC. 1:400

Entendiendo la modulaciÛn de las oficinas se plantea la divisiÛn de la ventanearÌa a cada 1.2m y a su vez esta se encuentra fraccionada en 4 partes, 2 de rejilla y dos de ventanearÌa. Las dos rejillas permiten entrar y sacar la ventilaciÛn y la ventana proyectante aumenta la entrada de ventilaciÛn (acciÛn manual que se puede hacer seg˙n lo considere el usuario).

MaterialidadUso Caracteristicas"Confort" VidrioVentaneriaConductividad terminca baja Cerramiento trasparente Aluminio Perfilesy rejilla Conductividad termica alta Absorbe mucha energia peroescapazde librerarla rapidamente.

Concreto+ Acabadopintura

F4-Fachada Norte ESC. 1:400

Murosy materas Resistencia y durabilidad Conayuda de la pintura se pretende bajar el impartode la radiaciÛn sobre el

Tierra+VegetaciÛnMateras Baja carga termica Aislante natural Equitone (panelesde 8*2500*1220mm)

Celosia y fachada puntofijo

Resistente a calor y la lluvia. Aislante y duraderopara protecciÛnde pielde cerramiento

01251020 01251020 Rejilla + celosia Ventana Fija + celosia Ventana Proyectante Rejilla + Matera elevada 0.6m 1.2m1.2m1.2m1.2m1.2m1.2m1.2m1.2m1.2m1.2m1.2m1.2m 1m 1m 0.8m 0.08m 0.08 0.45m
19 Proyecto Integral Bioclimatico II - Edificio Mixto De Cerramiento De protecciÛn

VegetaciÛn

Se plantean 4 variaciones de vegetaciÛn cada una relacionado con el uso o ·rea del progrma en el que se encuetra.

Oficinas

Especie Sansevieria ChefleraUva Rusa Uso PurificiaciÛn del aireContemplaciÛn PurificiaciÛn del aire y protecciÛn solar

Terrazas

Especie PalmaReal Monstera UvaRusaCurculigoBatatitaVerde UsoContemplaciÛnContemplaciÛn PurificiaciÛndelairey contemplaciÛn ComteplaciÛnContemplaciÛn

Espacio P˙blico

Especie

PalmaReal Monstera MarfafaCurculigoRomero UsoContemplaciÛnContemplaciÛnContemplaciÛnComteplaciÛnContemplaciÛn

Antejardin

Especie

Chiminando Carbonero CintaMonsteraHelechocosteÒo UsoProtecciÛnsolarProtecciÛnsolarContemplaciÛnComteplaciÛnContemplaciÛn

20 04 - Estrategias Bioclimaticas

Planta P˙blica - Antejardin

Incidencia sobre superficie de parqueadero y antejardin

IntervenciÛn Planta P˙blica

A partir de esta simulaciÛn, se toma la decisiÛn de plantear un ·rea en el antejardÌn que permita reducir la isla de calor por medio de vegetaciÛn. Adem·s, se plantea el parqueadero en superficie semiblanda, la cual se integra a la modulaciÛn de los otros pisos (acceso y anden)

Materialidad

MaterialidadUso Caracteristicas"Confort" Adoquin vehicularPiso parqueadero Semipermeable y duradero Reducir el impacto de isla de calor sobre el ·rea decubierta.

Adoquin en concreto Piso accesos y anden Resistente y de flexible diseÒo Ambos formatos ayudan a consolidar el espacio publico integrando el anden, antejardin y proyecto. Ademas de ser ideal para espacios abiertos por su durablidad.

Zona verdeAntejardin PermeableCon la vegetaciÛn ayuda a mejorar la sensaciÛn termica en las ·reas descubiertas.

Pierdra caliza (lamina Muros lateralesConductividad termica alta Material para los muros descubiertos de la planta p˙blica, baja emiciÛn del calor recibido.

21 Proyecto Integral Bioclimatico II - Edificio Mixto
22 04 - Estrategias Bioclimaticas
Planta 9 - Gastrobar
01251020 012510 CL1 CL1 CT1 CT1 CT1 CT1 CL1 CL1 F1 F2 F3 F4 23 Proyecto Integral Bioclimatico II - Edificio Mixto
Planta 2 - Restaurantes ESC. 1:400

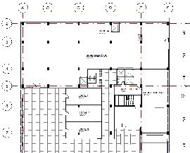
Planta Tipo - Estructural Esc. 1:200

TECNICA

Sistema Estructural

Red Hidrosanitaria

Red contra incendios

RecolecciÛn aguas lluvias

Desfogue planta elÈctrica

Buitron Electrica

Sistema aporticado

Debido a la variedad del programa fue necesario un sistema flexible que permitiera desarrollar el diseÒo de cada uno de los pisos de manera independiente

ïSe hace el uso de estructura liviana para la separaciÛn entre los espacios.

Concreto Estructural

Max. 8.3 mts

012510

0.65mts

3.75 mts

3.1 mts

CL1 CL1 CT1
24 05
CT1
01251020 CT1 CT1 CL1 CL1 01251020 CT1 CT1 CL1 CL1 25 Proyecto Integral Bioclimatico II - Edificio Mixto
Planta S2 - Parqueadero Sotano 2 ESC. 1:400
UAR
Planta S1 - Parqueadero Sotano 1 ESC. 1:400
Cuarto de Bombas + Tanques SubestaciÛn Electrica

Cuadro de £reas

EDIFICIO DE OFICINAS CARRERA 122#16A - 61/95 CASA 90

05 - Tecnica 26
AREA NETA LOTE 2,641.50 m % PERMITIDO m PLANTEADO m INDICE DE OCUPACION 0.601,584.90 1,245 INDICE CONSTRUCCION BASE 1.604,226.40 INDICE CONSTRUCCION ADICIONAL 2.506,603.75 8,705 INDICE CONSTRUCCION TOTAL 4.1010,830.15 8,705 m 120 m 346 m 190 m 130 m 400 m 650 m 248 m 124 m 2,207 m 2,090 m 54.90 2,030 m 130.00 1,100 m 466.00 400 m 1,050.00 400 m 250 400 m 244 400 m 250 400 m 244 400 m 250 400 m 244 285 m 371 8,305 m 3,554 VALOR X m LOCALES COMERCIALES PISO 1 15,000,000 AREA COMERCIAL SUPERMERCADO 7,000,000 AREA BODEGA SUPERMERCADO 5,000,000 SOTANO 2 ZONA DESCARGA SUPERMERCADO 4,000,000 RESTAURANTES AREA CUBIERTA PISO 2 8,000,000 RESTAURANTES TERRAZA DESCUBIERTA PISO 2 6,000,000 GASTROBAR PISO 10 8,000,000 TERRAZA DESCUBIERTA GASTROBAR PISO 10 6,000,000 $ 124 m m m m SOTANO 1 AREA VENDIBLE M2 TOTAL PISO 5 PISO 6 PISO 7 m m VALOR TOTAL VALOR VENTAS AREA COMERCIAL m m PISO 3 PISO 4 COMERCIAL AREA CUBIERTA CONSTRUIDA TOTAL m % AREA CUBIERTA CONSTRUIDA AREA BODEGA SUPERMERCADO LOCALES COMERCIALES PISO 1 GASTROBAR PISO AREA COMERCIAL SUPERMERCADO SOTANO 2 ZONA DESCARGA SUPERMERCADO 15,515,800,000 TOTAL VENTAS AREA COMERCIAL EDIFICIO DE USOS MIXTO CARRERA 122#16A -61/95 CASA 90 31-may-23 742,200,000 PISO 9-GASTROBAR PISO 8 AREA VENDIBLE 0.47 3.30 0.80 M2 SOTANO 2 m PISO 1 PISO 2 RESTAURANTES TERRAZA DESCUBIERTA PISO 2 AREA LOTE URBANIZABLE 3,200,000,000 RESTAURANTES AREA CUBIERTA PISO 2 3,900,000,000 1,981,600,000 TERRAZA DESCUBIERTA GASTROBAR PISO 10 190 248 130 400 650 TOTAL 120 346 m 1,800,000,000 2,422,000,000 950,000,000 520,000,000 m m VALOR X m AREA VENDIBLE OFICINAS VALOR X m AREA CUBIERTA CONSTRUIDA AREAS SOTANOS 1 Y 2 VIAS Y PARQUEADEROS EXTERIORES AREAS EXTERIORES VALOR LOTE AREAS IND AREA CAL REQUERIDOS OFICINAS 2104 M2 VISITANTES 1 estacionamiento por cada 60m2 construido 60 1482.00 25 PROPIETARIOS: 1 estacionamiento por cada 30m2 construidos 30 1482.00 49 MOTOS: 1 estacionamiento por cada 60m2 construido 60 1482.00 25 BICICLETAS: 1 estacionamiento por cada 50m2 construido 50 1482.00 30 COMERCIO 994 M2 CARROS VISITANTES: 1 estacionamiento por cada 40m2 construido 40 994.00 25 MOTOS: 1 estacionamiento por cada 80m2 construido 80 994.00 12 BICICLETAS: 1 estacionamiento por cada 50m2 construido 50 994.00 20 99 37 50 TOTAL BICICLETAS 63 13 101 2 TOTAL CARROS TOTAL MOTOS 44 7 PLANTEADOS DIFERENCIA 14,864,542,000 $ 3,962,250,000 $ 18,852,050,000 $ 3,640,296,000 $ 6,630,022,000 $ 1,213,432,000 $ TOTAL COSTOS CONSTRUCCION + LOTE ( 14% ) UTILIDAD (23%) COSTOS INDIRETOS Y ADMINISTRATIVOS (12%) COSTOS FINANCIEROS (4%) 2,641.5 1,500,000 $ TOTAL COSTO DIRECTO ( 49% ) 4,120 950,000 $ 3,914,000,000 $ 724 450,000 $ 187,500,000 $ VALOR TOTAL 10,462,500,000 $ CALCULO PARQUEADEROS REQUERIDOS BUSINESS CENTER 122 2,500,000 $ 325,800,000 $ TOTAL VENTAS OFICINAS AREA VENDIBLE 1,482 10,000,000.00 $ VALOR TOTAL 14,820,000,000 $ 14,820,000,000 30,335,800,000 VALOR VENTAS OFICINAS VALOR VENTAS PROYECTO VALOR CONSTRUCCION PROYECTO PORCENTAJE VENDIBLE 750 250,000 $ TOTAL COSTO CONSTRUCCION 14,889,800,000 8,305 3,554 43% 14,889,800,000.00 30,335,800,000.00 UTILIDAD BRUTA 15,446,000,000.00 TOTAL VENTAS COMERCIAL Y OFICINAS 4,185 AREA CONSTRUIDA
27 Proyecto Integral Bioclimatico II - Edificio Mixto

EDIFICIO DE OFICINAS

Laura Morales Guzm·n

Proyecto Integral II

Javeriana Cali

Turn static files into dynamic content formats.

Create a flipbook
Issuu converts static files into: digital portfolios, online yearbooks, online catalogs, digital photo albums and more. Sign up and create your flipbook.