4 Robin Lane, Moultonborough

Page 1

4 Robin Lane, Moultonborough Welcome To

The walk-in sandy beach on Lake Winnipesaukee is just a short walk away in this sought-after association known as Balmoral. Start your morning with a cup of coffee on the farmers porch overlooking the gardens on this private, corner lot. The newly manicured, and irrigated landscape has fenced in grounds along the permitter of the lot providing for a large front lawn. The private backyard entertaining space is complete with a hot tub, patio space and firepit with a beautiful privacy fence. This single level 2-bedroom home provides tasteful living and entertaining space throughout. Enter the home to a recently updated and open kitchen to living space tastefully adorned with barn doors and wood accents. The new wood stove will keep the home cozy and warm through the winter months. Enjoy with everyone the large, vaulted family room or take in the more intimate sunroom located at the back of the house. The newly renovated and expanded bathroom is beautifully done with gorgeous tile and stunning light fixtures. Every space of this home is strategically utilized to optimize the room for storage and living inside and out.

4 Robin Lane, Moultonborough

V i e w F r o m A b o v e

The balmoral association offers a beautiful sandy beach, boat launch and club house

E x t e r i o

Landscaped
r
and irrigated large front lawn Fully fenced property Back patio and hot tub perfect for entertaining

K i t c h e n / D i n i n g A r e a

Recently updated kitchen with stainless appliances High ceilings with great wood beams Large open family and dining room New Carpet Large pantry closet
L i v i n g R o o m
F a m i l y R o o m

B e d r o o m s

Mini in each bedroom patio
splits for heat and cooling
Sunroom opens to the back yard and
O f fi c e
Compass s a l censed real estate broker n Massachusetts and Compass Rea Estate s a l censed real estate brokerage firm n New Hampshire Maine and Vermont and each abides by Equal Hous ng Opportunity laws All mater a presented herein is intended for informational purposes only nformation is comp led from sources deemed reliable but is subject to errors omissions changes in price cond t on sa e or withdrawal without not ce Photos may be v rtua ly staged or digita ly enhanced and may not reflect actual property cond t ons Cassie Stokes Realtor® M: 603.851.8901 cassie@lakeliferealtynet L a k e L i f e R e a l t y 8 7 W h i t t i e r H w y M o u l t o n b o r o u g h , N H 0 3 2 5 4 6 0 34 0 35 9 4 4

IncompliancewiththerequirementsofRSA477:4-f,thefollowinginformationisprovidedtoBUYERrelativetothepurchaseof acondominiumunit.

RIGHTTOINFORMATION:InaccordancewithRSA356-B:58,apartyinterestedinpurchasinga condominiumunithastherighttoobtainfromtheCondominiumUnitOwner'sAssociationthefollowing information:acopyofthecondominiumdeclaration,by-laws,anyformalrulesoftheassociation,astatementof monthlyandannualfeesandanyspecialassessmentsmadewithinthelast3years.

1. SellerandPropertyAddress: 2. AssociationName(ifapplicable):

3. PropertyManager/Agent: Phone:

4. GENERAL AND LEGAL

a. ArethereanyAssociationorCorporationapprovalsrequiredfortransferofOwnership? Yes No Unknown

b. IsthereatimeshareoperationexistingatProperty?

Yes No Unknown

c. IsthereavacationrentaloperationorotherorganizedrentalprogramatProperty? Yes No Unknown

d. Areyouawareofanyrental,useoragerestrictions?

e. Numberofallocatedparkingspacesavailableforthisunit:

f. Areyouawareofanypendingorexistinglitigation? Yes NoIfYes,pleaseexplain:

g. AretheminutesoftheCondominiumAssociationannualmeetingavailable?

Yes No Unknown

Yes No Unknown

h. Arethereanypetpolicies?Restrictions: Yes NoDogs/CatsAllowed: Yes No

5.MASTERINSURANCEPOLICY

a.NameofCompany: b.NameofAgent: Phone:

6.FINANCIAL

a. Monthlymaintenancefee(s):$

b. Whatdothemonthlyfeesinclude? AirConditioning HotWater RoadMaintenance CableTVSignal Landscaping Sewer Electricity LotRent SnowRemoval RealPropertyTax Recreation/CommunityAssociationDues Water Other:

c. Arethereanyadditionalfees?Ifso,pleasespecify:

d. Areyouawareofanyspecialassessmentsorloansineffectatthistime? Yes No IfYes,explain: AdditionalComments:

PROPERTYDISCLOSURERIDER CONDOMINIUM,CO-OP,PUDANDOTHERHOMEOWNERORGANIZATIONS (TobeusedinconjunctionwithPropertyDisclosure-Residential) NewHampshireAssociationofREALTORS® StandardForm
Garage/Parking
TrashRemoval Gas
7. ACKNOWLEDGEMENTS: SELLERACKNOWLEDGESTHATHE/SHEHASPROVIDEDTHEABOVEINFORMATIONANDTHATSUCHINFORMATION ISACCURATE,TRUEANDCOMPLETETOTHEBESTOFHIS/HERKNOWLEDGE. SELLERAUTHORIZESTHELISTING BROKERTODISCLOSETHEINFORMATIONCONTAINEDHEREINTOOTHERBROKERSANDPROSPECTIVE PURCHASERS. SELLER DATE SELLER DATE BUYERACKNOWLEDGESRECEIPTOFTHISPROPERTYDISCLOSURERIDERANDHEREBYUNDERSTANDSTHE PRECEDINGINFORMATIONWASPROVIDEDBYSELLERANDISNOTGUARANTEEDBYBROKER/AGENT. THIS DISCLOSURESTATEMENTISNOTAREPRESENTATION,WARRANTYORGUARANTYASTOTHECONDITIONOFTHE PROPERTYBYEITHERSELLERORBROKER. BUYERISENCOURAGEDTOUNDERTAKEHIS/HEROWNINSPECTIONS ANDINVESTIGATIONSVIALEGALCOUNSEL,HOME,STRUCTURALANDOTHERADVISORS. BUYER DATE BUYER DATE © 2011 NEW HAMPSHIRE ASSOCIATION OF REALTORS®, INC. ALL RIGHTS RESERVED FOR USE BY NHAR REALTOR® MEMBERS ONLY. ALL OTHER USE PROHIBITED 07.2021 Kaitlin Carroll 4 Robin Lane Moultonborough NH 03254 Balmoral Improvement Association 4+ 250 Annual $650 one time buy in fee due at closing dotloop verified 06/14/22 4:57 PM EDT NR4G-XWIL-SRYP-X1XS dotloop signature verification: dtlp.us/OvUA-vDkg-LyQz

TownofMoultonborough POBox152 6HollandStreet Moultonborough,NH03254

CARROLLKAITLIN POBOX982

MOULTONBOROUGH,NH03254

County:$0.50 $0.99 $1.16 $0.84

CARROLLKAITLIN 77,800

TaxableLand: Buildings: Total:

8%APRChargedAfter07/01/2022 224,300

Invoice: BillingDate: PaymentDueDate: 2022P01016403 07/01/2022 05/23/2022

2022MOULTONBOROUGHPROPERTYTAX--BILL1OF2 $783.00AmountDue:

MapLotLCutUnitUCut:000099/136/000/000/000

Location:4ROBINLANEAcres:0.340 $0.00

SummaryOfTaxes

FirstBill: -Abated/Paid: -VeteranCredits: 146,500 $783.00 $0.00

AmountDueBy07/01/2022:

2022MOULTONBOROUGHPROPERTYTAX--BILL1OF2

CARROLLKAITLIN POBOX982 MOULTONBOROUGH,NH03254

RemitTo: MailedTo:

TownofMoultonborough POBox152 6HollandStreet Moultonborough,NH03254

Owner:

CARROLLKAITLIN TownofMoultonborough Monday-Friday 9:00AM-4:00PM (603)476-2347 TaxCollector:AshleyPouliot

Invoice: Location:

4ROBINLANE 2022P01016403

MapLotLCutUnitUCut:000099/136/000/000/000

AmountDueBy07/01/2022:

PayOnlineorObtainOtherTaxInformationgotowww.nhtaxkiosk.com

REMITTEDAMOUNT:

School:
Town:
StateEducation:
TotalTaxRate: TaxRates Assessments
NetValue:
224,300
$783.00 $3.49* *FirstBillTaxRateEquals1/2LastYear'sFinalTaxRate
PropertyDescription
Owner: PropertyOwner
$783.00
RETURNTHISPORTIONWITHPAYMENT
.

MOULTONBOROUGH,NH03254

05/14/20ARPMBLDGPERMITINSP

06/08/19SHVMMEASUR+2VISIT

05/08/19EGPMMEASUR+1VISIT

03/12/19SHVMMEASUR+1VISIT

04/17/18PM12BLDGPERMITINSP 02/23/17JJ12BLDGPERMITINSP

08/11/15JJ00MEASUR+LISTED 08/11/15JJ41HRINGCHANGE

FIREPLACE1STORY 100 75 8827.00 90 BALMORAL-INLAND Road:

BuildingFeatures LandYear 2020 $65,600$120,200$13,000 ParcelTotal:$198,800 2021 $77,800$133,500$13,000 ParcelTotal:$224,300 2022 $77,800$133,500$13,000 ParcelTotal:$224,300

LANDVALUATION LASTREVALUATION:2021 PARCELTOTALTAXABLEVALUE OWNERINFORMATION LISTINGHISTORY EXTRAFEATURESVALUATION SALESHISTORY NOTES PICTURE MUNICIPALSOFTWAREBYAVITAR WATERACCESS;EXTRAFIXT=OUTDRSHOWER;IUK/EA CARROLLKAITLIN POBOX982 Card: MarketValueLngthxWidth RateUnits CondSizeAdjFeatureType Notes
100
1 7,0007,000.00 Year:1994 PATIO-AVG 100
168
Year:2015 SHEDAVG 100
33612x28 5,14117.00 Year:2018 13,000 1of1 NotesTaxValueAdValoremSPIRCondUnits NCAdjLandType BaseRate SiteRoadDWayTopography 1FRESWTRACS 50.340 108ac 100 77,8000N77,80016010010045,004 77,8000.340ac 77,800 PriceGrantorBookPageTypeDate 08/31/202035261014UI38 218,000CARROLLKENNETHA& 09/01/20001878538QI 77,000 MOULTONBOROUGH ASSESSINGOFFICE 05/11/2022Printed: Site:
Driveway:
ParcelID:000099/136/000/000/000 4ROBINLANE MOULTONBOROUGH
Zone:RES/AGRIMinimumAcreage:1.00MinimumFrontage:100 OLDMBLU:082/191/000/000/

Heat:

FFFFSTFLRFIN 11441.001144 7600.0538 1860.2547 1440.1014 2,234 1,243

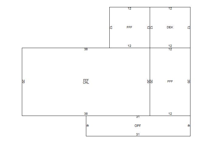
PICTURE PERMITS OWNER TAXABLEDISTRICTS BUILDINGDETAILS BUILDINGSUBAREADETAILS 2021BASEYEARBUILDINGVALUATION 1STORYFRAMERANCH Adj.Effect.AreaIDDescription
CRLCRAWLSPACE
OPFOPENPORCH
DEKDECK/ENTRANCE
A/C: Fixtures:Baths:Bedrooms: Card:1of1 Roof: Ext: Floor: Int: 1.02 No Quality: $123.45 1.1329 $153,448 TotalDepreciation: Temporary: Economic: Functional: Physical: GOODConditionForAge: $133,500 13% 13% 05/11/2022Printed: Com.Wall: 4 GABLEORHIP/ASPHALT WOODSHINGLE DRYWALL CARPET GAS/FANODUCTS BuildingValue: MarketCostNew: CARROLLKAITLIN POBOX982 MOULTONBOROUGH,NH03254 1.1646 4ROBINLANE MOULTONBOROUGH NotesDateProjectType 05/21/21CODEINVESTIGATIOCODEINVESTIGATIONROBINLANE 12/02/14DECK 6X30FARMERSPORCHINPLACE 07/07/06ALTERATION 12X19ADDITION,MUSTCOMPLY SizeAdj: BaseRate: Bldg.Rate: Sq.FootCost: PercentageDistrict RRA106.00 A1AVG+10 Generators: ExtraKitchens: Fireplaces: 1978YearBuilt: Model: ParcelID:000099/136/000/000/000

Turn static files into dynamic content formats.

Create a flipbook
Issuu converts static files into: digital portfolios, online yearbooks, online catalogs, digital photo albums and more. Sign up and create your flipbook.