4 Forest Rim Way Unit B2 Waterville Valley

Page 1

4 Forest Rim Way, Unit B2, Waterville Valley

Welcome To TEAM / AGENT NAME

4 Forest Rim Way

This Waterville Valley condo is a breath of fresh air, from its convenient location to its fully furnished interior. The main level flaunts cozy, rustic vibes without overdoing the “cabin” atmosphere. The stylish woodburning fireplace and kerosene direct vent heater create both a statement and cozy place to gather, while the updated kitchen has newer flooring, granite countertops, and appliances. Throughout the main level, vaulted ceilings and natural light make space for you to live your brightest life. Both bathrooms are fully renovated and adjoin a bedroom, and you’ll find a jetted tub within the upstairs master ensuite: the cherry atop your relaxation in this sought-after ski town. A spacious loft area perfect for overflow completes the second floor. The tiled entryway and storage room are practical features for a home nestled within a ski resort. While this condo is part of a development, you will still find its location quiet and peaceful, minutes from Town Square, skiing, a trail junction for walking, cross-country skiing, or fat biking. Whether you’re scouting for a second home, an investment property, or a new primary dwelling, we’ve got a feeling that this gem in Waterville Valley just might suit you.

to town square & other amenities
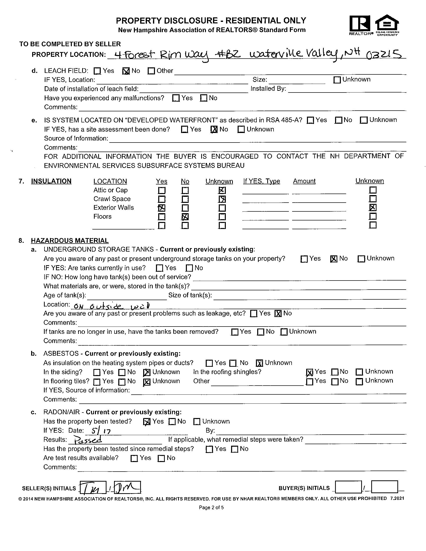
View From Above Close
parking area
of 5 units in the building
View From Above Paved
1

View From Above

Exterior

Easy approach to the entrance

Exterior
Kitchen

Dining Area

Fully furnished interior with high quality furniture Open living / dining / kitchen space

Living Room

Three sources of heat: wood burning fireplace, kerosene rinnai heater, & electric baseboard

Updated kitchen with granite countertops and newer appliances

Natural light throughoutEas

Primary Bedroom
Vaulted ceiling in master en-suite with soaking tub

Guest bedroom with ensuite Spacious closets

Bedroom
Guest

Sitting Room / Loft

Extra sleeping / loft space Skylights throughout

Floor Plans

Floor Plans

Lake Life Realty 87 Whittier HwyMoultonborough, NH 03254 603-403-5944 CASSIE STOKES Realtor® M: 603.851.8901 cassie@clakeliferealty.net Compass is a licensed real estate broker in Massachusetts and Compass Real Estate is a licensed real estate brokerage firm in New Hampshire, Maine, and Vermont and each abides by Equal Housing Opportunity laws. All material presented herein is intended for informational purposes only. Information is compiled from sources deemed reliable but is subject to errors, omissions, changes in price, condition, sale, or withdrawal without notice. Photos may be virtually staged or digitally enhanced and may not reflect actual property conditions.

Exclusion List

Kitchen:

Stones in the glass canisters in the corner; wine rack and wine; cheese cutting board; mug tree

Living Room: Books and book ends atop of the kerosene unit Candles on the speakers; lantern

Downstairs Bedroom: Ducks on bureau; Lower Bobby's and Tippecanoe painted signs

Landing:

Waterville Valley painting facing you as you are going up the stairs

Loft: TV and TV stand

Across from washer and dryer: Fly fishing painting

Two small funky crosses we picked up in our travels, one upstairs,one downstairs

The motorcycle live free or die painting above the hat rack.

Master bedroom:

Comforter, sheets, towels, stuff on the bureau, throw pillow on the leather bench in master bedroom

Take or leave: pots and pans, dinnerware, etc.

BROWN;FORESTRIM;CONDO;INTERIORUNIT.12M&L:ADDEDSHED, ADJ'DSKTCH,COND&STRYHEIGHT.PU16:I@D-REPLACEDFPLN/CIN VAL17SALERVW:ADDEDHRTH.ADJ'DBDRMCT&FIXCT.FLRSALSO HARDWOOD;17SALESINT-ADJ'DFIXTURECOUNTANDFLRCVR=MORE HARDWDPRE-DOMINATETHANHARDTILE.

LANDVALUATION LASTREVALUATION:2022
OWNERINFORMATION LISTINGHISTORY EXTRAFEATURESVALUATION SALESHISTORY NOTES PICTURE MUNICIPALSOFTWAREBYAVITAR
PARCELTOTALTAXABLEVALUE
MCMAHON,TIMOTHY MCMAHON,DENISE 157WASHUSETTST. Map: Card: MarketValue LngthxWidth Rate Units Cond SizeAdj FeatureType Notes FIREPLACE1-1STAND 100 100 1 2,500 2,500.00 FORESTRIMCOMMINT 100 100 1 140,000 140,000.00 SHED-SV 100 100 1 100 100.00 HEARTH 100 100 1 1,500 1,500.00 2017 144,100 1of1 NotesTaxValue AdValoremSPIR Cond LandType 0ac Lot: Sub: PriceGrantor BookPageTypeDate 05/03/201742810797QI 222,535ZAREMBA,JEANM. 03/18/201339630231UI38 ZAREMBA,JEANM. 12/31/200329440039QI 211,000SUPRUNOWICZ,ELLEN WHITNEYCONSULTINGGROUP,LLC ASSESSINGSERVICES 12/12/2022Printed: 1FRES Site: Driveway: Road: 4FORESTRIMWAY 000108 029000 0B0002 WATERVILLEVALLEY HOLDEN,MA01520 07/28/17JBSI 06/12/17JBSR 05/12/16JBPU 04/20/12JBRM2012M&L 09/08/04BWX 01/19/04RS BuildingFeatures Land Year 2020 $0 $120,600$104,100 ParcelTotal:$224,700 2021 $0 $120,600$104,100 ParcelTotal:$224,700 2022 $0 $196,400$144,100 ParcelTotal:$340,500 Zone:FRIMFORESTRIMMinimumAcreage:1.00MinimumFrontage:100 Neighborhood:E
PICTURE PERMITS OWNER TAXABLEDISTRICTS BUILDINGDETAILS BUILDINGSUBAREADETAILS 2022BASEYEARBUILDINGVALUATION 2STORYFRAMETOWNHOUSE Adj.Effect.Area IDDescription STOSTORAGEAREA 200.25 5 FFUFSTFLRUNFIN 360.6022 SLBSLAB 7920.00 0 UFFUPPERFLRFIN 5181.00518 OPUOPENPORCH. 810.2016 FFFFSTFLRFIN 7621.00762 CTHCATHEDRAL 1980.1020 2,407 1,343 Heat: A/C: Fixtures: Baths: Bedrooms: Map: Lot: Sub: Card:1of1 Roof: Ext: Floor: Int: 2.0 2 No Quality: $166.15 1.1468 $223,139 TotalDepreciation: Temporary: Economic: Functional: Physical: GOODConditionForAge: $196,400 12% 12% 12/12/2022Printed: Com.Wall: 7 SALTBOX/ASPHALT CLAPBOARD DRYWALL CARPET/HARDWOOD ELECTRIC/RADELECT 000108 029000 0B0002 BuildingValue: MarketCostNew: MCMAHON,TIMOTHY MCMAHON,DENISE 157WASHUSETTST. HOLDEN,MA01520 1.1868
WATERVILLEVALLEY DatePermitIDPermitType Notes 06/10/1515-29 REPAIR REPLACEFIREPLACE/BRICKFACE SizeAdj: BaseRate: Bldg.Rate: Sq.FootCost: Percentage District RCT140.00 A1AVG+10 Generators: ExtraKitchens: Fireplaces: 1985 YearBuilt: Model:
4FORESTRIMWAY

Waterville Valley - Tax Office

Bill Information

Bill Number: 2022P02011502

Description: Property Tax

Property ID: 108-29000-B0002

Owner: MCMAHON, TIMOTHY Address: 4 FOREST RIM WAY

Details

$0.00

$0.00

$1,850.00

$1,850.00

Interest:
Costs:
Total:
Payments:
Balance Due:
Bill Amount: $1,850.00
$0.00
Description Date Tax Year Period Amount
Bill
Due Date:
Last Paid: 11/28/2022 Paid By: 964172051 1/26/2023 Payment - Principal 11/28/2022 2022 2 ($1,850.00) Property Tax 12/1/2022 2022 2 $1,850.00
Date: 12/1/2022
12/1/2022

Turn static files into dynamic content formats.

Create a flipbook
Issuu converts static files into: digital portfolios, online yearbooks, online catalogs, digital photo albums and more. Sign up and create your flipbook.