22 Central Street Lisbon, NH

Page 1

TEAM / AGENT NAME 22 Central Street, Lisbon

Welcome To

Investors take notice! This 10-unit multifamily property is fully occupied and ready for its next owner. The first building consists of six apartments, while the carriage house has the remaining four. With undeniable character and wood floors throughout, you will never have trouble finding tenants with several longstanding tenants already. Recent updates include a new roof, wiring, furnace, and complete renovations and appliances to certain apartments. Downtown Littleton is under 20 minutes away, with a plethora of recreational activities nearby.

22 Central Street

View From Above

Exterior
Exterior

Apartments

Apartments

Apartments

Apartments

Apartments

Apartments

Bathroom

Lake Life Realty 87 Whittier HwyMoultonborough, NH 03254 603-403-5944 CASSIE STOKES Realtor® M: 603.851.8901 cassie@lakeliferealty.net Compass is a licensed real estate broker in Massachusetts and Compass Real Estate is a licensed real estate brokerage firm in New Hampshire, Maine, and Vermont and each abides by Equal Housing Opportunity laws. All material presented herein is intended for informational purposes only. Information is compiled from sources deemed reliable but is subject to errors, omissions, changes in price, condition, sale, or withdrawal without notice. Photos may be virtually staged or digitally enhanced and may not reflect actual property conditions.

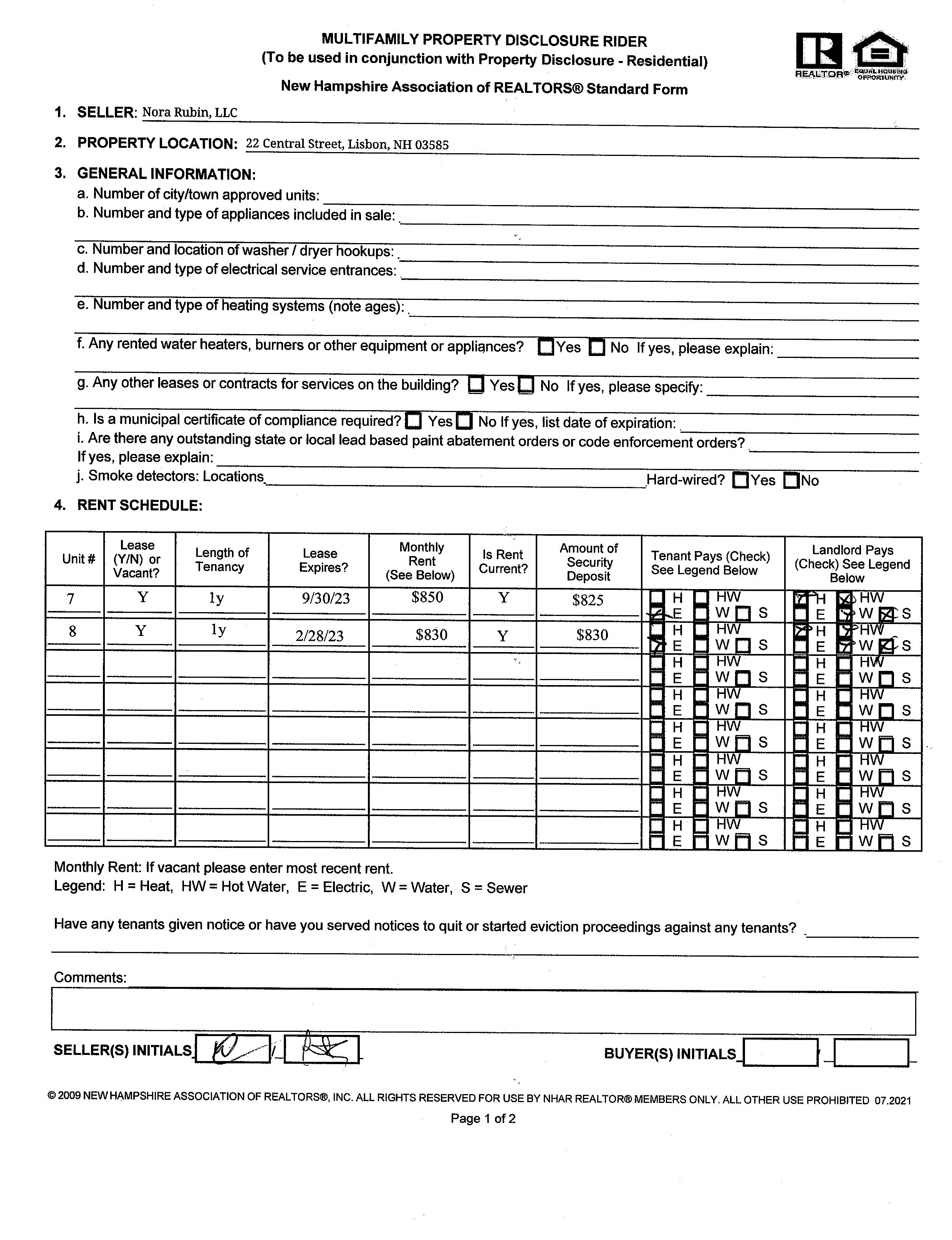
Revenue

Landlordpayselectricity

Landlordpayselectricity

Apt# LeaseUntil

1MH $880.00 7/31/2023

1AMH $890.00 3/31/2023

2MH $915.00 12/31/2023

Landlordpayselectricity 3MH $840.00 9/30/2023

4MH $1,000.00 TAW

5CH $880.00 11/30/2023

5AMH $820.00 3/31/2023

6CH $885.00 5/31/2023

7CH $850.00 9/30/2023

8CH$830.002/28/2023

Rentroll-Monthly$8,790.00

Rentroll-Yearly$105,480.00

Vacancyloss(5%) ($5,274.00)

GROSSINCOME$100,206.00

Expenses

RETax3.234%on$338,400Val.$10,974.30

Insurance(2021)$5,117.00

*Maintenance+Repairs$9,987.00

Heat(2021)5080gallonspropane$8,556.00

Water+Sewer (2021)$3,705.00

Landlordelectric$3,131.00

Mow+Snow $1,901.00 Trash$2,160.00

TotalExpenses $45,531.30

NetOperatingIncome $54,674.70

Notes

2022 -Inspectedallapartmentstoreducewaterwaste,made changes/repairsin2,4,7,8.NewstoveApt4

2021 *Abouthalfofthe2021repairamountwasamajor cleanup/repaintafteronetenantleft,andabout$1500morewas spentonrepair,andthendemolitionofagarbageshed

2021 -wedidaclosetogut-renotoconvertApt1toresidentialuse, newwasher/dryer

- Replacedtheroofonbothbuildings,re-pointchimneys

-RepointedthechimneysontheMainHouse

-Apt5-RenovateApt5-NewBath,scrapeandpolywoodfloors

-Apt5A-NewRefrigeratorandstove -Apt7scrapeandpolyfloors

2019 -NewfurnaceatMainHouse

2018 -Apt3newstove

Apt6newkitchencabinets,floor,counter,refinishfloorsinLRand BR

2017 -newconcretewalkwayatMainhouse

-replaceremainingknob-and-tubewiringatMainhouse -Apt6newstove

Beforewepurchased

2013 -Newpropaneheatingsystematbothhouses -newCarriagehousewindows

2012 -newCarriagehousesiding

22CentralSt,Lisbon

NORARUBINLLC

C/OSTARER/STOR 420RIVERSIDEDRIVE,#5H

4APTS,UNITS5-8;FD:SOMEOUTDATEDBLDGPERMITISSUED2/29/12BM; BUILDING-COLONIAL;18M&L:ADDEDEXKITCH'S,ADJDSIDING;P/U RENOVATECONVERTSALONTORESIDENTIALAPARTMENT2022-REMOVE FD

PARCELTOTALTAXABLEVALUE OWNERINFORMATION LISTINGHISTORY EXTRAFEATURESVALUATION SALESHISTORY NOTES PICTURE MUNICIPALSOFTWAREBYAVITAR
LANDVALUATION LASTREVALUATION:2019
Map: Card: MarketValue LngthxWidth Rate Units Cond SizeAdj FeatureType Notes
100 100 4 10,000
100 100 3 4,500
14,500
NotesTaxValue AdValoremSPIR Cond Units NCAdj LandType BaseRate SiteRoadDWayTopography
E 0.800 100 ac 100 27,4000N27,400 100100100 27,360 27,400 0.800ac 27,400 Lot: Sub: PriceGrantor BookPageTypeDate
LISBONASSESSINGOFFICE 05/11/2022Printed: Site: Driveway: Road: 22CENTRALSTREET 000U04 000032 000000 LISBON
BuildingFeatures Land Year
Zone:DISTBMinimumAcreage:1.00MinimumFrontage:125
FIREPLACE1-1STAND
2,500.00 KITCHENSV
1,500.00 2018
1of2
4FRES
09/16/201642340322QI 285,00022CENTRALSTREETLLC, 08/15/20073438453QI 325,000ROBERTS,JOHNB
NEWYORK,NY10025 05/09/22RDBP 01/14/19JBRE 07/25/14THUR 09/16/13JTX 06/26/09FHS 03/12/09MKE 12/02/08CJC
2020 $27,400 $228,000$20,500 ParcelTotal:$275,900 2021 $27,400 $228,000$20,500 ParcelTotal:$275,900 2022 $27,400 $125,300$14,500 (c) ParcelTotal:$338,400 (CardTotal:$167,200)

Fixtures: Baths: Bedrooms:

Roof: Ext: Floor: Int: 4.0 4 No Quality: $67.06 0.9976 $231,961

Physical: GOOD

PICTURE
OWNER TAXABLEDISTRICTS BUILDINGDETAILS BUILDINGSUBAREADETAILS 2019BASEYEARBUILDINGVALUATION
PERMITS
2.50STORYFRAMEFOURFAM Adj.Effect.Area IDDescription
Map: Lot: Sub: Card:1of2
TotalDepreciation: Temporary: Economic: Functional:
ConditionForAge:
05/11/2022Printed:
000U04 000032 000000 BuildingValue: MarketCostNew: NORARUBINLLC C/OSTARER/STOR
22CENTRALSTREET
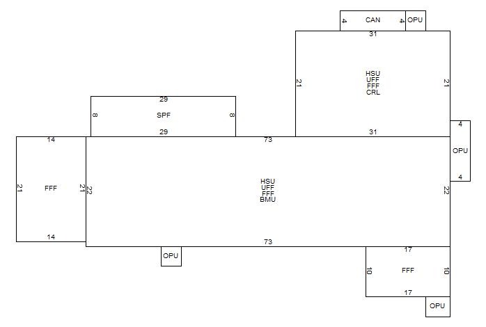
FFFFSTFLRFIN 14401.001440 BMUBSMNT 14400.15216 OPUOPENPORCH 210.15 3 HSU1/2STRYUNFIN 14400.25360 UFFUPPERFLRFIN 14401.001440 5,781 3,459 GLA:2,880 DatePermitIDPermitType Notes 08/26/21 RENOVATIONS RENOVATEANDCONVERTSALONTOAPARTMENT
Heat: A/C: Percentage District
$125,300 46% 46%
Com.Wall: 12 GABLEHIP/ASPHALT VINYLSIDING PLASTERED/FIBERBOARD PINE/SOFTWD GAS/HOTWATER
420RIVERSIDEDRIVE,#5H NEWYORK,NY10025 0.9580
LISBON
SizeAdj: BaseRate: Bldg.Rate: Sq.FootCost:
RFF70.00 A0AVG Generators: ExtraKitchens: Fireplaces: 1885 YearBuilt: Model:

UNITS1A,2,3,4,5A&1COMMSALON;FD:SOMEOUTDATEDNOGARAGE DRCEMENTFL.6/36/09FHS;18M&L:ADDEDEXKITCH'S,ADJDBASE RATE,SPUTOSPF,OPFTOOPU,DEKTOOPU,RMVDDEK,ADDEDCNPY 2022-REMOVEFD

LANDVALUATION LASTREVALUATION:2019 PARCELTOTALTAXABLEVALUE OWNERINFORMATION LISTINGHISTORY EXTRAFEATURESVALUATION SALESHISTORY NOTES PICTURE MUNICIPALSOFTWAREBYAVITAR
Map: Card: MarketValue LngthxWidth Rate Units Cond SizeAdj FeatureType Notes
100 100 4 6,000 1,500.00 2018 6,000 2of2 NotesTaxValue AdValoremSPIR Cond LandType 0ac Lot: Sub: PriceGrantor BookPageTypeDate LISBONASSESSINGOFFICE 10/20/2022Printed: 4FRES Site: Driveway: Road: 22CENTRALSTREET 000U04 000032 000000 LISBON
BuildingFeatures Land Year 2022 $0 $165,200$6,000 (c) ParcelTotal:$338,400 (CardTotal:$171,200) Zone:MinimumAcreage:MinimumFrontage: Neighborhood:
NORARUBINLLC C/OSTARER/STOR 420RIVERSIDEDRIVE,#5H
KITCHENSV
NEWYORK,NY10025 01/14/19JBRE 06/26/09FHS 06/26/09FHS

Com.Wall: 15 GABLEHIP/ASPHALT VINYLSIDING DRYWALL/PLASTERED LINOLEUMORSIM/HARDWOOD GAS/HOTWATER

0.9966

Roof: Ext: Floor: Int: 5.0 5 No Quality: $66.99

HSU1/2STRYUNFIN 22570.25564 UFFUPPERFLRFIN 22571.002257 FFFFSTFLRFIN 27211.002721 BMUBSMNT 16060.15241 CRLCRAWL 6510.00 0 SPFSCREENPORCH 2320.3070 OPUOPENPORCH 1000.1515 CANCANOPY 520.10 5 9,876 5,873 GLA:4,978

58% 58%

OWNER
BUILDINGDETAILS BUILDINGSUBAREADETAILS 2019BASEYEARBUILDINGVALUATION
PICTURE PERMITS
TAXABLEDISTRICTS
2.50STORYFRAMEMULTIFAMIL Adj.Effect.Area IDDescription
Map: Lot: Sub: Card:2of2
$393,432 TotalDepreciation: Temporary: Economic: Functional: Physical: AVERAGEConditionForAge: $165,200
10/20/2022Printed:
000U04 000032 000000 BuildingValue: MarketCostNew: NORARUBINLLC C/OSTARER/STOR 420RIVERSIDEDRIVE,#5H
22CENTRALSTREET LISBON DatePermitIDPermitType Notes
Heat: A/C: Percentage District
Fixtures: Baths: Bedrooms: YearBuilt:
NEWYORK,NY10025 0.9570
SizeAdj: BaseRate: Bldg.Rate: Sq.FootCost:
RFF70.00 A0AVG Generators: ExtraKitchens: Fireplaces: 1885
Model:

NORARUBINLLC

C/OSTARER/STOR 420RIVERSIDEDRIVE,#5H NEWYORK,NY10025

County:$0.87 School:$8.77 Town:$5.65 StateEducation:$0.93

LISBONTAXCOLLECTOR 46SchoolStreet Lisbon,NH03585 Temp-ReturnServiceRequested 8%APRChargedAfter07/01/2022 338,400

311,000 338,400 * *FirstBillTaxRateEquals1/2LastYear'sFinalTaxRate

$16.22

Invoice: BillingDate: PaymentDueDate:

2022P01012803 07/01/2022 05/17/2022

2022LISBONNH,TAXCOLLECTORPROPERTYTAX--BILL1 $5,488.85AmountDue:

$5,488.85 $0.00 $5,488.85

TotalTaxRate: TaxRates Assessments SummaryOfTaxes NetValue:
FirstBill: -Abated/Paid: -VeteranCredits:
NORARUBINLLC 27,400 Map:000U04 000032Lot: Sub:000000 PropertyDescription AmountDueBy07/01/2022: Seebackofbillforimportanttaxinformation
RETURNTHISPORTIONWITHPAYMENT
TaxableLand: Buildings: Total: C/OSTARER/STOR Location:22CENTRALSTREETAcres:0.800 $0.00 Owner: PropertyOwner Invoice: Map: Lot: Sub: Location: NORARUBINLLC C/OSTARER/STOR 420RIVERSIDEDRIVE,#5H NEWYORK,NY10025 000U04 000032 000000 22CENTRALSTREET 2022P01012803 $5,488.85 NORARUBINLLC LISBONTAXCOLLECTOR Monday3:30-7:00,Tuesday-Thursday7:30-4:00 Friday7:30-10:00 (603)838-2862 TaxCollector:AudreyChampagne
2022LISBONNH,TAXCOLLECTORPROPERTYTAX--BIL RemitTo: MailedTo: LISBONTAXCOLLECTOR 46SchoolStreet Lisbon,NH03585 Temp-ReturnServiceRequested AmountDueBy07/01/2022: REMITTEDAMOUNT: . C/OSTARER/STOR BillscanbepaidonlineatNHtaxkiosk.com
Owner:

Turn static files into dynamic content formats.

Create a flipbook
Issuu converts static files into: digital portfolios, online yearbooks, online catalogs, digital photo albums and more. Sign up and create your flipbook.