portfolio2

Page 1

architecture 2020-2023
POR TFO LIO

LAILA STEWART

Monroe, Louisiana

CONTACT INFORMATION

Phone: (318)-732-4549

Email: lailajstewart@gmail.com

ljs026@latech.edu

INTERPERSONAL SKILLS

• Problem-Solving

• Active Listening

• Multitasking

• Time-management

• Communication

ARCHITECTURAL INTERESTS

EDUCATION & EXPERIENCE

LOUISIANA TECH UNIVERSITY, RUSTON, LA

2019-2023

• GPA: 3.3

• Bachelor of Science candidate

• Architecture & Interior design courses

• Clubs and organizations: National Organization of Minority Architecture Students Treasurer, American Institute of Architecture Students

• Design Build Program- AIAS Members Choice Award, AIAS Award of Merit

M3A ARCHITECTURE, JACKSON, MS

2022-PRESENT

• Shadowed architects, project managers, and interior designers in the production and design processes of firm projects

• In charge of drawing construction documents for ongoing projects such as churches, schools, and healthcare o�ces

• Visited projects on-site to measure dimensions and analyze floor plans

• Created schematic designs for firm clients/projects

• Currently, shadowing architects and engineers in the on-site construction process of an education project

TECHNICAL SKILLS

• Autocad • • Rhinoceros • • Lumion • • Photoshop • • Illustrator • Revit • • SketchUp • • Drafting • • Model-Making
• Teamwork
• Historic Preservation • Urban Design • Residential Design
Interior Design

Table of Contents:

Bamboo Biotechnology Center

Salt Lake City, UT

OFFICE

Universal Dance Association Performance Center

Kahului, HI

OFFICE

Colony Park Food & Community Center

Austin, TX

COMMUNITY ENGAGEMENT

Mosaic Art Cabin

Choudrant, LA

COMMUNITY ENGAGEMENT

Bamboo Biotechnology Center

Salt Lake City, UT

The Bamboo Biotechnology Center is a tech incubator located in Salt Lake City, Utah. The center is sponsored by Silicon Slopes. Along with Silicon Slopes, the main client of the center is Lamboo. This building is an office building for clients to rent & build startup companies. The center also uses a research lab to study sustainable ways to create products. The research lab analyzes data to find solutions that can save & replenish decreasing trees due to deforestation, & replacing tree products with bamboo.

The building has a research area on the top floor & tech incubator spaces on the third & second floor. The bottom floor is dedicated to the public to teach about sustainable living. The building’s materials also promote sustainability, with the main building material being bamboo to decrease the use of tree products. This building is the root of saving & replenishing resources by decreasing deforestation rates & replacing tree products with sustainable bamboo material through biotechnological research.

Bus Stops

Bus Routes

Rail Routes

Good Traffic

Moderate Traffic

Summer Wind

Direction

Summer Sun

Path

Winter Wind

Direction

Winter Sun

Path

210 Rio Grande Street Salt Lake City, UT

Concept:

This building is the ROOT of saving & replenishing resources by decreasing deforestation rates & replacing tree products with sustainable bamboo material through biotechnological research.

Biotechnology is the integration of natural sciences and engineering sciences in order to achieve the application of organisms, cells, parts thereof and molecular analogues for products and services. The proposed building is a research facility dedicated to taking dwindling resources and creating a sustainable process to make more sustainable products. This sustainable process also has an influence on the building’s form and program resulting in biotech architecture. Biotech architecture combines global technologies with local responses to site and social conditions.

of Paper Products
for Timber Sustainable Material Bamboo
Sustainable Product
Growth Rate
to Environment
Depleting Resource Trees Deforestation Use
Need
Abundant
Fast
Beneficial
80% 4 10 Trees are burned, degraded, and logged at astonishing rates of the world’s forests are already destroyed Every 2 seconds man destroys an area of forest the size of a football field out of get chopped down and processed into paper products Processing are being logged for chocolate, toothpaste, paper, magazines, animal feed, and more Paper Products Forests store nearly 300 billion tons of carbon Bamboo is a versatile plant that can tackle the loss of forest acres due to deforestation There is a low maintenance for bamboo- needing no fertilizers or pesticides more CO2 is absorbed than trees making it a better plant for the environment and air 35% There is a different species of bamboo for every climate, therefore they can grow all over the world It only takes 5 years for bamboo to be harvested yr 2 yrs 3 yrs 4 yrs 5 yrs Bamboo has a fast growth rate & can grow up to 3 feet per day
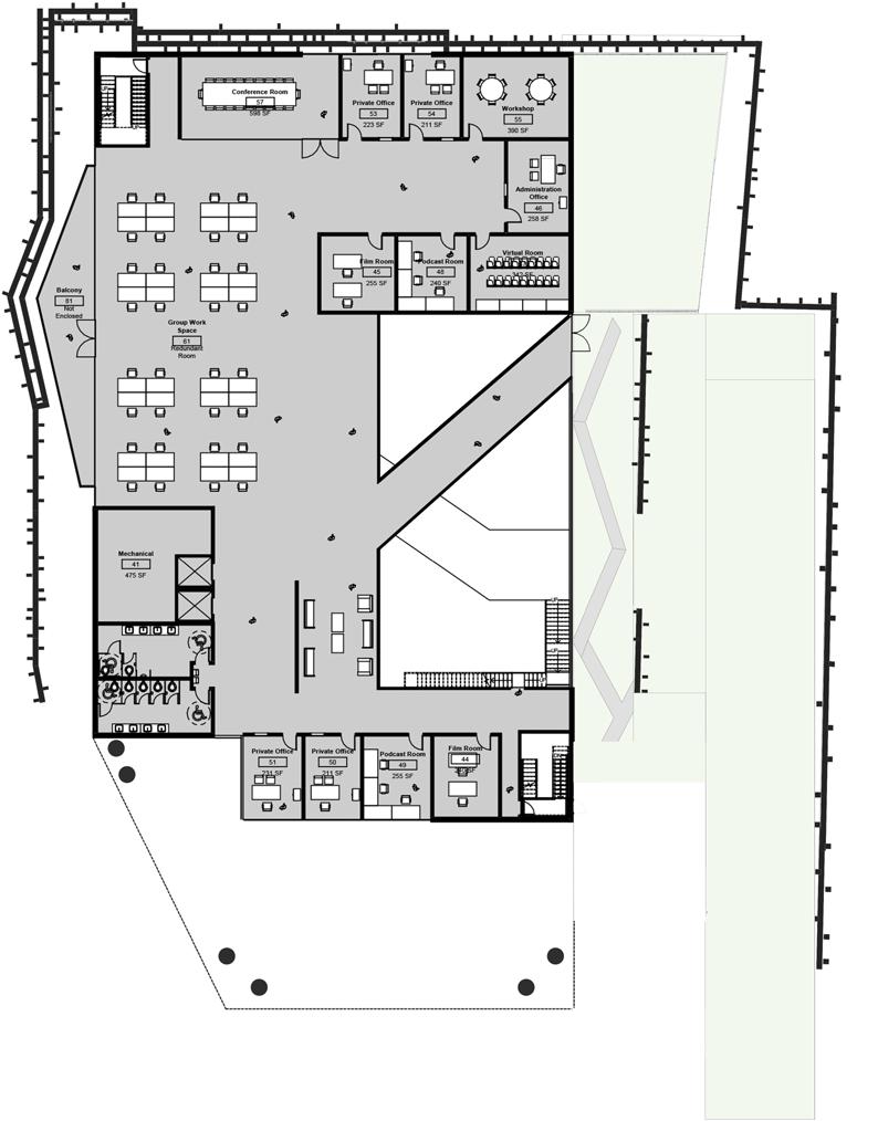
First Floor Plan Second Floor Plan Third Floor Plan Fourth Floor Plan 1. Conference Room 2. Classroom 3. Lobby 4. Cafe 5. Auditorium 6. Storage 7. Administration Office 8. Reception Office 1. Podcast Room 2. Film Room 3. Workshop 4. Group Work Area 5. Private Office 6. Storage 1. Conference Room 2. Group Work Area 3. Virtual Room 4. Podcast Room 5. Film Room 6. Storage 7. Administration Office 8. Workshop 9. Private Office 10. Balcony 1. Conference Room 2. Storage 3. Administration Office 4. Research Room 5. Private Office 6. Research Lab 7. Balcony 8. Rooftop Terrace 9. Data/IT Room 1 2 3 4 5 6 7 8 7 1 2 3 4 5 6 1 5 5 5 1 2 3 4 10 6 9 4 5 5 7 8 9 9 9 1 2 3 9 6 4 5 5 7 8 5 5

Universal Dance Association Performance Center

Kahului, HI

Universal Dance Association (UDA) is a nationwide organization focused on providing education for college and high school dancers through camps, clinics, and competitions. However, these events are always hosted at an outside site or organization. The Universal Dance Association Office and Performance Center will provide UDA a new headquarter to host these events for future dancers and teams. The building is located in Kahului, HI, across from Kahului Harbor. The center is also in close proximity to three hotels, two parks, and the Kahului airport for little to no outside traveling. This site was chosen to promote the important idea of creating a “spirited experience” for dancers and their families through the events held and surrounding environment.

UDA events are anchored in this concept of “experience.” UDA is the largest dance team educator, teaching more than 35,000 dance teams at over 500 camps. Therefore, this building must be large enough to support these events and teams. The spaces include offices, a public cafeteria, performance space. dressing rooms, and practice spaces for the dancers; as well as break areas for the families to watch competitions and relax during waiting times. The performance space is outside with a beautiful backdrop of the Kahuhlui Harbor. This center is made up of a curvy and organic form, symbolizing a dancer’s fluid body movement, with its main materials being steel and concrete. In conclusion, the Universal Dance Association Office and Performance Center’s purpose is to provide a home for Universal Dance Association while promoting leadership skills, dance technique, and the idea of “experience” through dance education and an overall enjoyable time.

First Floor Plan Second Floor Third Floor 1. Practice Area (Large) 2. Locker Rooms 3. Cafe 4. Lobby 5. Outdoor Performance Area 6. Mechanical 7. Storage 1. Practice Area (Large) 2. Locker Room 3. Private Office 4. Conference Room 5. Administration Office 6. Break Area 7. Balcony 8. Practice Area (Small) 1. Practice Area (Large) 2. Conference Room 3. Locker Room 4. Private Office 5. Break Area 1 2 3 6 4 5 2 6 6 7 1 2 3 3 3 4 4 4 5 6 7 8 1 1 2 2 2 3 4 4 4 5
A Section B
Section

Colony Park Food & Community Center

Austin, TX

Colony Park is an existing community in Austin, Texas. This project proposed a new urban design for that community. The Colony Park Food & Community Center is the core of sustainable living for the proposed development. Through urban design and planning, the community center was developed to provide a connection between sustainable living and economic wealth for the community. The center is made up of a farmers market and a community kitchen & learning center, with a bridge that represents the conceptual connection between the buildings. The center is also connected to a edible forest across the street that allows the public to receive produce from it. This center is designed to create a system, based on composting, community engagement, & overall, sustainable living in Colony Park.

Our main goal within colony park is to promote a sustainable life. Food in Colony Park has the potential to support economic vitality, provide jobs, and create healthy habits all within the community. This sustainable lifecycle allows the people of Colony Park to grow, cook, or sell their own produce. In doing so, we have proposed 2 main buildings that can support the goals suggested.

Residential Space Commercial Space Green Space Hydrology 0.25 = 5 minutes of a mile walk -Edible Forest -Irrigation -Community Garden -Greenhouse -Residential -Commercial -Compost Bins Community Kitchen Job Opportunities
Environmental Map Accessibility: Walking Distance Economic Map Zoning Map Equity Map
Farmers Market

Site Plan

Targeted Structures:

-Farmers Market

-Learning & Nutrition Center

-Edible Forest

Single Family Housing (957 units)

-Single homes (300 units)

-Duplexes (657 units)

Multi-Family Housing (950 units)

-Townhomes (308 units)

-Apartments (11 apartments- 642 units)

Section A Section B First Floor Plan Second Floor Plan
1. Classroom Kitchen
Dining
2.
Area
3. Community Kitchen
4. Restaurant
5. Cafe
6. Market Hall
7. Storage
8. Preparation Kitchen
Classroom
Office
Computer
1 2 3 6 4 9 7 8 4 5 5 1 1 1 2 2 3 2 2 2 4 7
9. Plaza 1.
2.
3.
Lab 4. Market

Mosaic Art Cabin

Choudrant, LA

In the Spring of 2022 the ARCH 335 Design Build Studio within the School of Design at Louisiana Tech University designed and built the Mosaic Art Cabin at Camp Alabama to enhance the camper experience and serve the special needs of the children that attend Med Camps of Louisiana’s summer camp programs.

Being one of many Design Build projects at Camp Alabama, the Mosaic Art Cabin stands out, physically and conceptually, because it brings all factors of art together. The art cabin is a beacon of light and joy shown throughout the day, and physically at night. The purpose of the project was to promote inclusivity among the children that attend the camp. The campers are able to create and display art in a safer and more accommodated space than before. The campers are also able to enjoy making art without feeling left out or out of place. Throughout the project, I participated in demolishing and modifying the site, laying cmu blocks, collecting and restoring wood, constructing ceilings and wall components, and welding metal. This project was very successful for everyone involved including the designers and campers. We, as designers, created an interactive place for the kids to make art while also making it accessible for all disabled campers. We also constructed amazing architecture that the community is able to see and enjoy.

Archery & Paintball

Existing Cabins

Boating

Fishing

Rec Hall & Pool

O’Neil Chapel

Stroud Store

Gibbs Pavilion

Hutton Hall

Art Cabin

HWY 145
COLOR IN THE CABIN
Floor Plan

Self drawn elevation

Self drawn elevation

North Elevation South Elevation

I truly appreciate the opportunity to present my work to you. I hope to be granted the opportunity to work and continue learning and studying the great world of architecture. Thank you.

-Laila Stewart

Turn static files into dynamic content formats.

Create a flipbook
Issuu converts static files into: digital portfolios, online yearbooks, online catalogs, digital photo albums and more. Sign up and create your flipbook.