Laila_Saleh_Portfolio

Page 1


M.Sc Building Technology

Delft Technical University

B.Sc Architectural Engineering

American University in Cairo

L.H.Saleh@student.tudelft.nl/ lailahanyawad@yahoo.com +31617908513

Date of Birth: June 15, 2000 Nationality: Egyptian

Location: Utrecht, NL

Location: Islamic Cario, Egypt

Location: Downtown Cario, Egypt

The Rotating Magnet The Jewel
Laila Saleh

The Bio-Farm Momento

Location: Fayoum, Egypt

Double Skin Facade

Location: New Cairo, Egypt

Location: Vienna, Austria

01 UniCity: MEGA Project

Green Links, People Connect

Location: Utrechit, The Netherlands

MEGA, 1st Year Masters in Building Technology

Date: April 2024 - June 2024

Site Analysis

The MEGA 2024 project in Utrecht, located atop the Hoog Catharijne mall, challenges participants to create an innovative, multifunctional design that integrates with existing structures, including apartments and vacant office spaces.

The goal is to effectively balance public and private areas, retaining or repurposing elements where beneficial, and ensuring smooth connections between functions that harmonize with the surroundings.

Architecture Designers: Laila Saleh and Jelle Van Amstel

Climate Designer: Mark De Kanter

Facade Designer: Djurre Barten

Structural Designer: Lynn Klootwijk

Computational Designer: Cansu Esroy

Main Approaches

Maximizing daylight

Maintaining structure A green connector

Communal Spaces
Bridging facilities
Stepped park
Accessible green roof
Inbetween spaces and connectors
Main Zoning
Green connections
Creation of Bridges

Architectural Translations and Detailing (Hotel and Residential)

The rotating hotel and twin towers in Utrecht create a dynamic urban presence, with the hotel becoming progressively smaller and more private as it ascends. The rotation optimizes privacy, daylight, and views, while bridges between the hotel and residential tower provide functional and experiential connections. Inspired by Dutch openness, a “village” concept integrates a park between the residences, connecting a restaurant to a communal garden. The left tower offers 3 long-stay apartments per floor, while the right has 6 shortstay units, fostering connectivity and vibrant, layered living spaces.

Outdoor common areas
Walkable bridge with an integrated restaurant Solar panel transition
Initial Sketches Hotel Plans
Plans

Architectural Translations and Detailing (Offices)

Preserving the octagonal identity

Accessible
Facade concept

02 The Jewel: Art & Innovation Center

Imagining Zero Carbon Future Heritage

Location: Islamic Cairo, Cairo, Egypt

5th year Thesis I Individual Design Project

A joint program between the University of Salford, Queens University Belfast, and the American University in Cairo

Date: September 2022 - June 2023

This project aims to revive the people’s connection to the site by shattering all boundries created through the revival of the lost authentic stained glass culture to bridge the social, spacial, historical, and environmental gaps between the fragile past and the dynamic future.

Through a zero carbon initiative the project encourages sustainable solutions through environmental considerations, adaptive reuse of two historic buildings, reuse of the structure of an existing building, and a glass waste recycling facility.

Vehicle Accessibility Map
Site Analysis

Passive Strategies

Carving using light

Dissertation on color combinations

Bemaristan Mo’ayaad sheikh
Slightly Angled
Al Tekkeya
Overlapping
Beit El Memaar El Masry
Dominant and Recessive

Structural Integration

Heritage Buildings

The Bemaristan Mo’ayad sheik and the Tekkia are adaptively reused. The Bemaristan contains the rest of the admin and conference spaces, and the Tekkia is the temporary artisans’ residence.

The Cracks

The cracks start from the recycling plant to the main plaza. Each crack is a different experience and goes through a different function. The users go through the shatters to experience the stories.

Levels

The levels show the different typologies that create the stained glass village. Each building is a different experience.

Column and Flat Slab System

The flat slab system is the structure used in the rest of the project. It allows for the huge spans. Conceptualy, the system allows a smooth tansition from one system to another.

Slanted Roof with Solar Panels

The roofs are slanted towards the south to maximize the solar panels’ efficiency. There are opening towards the north to maximize natural cooling.

Green Roof

This is an accessible green roof. It is designed to create the main cooling area for the administration and innovators. It also aims to reduce the carbon emission and helps to cool the building.

Steel Frames and Glazing System

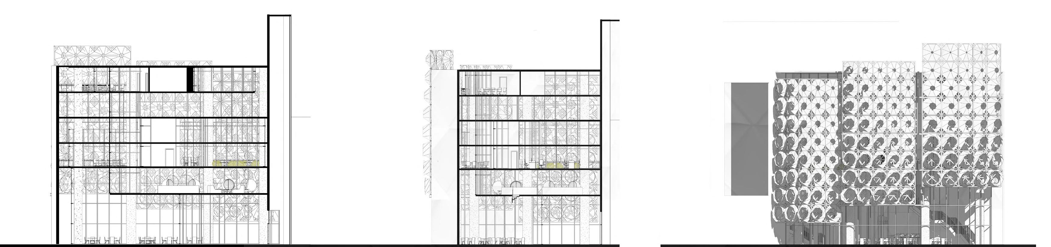
The steal frames are part of the main structure system that represents the main concept of the project, breaking boundaries through shattered glass. This is the main element that contains the stained PV glass throughout the entire project.

Site Plan

Folded Plates

H2 Steel Frames

Interplaying with Heights

Stained Glass

Concrete Folded Plates Systems

The folded plates system represents the main concept where the shatters are start and end. The folded plates are the envelope for the museum, aimed to create a sense of curiousity and dynamism

Museum Details
Recycling Plant Admin
Connection to Green Roof
Green Roof
Stained Glass
Concrete Folds

Lighting Analysis

Main Entrance
Bemarestan Al Mo’yaad Sheikh

03 The Rotating Magnet: Commercial Building

Bringing back light to tame the darkness

Location: Downtown Cairo, Cairo, Egypt

4th year Individual Design Project

The building responds to the community’s need for a sense of belonging in the heart of Downtown Cairo. A gap between people and space was created with time in relation to the sensitivity of the context. Through studies of the origins of the urban design, the project utilizes the free masons’ approach and linkage. Biogeometry harmonics were used to create rotations that responded to the chosen nodes in Downtown Cairo. The concept of this project is to create a switch that promotes unity in a constrained context. The project aims to be effecient, sustainable, and effective.

Downtown is designed based on BG3 power spots

Date: February 2022 - May 2022 Key Violent Historical Events

Switched to negative vibration points due to violent historic events

Entrances as magnets based on original spots

Interlocking Concept

Rotation Concept According to Biogeometry harmonics

Rotation Concept According to Biogeometry harmonics

Opportunities

Self Shading
Double Height Terrace
Shading device in southern direction Transparency
First Floor

Waterfall

Upper Floor Portrusion

Circulation overlooking courtyard

Transparency

Northern Entrance

Green seating area enclosure

Seating Steps

Green Roof
Waterfall (Direct Evaporative cooling)
Double Height Balcony in NW
Self-Shading
Water Tank
Waterfall
Rainwater Collection
Vegetation
Light colored walls

04 The Bio-Farm: Agrohub

Agro-Wellness Through Biogeometry

Location: Al-Fayyum, Egypt

3rd year Individual Design Project

Date: February 2021 - May 2021

The project aims to focus on the health and well being of people and their relation to the farming industry. Through organic farming and a unique form, the agrohub is to be seen, experienced, and felt. A sustainable and contextual apporach is utilized to maintain the identity of the context through the use of natural building materials and load bearing structures. Due to its proven success in the farming industry, Biogeometry design principles were taken into consideration, and were proven to be effective by Biogeometry experts.

Wind and indirect light Farm Market
Organic Farm
NW Opening for wind
Shaded Terrace Ramp Stairs
Grand entrance Wooden balconies
Load bearing structure
Courtyard
Drop-off area
Load Bearing Structure
Mezzanin
Cantilever balcony
Spanish vaults
Wood flooring
Courtyard
Second Floor

The building’s octagonal shape and series of openings allow for the circulation of comfortable winds while preventing high velocity winds

Transparency & Privacy for workshops

The processing area mainly relies on artificial light, especially in storage rooms to ensure temperature control

Natural daylighting is more prominent in the upper floors, highlighting the high level of interaction and activity

The terraces and offices are well lit, however, this floor relies on both artificial and natural daylighting due to the small sized windows used for privacy and noise

Brackets
Shaded terrace
Wind Catchers Skylight
Natural Stone

05 Double Skin Facade: Bank

Responsive and parametric screens in response to environmental conditions

Location: New Cairo, Cairo, Egypt

4th year Individual Digital Design Project

Date: September 2021 - December 2021 Ninja Star Concept

The project focused on creating an optimized double skin facade using parametric tools to enhance the existing building’s environmental response, efficiency, comfort, and experience. Through an origami inspired design, the double skin addresses lighting, wind, and solar radiation exposure through programed sensors.

The double skin and the structural connection were assessed through multiple digital approaches including a VR emerssive experience and digital vabrication then modified accordingly.

to minimize solar radiation

The double skin proved to decrease the amount of solar radiation inside the building

Shading Analysis

Location: Cairo, Egypt

06 Momento: Social Housing

Green Building Solutions

Meet the Team:

Houyem Snene (Architecture Student)

Drillon Buleshkaj (Mechanical Engineer)

Quinton Frederick (Architecture Student)

Emma Dal Pino (Architecture Student)

Laila Saleh (Architecture Student)

Rihab Oubaidah (Architecture Student)

Eloise Kalavsky (Accoustics Engineer)

Yuliia Frolova (Architect & Landscaper)

Location: Vienna, Austria

3 Week Summer course: Group Project

The aim of this project was to put into practice all the sustainable techniques that we learned to design sustainable and effecient affordable social housing in 1 week.

Greenery Pedestrian walkways

Green Roof
Photovoltaic panels
Rainwater collection
Winter Garden
Adaptive shading device
Water bed
Shading & Wind Collector

Landscape Concept

Concept

(Yuliia Frolova)
Design
(Rihab Oubaidah & Laila Saleh )
Winter Garden

Building form generation based on solar radiation

Quinton Frederick and Laila Saleh

Sound Transmission loss between apartments is approximately 35 dB at 500 HZ
Facade Value must be less than 55 dB over a 24h average
Accoustics
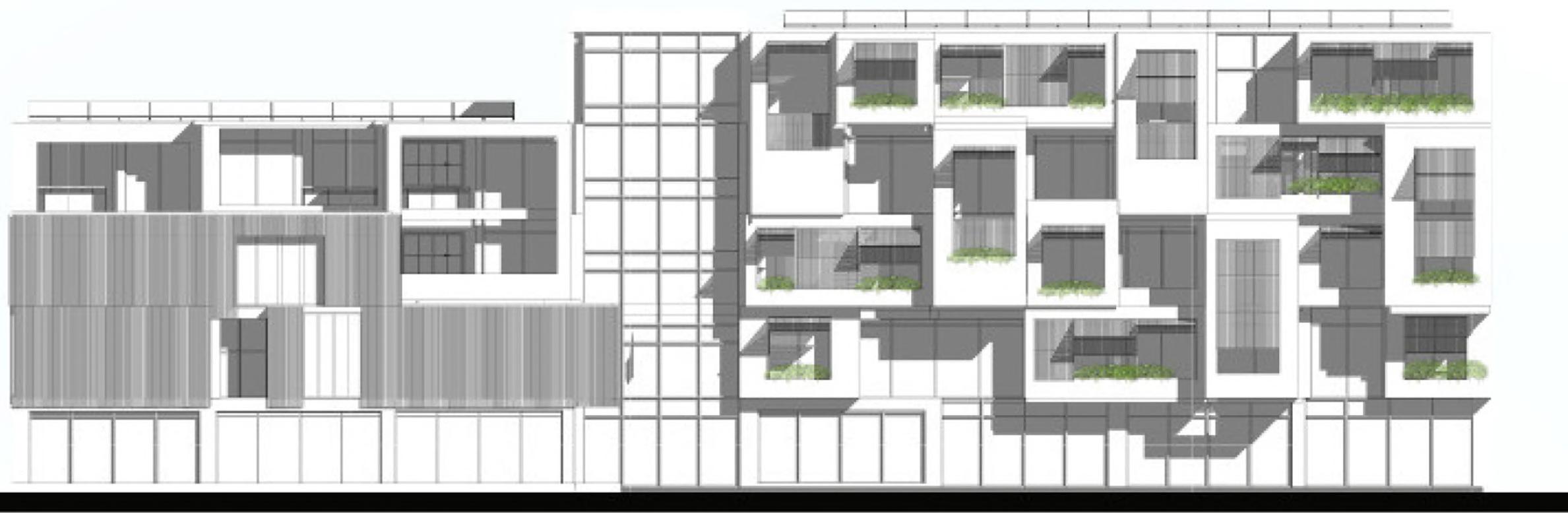
South and East Elevations: Showing Facade and Balconies Design

Structure and Materials

Mass Timber Structure

Concrete base and service core

Prefabricated CLT Panels

Low thermal conductivity

Vibration Isolation for balconies

Attach with standard thermal

Solar panels

200 mm Rigid cellulose insulation

Quinton Frederick, Laila Saleh, Emma Dal Pino
Green roof
Sun shade
Sun shade
Hybrid CLT concrete slab
Vapor barrier
Wind barrier
Triple pane performance windows
100 mm CLT panel
Isokorb thermal break

Heating and Cooling Loads

The cooling load in summer is high Solution:

Shading, natural ventilation, chemical ventilation

HVAC Solution

Ground Source heat pump Heating/Cooling by floor

Pumps Connection to PV Panels

PV to supply the heat pump

AHU for ventilation of the spaces

Turn static files into dynamic content formats.

Create a flipbook
Issuu converts static files into: digital portfolios, online yearbooks, online catalogs, digital photo albums and more. Sign up and create your flipbook.
Laila_Saleh_Portfolio by lailahanysaleh - Issuu