

PORTFÓLIO

LAILA ROCHA ABINADER
Arquitetura e Urbanismo
CURRÍCULO
CONTATOS
lailaabinader.arq@gmail.com
+55 21 994566936
lailaabinader arq
http://www.linkedin.com/in/lailaabinader
DADOSPESSOAIS
Recreio dos Bandeirantes - Rio de Janeiro, Brasil
Nascimento: 20/03/2004
IDIOMAS
Inglês - Avançado
Espanhol - Básico
PRÊMIOS
Prêmios de reconhecimento de desempenho acadêmico, por estar entre os três melhores CR’s do curso.
IBMECEDUCATIONSTARS2023.2
Coeficiente de Rendimento: 9,56
IBMECEDUCATIONSTARS2023.1
Coeficiente de Rendimento: 9,64
IBMECEDUCATIONSTARS2022.2
Coeficiente de Rendimento: 9,60
IBMECEDUCATIONSTARS2022.1
Coeficiente de Rendimento: 9,58
PERFILEOBJETIVOPROFISSIONAL
Busco estágio de Arquitetura para aplicar meus conhecimentos da graduação, integrar uma equipe dinâmica e aprender com profissionais experientes Possuo interesse especial em projetos residenciais e comerciais
Sou dedicada, proativa e responsável, com habilidades em desenho técnico, modelagem 3D e concepção de projetos Trabalho bem em equipe, colaborando com ideias e soluções. Destaco-me pela criatividade, atenção aos detalhes e comprometimento com prazos
FORMAÇÃOACADÊMICA
GRADUAÇÃOEMARQUITETURAEURBANISMO
IBMEC RJ | 2022 - previsão de conclusão em 2026
ENSINOMÉDIO
Colégio de A a Z | 2019 - 2022
CONHECIMENTODESOFTWARES
Autocad - Avançado
SketchUp - Avançado
Revit - Avançado
Enscape - Avançado
Canva - Avançado
Indesign - Intermediário
Photoshop - Básico
Google Earth Pro - Avançado
Qgis - Avançado
Powerpoint - Avançado
World - Avançado
Excel - Intermediário
Twinmotion - Avançado
EXPERIÊNCIAPROFISSIONAL
STUDIORAIO |
agosto2024-presente
Estagiária de arquitetura, atuação em concepção criativa, desenvolvimento de projetos de interiores e detalhamento técnico, com experiência em levantamento de medidas, elaboração de layouts e especificação de materiais.
BARÃODATORREENGENHARIA |
fevereiro2024-agosto2024
Estagiária em gestão de obras, atuação em supervisão e coordenação das atividades diárias no canteiro de obras, auxílio em projetos, solicitação de materiais para obras e desenvolvimento de plantas As Built
ESCRITÓRIOMODELOOKKA |
agosto2023-novembro2024
Diretora do escritório modelo de arquitetura do Ibmec RJ, desenvolvendo projetos, orçamentos e realizando estudos relacionados à arquitetura e urbanismo
ATIVIDADESEXTRACURRICULARES
REPRESENTANTEDETURMA |
agosto2023-presente
Intermediação entre os alunos e a instituição, coordenando atividades e buscando soluções para melhorar a experiência acadêmica
PROGRAMADEMONITORIA |
fevereiro2023-junho2023
Atuação como monitora da disciplina Desenho Técnico no software Autocad, auxiliando alunos em seus projetos
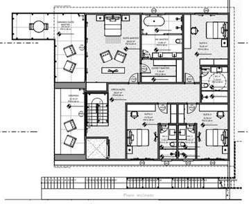
01 APARTAMENTO PH
Alunas: Laila Abinader e Gabriela Drummond
Disciplina: Projeto de Interiores (2024 2)
Professora: Beatriz Chimenti
Programa(s) usado(s): SketchUp, Autocad e Twinmotion
Este projeto residencial, de aproximadamente 70m² , foi criadoparaumjovemcasalesuafilhade1ano,unindo elegânciaefuncionalidadecomumconceitopautadona imponência e magnetismo. Com base no estudo de briefing dos clientes, o projeto foi criado a partir do conceitodeimponênciaedemagnetismo.

















Os ambiente ara otimizar cada metro quadr , buição fluida que inclui suíte principal, quarto infantil e áreas sociais integradas. Materiais nobres, tons neutros contrastantes e marcenaria planejada trazem sofisticaçãoepraticidade Ailuminaçãoestratégicae elementos decorativos marcantes reforçam o magnetismo visual. O resultado é um lar contemporâneo e acolhedor, que reflete a personalidade marcante e os desejos dos moradores





02 RESTAURANTE MILO
Aluna: Laila Abinader e Daniela Nunes
Disciplina: Projeto de Interiores (2024 2)
Professora: Beatriz Chimenti
Programa(s) usado(s): SketchUp, Autocad e Enscape
O projeto do restaurante Milo foi pensado para oferecer uma experiência única, onde arquitetura e gastronomia se complementam.Comseusalãoemezanino,contacomumconceitoqueuneelegânciaeacolhimento,comelementos curvos, rusticos e inspirados na arquitetura art nouveau. Materiais naturais, texturas sofisticadas e uma paleta de cores quentesdefinemaestética,enquantoailuminaçãodestacaosdetalhesarquitetônicoseproporcionaumambienteintimista.



TÉRREO
MEZANINO



03 LOJA AMARE
Aluna: Laila Abinader Disciplina: Projeto Comercial Professor: Marcelo Vinícius Programa(s) usado(s): SketchUp, Autocad e Enscape
A loja Amare, destinada a vestimentas femininas, foi concebida para oferecer uma experiência de compra sofisticadaeacolhedora.
Com dois salões de expositores, sendo um deles no mezanino, o espaço valoriza os produtos por meio de umaorganizaçãofluidaeelementosarquitetônicosque destacam a elegância das coleções. O uso de revestimentos, cores quentes e uma oluminação indiretacriamumambienteconvidativoeleve,









04 Í É
Aluna: Laila Abinader
Disciplina: Projeto Aplicado: Edifício Vertical (2024 1)
Professor: Marco Milazzo
Programa(s) usado(s): SketchUp, Autocad e Twinmotion
Trata-sedeumcondomíniodeusomistoparaobairro deSantoCristo,noPortoMaravilha,RJ.
Seuobjetivoéatenderanovademandaresidencialda área, promovendo a revitalização urbana, e contribuir paraodesenvolvimentocomercialdobairro
O projeto possui uma área residencial com apartamentosde1,2e3quartos,alémdeumaamplae diversa área de lazer. Em sua parte comercial, conta com estabelecimentos como restaurante, farmácia, academiaemercado.

InspiradonaproximidadecomaBaía deGuanabara,ocondomínio traz elementos que remetem ao mareàhistóriamarítimadoRiode Janeiro. Desse modo, faz o uso de curvas em elementos como varandas, piscina, canteiros,paredesepaginação.Alémdisso,buscando destacar os acessos, as entradas dos blocos foram inspiradasemumnaviovistodelado
Apto 3 QT - 143m²










05 COMPLEXO COMERCIAL VIVA
Alunas: Laila Abinader e Ana Clara Ferreira
Disciplina: Projeto Aplicado: Edifício Comercial (2024 2)
Professor: Marcelo Vinícius
Programa(s) usado(s): SketchUp, Autocad e Enscape
O projeto se trata de um complexo comercial, que possui estabelecimentos, como lojas e restaurantes, e espaçosdestinadosaescritórios.
Com base na crescente demanda por ambientes de trabalho mais saudáveis, o projeto busca redefinir os espaçosdetrabalho,priorizandoobem-estar.
Oedifícioéformadopordoisblocosunidosapartirdo terceiropavimento.
O comércio, concentrado ao redor do pátio central, contacomumsegundoandarexclusivoparaaslojas.
No centro do edifício, uma praça interna combina plantas, espelhos d'água e luz natural, criando um espaçoparaconvivênciaemomentosdepausa.











06 PROJETOS ESTÁGIO
Escritório: Studio Raio Programa(s) usado(s): SketchUp, Autocad e Enscape
ProjetosrealizadosemparceriacomoescritóriodearquiteturaStudioRaio,duranteoperíododeestágio.
PROJETOCM

PROJETO JF









07 RESIDÊNCIA UNIFAMILIAR
Aluna: Laila Abinader e Manuella Padilha
Disciplina: Projeto Aplicado: Residência Unifamiliar (2023 1)
Professora: Beatriz Chimenti
Programa(s) usado(s): SketchUp, Revit e Kerkythea
O projeto trata-se de uma casa na Barra da Tijuca, Rio de Janeiro, que foi pensada para um casal com dois filhos e a avó da família. Desse modo, analisamos as exigências, a rotina e os hobbies de cada um, a fimdeproporcionarumambienteagradávelefuncionalparaafamília.
A casa se encontra em um terreno comprido e em aclive. Assim, visando o aproveitamento do terreno e a vista para o mar de diversos pontosdacasa,osambientesforamdistribuídosemtrêsblocos.

Oconceitodoprojetofoibaseadoemtrêspalavras:acolhimento,bucolismoevivacidade.Buscamos,então,trazer paraacasaelementos queremetessemaoconceito,comoamadeira,apedraeaforteintegraçãocomanatureza










08 DIAGNÓSTICO URBANO - MADUREIRA
Aluna: Laila Abinader e Rodrigo Saintive
Disciplina: Mapeamento Digital (2023 2)
Professora: Ticianne Ribeiro
Programa(s) usado(s): Qgis

Nesse trabalho, realizamos um diagnóstico urbano do bairro Madureira,noRiodeJaneiro. Através do Qgis e do auxílio dos programasGoogleEarthPro,Open Street Maps, Imagine Rio, Data Rio e Street Mix, analisamos aspectos como zoneamento, transporte e aspectosbiofísicos





Além de seu valor estético, o desenvolvimento de mapas personalizados possibilita um melhor entendimento das questões apresentadas nele, uma vez que é possível selecionar as informações desejadas,modificarascores, adicionartextose pins.

09 PATRIMÕNIO
Aluna: Laila Abinader e Bernardo de Bem Disciplina: Patrimônio e Técnicas Retrospectivas (2023 2)
Professora: Karolyna Koppke Programa(s) usado(s): Autocad
Nesse trabalho, analisamos as fachadas de um edifício localizado entre a Rua do Teatro e a Rua Sete de Setembro, no Centro do Rio de Janeiro É uma construção preservada e localizada na APAC denominada CorredorCultural.Dessemodo,visandoamanutençãodesuasfachadas,foirealizadoumestudoseguidoda identificaçãodaspatologiasexistentesnelas.Apósesseprocesso,indicamosasmelhoressoluçõesderestauro paraessaspatologias.
REMOÇÃODOREVESTIMENTOCOMPROMETIDO LIMPEZA APLICAÇÃODEARGAMASSAEADIÇÃO DENOVASJUNTASDEMOVIMENTAÇÃO
SUBSTITUIÇÃOPORNOVOSELEMENTOSQUESIGAM APROPORÇÃODOSELEMENTOSANTIGOS FEITODE FORMAQUEEVITEOFALSOHISTÓRICO
SULCADAEM V HIGIENIZADAE PREENCHIDACOMARGAMASSACOMPATÍVEL CONSOLIDAÇÃOSEGUIDADETRABALHO COMMATERIAISSEMELHANTES
ABERTURAELIMPEZADAFISSURA PREENCHIMENTO COMSELANTE FITADEPOLIÉSTERTNTEMASSA ESPECÍFICAPARATRATAMENTO
HIGIENIZAÇÃOELIMPEZACOMOAUXÍLIO DEÁGUAEMALTAPRESSÃO ALÉMDE AGENTESQUÍMICOSEESCOVAÇÃO

REMOÇÃODOANTIGOREVESTIMENTO LIMPEZAEAPLICAÇÃODEUMANOVAARGAMASSA
HIGIENIZAÇÃOELIMPEZAREALIZADA ASECO UTILIZANDOPINCÉIS ESCOVAS EOUTRASFERRAMENTASAUXILIARES
HIGIENIZAÇÃOELIMPEZACOMOAUXÍLIODEÁGUAEM ALTAPRESSÃO ALÉMDEAGENTESQUÍMICOSEESCOVAÇÃO
ABERTURAELIMPEZADAFISSURA PREENCHMENTO COMSELANTEFITADEPOLÉSTERTNTEMASSA ESPECÍFICAECOMPATÍVELPARATRATAMENTO HIGENIZAÇÃO
APARENTESMANUTENÇÃODOSFIOS
LIMPEZACOMSUBSTÂNCIASQUÍMICAS COMOSOLVENTES REMOVEDORESDE FERRUGEM ALÉMDETRATAMENTOQUÍMICO PÓSLIMPEZA AFIMDEEVITARNOVASCORROSÕES
TRATAMENTO UTILIZANDO SUBSTÂNCIAS QUÍMICASCOMOHERICÍDAS APLICAÇÃODEFUNGICIDAERETIRADA COMRASPAGEMCUIDADOSA
RETIRADADASINSTALAÇÕES MANUTENÇÃODOSFIOS EREORGANIZAÇÃODEMANEIRACORRETA





Aoanalisar oedifícioeseuentorno,concluímosque ele possui uma tipologia que pode ser notada em outrosasuavoltaequesetratamdeconstruçõesde dois a quatro pavimentos, sem afastamento, com janelas e portas arqueadas, possui sacada, sua fachadacontacomadornossimples



10 CRECHE CASA NA ÁRVORE
Aluna: Laila Abinader e Bernardo de Bem Disciplina: Projeto Aplicado: Projeto Institucional (2023 2)
Professora: Núbia Nemézio
Programa(s) usado(s): SketchUp, Revit, Autocad e Enscape
AcrecheCasanaÁrvoreestálocalizadaentreaRuado TeatroeaRuaSetedeSetembro,noCentrodoRiode Janeiro.O projeto foi construído em dois terrenos: o 1° abrigava uma antiga edificação preservada e o 2° era umalacuna.
Os principais conceitos da creche são ecologia e dinâmica.Buscamostrazeraquestãodaecologia,visto que é um conhecimento importante para a formação do ser humano. Assim, a creche contará com elementos e atividades que promovam a noção de ecologia e sustentabilidade. Além disso, reproduz uma creche com bastante dinamismo. A ideia é criançasesintalivreparasedesenvolvernosambi e explorar de várias formas o edifício, explorand autonomiaecriatividade.

Avenid a Passos RuaLuisdeCamões
RuadoTeatro
RuaSetedeSetembro
RuadaCarioca


Conjuntosócio-pedagógico
Conjuntodeassistênciae atendimentoàcriança Serviçosgerais
Conjuntotécnico administrativoepedagógico











11 PRANCHAS
Programa(s) usado(s): Indesign, Canva e Photoshop




MARÉSDOPORTO
RESIDENCIAL E COMERCIAL
O LOCAL
Ocondomínioseráimplantadoemum
terrenolocalizadonaesquinadaRuaPraça MarechalHermescomaRuaGeógrafoMilton Santos,nobairrodeSantoCristo,quecompõea regiãochamadadePortoMaravilha,noRiodeJaneiro
O CONCEITO O PROGRAMA
InspiradonaproximidadecomaBaíade Guanabara,ocondomíniotrazelementos que remetem ao mar e à história marítima do Rio de Janeiro Desse modo, faz o uso de curvas em elementos como varandas, piscina, canteiros, paredes e paginação Além disso,buscandodestacarosacessos,as entradas dos blocos foram inspiradas emumnaviovistodelado
A área residencial possui um extenso e diverso espaço de lazer, incluindo piscina, salão de festas, academia, brinquedoteca, sala de jogos, cinema e coworking O condomínio conta com dois blocos, onde estão disponíveis apartamentos de 1, 2 e 3 quartos Já a área comercial, localizada no embasamento,comporta,alémdeumamploespaço livre para lazer e relaxamento do público com mobiliáriourbano,restaurantes,lanchonetes,farmácia, academia,mercadoedemaislojas
Aluna:LailaRochaAbinader Curso:ArquiteturaeUrbanismo
Disciplina:ProjetoEdifícioVertical Professor:MarcoMilazzo
Datadeentrega:24/06/2024
Apto1QT-60m²

Apto2QT-77m²








COMPLEXOCOMERCIAL:VIVA
Curso:ArquiteturaeUrbanismo
Disciplina:ProjetoEdifícioComercial Professor:MarceloVinícius Datadeentrega:27/11/2024
O LOCAL
Ocomplexocomercialseráimplantadoemumterrenolocalizadoentrea AvenidaAlmiranteJúlioSáBierrenbach,aRuaHenriqueLahmeyerdeMelloea AvenidaAntônioGallotti,nobairrodaBarradaTijuca,RiodeJaneiroSituadoaolado doShoppingMetropolitano,oterrenofazpartedeumaáreaemconstantedesenvolvimento, sedestacandocomoumimportantepolocomercial,atraindoempresaseserviços
O PROGRAMA
Oprincipalconceitodoprojetoépromover ambientes de trabalho saudáveis, que colocam o bem-estar dos trabalhadores como prioridade Desse modo, busca transformar o local de trabalho em um ambientequeenergize,inspireeestimulea criatividade e produtividade, ao mesmo tempoquefavoreçaasaúdefísicaemental
O projeto conta com uma área pública, com mobiliários, paisagismo,quiosquesdealimentaçãoeplayground Notérreo,há empreendimentos voltados para a rua, como lojas, farmácia, academia,lanchoneteserestaurantes,alémdeumauditóriocom foyeresalasdereunião Oedifícioécompostopordoisblocos conectadosexternamenteapartirdoterceiropavimento,destinados aescritóriosesalascomerciais,incluindoáreasdedescompressão, comorooftopspanorâmicosepassarelasdedescanso


A FORMA
Aformaorgânicadoedifício,aliadaa umaestruturaqueremeteaumaonda emseutopoeàsdiferentesalturasdo complexo,foiprojetadaparatransmitir leveza e fluidez ao ambiente Simultaneamente, cria uma estrutura imponente, capaz de se destacar em relaçãoaosedifíciosdeseuentorno










lailaabinader.arq@gmail.com

http://wwwlinkedincom/in/lailaabinader