



06 10 14 18 22 24


ARAD 410-420
![]()




06 10 14 18 22 24


ARAD 410-420
ARAD 402
ARAD 401
ARAD 301
WORKS FROM INTERNSHIP AT CHIMELIS ARCHITECTS
MODERN HOUSE DESIGN SOLD AS-IS
LOCATION: AGUADILLA, PR
PROFESSORS:
P. ROSARIO
SEMESTER:
FALL 2023-SPRING 2024
CLASS:
ARAD 410-420 CAPSTONE YEAR
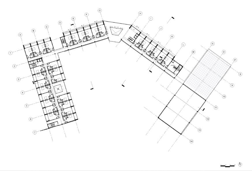
VISTA is a hotel located in Ramey Base in Aguadilla, Puerto Rico. The project seeks to help veterans who suffer from post-traumatic stress disorder (PTSD) reintegrate into society by helping, not only with the psychological treatment they may need, but also helping them transition into life as a civilian by teaching them different social and life skills.
It is estimated that 30% of personnel deployed in Iraq & Afghanistan require some sort of treatment for mental health, however, only half of those receive any treatment. Many times, those who need treatment do not seek it due to accessibility issues like travel time, or because the place is simply not appealing or attractive. By offering a place that is not a hospital nor an “in-patient” psychological institute, the opportunity to receive treatment is provided without necessarily feeling the obligation to stay there, as would be the case of an “in-patient” psychological institute. The project seeks to offer wellness retreat services in which the person, at the beginning of their stay, agrees to receive treatment while enjoying other types of “wellness” amenities such as spa, acupuncture, chiropractor, among others. The project, therefor, is a hotel that seeks to offer mental-health-focused medical services in way that is more attractive and more relaxing than a psychiatric hospital.




RENDER
MAIN ENTRANCE











LOCATION:
SAN JUAN, PR PROFESSORS:
J. BONNIN + M. DE LEMOS
SEMESTER:
SPRING 2022
CLASS:
ARAD 402 URBAN SCAPES & COMMUNITIES
Living Terrariums is a project located in San Juan, Puerto Rico in the year 2100. The main focus of the project is to adapt to the projected 6 to 9 ft of sea level rise and loss of dry land as well as the goal of reconnecting humanity with nature. The project aims to focus on sustainability by creating its own microclimate the same way a terrarium does: recycling water and maintaining its humidity & temperature controlled. The project is a mixed use building consisting of commercial, offices, ferry terminal, villas and apartments. San Juan and Puerto Rico in general have a very mountainous terrain. The mountains, called “mogotes” in Spanish, consist of sedimentary layers of eroded limestone. These “mogotes” oftentimes go through orogenic cycles that cause dolines (or sinkholes) to form. Taking these mogotes and their cycles as inspiration for the shape of the volcano structures leads to the shape and form achieved at the end of the semester and presented below:






ELEVATION (WATER SIDE)
(a) Street View from Arterial B Avenue



LOCATION: AGUADA, PR
PROFESSORS:
L. CAMAÑO + N. RIVERA SEMESTER: FALL 2021
CLASS: ARAD 401 LANDSCAPE DESIGN
This Urban River Park is situated between Nativo Alers Ave and San Jose St, right in Aguada’s urban tissue. The site is currently overflown with vegetation and old wooden structures, some of them in rough shape or abandoned. The proposal aims to provide homes in better condition for the current residents as well as provide a useful space for neigborly interaction. Taking advantage of the municipality’s abundant rainfall and the creeks in the site, while also considering the underutilization of hydrological sources & green spaces, the park proposes a rainwater retention pond that will best serve its purpose in times of drought. The park proposal also counts with cycling and pedestrian lanes, as well as a community garden, picnic areas and a large accesible playground perfect for kids with both visible and non-visible disabilities.





(a) Apartments: View from jogging trail
(b) Commercial/Residential buildings: View from park
(c) Kids playground: View from wheelchair & scooter race-track



LOCATION:
PONCE, PR
PROFESSOR:
C. QUIÑONES
SEMESTER:
FALL 2020
CLASS:
ARAD 301 BUILDING TECHNOLOGY & SUSTAINABILITY
Adattare is a mixed-use building with two retail spaces, a restaurant, coworking offices, a private rooftop lounge and other amenities. It is located in Ponce, Puerto Rico in Salud St corner with Campeche St. The name adattare comes from the concept “adapt”, in italian. The building “adapts” to the situation with the 2020 Covid-19 pandemic in various ways: the residents have outdoor green space both on the first and last level, the amenities focus on giving the resident the opportunity to self-isolate (to-go food retail, salon and spa, gym, study lounge, infirmary) and the apartments adapt for pandemic living by having views, natural ventilation, disinfection closets by the entrance and some have a separate master bedroom in case a family member gets sick. The residents also have the opportunity to socialize with neighbors from their balcony.
SHAPE PROGRESSION DIAGRAM

APARTMENT FLOORPLANS
STRUCTURAL DIAGRAM



























































































LOCATION:
CAGUAS, PR
INTERN WORK FOR: CHIMELIS ARCHITECTS
Renderings done for residential proposal for Las Nubes Development in Caguas, Puerto Rico.
PROGRAMS USED:
Revit for 3D Model
Enscape for Rendering







LOCATION: Puerto Rico
Original design for house that could be built anywhere in Puerto Rico under the guidance of a licensed professional (Architect or Engineer). The idea behind the plans is to be able to sell the plans to an owner of a piece of land and have them be able to construct the house on their own .
PROGRAMS USED: Revit for Plans & 3D Model AutoCAD for Elevations dwgs Twinmotion for Rendering Photoshop for Post-production editing



EXTERIOR FACADE RENDERS


https://lacevedosantana.myportfolio.com/ arq.lacevedosantana@gmail.com

