Skip to main content

Design Thesis - Emergency Response Center

Page 1


“A

Petroleum, Chemical and Petrochemical Investment Region (PCPIR) would be a specifically delineated investment region with an area of around 250 square kilometers planned for the establishment of manufacturing facilities for domestic and export led production in petroleum, chemicals & petrochemicals along with the associated services and infrastructure.”

- PCPIR Policy, Government of India

WAY FORWARD:

Dahej is one of the rapid developing and highly industrialized zone in country. The unique feature is that Major Accident Hazard (MAH) units are located in Dahej. More than 700 companies have been plots allotted at Dahej by GIDC. The majority of are of hazardous nature. Presently there is no formal organization with adequate facilities operating in Dahej to fight with the natural/manmade calamities. With around 55,000 Crore industrial investment coming up in the region, there in much needed impetus to be given to the set up and Emergency Response Centre(ERC), which would look into the safety and development of area.

About Disaster Management Centre (DMC), Dahej

Disaster Management Centre (DMC), Dahej was established in the year 2008 by Dahej Industries Association. The purpose for the establishment was a step towards prevention and mitigation of disasters, accidents, fires and losses arising out of any mishap with the support of state and central government and give the needed support.

This was formally merged with Dahej Eco-Friendly Society (an organization promoted by Dahej Industries Association) in the year 2010. The purpose for merger of DMC with DEFS was to thoroughly look into Dahej Industrial region and co-ordinate all round development which was to include not only fight with natural/manmade calamities, but also to give support to all the member organization on safety and environmental issues.

EXISTING SITE AREA: 1000 SQ.MT

EXISTING FACILITIES: FIRE STATION WITH PROVISION OF 3 FIRE BRIGADE TRUCKS, EMERGENCY CONTROL ROOM, OFFICES OF DAHEJ INDUSTRIES ASSOCIATION, 2 ROOMS FOR TRAINING WORKSHOP PURPOSE.

Initially DIA has been allotted 1000 Sq. Mtr land at GIDC

Dahej industrial area at plot no. 715/01, for establishing DMC Centre. It was found that to establish a full fledged DPMC (ERC) at least 10,000 Sq. Mtr land required.

Basic Program Structure:

Conceptual Diagrams

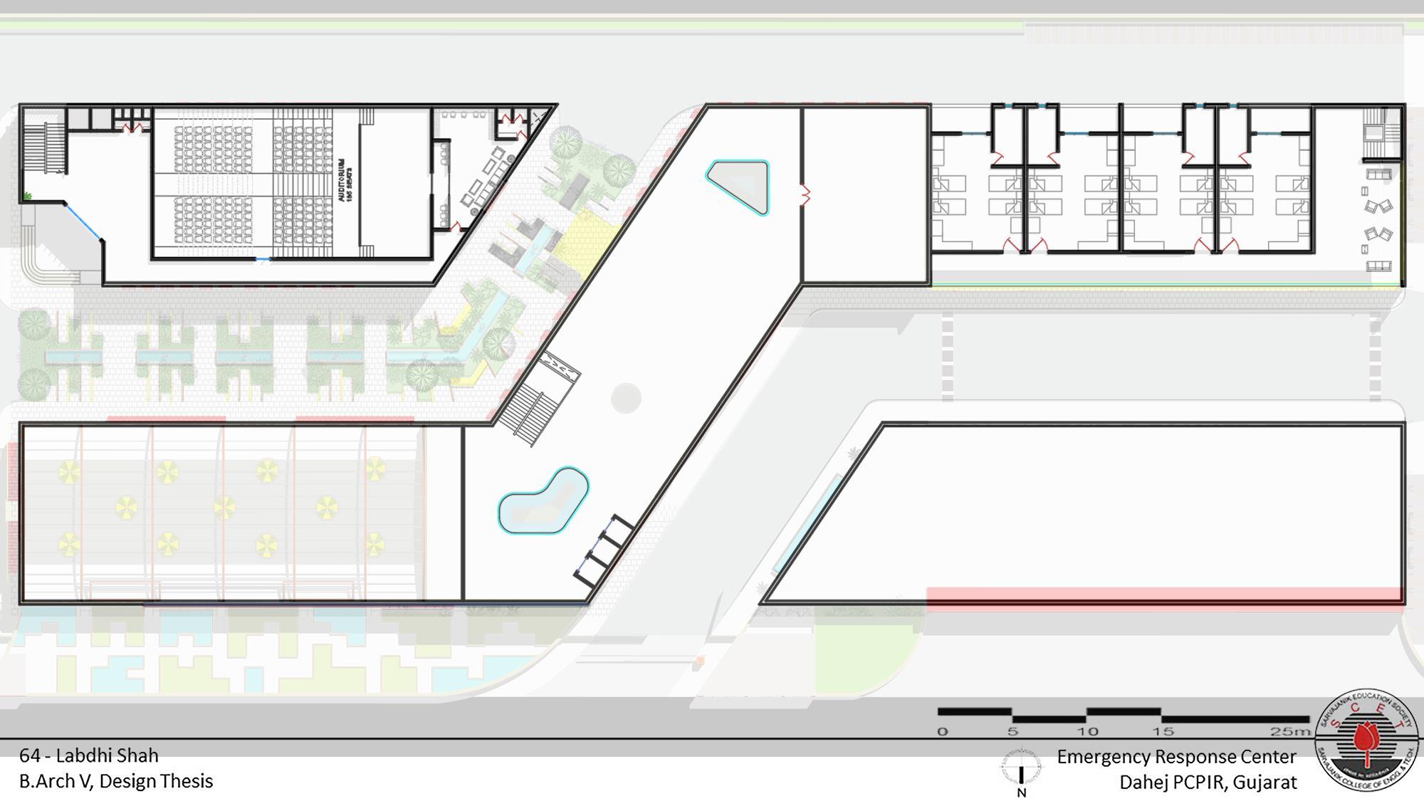
• Site is designed and divided of 5 departments.

• Parking area and outdoor training area.

• Pipe corridor is used as parking area

• Outdoor training area can be used as an evacuation space in case of emergency.

Cafeteria Fire Apparatus
Reception
OHC
Machinery Room, Maintenance area, Store room and Staff waiting

Classrooms & Library

Conference Room Staff Quarters

Cafeteria
(Only for Office Use)
Double Heighted Fire Apparatus

Second Floor Plan:

Auditorium of 155 person capacity can be used as multipurpose hall. It has retractable seating.

Staff Quarters
Rooftop Farming
Auditorium

Auditorium

The passive greenbuildingtechnology isemployed, which emphasizes natural lighting and ventilation, to introduce green plant indoor by balcony and yard, so as to explore the practice of energy efficiency.

First Floor (Emergency Operation Center (EOC)) Ground Floor (Reception & OHC)

• The Section shows the activities happening at Training Department, OHC and Staff Quarters.

• Ground Floor- Admin

• First Floor – Classrooms

• Second Floor – Multi-purpose hall (Retractable Auditorium)

• Ground Floor – OHC (Doctor’s room, Ward (10 bed))

• First Floor: Emergency Offices and conference room

• Ground Floor – Machinery, Maintenance and Store area

• First & Second floor – Staff quarters

Column Size: 1.5 mt.*0.6 mt.

-SHEER WALLS IN THE SERVICE CORES WHICH HOLDS THE BUILDING FROM THREE DIRECTIONS.

-SESMIC GAP OF 1 MT. AT 3 PARTITIONS OF BUILDING WHICH WILL RESIST THE BUILDING TO TWIST FROM EARTHQUAKE LOAD.

Room (First floor)
Staircase Restrooms
Plumbing Duct Fire Duct
VRV Duct
PRESSURISED DUCT

Solar shading (Box Windows)

Solar shading (Automated Vertical louvers)

Self-Shading

Capture Wind

Rain Water Harvesting (Landscape irrigation cistern)

Solar Shading (Façade Design)

Bi-foldingoperablevents-

As a strategy, a long narrow footprint is divided to engender a public court that establishes both a visual connection as well as a functional connection to the officebuilding.

Enhanced occupant comfort and a significant reduction in energy consumptionareachievedbythenaturallightandventilationcoming intothebuildingthroughlouvers,bi-foldingoperablevents,andglass shingles.Eachtypeofcladdingsatisfiesfunctionalneeds.

MATERIAL SPECIFICATION:

The approach is to reduce energy use and greenhouse gas emissions associated with the construction industry by introducing alternative materials derived from unused or currently underutilized industrial wastes and byproducts of this area (PCPIR Region, Dahej).

Alkali-activation – the reaction of aluminosilicate precursors, such as ashes, clays, and metallurgical slags, with alkali-rich aqueous solutions – affords us the opportunity not only to divert such aluminosilicates from landfill, but also to reduce reliance on conventional building materials, such as cement and fired-clay bricks, which exhibit inherently large environmental footprints.

Biomass ash bricks are made of waste materials that come from the combustion of coal in chemical and thermal power plants.

- Labdhi Shah
- Labdhi Shah
- Labdhi Shah
- Labdhi Shah

Turn static files into dynamic content formats.

Create a flipbook
Design Thesis - Emergency Response Center by Labdhi Shah - Issuu