Arch. Portfolio Long

Page 1

Architecture Portfolio

Long Lau

Name:

Contact:

School: Long Lau longtlau@gmail.com

Cal Poly SLO

2

Long Lau

Pursuing entry level designer position to assist in projects, and to collaborate in a team with the anticipation of making positive impacts on communities with architecture.

Work Experience

Design Professional | Shin Shin Architecture

LA | Oct 2023 - Jan 2024

• Actively updated 3D Models, 2D drawings, and sheetings for multiple projects using Rhino 3-D to keep the files up to date for further use

• Conducted comprehensive precedent research on aesthetics, moods, and formal clarity in aiding the presentation to stay on task with the client’s vision

• Created presentation layouts from the SD to DD phases with specific floorplan design decisions and render views from Enscape. Essentially, helping the Design Principle organize and narrow down a clear presentation for the client

• Construction site visits with Design Principle to learn about the process of construction as well as documenting the site for accuracy on existing drawing sets

• Responsible for office daily’s; organize tools, material sample, and maintain office supplies in case of need

Design Professional | West of West LA | Jan 2022 - Sep 2022

• Participated in Echo Park Co-living AIA 2022 NEXT LA Merit award; produced the siteplan, floorplans, and physical model for the competition submission

• Responsible for the fabrication of physical models from start to finish through lazer cutting methods for multiple projects. Creating 1’-0” =1/8” to 1’-0” =1/2” scale models for representation and for spatial studies

• Engaged in continuous learning through the mentorship of experienced architects by collaborating on design decisions in team meetings

Skills

• Rhino

• Autocad

• Revit

Educational Travel

LA Metro Program | Cal Poly SLO Jan 2022- Jun 2022

• Participated in an internship while in school

Rome Program | Cal Poly SLO Sep 2021- Dec 2021

• Participated in designing the riverfront for class project Education

California Polytechnic State University, San Luis Obispo 2018-2023

• Bachelor of Architecture | 2023

3
3-D Modeling
Adobe Softwares
Photoshop
Illustrator
Indesign Rendering • Lumion • Enscape • Twinmotion
longtlau@gmail.com
Hobbies
Info Los Angeles
(626) 632-8882 Languages Vietnamese Fluent Cantonese Native

Table Of Contents

4

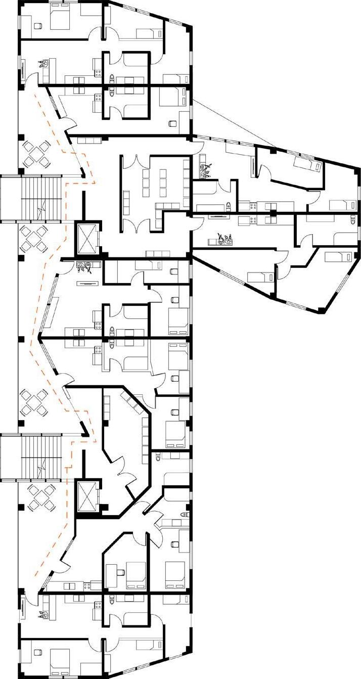
Serene Hub Residents (SHR) 5th Year Thesis

Reproposing an alternative design option rather than a capitalistic highrise apartment approach

Location: Tân Phú, Thành Pho Ho Chí Minh

Total ~900,000 sq. ft

Tiber River Front (TRT)

Residential building and river front with public space

Location: Tiber River, Rome, Italy

Total ~50,0000 sq. ft Fall - 2022

Automatism Youth Establishment (AYE)

Mix use project for transitional youth housing

Location: 1380 E 6th St, Los Angeles, CA 90021

Total

Community Space center (CPC)

Revision of river front and on site housing units

Location: Powell Bart Station, San Francisco

Total ~90,000

5
Winter +
-
~200,000 sq. ft
Spring
2021
sq.
Fall - 2020
ft
Fall + Spring -
Work Sample Fall + Summer 2022
14-21 22-29 30-33 34-38
2023
6-13

Serene Hub Residents

Coverting existing plot of land into three communal residential hubs that prioritizes sustainable models of living for the local residents. Rather than to be gentrified into skyscaper towers that prioritize commercial development with high energy usasge model.

6
Shared Spaces
Growth
Ventilation and Stacked Ventilation
Communal
Vegetation
Cross
7
8 Master Plan
North Facing Section

Green Spaces

Social Spaces

9

Atrium for stacked effect & water retainer

Roof gardening

Exterior circulation

White translucent panel

Single studio

Parapet planters

Resident’s circulation

Family housing

Social spaces

Main public circulation

Retail/office

Open

Increase

Mounted solar panel

Cool

100’-0”

78’-0”

67’-0”

56’-0”

45’-0”

34’-0”

23’-0”

22’-0”

11’-0”

Heat

10
Small business owned services and product retails air and exterior circulation, increase interactions greenery plantations and lower overall temperatures air sinks fron prevalent winds + cool temperatures from plants exhaustion through roof and openness of areas

Roofing

Typ. Interior Atrium

Stacked Effect In The Atrium Cold Air Sinks, Hot Air Rises Rain Collected Through Roof

Water Tank Collector To Distribute To Units

Aluminium Cladding & Panel Clip

Water Barrier

Drainage

Wood Rafters

Steal Beam Set Roof Shape

Steal Beam Set Roof Shape

Bolt To Steel Column Parapet

2x4 Wood Studs

3” CLT Bamboo

1.5” Metal Decking

Drainage

Slots For Batterns

Steel Beam

Steel Girder

Sill Sealer

Ceiling Panel

Steel Girder

Fire Blocking

Concrete Column

Veneer Brick

Water Barrier

Single Hung Window

Water Pipe

Rain Water Tank

Typ. Exterior Wall

Grout

Soil Pocket

Wood Panel Railing

Sliding Glass Door

Insulation R-21

2x4 Metal Stud

Flooring Finish

3” CLT Bamboo

C Channel Metal Seal

Drainage

Metal Bolt

6” Duct

Panel Clip

Flashing

11
Soil
Nail
Root Barrier Floor
Tiles
Planters
& Atrium Connections
Physical Model Roof Gardening Social Space

Tiber River Front

The lack of engagement facing the river front creates a lifeless corner filled with parked cars. Carving an accessible path with an exhibition to showcase community artworks, encourage crowds to lighten the corner. Relocating car accessibilities to under level and give residents additional storage space to lighten up the above area.

14
Accessible through ramps Increase interaction under bridge with interior exhibition of local artists Underground car access and storage relieving clutters Reorganized housing to give shared utility spaces
15
Italy, Rome Ramping to water front Underground excavation for car access and storage Adding skylight to exhibition and underground car pass
Below Level Floorplan
South Facing Section
Apartment Typical Floorplan
18
West Facing Elevation
19 Interior Social Spaces
20 Idea Sketch Inside Exhibition Space
21
Overall Ramp Experience

Automatism Youth Establishment

An aid institution in homelessness for the age group of 18-24. Providing proper resources to reintergrate individuals into society after being admitted into a program the institution provides.

Institution prrioritize the success of each individual rather than to admit high amount of residents.

Essentially creating a cycle of established groups to help the future residents.

Reintegrate 18-24 year olds to society based on yearly programs (1-5)

Provide sufficient resources to create productive members of society

Ease of interaction in open spaces and circulation, reduce singularity spaces

Break bad cycles and introduce optimistic behaviors

22
23
Mass carving for circulation and skylight Introduced ramp circulation
Introduced community platforms Los Angeles

Gridded steel structures

Steel trusses, steel columns and cross bracing steel rods

Steel I beams and steel rods

Housing Units

Open community space

Coworking Spaces

Connecting To Public

Educational Resource Spaces

Commercial Storefront

24
25 HVAC Thermal Clips 3/8” Gypsum WRB Insulation Girt Perforated Metal Panels Cladding Clips Terra Cotta Eco 22 Winter Sun 40 Degree Summer Sun 75 Degree 1” Air Gap Rigid Insulation 6” Steel Cold Frame Fireblock 6” Concrete Corregated Metal Duct HVAC Distribution Springkler SL6L TUWH Linear Suspended Light Rigid Insulation & Vapor Retarder 4” Compact Sand 4” Gravel Pier Foundation To Bedrock Ground Floor 3rd Floor 4th Floor 5th Floor 10th Floor 11th Floor Acoustic Absortion Foam East Facing Section Scale 1-1/2”=1’ 0’ 5’ 15’
26
2
Housing Unit
1 Resources Space
27 2 1
1 2 Community Space Double height transitionary units Coworking Spaces
28
Community Space 1
1 Community Space
29 1
Space 1 1
Community

Community Space Center

An infrastructure built next to the metro station that provides the connection resources for those passing by or entering the city. Showcasing community cultures through different catergory on different floors.

San Francisco

Encourage engagement in community’s events through gallery/theatre

Provide resources to the community, learning space, gaming and working pods

Put spotlights on different niches of cultures in San Francisco

New travelers welcomed to the city

30
31 Vegetation facade to open space Massing setback for light and space Massing programs
32
2nd Floor Recreational Spaces 3rd Floor Food Court Spaces
South Facing Section

Circulation Experience

Undeground Theatre

Resource Spaces

Gallery Experience

33
East Facing Section

West Of West Internship

Echo Park Co-Living

35
Sets
Floorplan
Siteplan

Facade Model

Modeling a facade condition for West of West Architectural firm to test the light and spatial conditions. Projects from BLOCK 1 and BLOCK 2

Representation Drawings

Exploring ways to show connectivity in drawings for West of West Architectural firm through isometric diagramming and floor plan. House of four parts project.

38
Isometric Diagram Community Living Floor Plan

Turn static files into dynamic content formats.

Create a flipbook
Issuu converts static files into: digital portfolios, online yearbooks, online catalogs, digital photo albums and more. Sign up and create your flipbook.