KYLE WONG 2024-2025 SELECTED WORKS

![]()

Aug 2024
Education
Sept 2022 - Present
437 983 0602
kyle1.wong@torontomu.ca
www.linkedin.com/in/kyle-wong-
Toronto Metropolitan University
⢠Paid assistant for the 75th Anniversary DAS BASH Exhibition
⢠Designed and fabricated a 1:25 model of the TMU Architecture Building
⢠Meetings and collaborations with the chair, workshop technicians, and colleagues to conceptualize and refine the design of the model.
⢠Utilized shop resources, tools and machinery, and full scale mockups to ensure high quality craftsmanship
Architectural Science (Honours) COOP, BArchSc
Toronto Metropolitan University
⢠2024 Deanās List
⢠2023 and 2024 works featured on Year End Show (YES)
Extracurriculars
Jul 2024 - Present
Event Executive
Architectural Science Student Society (arc.soc)
⢠Planning and execution of events such as DAS Orientation, AGM, and the Student Formal
⢠Develop event schedules, manage budgets, and ensure efficient allocation of resources
⢠Delegate tasks to subcommittee members and oversee their completion
⢠Lead event related meetings with stakeholders and team members, providing direction, support, and clear communication to achieve event objectives
Sept 2024 - Present
Peer Mentor
Toronto Metropolitan University Architecture Course Union (ACU)
⢠Serve as a positive role model, assisting mentee by answering questions, providing constructive feedback and academic support
⢠Maintaining regular communication with my mentee to build a trusting and productive mentoring relationship
Skills
⢠AutoCAD
⢠Revit
⢠Rhinoceros 3D
⢠Sketchup
⢠Enscape
⢠Photoshop
⢠Illustrator
⢠Indesign
⢠Model Making
⢠Laser Cutting
⢠CNC

Project: Academic
Year: Winter 2024
Location: 218 Dundas Street East, Toronto
Typology: Midrise Residential Infill
Software: Revit, Rhino 7, Illustrator, Photoshop, D5 Render
Edge is a proposal for the missing middle attempting to answer how density may take its form in Downtown Toronto. The apartment style housing features 32 units from 1 to 3 bedroom suites aiming at providing equitable housing and renting for students and artists with varying incomes. The building also features a public art studio and daycare center to engage the community. The buildingās rear garden is a communal food production hub, addressing food insecurity exacerbated by rapid inflation. The building features integrated photovoltaics on its south frontage, allowing opportunities for a decentralized power grid.














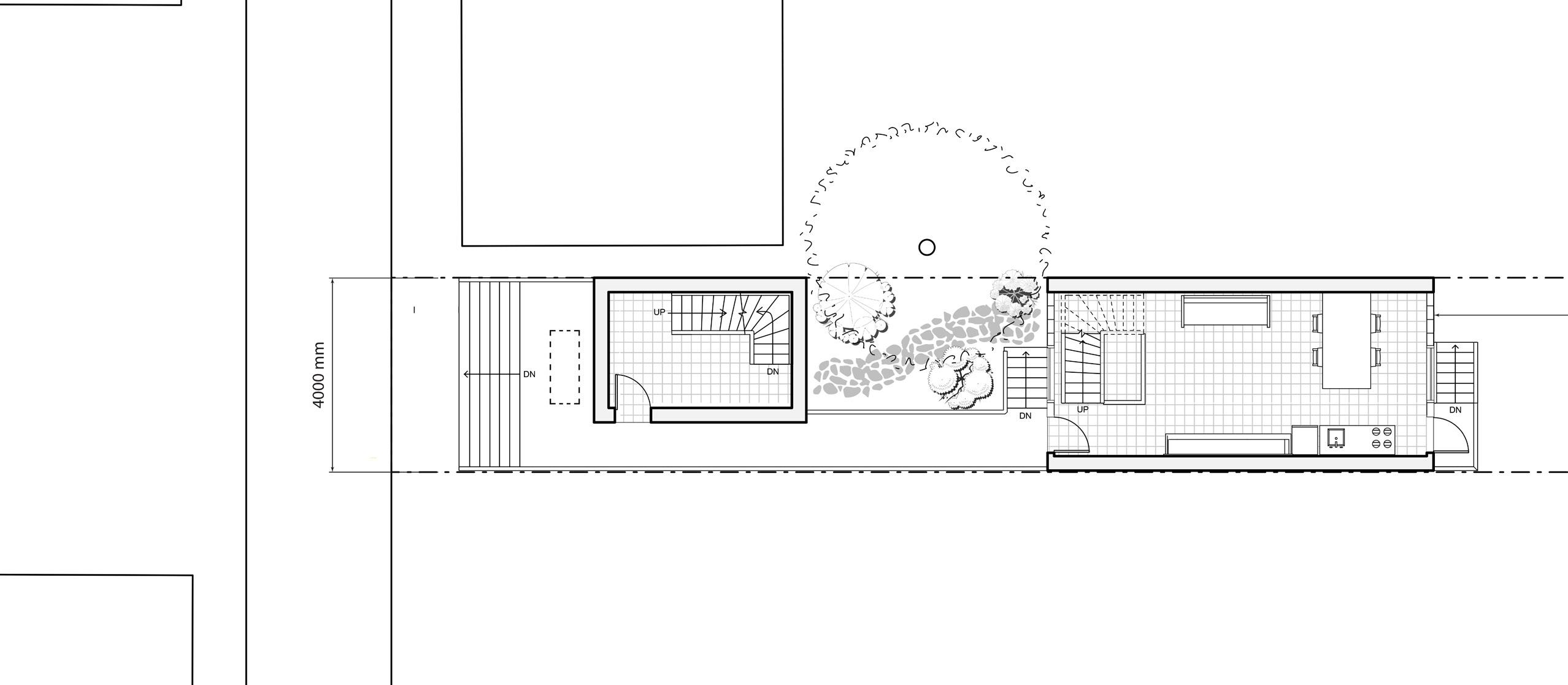
Project: Academic
Year: Winter 2024
Location: 224 Seaton Street, Toronto
Typology: Laneway Residence
Software: Revit, Illustrator, Photoshop, D5 Render
Laneway houses are a response to providing affordable housing through a complex relationship between the cityās push for densification and strict zoning by-laws. 224 House works with these restrictions while providing two private outdoor spaces for both units, aiming to improve the quality of life of these tight living conditions.











Project: Academic
Year: Fall 2023
Location: 64 Church Street, Toronto
Typology: Community Library
Software: Revit, Rhino 7, Illustrator, Photoshop, D5 Render
Torontoās public libraries are shifting into community hubs providing equity, access, technology and social services. Nexus revitalizes an existing parking lot and underused POPS, aiming to activate public gallery and exhibition programs, and merge a visual and circulatory connection to St. James Park. The library doubles as a cultural and performing arts centre, providing open program spaces for learning, practice, performing and displaying. Inspired by a 1000 word poem used to teach students vocabulary, the calligraphic perforations on the veil is a symbol of learning to the predominantly Chinese speaking demographic.












Project: Academic
Year: Fall 2023
Location: Withrow Park, Toronto
Typology: Public Pavillion
Software: Rhino 7, Illustrator, Photoshop, Enscape
The pavilion celebrates Torontoās local silver and sugar maple trees, framing a poetic image of changing foliage throughout the seasons. Smooth curvilinear forms of the pavilion pull the passerby into a central enclosure with an oculus. The orientation of the bricks, angled at specific sight line nodes reveal glimpses into intimate reading areas on approach. In the interior observatory, the laying of brick patterns and reveal pronounces the earthwork, hearth and enclosure as distinct elements.









Teamates: Lincoln Uy
Project: Competition
Year: Summer 2024
Location: Punta Cruz, Bohol Philippines
Typology: Private Residential
Software: Rhino 7, Illustrator, Photoshop, Enscape
Cascade is built around the idea of the Gnomon, and its intimate relationship with the local farmerās way of life from dawn to dusk. Living spaces revolve around a sundial, acting as a signifier of time and its association with living and farming activities. These frames converge at a central prayer room, animating the spiritual space through dancing water reflections and the changing subtleness of light and shadow.





Teammates: Tiffany Chui, CIci Huang, Lincoln Uy
Project: Competition
Year: Summer 2024
Location: 3902 Muley Point Rd., Lake Simcoe
Typology: Hospice
Software: Rhino 7, Illustrator, Photoshop,, Twinmotion
Rooted in compassion and connection in end-of-life care, Crossing Paths draws inspiration from backyard and deck communities of Lake Simcoe, the veranda stands as a distinct architectural element, serving as a transitional communal space between indoors and outdoors. Its design weaves together interior programs and garden courtyards, with subtle curves and recesses encouraging social interactions from casual encounters to larger gatherings.


Roof Assembly
Mortar Topping
Bonding Layer
Waterproofing Membrane
Air Barrier
Plywood Sheathing
Open Cell Insulation
Vapour Barrier
Exposed Plywood Interior (Finish)
CLT Framing
Window Wall Assembly
Double Glazed IGU with Low-E Coating
Aluminium Clip & Transparent Silicone Joint (Seamless Mullions)
Floor Assembly
Grey Brick Tile Flooring (Finish)
Concrete Slab
Vapour Barrier
Waterproofing Membrane
Closed-cell (Rigid)
Insulation
Air Barrier
Drainage Mat
Gravel (Foundation
Substrate)
Waterproofing Membrane





Teamates: Cuejun Choi, William Youngrak Choi, Kris Chou, Tiffany Chui, Rehan Nakhooda, Ka Lee Jian
Project: Design-build
Year: Summer 2024
Project Lead: Matthew Chetcuti
Skills: Model Fabrication, CNC, Laser Cutting, 3d-modeling, Drafting, Design Iteration
The DAS Bash model is a 1:25 model of the school expressing the Architecture Building in its Tectonic form, such as the structural framing and facade panels. The operational model was built as a physical tool for the DAS Transform Project enabling 3rd year students engage with a physical model. The operational model was an opportunity to design and learn about digital fabrication and craftsmanship.








437 983 0602
kyle1.wong@torontomu.ca
www.linkedin.com/in/kyle-wong-