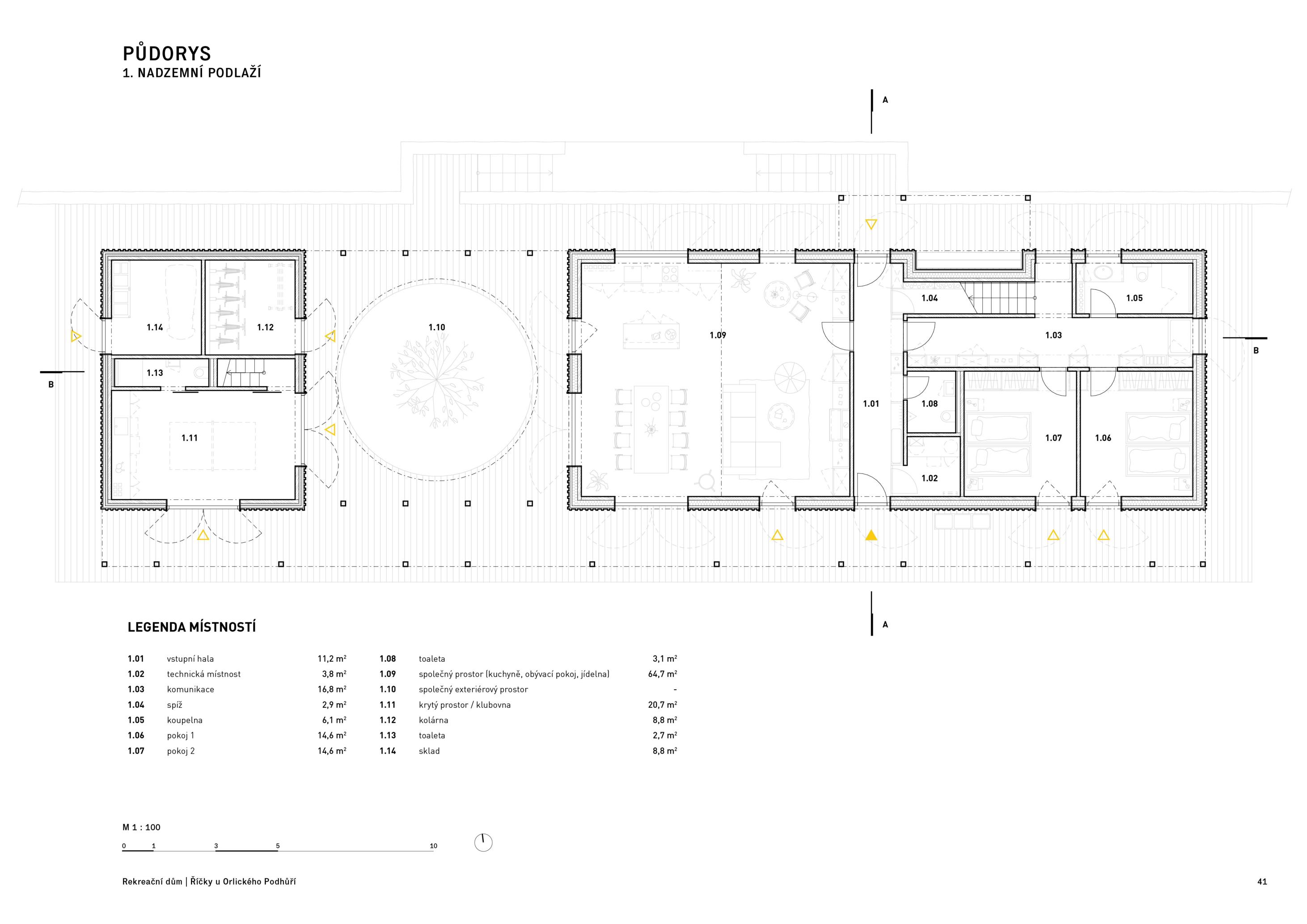
Architektonická studie je dialog. Je to složení mnoha konzultací vedoucích k objevení návrhu, jenž splňuje požadavky všech zainteresovaných stran a je naplněním tužeb klienta. Tento dokument ukazuje standard naší práce v části architekonické studie v rámci jednotlivých konzultací.