Architectural & Interior Design Portfolio | Ar.Kunal Pawar

Page 1

SELECTED WORK

PORTFOLIO
KUNAL PAWAR

AR.KUNAL PRAMOD PAWAR

Karanjade,Panvel +91 7977256394 | Ar.kunalpawar21@gmail.com

I am an architect with a year of professional experience, specializing in both architectural and interior design projects. My work blends creativity with technical skill, ensuring spaces are both beautiful and functional. I excel in team settings, driving projects from concept to completion with keen attention to detail. Committed to staying current with industry trends, I seek opportunities to contribute to innovative and sustainable design solutions.

EXPERIENCE

May 2023 - May 2024

Apr 2022 - Present

Dec 2021 - Apr 2022

EDUCATION

August 2018 - April 2023

June 2016 - May 2018

COMPETITIONS

Jr. Architect

Ravi Ghone Architects , Panvel

Freelancer

Architectural and Interior Projects

Intern

Entitty Architects , New Panvel

Pillais HOC College of Architecture, Rasayani Completed Bachelor of Architecture

V.K.High school and Junior college, Panvel Completed Higher Secondary studies

The Urban Escape - Archmello

2021 2018

2021 2019

ASI Design Olympiad

WORKSHOPS

SKILLS

MS Office

2D Drafting / 3D Modelling

Rendering

Adobe CC

LANGUAGES

Marathi

Hindi

Bricks Contruction Model | Origami

POP Cornice Design & Model | Bamboo Workshop

Word | Powerpoint | Excel

AutoCAD / SketchUp

Enscape | Lumion | TwinMotion

Photoshop | InDesign |Illustrator

INTEREST

Sketching Listening Music

Travelling Photography

English Gaming

01 CONTENTS 2022 / 23 02 08 18 26 20 30 34 3 2023/24 2023/24 2023 2023/24 2023/24 2024 2023 For High Quality Portfolio | Re-Thinking of market place at Panvel | 4BHK Bungalow Interior | Construction Office facade | Container Office Interior | 4BHK Apartment Interior |
|
|
Soceity Redevelopment
Ganesh Temple
JNPA Gate

Exploded Isometric view

| Re-Thinking of market place at Panvel

Thesis Project

The vision is to bring a change of notion in the minds on people about these markets and to improve and update the condition of existing market taking in consideration of vendors as well as users using the place,

And the aim is to Making a market by combining both modern and traditional values that will be a mixture of various public-related activities and be integrated with the urban environment to support urban activities, as well as being treated as a major magnet for the citizens of the surrounding neighborhoods.

02 | Re-Thinking of market place at Panvel
03 | Re-Thinking of market place at Panvel
Roof Plan North Elevation West Elevation
04 | Re-Thinking of market place at Panvel
Site Plan South Elevation East Elevation
| Re-Thinking of market place at Panvel 05
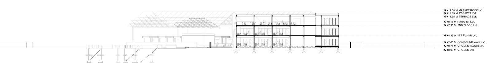
Section AA’ Section DD’ Section EE’ Section CC’ Iso-Metric View
06 | Re-Thinking of market place at Panvel
Detail D Detail A
Detail E
E C A B D
Detail C
Detail B
Detail Section

Vegetable/fruit Market View

Vegetable/fruit Market View

07
| Re-Thinking of market place at Panvel

Living Room - TV Unit

| 4BHK Bungalow Interior

Office Project - On Going

This project is a beautiful 4BHK bungalow, a perfect blend of luxury and comfort for your family.

On the ground floor, there’s a grand living room with high ceilings, creating a spacious and airy feel for relaxing and entertaining. Next to it is the devroom, a peaceful place for prayer. The modern kitchen is fully equipped with the latest appliances and plenty of storage, ideal for everyday cooking and special occasions. There’s also a cozy and stylish guest bedroom to make visitors feel at home.

The first floor features three luxurious bedrooms, each designed for ultimate comfort. These rooms have elegant furnishings, soft bedding, and private bathrooms. They provide the perfect space to relax and unwind.

This 4BHK bungalow is designed to offer a luxurious and inviting living experience, perfect for both family life and hosting guests.

08 | 4BHK Bungalow Interior

Furniture Layout Ground Floor

Furniture Layout 1st Floor

DISH OVEN/WICKER BASKET NO 2 CROCKERY UNIT TOILET
LIVING ROOM
DINING AREA KITCHEN
FR WARDROBE
SLIDING GLASS DOOR DRESSING TABLE/ STUDY TABLE TOILET TOILET TOILET SLIDING GLASS DOOR
GUEST BEDROOM DEVGHAR
AREA
WALK IN WARDROBE
SIDDESH'S BEDROOM
ROHIT'S BEDROOM
09 | 4BHK Bungalow Interior
SURESH PATIL'S BEDROOM
10 | 4BHK Bungalow Interior
Living Room Living Room
11 | 4BHK Bungalow Interior
Devghar Dining Room

Electric

Layout Ground Floor

LIVING ROOM

DISH WASHER OVEN/WICKER BASKET NO 2 TALL UNIT CROCKERY UNIT TOILET DINING AREA KITCHEN
DEVGHAR FR W.C. L-SB2B L-SB2A L-SB2 L-SB1 L-SB6 M-SB1 K-SB1 PPO D-SB1 PPM PPDW PPF PPAG K-SB2 K-SB3 PPC GB-SB1 GBT-SB1 GB-SB2 GB-SB3 EQ EQ EQ 385.0 1990.3 EQ EQ 513.4 250.0 866.1 616.1 250.0 770.9 552.0 710.0 540.0 245.0 445.0 585.0 245.0 245.0 L-SB5 400.0 200.0 BELL EQ EQ 231.0 L-SB4 L-SB3 450.0 3400.0 1256.0 PPG 150.0 500.0 944.9 500.0 1944.9 500.0 3446.3 500.0 4446.4 225.0 2663.6 225.0 3113.6 3113.6 575.0 1963.6 575.0 225.0 EQ EQ 2213.6 EQ EQ 2432.2 EQ EQ 3332.2 225.0 EQ EQ 1611.9 EQ 1650.0 EQ 3300.0 150.0 4144.3 150.1 4444.2 150.0 1026.9 1326.9 150.0 3228.0 150.0 2928.0 150.0 565.4 150.0 150.0 866.1 EQ 1237.8 EQ 2475.6 EQ EQ 1144.5 EQ EQ 1046.7 EQ EQ 1232.1 EQ EQ 1617.1 EQ EQ 1463.1 660.2 EQ EQ 350.0 3839.3 350.0 4539.3 101.8 762.0 EQ EQ 175.0 EQ EQ 175.0 350 400.1 3173.6 400.1 350 4673.7 4323.6 EQ EQ 3003.3 300 300 637.7 1275.4 637.7 2550.9 EQ 1232.1 EQ EQ 1000.4 EQ EQ 1000.0 1111.1 2222.1 1111.1 4444.2 EQ EQ 1745.4 12 | 4BHK Bungalow Interior
GUEST BEDROOM

Electric Layout 1st Floor

P-SB1 P-SB2 B1-SB1 B1-SB2 B1-SB3 300.0 200.0 B1-SB5 B1-SB4 B1T-SB2 B2-SB1 B2-SB2 B2-SB3 B2-SB4 B2-SB5
B3-SB1 B3-SB3 B3-SB2 B3T-SB1 200.0 EQ EQ 433.9 EQ 250.0 250.0 200.0 200.0 200.0 250.0 250.0 380.0 305.0 200.0 EQ EQ 200.0 PPG 200.0 PPG 200.0 PPG 200.0 300.0 300.0 150.0 B1T-SB1 B2T-SB1 EQ EQ 433.9 3276.6 395.9 125.0 125.0 3151.6 EQ EQ 4546.6 EQ EQ 125.0 175.0 EQ EQ 175.0 3399.0 3749.0 175.0 EQ EQ 175.0 3839.6 4189.6 570.0 570.0 EQ EQ 2009.5 3149.6 345.0 175.0 175.0 345.0 4184.7 EQ EQ 2709.0 345.0 175.0 345.0 175.0 3749.0 EQ EQ 1727.8 EQ EQ EQ EQ 3749.0 115.0 115.0 175.0 390.0 EQ EQ 390.0 175.0 1662.5 2792.5 EQ EQ 390.0 175.0 390.0 175.0 1158.4 2288.4 EQ EQ 1178.5 EQ EQ 1014.0 629.0 1258.0 629.0 651.3 1302.5 651.3 2605.1 EQ 1474.9 EQ EQ 1052.5 EQ EQ EQ EQ 3413.8 EQ EQ 1727.8 3796.5 4546.6 383.9 2495.5 366.2 385.2 3276.6 983.0 1310.3 983.6 980.4 2621.1 945.1 4546.6 225.0 EQ EQ 225.0 4401.4 4851.4 740.0 3371.4 740.0 2288.2 EQ EQ 2656.4 2288.2 225.0 EQ EQ EQ EQ 225.0 6782.8 7232.8 EQ EQ 4851.4 EQ EQ 3606.0 2906.8 350.0 350.0 350.0 1437.3 358.0 2137.4 3276.8 4369.1 2830.0 447.6 150.0 3427.6 3657.6 350.0 2361.0 350.0 546.1 546.1 EQ EQ EQ EQ EQ EQ EQ WARDROBE AREA SLIDING GLASS DOOR DRESSING TABLE/ STUDY TABLE TOILET TOILET TOILET SLIDING GLASS DOOR WALK IN WARDROBE SIDDESH'S BEDROOM ROHIT'S BEDROOM
PATIL'S
13 | 4BHK Bungalow Interior
B2T-SB2
SURESH
BEDROOM
14 | 4BHK Bungalow Interior
Guest Bedroom Guest Bedroom

Ceiling Layout Guest Bedroom

4" DOWN GYPSUM CEILING FALSE CEILING LEGEND 3" DOWN CEILING ELECTRIC CEILING LEGEND FALSE CEILING LINE COVE LIGHT GRID CEILING LIGHT PLY BOARD 6" DOWN GYPSUM CEILING MAGNETIC TRACK LIGHT SPOT LIGHT TRACK LIGHT TINTED MIRROR HANGING LIGHT WALLPAPER AS PER SELECTION COVE LIGHT 3" DOWN 12MM THICK GYPSUM CEILING 6" DOWN 12MM THICK GYPSUM CEILING D SECTION DD REFLECTED CEILING PLAN 2971.8 2271.9 150.0 76.4 BEDROOM -2 4" DOWN GYPSUM CEILING FALSE CEILING LEGEND 3" DOWN CEILING ELECTRIC CEILING LEGEND FALSE CEILING LINE COVE LIGHT GRID CEILING LIGHT PLY BOARD 6" DOWN GYPSUM CEILING MAGNETIC TRACK LIGHT SPOT LIGHT TRACK LIGHT TINTED MIRROR HANGING LIGHT WALLPAPER AS PER SELECTION COVE LIGHT 3" DOWN 12MM THICK GYPSUM CEILING 6" DOWN 12MM THICK GYPSUM CEILING D D SECTION DD REFLECTED CEILING PLAN 350.0 350.0 350.0 4673.6 2971.8 3973.8 2271.9 150.0 76.4 1600.2 1447.8 EQ EQ 3973.8 EQ EQ 2272.0 350.0 MARBLE LAMINATE MIRROR GOLDEN PATTI 100.0 50.0 50.0 150.0 50.0 50.0 100.0 150.0 50.0 100.0 150.0 300.0 50.0 100.0 600.0 100.0 100.0 50.0 1400.0 2971.5 3000.0 2850.0 F.F.L. 450.0 1871.5 275.0 500.0 685.7 550.0 200.0 250.0 225.0 500.0 342.9 450.0 250.0 500.0 ELEVATION (BED BACK PANEL) BEDROOM -2 4" DOWN GYPSUM CEILING FALSE CEILING LEGEND 3" DOWN CEILING ELECTRIC CEILING LEGEND FALSE CEILING LINE COVE LIGHT GRID CEILING LIGHT PLY BOARD 6" DOWN GYPSUM CEILING MAGNETIC TRACK LIGHT SPOT LIGHT TRACK LIGHT TINTED MIRROR HANGING LIGHT WALLPAPER AS COVE 3" DOWN 12MM THICK GYPSUM CEILING 6" DOWN 12MM THICK GYPSUM CEILING D D SECTION DD REFLECTED CEILING PLAN 350.0 350.0 350.0 4673.6 2971.8 3973.8 2271.9 1600.2 EQ EQ 3973.8 EQ EQ 2272.0 350.0 15 | 4BHK Bungalow Interior
Bed Cushioning & Back Panel Elevation Guest Bedroom
Reflected
16 | 4BHK Bungalow Interior
Master Bedroom 3 Master Bedroom 3

SURESH PATIL'S BEDROOM

Bedroom 3

TOILET
C C 3" DOWN 12MM THICK GYPSUM CEILING 7" DOWN 12MM THICK GYPSUM CEILING COVE LIGHT 4" DOWN GYPSUM CEILING FALSE CEILING LEGEND 3" DOWN CEILING ELECTRIC CEILING LEGEND FALSE CEILING LINE COVE LIGHT CEILING LIGHT PLY BOARD 6" DOWN GYPSUM CEILING MAGNETIC TRACK LIGHT SPOT LIGHT TRACK LIGHT TINTED MIRROR PROFILE LIGHT 7" DOWN GYPSUM CEILING 125.0 1203.7 549.4 1549.4 1204.7 75.0 175.0 125.0 125.0 125.0 125.0 3903.9 4301.6 4546.6 3276.6 3026.6 EQ 3151.6 EQ EQ 4546.6 EQ EQ BAL. BAL. EQ EQ EQ EQ BAL. EQ EQ EQ BAL. TOILET C C 3" DOWN 12MM THICK GYPSUM CEILING 7" DOWN 12MM THICK GYPSUM CEILING COVE LIGHT 125.0 1203.7 549.4 1549.4 1204.7 75.0 175.0 125.0 125.0 125.0 125.0 3903.9 4301.6 4546.6 3276.6 3026.6 EQ 3151.6 EQ EQ 4546.6 EQ EQ BAL. BAL. EQ EQ EQ EQ BAL. EQ EQ EQ BAL. TOILET SURESH PATIL'S BEDROOM C C 3" DOWN 12MM THICK GYPSUM CEILING 7" DOWN 12MM THICK GYPSUM CEILING COVE LIGHT 4" DOWN GYPSUM CEILING FALSE CEILING LEGEND 3" DOWN CEILING ELECTRIC CEILING LEGEND FALSE CEILING LINE COVE LIGHT GRID CEILING LIGHT PLY BOARD 6" DOWN GYPSUM CEILING MAGNETIC TRACK LIGHT SPOT LIGHT TRACK LIGHT TINTED MIRROR PROFILE LIGHT 7" DOWN GYPSUM CEILING 125.0 1203.7 549.4 1549.4 1204.7 75.0 175.0 125.0 125.0 125.0 125.0 3903.9 4301.6 4546.6 3276.6 3026.6 EQ 3151.6 EQ EQ 4546.6 EQ EQ BAL. BAL. EQ EQ EQ EQ BAL. EQ EQ EQ BAL. 17 | 4BHK Bungalow Interior
Reflected
Master
Ceiling Layout Master Bedroom 3

| Construction Office Facade

This construction office will have metal panels on the outside with a rustic bronze finish and an uneven circular pattern.

The bronze finish gives the facade a warm and timeless look, while the unique pattern adds a modern touch. This design makes the office both strong and visually interesting.

18 | Construction Office Facade
Exterior view Office Project - Completed

GENERAL NOTES

1) All Dimensions And Levels Are In FT INCHES

2) Relate This Drawings With Working Details,sections And Elevation If Any Discrepancy Found Please Confirm With Architect Before Executing On Site.

3) Drawing Should Not Be Scaled Only Written Dimension Should Be Followed

4) Drawing To Be Read In Conjunction With Relevant Architectural Drawings

5) No Part Of This Drawing May Be Reproduced, Distributed, Or Transmitted In Any Form, Without The Prior Written Permission Of The Architect.

DISCRIPTION JOB NO

N.T.S

DATE SCALE DRAWN BY CHK BY

DESCRIPTION OF PROPOSAL

EXTERNAL FACADE FABRICATION LAYOUT DWG NO

DRAWING REVISION TABLE

PROJECT ARCHITECT

BAL. 6706 8400 2680 FABRICATION FABRICATION 2680 2' x 2' FRAMING WITH 2" x 1" RECTANGULAR PIPES 1200 1200 1200 1200 1200 1200 1200 1200 1200 1200 1200 1200 FRONT ELEVATION SIDE ELEVATION
CLIENT
NOS PARTICULARS DATE RAVI GHONE ARCHITECTS RAJE COMPLEX, OFFICE NO 129, FIRST FLOOR, NEAR CHHATRAPATI SHIVAJI MAHARAJ CHOWK, MCCH SOCIETY, PANVEL, RAIGAD 410206 CONTACT NO: +91-9892155616 EMAIL ID: inforgarch@gmail.com ARCHITECTS | INTERIOR DESIGN
Mr.Qazi
2' x 2' FRAMING WITH 2" x 1" RECTANGULAR PIPES 1 1 2 2 3 3 1 2 3 1 2 3 1 BAL. 6706 8400 2680 FABRICATION FABRICATION 2680 2' x 2' FRAMING WITH 2" x 1" RECTANGULAR PIPES 1200 1200 1200 1200 1200 1200 1200 1200 1200 1200 1200 1200 FRONT ELEVATION SIDE ELEVATION 2' x 2' FRAMING WITH 2" x 1" RECTANGULAR PIPES 1 1 2 2 3 3 1 2 3 1 2 3 1 1219 [4'] 2680 [8'7"] 1 1219 [4'] 1219 [4'] 2680 [8'7"] 2680 [8'7"] 2 3 25 520 520 150 EQ EQ EQ 150 25 2250 PROJECT : INTERIOR DESIGN FURNITURE DRAWING EXTERNAL WALL PANEL CHECKED BY 01 LOCATION: PANVEL DRAWING BY : KP 85 90 150 59 NOS. 15 NOS. EXTERNAL PANEL ELEVATION DETAILS 60 25MM HALF MOULD PATTI 25MM HALF MOULD PATTI 55 EQ 130 3MM GROOVE 3MM GROOVE eq 18 eq 520 2100 90 45 19 | Construction Office Facade
26/09/2023
JBIN10
Facade
Side ELevation Exterior Panel Elevation
Exterior
view Front Elevation
Panels

| 4BHK Apartment Interior

Office Project - On Going

The apartment is meticulously designed with four luxurious bedrooms, each featuring its own distinct style and layout. Stylish ceilings and carefully chosen tiles adorn the space, creating an elegant ambiance throughout. It’s crafted to offer a lavish living experience that exudes sophistication and comfort.

20 | 4BHK Apartment Interior
Elevation Bedroom 01

Reflected Ceiling Plan

WM KITCHEN GUEST BEDROOM MASTER BEDROOM -01 MASTER BEDROOM -02
BEDROOM -01
STONE SEATING MAIN ENTRANCE VERTICAL SHOE STORAGE FR STORAGE BALCONY 2" GRANITE PATTI 2" GRANITE PATTI SLIDING GLASS DOOR FIXED GLASS PARTITION LOFT 720 [2'-4"] 1439 [4'-9"] 720 [2'-4"] 2879 [9'-5"] EQ EQ 1362 [4'-6"] 1000 [3'-3"] EQ EQ EQ 875EQ [2'-10"] EQ EQ EQ EQ 2880 [9'-5"] 358 [1'-2"] EQ EQ 1382 [4'-6"] 1740 [5'-9"] 1049 [3'-5"] 1291 [4'-3"] 2340 [7'-8"] 1000 [3'-3"] 950 [3'-1"] 1150 [3'-9"] 2100 [6'-11"] 1200 [3'-11"] EQ EQ 1037 [3'-5"] 350 [1'-2"] 100 [4"] 75 [3"] 1715 [5'-8"] 6 [0"] 75 [3"] 100 [4"] 350 [1'-2"] 378 [1'-3"] 6 [0"] 2777 [9'-1"] 2705 [8'-10"] 350 [1'-2"] 100 [4"] 75 [3"] 6 [0"] 1893 [6'-3"] 350 [1'-2"] 100 [4"] 75 [3"] 6 [0"] 2955 [9'-8"] EQ EQ 281 [11"] EQ EQ 281 [11"] 1877 [6'-2"] EQ EQ EQ EQ EQ EQ 281 [11"] 281 [11"] EQ EQ 2055 [6'-9"] 2849 [9'-4"] EQ EQ 1171 [3'-10"] 588 [1'-11"] 1175 [3'-10"] 588 [1'-11"] 2350 [7'-9"] EQ EQ 1420 [4'-8"] 600 [2'] EQ EQ 269 [11"] 6 [0"] 75 [3"] 350 [1'-2"] 2077 [6'-10"] 269 [11"]6 [0"] 75 [3"] 350 [1'-2"] 659 [2'-2"] 269 [11"] 6 [0"] 75 [3"] 350 [1'-2"] 2101 [6'-11"] 269 [11"] 6 [0"] 75 [3"] 350 [1'-2"] 638 [2'-1"] 1275 [4'-2"] 638 [2'-1"] 2551 [8'-4"] EQ EQ 659 [2'-2"] EQ EQ 350 [1'-2"] 125 [5"] EQ EQ 2101 [6'-11"] EQ EQ 2077 [6'-10"] EQ EQ 350 [1'-2"] 389 [1'-3"] 789 [2'-7"] 1178 [3'-10"] EQ EQ 945 [3'-1"] 100 [4"] 100 [4"] 725 [2'-5"] EQ EQ 1035 [3'-5"] EQ EQ 900 [2'-11"] EQ EQ 750 [2'-6"] EQ EQ 880 [2'-11"] 75 [3"] 455 [1'-6"] 5 [0"] 20 [1"] 1695 [5'-7"] 20 [1"] 5 [0"] 455 [1'-6"] 75 [3"] 371 [1'-3"] 555 [1'-10"] 555 [1'-10"] 2805 [9'-2"] 2817 [9'-3"] 275 [11"] 275 [11"] EQ EQ 75 [3"] 480 [1'-7"] EQ EQ 1695 [5'-7"] EQ EQ 75 [3"] 480 [1'-7"] 200 [8"] 200 [8"] D D E E F F G G H H NORTH 4" DOWN GYPSUM CEILING FALSE CEILING LEGEND 3" DOWN CEILING ELECTRIC CEILING LEGEND FALSE CEILING LINE COVE LIGHT GRID CEILING LIGHT 4" DOWN ACP CEILING MAGNETIC TRACK LIGHT SPOT LIGHT TRACK LIGHT PROFILE LIGHT 5" DOWN GYPSUM CEILING 2" DOWN CEILING WOODEN CEILING REFLECTED CEILING PLAN EQ EQ 822 [2'-8"] 295 [1'] 5 [0"] 50 [2"] 2900 [9'-6"] 50 [2"] 5 [0"] 295 [1'] 3600 [11'-10"] 295 [1'] 5 [0"] 50 [2"] 2149 [7'-1"] 50 [2"] 5 [0"] 295 [1'] 2849 [9'-4"] EQ EQ 1287 [4'-3"] EQ EQ 1000 [3'-3"] EQ EQ EQ 2570 [8'-5"] 150 [6"] 50 [2"] 2143 [7'] 50 [2"] 150 [6"] 2543 [8'-4"] 150 [6"] 50 [2"] 1849 [6'-1"] B B A A C C MDF PANEL AS PER SELECTION EQ EQ 2259 [7'-5"] EQ EQ 295 [1'] 295 [1'] 2849 [9'-4"] 200 [8"] EQ EQ 200 [8"] 1749 [5'-9"] 2149 [7'-1"] 200 [8"] EQ EQ 200 [8"] 2500 [8'-2"] 2900 [9'-6"] MDF PANEL AS PER SELECTION 2249 [7'-5"] 200 [8"] 400 [1'-4"] 543 [1'-9"] 3114 [10'-3"] 200 [8"] 400 [1'-4"] 200 [8"] 544 [1'-9"] 543 [1'-9"] 21 | 4BHK Apartment Interior
LIVING ROOM BALCONY
22 | 4BHK Apartment Interior
TV Unit Elevation Bedroom 01 Wardrobe Elevation Bedroom 01
23 | 4BHK Apartment Interior
Bed and Back Panel Elevation Master Bedroom 01 Wardrobe Elevation Master Bedroom 01

Wardrobe Plan

WARDROBE EXTERNAL LAYOUT

F.F.L. LOFT COAT HANGER ORGANISER PLAN WARDROBE DRAWER DRAWER 1767 [5'-10"] 300 [1'] 600 [2'] 2102 [6'-11"] DOOR DRAWER EQ 999 [3'-3"] EQ LOFT LOFT F.F.L. DOOR
8" 53 4 " 83 4 " 4" 9" 43 4 " EQ EQ 2102 [6'-11"] 1016 [3'-4"] 83 4 " 83 4 " 8"31 4 " 53 4 " 51 4 " 1016 [3'-4"] 900 [2'-11"] 70 [3"] 720 [2'-4"] 220 [9"] 1055 [3'-6"] 2721 [8'-11"] 656 [2'-2"] 5 MM GROOVE HANDLE F.F.L. ORGANISER DRAWER DRAWER DRAWER LOFT LOFT COAT HANGER COAT HANGER ORGANISER PLAN WARDROBE INTERNAL LAYOUT DRAWER DRAWER DRAWER DRAWER SHELF SHELF SHELF 1767 [5'-10"] 300 [1'] 600 [2'] 2102 [6'-11"] EQ EQ 200 [8"] 630 [2'-1"] EQ EQ EQ 1165 [3'-10"] 656 [2'-2"] 2721 [8'-11"] DOOR 2102 [6'-11"] DRAWER EQ EQ EQ EQ 999 [3'-3"] 999 [3'-3"] 168 [7"] EQ EQ 2102 [6'-11"] 681 [2'-3"] 300 [1'] ADJUSTABLE SHELF LOFT EXTERNAL LAYOUT 43 4 EQ 2102 [6'-11"] 83 4 83 4 8"31 4 53 4 51 4 1016 [3'-4"] 900 [2'-11"] 70 [3"] 720 [2'-4"] 220 [9"] 1055 [3'-6"] 2721 [8'-11"] 656 [2'-2"] F.F.L. ORGANISER DRAWER DRAWER DRAWER LOFT LOFT COAT HANGER COAT HANGER ORGANISER PLAN WARDROBE INTERNAL LAYOUT DRAWER DRAWER DRAWER DRAWER SHELF SHELF SHELF 1767 [5'-10"] 300 [1'] 600 [2'] 2102 [6'-11"] DOOR 2102 [6'-11"] DRAWER EQ EQ EQ EQ 999 [3'-3"] 999 [3'-3"] EQ EQ 2102 [6'-11"] 681 [2'-3"] 300 ADJUSTABLE SHELF LOFT LOFT F.F.L. DOOR WARDROBE EXTERNAL LAYOUT 8" 53 4 " 83 4 " 4" 9" 43 4 " EQ EQ 2102 [6'-11"] 1016 [3'-4"] 83 4 " 83 4 " 8"31 4 " 53 4 " 51 4 " 1016 [3'-4"] 900 [2'-11"] 70 [3"] 720 [2'-4"] 220 [9"] 1055 [3'-6"] 2721 [8'-11"] 656 [2'-2"] 5 MM GROOVE HANDLE 24 | 4BHK Apartment Interior
Wardrobe Exterior Elevation
Wardrobe Internal Elevation

BALCONY

BEDROOM -01

LIVING ROOM

TILE LAYOUT

GUEST BEDROOM MASTER BEDROOM -01 MASTER BEDROOM -02
KITCHEN
MAIN ENTRANCE VERTICAL SHOE STORAGE
2" GRANITE PATTI 2" GRANITE PATTI SLIDING GLASS DOOR START START START START START START 2400 [7'-10"] 1600 [5'-3"] 800 [2'-7"] 1600 [5'-3"] 800 [2'-7"] 1600 [5'-3"] 800 [2'-7"] 1600 [5'-3"] 800 [2'-7"] 1600 [5'-3"]
BALCONY
START 800 [2'-7"] 800 [2'-7"] 25 | 4BHK Apartment Interior Tile
Layout

| Container Office Interior

The container office interior project, features a modern and minimalist design.

It uses a neutral color palette of whites, greys, and blacks to create a calm, professional atmosphere. Key elements include contemporary furniture, abstract wall art, a stylish partition and open shelving for storage and display.

The design balances aesthetics and functionality, resulting in an inviting and productive workspace.

26
Cabin view Office Project - Sample Unit
| Container Office Interior
27 | Container Office Interior PLAN
28 | Container Office Interior
Waiting Area view Waiting Area view
29 | Container Office Interior
Cabin view Exterior view

| Society Redevelopment

Office Project - Proposed

The proposed G+13 redevelopment project is a modern residential building featuring 13 floors of contemporary apartments. It includes a ground + 2 story commercial area, with retail shops on the ground floor and office spaces on the 1st and 2nd floors. Parking facilities are provided in both the basement and podium levels. The residential units consist of a mix of 2, and 3-bedroom apartments with spacious balconies

30 | Society Redevelopment
Exterior View

Proposed Plan-Podium

31 | Society Redevelopment
Proposed Plan-Ground Floor

Proposed Plan-Podium Parking

Proposed Plan-Podium Parking

32 | Society Redevelopment

BOUNDARY WALL

ROAD ROAD

BOUNDARY WALL

BOUNDARY WALL

BOUNDARY WALL

Plan -6th to 13th Floor

BOUNDARY WALL

UP DN UP DN LIFT LIFT LIFT 2.00 2.25 2.00 x 2.25 3.00 x 2.25 A-707 1.50M WIDE PASSAGE 1.50M WIDE PASSAGE 2.10M WIDE LIFT LOBBY TYPICAL RESIDENTIAL
TOILET TOILET BEDROOM01 BEDROOM 02 KITCHEN LIVING DINING F.B. F.B. F.B. DECK 4'0" WIDE DECK F.B. BEDROOM 01 TOILET LIVING KITCHEN BEDROOM 03 BEDROOM 02 4'0" WIDE TOILET TOILET F.B. F.B. F.B. TOILET TOILET BEDROOM01 BEDROOM 02 KITCHEN LIVING DINING F.B. F.B. F.B. DECK 4'0" WIDE DECK F.B. BEDROOM01 LIVING KITCHEN BEDROOM 03 BEDROOM 02 4'0" WIDE TOILET TOILET DINING F.B. F.B. F.B. C.A = 948.55 SQ.FT. (INCLUDING DECK AREA) C.A = 746.10 SQ.FT. (INCLUDING DECK AREA) A-708 C.A = 948.55 SQ.FT. (INCLUDING DECK AREA) A-706 C.A = 746.10 SQ.FT. (INCLUDING DECK AREA) A-705 BEDROOM 02 BEDROOM 01 LIVING TOILET TOILET DECK 4'0" WIDE STUDY F.B. F.B. F.B. C.A = 986.80 SQ.FT. (INCLUDING DECK AREA) A-701 C.A = 854.00 SQ.FT. (INCLUDING DECK AREA) A-702 DECK 4'0" WIDE TOILET BEDROOM02 TOILET F.B. F.B. F.B. W.S. KITCHEN TOILET DINING LIVING KITCHEN BEDROOM 02 BEDROOM 01 LIVING TOILET TOILET DECK 4'0" WIDE DINING STUDY F.B. F.B. F.B. C.A = 986.80 SQ.FT. (INCLUDING DECK AREA) A-704 C.A = 854.00 SQ.FT. (INCLUDING DECK AREA) A-703 DECK 4'0" WIDE TOILET TOILET BEDROOM 01 F.B. F.B. F.B. W.S. KITCHEN TOILET DINING LIVING TALL UNIT DINING WM TALL UNIT WM FR KITCHEN DINING FR WM TALL UNIT FR WM TALL UNIT TOILET FR WM TALL UNIT WM TALL UNIT BEDROOM01 WM FR BEDROOM 03 BEDROOM 02 BEDROOM 03 FR WM FR 33 | Society Redevelopment
FLOOR PLAN
Proposed

| Ganesh Temple

Office Project - Proposed

This beautiful Ganesh Temple stands in a peaceful and serene setting. The temple is white with detailed carvings, supported by elegant pillars, and crowned with a bright red flag. Its traditional architectural design includes ornate arches and a gracefully sloping roof. It provides a calm and sacred space for visitors to worship Lord Ganesh, known as the remover of obstacles and the god of wisdom and prosperity.

34 | Ganesh Temple
Exterior View
35 | Ganesh Temple
Exterior View Exterior View

View Office Project - Proposed

| JNPA Gate

This is a proposed canopy for a road crossing at JNPA. The modern design features sleek, interconnected structures and a large central pillar, providing shelter for pedestrians and enhancing the area’s aesthetic appeal. It aims to offer both functionality and a visually striking landmark for the JNPA premises.

36 | JNPA Gate
Canopy
17.6373 17.6373 10.8574 8.8283 8.8089 8.8089 8.8283 5.4287 5.4287 5.0002 1.0351 0.8618 3.8469 2.8226 3.3990 16.9657 TOP VIEW ELEVATION 17.6373 17.6373 10.8574 8.8283 8.8089 8.8089 8.8283 5.4287 5.4287 5.0002 1.0351 0.8618 3.8469 2.8226 3.3990 16.9657 TOP VIEW ELEVATION 37 | JNPA Gate Elevation Canopy View Top View
AR.KUNAL PAWAR +91 7977256394 | Ar.kunalpawar21@gmail.com

Turn static files into dynamic content formats.

Create a flipbook
Issuu converts static files into: digital portfolios, online yearbooks, online catalogs, digital photo albums and more. Sign up and create your flipbook.