Low Rise High Density Housing, Iran

Page 1

LOW RISE HIGH DENSITY HOUSING - YAZD, IRAN : ARCHITECTURE DESIGN STUDIO POLITECNICO DI MILANO KUNAL S. WELEKAR

Site
Project Site UNESCO Site UNESCO Buffer Zone
1975 2005 2015 Historical Sequence of the Site Precinct
Envionemental Synthesis Map
Structural Synthesis Map
Conceptual Sketches and Stratigic Plan
Master Plan
Unit Design
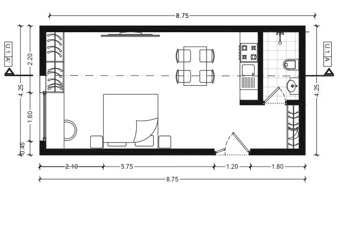
Unit - 30 SQM
Unit - 28 SQM
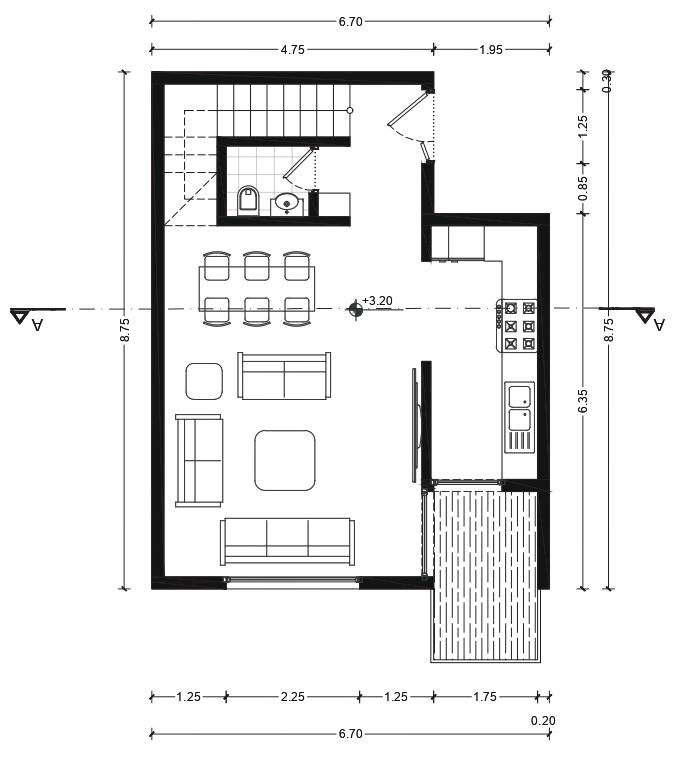
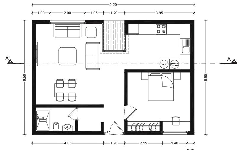
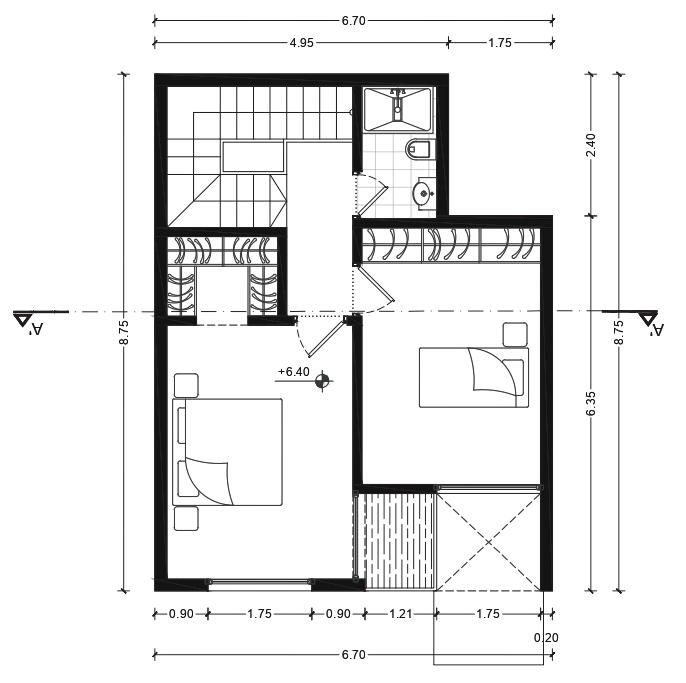
Room Unit - 49 SQM
Room Unit - 49 SQM 1 Room Unit - 46 SQM 3 Room Unit - 85 SQM
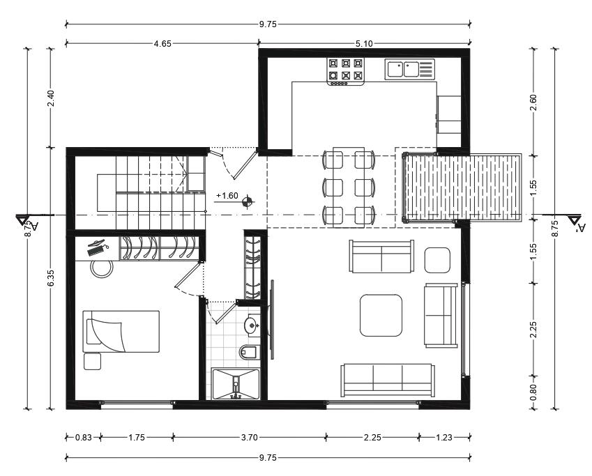
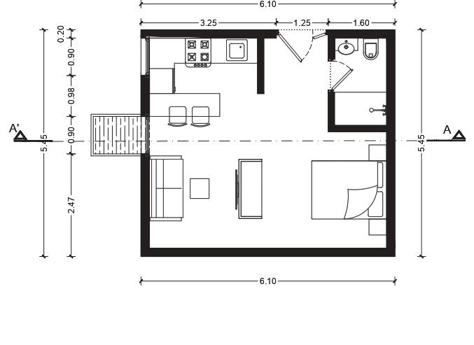
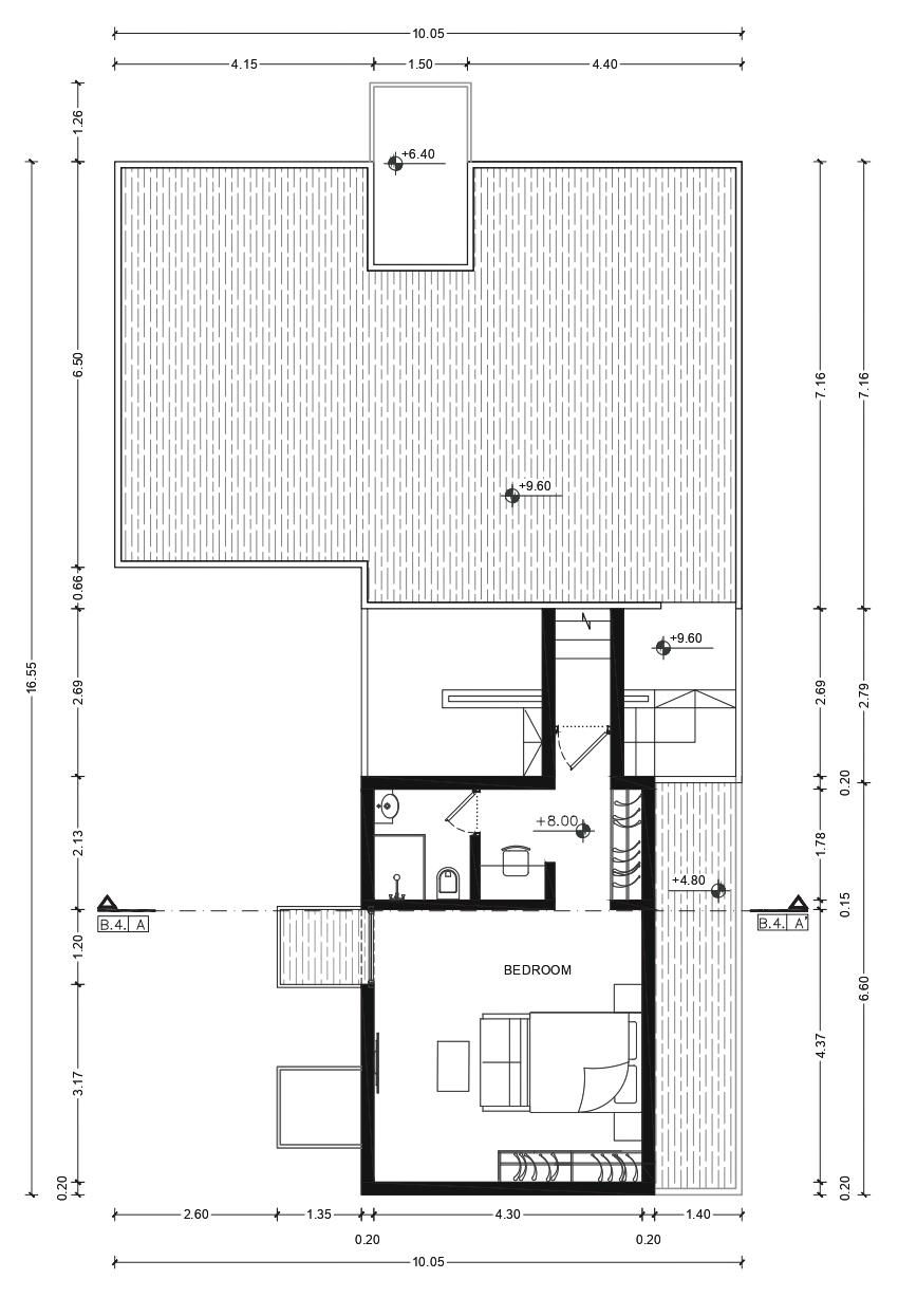
Room Unit - 60 SQM
Room Unit - 60 SQM 0 2 4 10
Studio
Studio
1
1
2
2

3

4

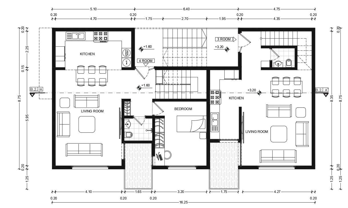
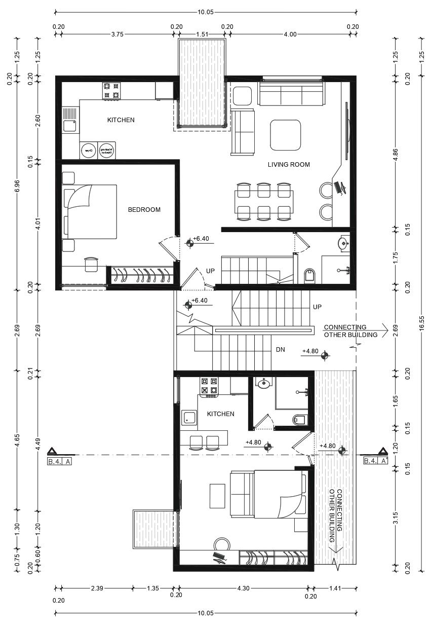
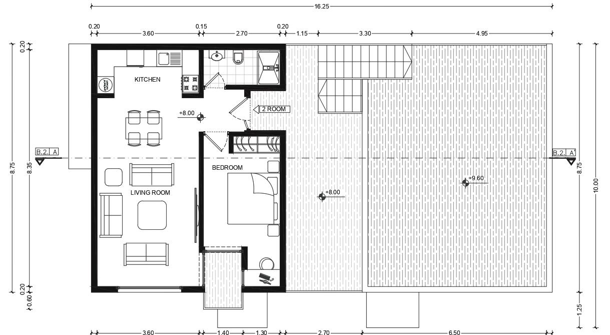
Room Unit - 88 SQM
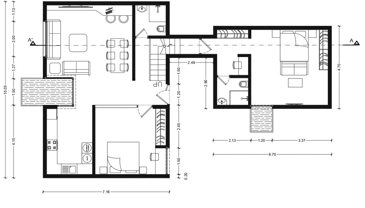
Room Unit - 110 SQM

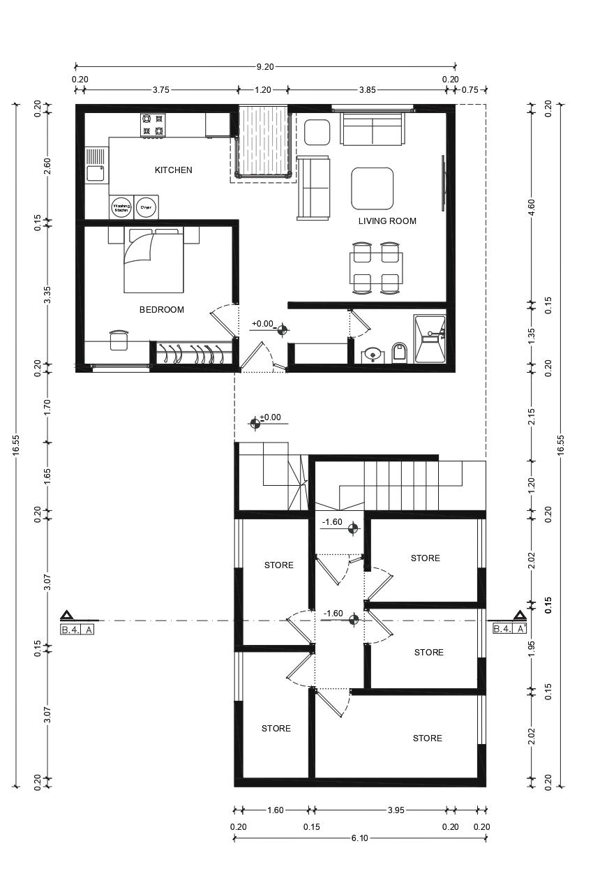
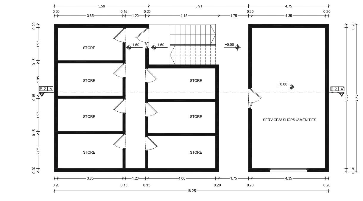
Ground Floor Plan

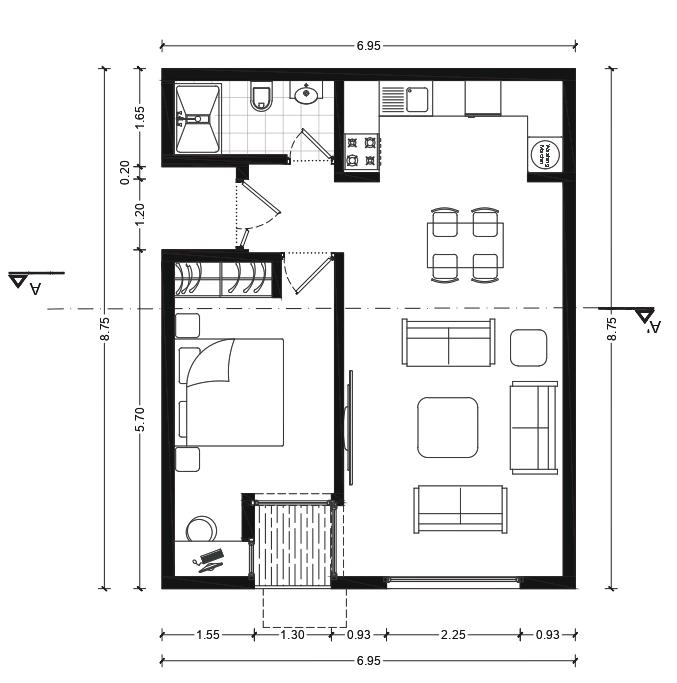
First Floor Plan

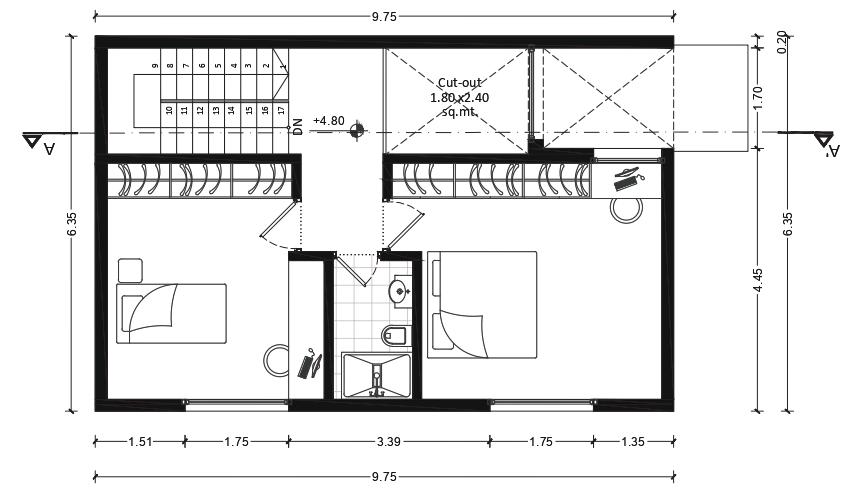
Second Floor Plan

Third Floor Plan

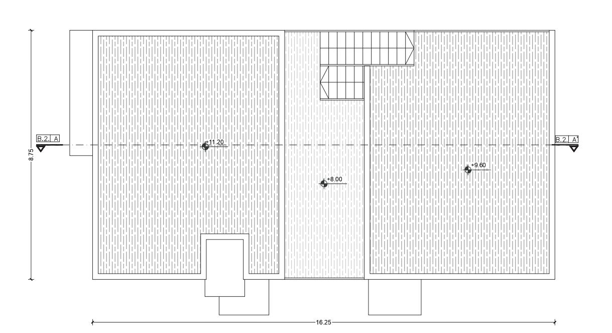
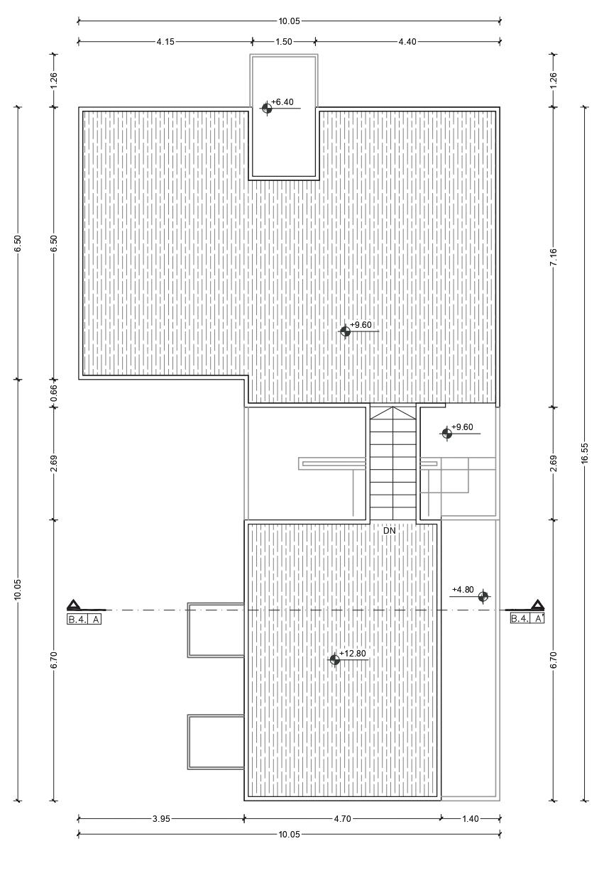
Roof Floor Plan

Cluster Design
Section A’-A 0 2 7
Ground Floor Plan Third Floor Plan First Floor Plan Roof Floor Plan Second Floor Plan Section A-A’
50 Cluster Plan 4 Floors <13M 3 Floors10M 2 Floors < 7M 1 Floor < 5M 1 Floor < 3M Courtyard Street Houses Cpurt Walls 2.5M Internal Route
Shadow Pattern 15:30 June 15:30 September 15:30 December
CLICK FOR WALKTHOUGH

Turn static files into dynamic content formats.

Create a flipbook
Issuu converts static files into: digital portfolios, online yearbooks, online catalogs, digital photo albums and more. Sign up and create your flipbook.