Final Dissertation Project - Integrated Urban Centre

Page 1

Impact of Site on surrounding

The Location of the site in the Focal point of the potential context of educational institutes, residen cies, Balewadi Stadium and National Highway Whereas the charector of the project acts as the node for the area. people will gather here from different parts of the city or country and disperse to use the available am inities.

Impact of Surrounding on Site And site Zoning

ACCESS POINTS ALONG THE DIRECTION

AXIS DIRECTING CIRCULATION

Entry for NMT Maximum NMT User group

BUILDING LEVEL CONCEPT

CONCEPT FORM EVOLUTION DISSERTATION REVIEW INTEGRATED URBAN CENTRE SYNCING URBAN AMENITIES WITH TRANSIT HUB AROHI KULKARNI SHEET SITE LEVEL CONCEPT
access the
the area of educational
di -
Vertical Expansion
stacking of building will consider the viewpoints to the NH4 and Balewadi stadium and blocking the view from NICMAR INSTITUTE Final massing Connecting platform from Metro Station and Vice Versa Recieving area from metro station. Retail area facing towardss the potential aminities of the context Office blocks 20 TH MAY 2024 NTS 1
will
site from
and recidential
rection
Vertical

12M WIDE ROAD

DISSERTATION REVIEW INTEGRATED URBAN CENTRE SYNCING URBAN AMENITIES WITH TRANSIT HUB AROHI KULKARNI SHEET SITE PLAN 20 TH MAY 2024 1:500
12M WIDE ROAD

FIRST MILE CONNECTIVTY

CONNECTIVTY

DISSERTATION REVIEW INTEGRATED URBAN CENTRE SYNCING URBAN AMENITIES WITH TRANSIT HUB AROHI KULKARNI SHEET TRANSPORT INTERCHANGE
NMT,IPT,PRIVATE VEHICLES
METRO Metro Station. Inter City Bus Terminal Local Bus Bay For Office For Inter City Bus For Local Bus For Metro
FIRST MILE

FIRST MILE CONNECTIVTY

MILE CONNECTIVTY

DISSERTATION REVIEW INTEGRATED URBAN CENTRE SYNCING URBAN AMENITIES WITH TRANSIT HUB AROHI KULKARNI SHEET
LOCAL BUS FIRST
INTER-CITY BUS TRANSPORT INTERCHANGE Metro Station. Inter City Bus Terminal Local Bus Bay For Office For Inter City Bus For Local Bus For Metro 20 TH MAY 2024 NTS 1

12M WIDE ROAD

DISSERTATION REVIEW INTEGRATED URBAN CENTRE SYNCING URBAN AMENITIES WITH TRANSIT HUB AROHI KULKARNI SHEET MASTER PLAN 20 TH MAY 2024 1:500
12M WIDE ROAD

• PASSENGERS FOR METRO AS THEIR FIRST MILE CONNECTIVITY CAN ACCESS RETAIL SHOPS, ABOVE OFFICES AND INTER CITY BUS STOP, ON GROUND FLOOR.

• PASSENGERS WITH LOCAL BUS AS THEIR FIRST MILE CONNECTIVITY ARE ALSO WELCOMED ON THIS FLOOR

• BOTH THE ACCESS ARE CONNECTED TO THE BUILDING BY FOB

DISSERTATION REVIEW
SYNCING URBAN AMENITIES WITH TRANSIT HUB AROHI KULKARNI SHEET FIRST
INTEGRATED URBAN CENTRE
FLOOR PLAN
20 TH MAY 2024 1:500
DISSERTATION REVIEW INTEGRATED URBAN CENTRE SYNCING URBAN AMENITIES WITH TRANSIT HUB AROHI KULKARNI SHEET
FLOOR ENTRANCE UP Coming DN going DOUBLE HEIGHT ENTRANCE AREA PARCEL OFFICE 65 SQ.M. ANNOUNCEMENT AND REPORTING 30 SQ.M. LOCKERS FOR LUGGAGE 40 SQ.M. SUPERMARKET 440 SQ.M. EXHIBITION AREA 30 SQ.M. EXHIBITION AREA 30 SQ.M. MULTIPURPOSE HALL 500 SQ.M. A B STREET VENDORS HAWKERS GREEN GYM GREEN GYM STREET VENDORS EXHIBITION AREA 30 SQ.M. EXHIBITION AREA 30 SQ.M. FACADE DETAILS FACADE DETAILS DIGITAL TICKET MACHINE DIGITAL TICKET MACHINE
Area Waiting Bay Drop-Off
GROUND
Entrance
DISSERTATION REVIEW INTEGRATED URBAN CENTRE SYNCING URBAN AMENITIES WITH TRANSIT HUB AROHI KULKARNI SHEET
FLOOR OTHER SERVICES STAFF AREA (LUGGAGE REST, CHANGING) STORE ROOM DN going UP Coming DN going UP Coming UP UP UP RISER DUCT HVAC ROOM ELECTRICAL ROOM GENERAL CONSULTANCY OFFICE BUS PERSONNEL'S CABIN ATM POLICE CABIN INFIRMARY AND FEEDING ROOM PRO PUBLIC RELATION OFFICER OFFICE DRINKING WATER REST AREA ACCOUNTANT'S CABIN DRINKING WATER RETAIL AREA RETAIL SHOPS LEFT LUGGAGE AND LOST PROPERTY OFFICE SENATOR'S AREA LIGHTING CONTROL STATION HMI STATION, TOUCH SCREENS DISPLAY AREA, COMPUTER OPERATION AREA SECURITY CONTROL ROOM (SECURITY PERSONNEL, MULTIPLE SCREENS, WORKSTATIONS, STORAGE FOR ACCESS CREDENTIALS) BUILDING MANAGEMENT SYSTEM CONTROL ROOM FOR INDOOR AIR QUALITY) TELECOM ROOM EQUIPMENT ROOM FEATURE WALL FEATURE WALL UP FEATURE WALL FEATURE WALL 20 TH MAY 2024 NTS 1
GROUND

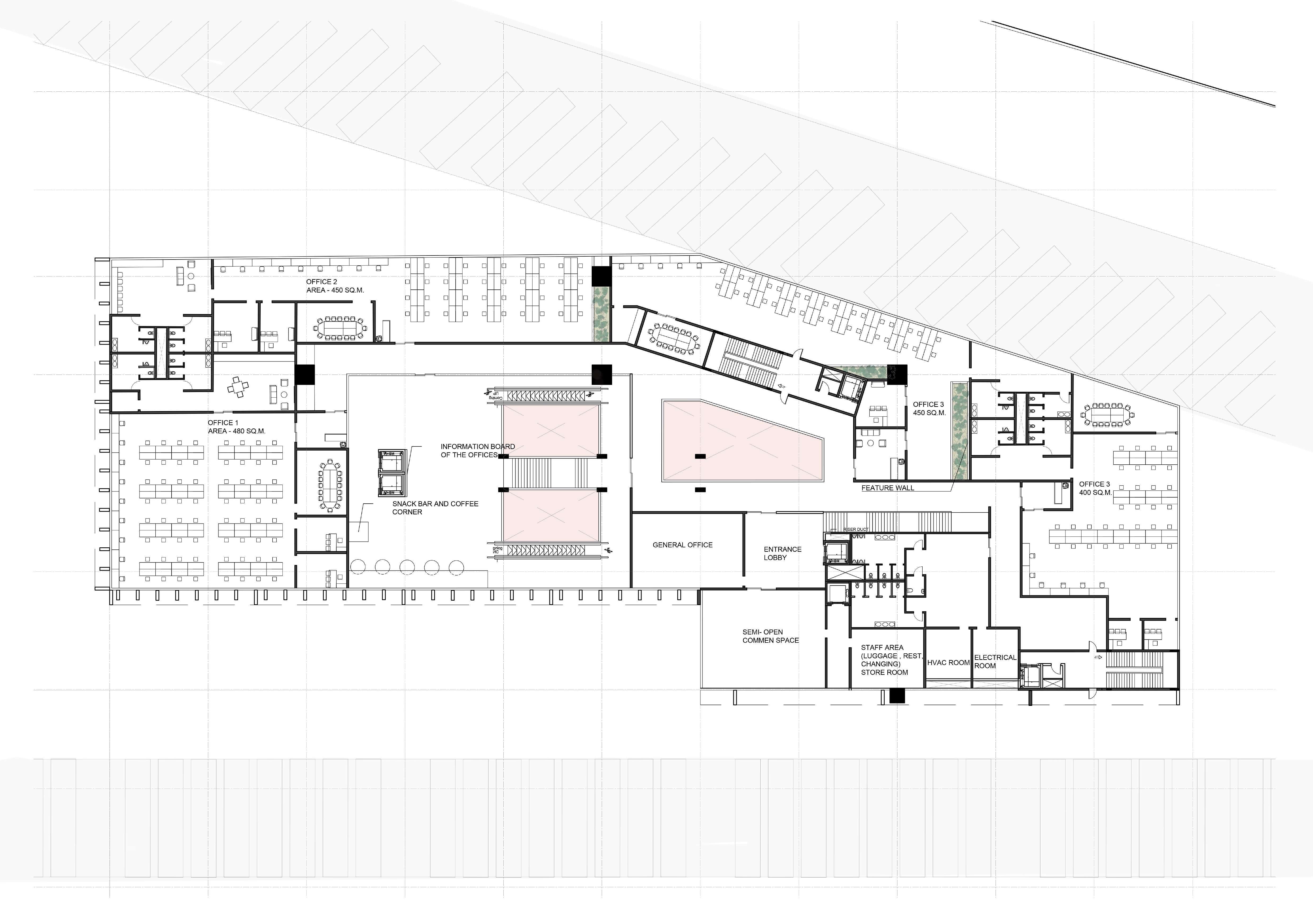
SECOND FLOOR

• PASSENGERS FOR METRO AS THEIR FIRST MILE CONNECTIVITY CAN ACCESS OFFICE BLOCKS ON ABOVE FLOOR FROM THIS FLOOR.

• THE CONNECTIVITY IS SUPPORED BY THE TRECREATIONAL AREAS AS WELL

DISSERTATION REVIEW
SYNCING URBAN AMENITIES WITH TRANSIT HUB AROHI KULKARNI SHEET
INTEGRATED URBAN CENTRE
20 TH MAY 2024 1:200
DISSERTATION REVIEW INTEGRATED URBAN CENTRE SYNCING URBAN AMENITIES WITH TRANSIT HUB
SHEET TYPICAL OFFICE FLOOR
AROHI KULKARNI
• TYPICAL OFFICE FLOOR PLANS ARE TILL SEVENTH FLOOR 20 TH MAY 2024 1:200
DISSERTATION REVIEW INTEGRATED URBAN CENTRE SYNCING URBAN AMENITIES WITH TRANSIT HUB AROHI KULKARNI SHEET
DOUBLE HEIGHT MACHINE FEATURE WALL FEATURE WALL
SECTION B-B’
20 TH MAY 2024 NTS 1
Key plan
DISSERTATION REVIEW INTEGRATED URBAN CENTRE SYNCING URBAN AMENITIES WITH TRANSIT HUB AROHI KULKARNI SHEET SECTION A-A’ DOUBLE HEIGHT ENTRANCE AREA FACADE DETAILS MACHINE MACHINE Key plan 20 TH MAY 2024 NTS 1
DISSERTATION REVIEW INTEGRATED URBAN CENTRE SYNCING URBAN AMENITIES WITH TRANSIT HUB AROHI KULKARNI SHEET SERVICES Total no. of people per day- 4179 Per day Per Capita Water Requirement - 45LPCD Total Water Requirement - 188055 Water requirement for miscellaneous purposes 188080L Water to be stored for 2 days 376160L OHT Tank capacity- 376.16 No. of OHT requirement - 2 Size of OHT - 10M x 7.5M x 2.5M OHT 20 TH MAY 2024 NTS 1 CARS FOR BASEMENT 396 6M WIDE DRIVEWAY 6M WIDE DRIVEWAY 6M WIDE DRIVEWAY 6M WIDE DRIVEWAY 6M WIDE DRIVEWAY 110 TWO WHEELERS Basement Water Suply and Drainage
Service Floor

Bus Bay, Vehicular Entrance,NMT Bay

DISSERTATION REVIEW INTEGRATED URBAN CENTRE SYNCING URBAN AMENITIES WITH TRANSIT HUB AROHI KULKARNI SHEET 20 TH MAY 2024 NTS 1
Street Oriented Buildings and Vibrant Public Spaces - Place-making
PLACEMAKING
DISSERTATION REVIEW INTEGRATED URBAN CENTRE SYNCING URBAN AMENITIES WITH TRANSIT HUB AROHI KULKARNI SHEET BUILDING DETAILS 20 TH MAY 2024 NTS 1
Details in Elevation B Entrance Facade Design Facade Detail

Turn static files into dynamic content formats.

Create a flipbook
Issuu converts static files into: digital portfolios, online yearbooks, online catalogs, digital photo albums and more. Sign up and create your flipbook.