KELLY PHAN
INTERIOR DESIGN PORTFOLIO
The University of Texas at Austin Bachelor of Science in Interior Design
469.400.7926
kellyphan4671@gmail.com
https://www.linkedin.com/in/kelly-t-phan/ Dallas, Texas
![]()
The University of Texas at Austin Bachelor of Science in Interior Design
469.400.7926
kellyphan4671@gmail.com
https://www.linkedin.com/in/kelly-t-phan/ Dallas, Texas
Texas Forestry Association Excellence in Wood Design Award


Engage highlights the beauty of the surrounding environment through human intervention. Through this studio project, four steel-frame picnic tables, eight benches, and two serving tables were built to accomodate a wide range of guests.

PERSPECTIVE
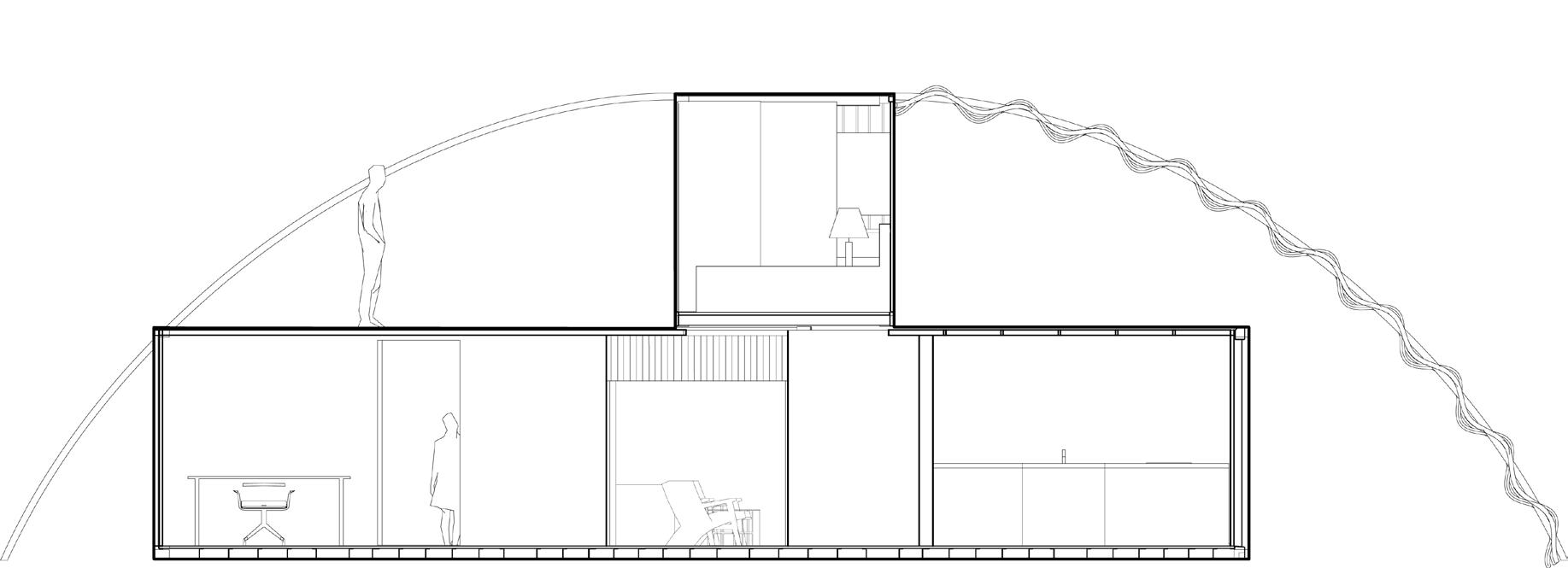
When given a site located in non-ideal settings, what solutions can be proposed to repurpose the environment? Through the exploration of the anthropocene, restoring the local site with native plants can bring additional support to the area while minimizing the ecological footprint imposed from typical contruction methods and materials. A temporary housing solution made from shipping containers can provide a simple yet innovative experience to those visiting Austin, Texas.
Precedent Studies







Transverse Section

Longitudinal Section


The following course familiarized students with Rhino and Adobe Illustrator. Tectonic and stereotomic models were created with threedimensional component manipulations through additive/subtractive commands. The resulting drawings incorporated concepts of line weight, tangent, and hidden lines. This space was created for the reading program; where elements of light and movement affect the intensity of the experience, and hierarchy is introduced through its centered frame, planes, and use of symmetry.
Elevation Oblique


The following renderings showcase a selection of recent projects completed independently. Utilizing hand sketching, AutoCAD, and 2020 Design; assisting clients in visualizing their interior spaces by incorporating specific furniture pieces and additional elements leads to successful outcomes. This approach facilitates realistic layout and space planning, ensuring a comprehensive representation of design potential. By fostering open communication and collaborating closely with clients, both parties ultimately achieve results that exceed expectations and ensure complete satisfaction.








Lasting Memory uses a folktale titled, When The Lillies Return, originating from the Philippines regarding the Spanish colonization of the country and the impact of such events. The story covers thematic ideas of suffering and instigating. A pattern was developed based on the folktale, and colors were introduced to the design. The chambers were stitched together so that the occupant could experience individual emotions from the environment yet share commonalities with the collective interior and interact with others as necessary.


Pattern Generation




































This home is intended for young adults working indoors while facing the effects of a global pandemic. Drawing inspiration from the West Rose Window in the Chartres Cathedral and Japanese capsule hotels, the shelter follows a distinct pattern that evolves around the symmetrical division of spaces. Within this 750 Sq Ft home, space optimization and protection against currents of natural disaster are prioritized, allowing for easy navigation and safety in case of emergencies. Additionally, the home promotes productivity and efficiency through natural lighting that makes the space appear more open and improves concentration levels, ensuring uninterrupted attention for the intended occupant.








Axonometric








Keep Life Colorful centers on preserving Austin, Texas’s unique social culture defined by “weird” and “beautiful”. When envisioning Austin, vibrant and lively scenes naturally come to mind. Additionally, Austin is celebrated for its commitment to sustainability and natural landscapes, attracting countless visitors. These factors can contribute to the infamous slogan “Keep Austin Weird,” inspiring the title of this project. Costs can swiftly accumulate for small businesses seeking to expand into brick-and-mortar spaces, so Keep Life Colorful aims to cultivate a playful and vibrant atmosphere that supports multiple retailers, appealing to locals and tourists alike.





Shelf Plan





Seating Section

Seating Exploded Axonometric

The repeated form apparent in the shelves derives from octagonal umbrella motifs. The colorful lockers arranged in a complementary color scheme within the shelves offer wayfinding techniques for guests and extra storage that the retailer may access through the panels. Drawing from the previously mentioned sustainability aspects, colorful chiffon fabrics are suspended by recycled perforated plastic rods, offering floor-to-ceiling visual attractions.


469.400.7926
kellyphan4671@gmail.com
https://www.linkedin.com/in/kelly-t-phan/ Dallas, Texas
The University of Texas at Austin August 2019 - August 2023
Bachelor of Science in Interior Design Minor in Business Administration
Digital Rhinoceros 3D, Enscape, Revit, 3ds Max, AutoCAD, SketchUp, Chief Architect, Adobe Photoshop, Illustrator, InDesign, Premiere Pro, Lightroom
Analog
Hand Drawing, Model Making, Laser Cutting, Welding
Languages
English, Spanish, Vietnamese, Korean, Chinese
Roche Bobois, Dallas, TX
3D Design Specialist
December 2024 - Present
• Assist Sales Team with all aspects of design projects from concept to completion
• Draft and render floor plans, furniture layout, and decor for client presentations
• Facilitate client meetings to ensure design visions and goals are accurately met
• Maintain strong client relationships by exceeding expectations with high-quality design services
Inclusive Wellness Design, Dallas, TX
Interior Design Intern
August 2024 - December 2024
• Collaborate with lead designer to curate workspace settings and event displays
• Assist with procurement of FF&E according to ethical manufacturing and sustainability standards
• Document interior spaces including construction drawings and finish selections
• Develop interior design solutions in collaboration with a multi-disciplinary team through all project phases
WRA Architects, Dallas, TX
Interior Design Intern
May 2022 - August 2022
• Updated in-office material library of 200+ brands as a sustainability committee member.
• Arranged 15 furniture package selections and presentations to Dallas/Fort Worth clients.
• Produced 30 floor plan iterations suited for space optimization in educational facilities.
• Visited ongoing projects on-site to verify construction quality and interior design choices.
G-Force, Austin, TX
Manager
December 2023 - Present
• Established social media pages to expand audience and maintain presence through updates.
• Main point of contact for clients interested in scheduling group performances for various events.
• Grew Austin clientele by 300% from word-of-mouth recommendations and networking.
Texas Forestry Association Excellence in Wood Design Award
Overton Shalmire Scholarship in Architecture
Lynne Brundrett Maddox Scholarship in Interior Design
School of Architecture Freshman Scholarship
September 2023
September 2022
August 2021
August 2019