KTIRIO & CONSTRUCTION SITE I JUNE 2023

Page 1

ΕΡΓΟΤΑΞΙΟ ΤΕΥΧΟΣ 6 / ΙΟΥΝΙΟΣ 2023 / 15,00€ ΑΡΧΙΤΕΚΤΟΝΙΚΗ | ΤΕΧΝΟΛΟΓΙΑ | ΕΦΑΡΜΟΓΕΣ | ΥΛΙΚΑ | "STOP A.Ε.Β.Ε" ΒΙΟΤΕΧΝΙΚΟ ΚΤΙΡΙΟ ΣΤΟΝ ΠΕΙΡΑΙΑ ΑΝΑΒΑΘΜΙΣΗ ΜΑΡΙΝΑΣ ΒΟΥΛΙΑΓΜΕΝΗΣ ΠΑΡΚΟ ΒΙΟΤΕΧΝΟΛΟΓΙΑΣ ΣΤΑ ΣΠΑΤΑ ΑΠΟΜΑΚΡΥΣΜΕΝΗ ΠΑΡΑΚΟΛΟΥΘΗΣΗ ΕΡΓΟΤΑΞΙΟΥ ΣΥΜΜΕΙΚΤΕΣ ΚΑΤΑΣΚΕΥΕΣ ΥΠΟΣΚΑΦΑ ΚΤΙΡΙΑ

Πρώτες σελίδες / Απόψεις

24 Η αυτοματοποίηση στις κατασκευές

Αλέξης Αλεξίου

Εργοτάξια

"STOP S.A." νέο βιοτεχνικό κτίριο στον Πειραιά

28 Σύμμεικτη κατασκευή

R.C.Tech

38

Μελέτη φωτισμού

PROLIGHT

Μαρίνα Βουλιαγμένης

42 Αναβάθμιση & εκσυγχρονισμός

ΑΕΤΕR Architects

52

Δημόσιος χώρος και διαμόρφωση τοπίου

Neiheiser Argyros

"Athens LifeTech Park"

58 Σύνθετο κέλυφος με καμπύλες γεωμετρίες

Potiropoulos+Partners

68 Μελέτη τοπίου

H. Pangalou & Associates

70 Μελέτη φωτισμού

ASlight

Επιχειρηματικό πάρκο "Joist"

74 Επανάχρηση βιοτεχνικού κτιρίου στη Λάρισα

aether:arch

Τεχνικές σελίδες

85 Το φράγμα υδρατμών στις κτιριακές κατασκευές

Πότε και πού τοποθετείται για την αποφυγή σοβαρών προβλημάτων

υγρασίας και την "αναπνοή" του δομικού στοιχείου.

97 Σύμμεικτες κατασκευές

Δομικά στοιχεία από διατομές μορφοχάλυβα και οπλισμένου

σκυροδέματος αποτελούν τις σύγχρονες τάσεις δόμησης.

105 Επισκευή όψεων

Τεχνικές επέμβασης και υλικά αποκατάστασης

για εξασφάλιση βιωσιμότητας και αντοχής στον χρόνο.

113 Υπόσκαφα κτίρια

Εξώφυλλο: Μαρίνα Βουλιαγμένης, ΑΕΤΕR Architects, Φωτογραφία: ΑΕΤΕR Architects Απαγορεύεται η αναδημοσίευση κειμένων & φωτογραφιών, χωρίς τη γραπτή άδεια του εκδότη. Το περιεχόμενο των άρθρων εκφράζει τον συντάκτη και όχι απαραίτητα τη διεύθυνση του περιοδικού.

28

42 58

Τα ενεργειακά οφέλη και οι νομοθετικές διατάξεις που διέπουν την κατασκευή τους.

121 Απομακρυσμένη παρακολούθηση εργοταξίου

Σύγχρονα συστήματα ασφαλείας για την επιτήρηση και προστασία των εγκαταστάσεων.

Building Show by KTIRIO

130 Βιομηχανικό συγκρότημα "Raycap"

Μπαλλιάν Τεχνική Α.Ε.

132 Πρώην βασιλικά ανάκτορα του Ψυχικού Berios

134 Αναβίωση του "Όλυμπος Νάουσα"

Ελέμκα Α.Ε.

136 Ανακατασκευή κτιρίου γραφείων "Roche Hellas"

Redex Α.Ε.

138 Κτίριο γραφείων στη Λ. Αλεξάνδρας

Τen Τec S.A.

140 Ξενοδοχείο "Moxy Athens City"

Vitael S.A.

142 Boutique ξενοδοχείο "Mileo"

XKS Architects and Engineers

Το βήμα των εταιρειών

145 Ειδήσεις - Απόψεις - Σύγχρονες τεχνολογίες -

Υλικά και εφαρμογές τους

3 ΙΟΥΝΙΟΣ 2023
74 ΠΕΡΙΕΧΟΜΕΝΑ

ΤΕΧΝΙΚΟ ΕΡΓΟ, ΠΕΡΙΒΑΛΛΟΝ ΚΑΙ ΠΟΛΙΤΙΣΜΟΣ

Το περιοδικό ΚΤΙΡΙΟ, από την πρώτη μέρα της κυκλοφορίας του είναι αφιερωμένο στην ανάπτυξη του κλάδου των κατασκευών και στη διαμόρφωση ενός "τεχνικού πολιτισμού" και μιας σωστής νοοτροπίας, προσφέροντας ιδέες αρχιτεκτονικής, νέα υλικά και νέες τεχνολογίες, που υποστηρίζουν τη δημιουργία ενός ποιοτικού κτισμένου περιβάλλοντος και την προστασία

του φυσικού περιβάλλοντος στην Ελλάδα.

Από τα πρώτα χρόνια της κυκλοφορίας του, το 1986, πάντα πρωτοπόρο, δημοσιεύει τεχνικά άρθρα και εκδίδει

ειδικά βιβλία μ’ αυτά τα θέματα.

Περιβάλλον όμως δεν είναι μόνο τα κτίρια, τα πράσινα

δένδρα και τα φυτά, η θάλασσα και ο αέρας που αναπνέουμε.

Περιβάλλον είναι και οι άνθρωποι, οι φίλοι μας, η οικογένεια και οι επαγγελματικοί μας συνεργάτες.

Περιβάλλον είναι οι χώροι της εργασίας και της κατοικίας μας, οι κοινόχρηστοι χώροι της πολυκατοικίας μας, ο

κήπος και η γειτονιά μας, είναι οι δημόσιοι χώροι με την

καθαριότητα και την αισθητική τους.

Περιβάλλον είναι οι δρόμοι και τα πεζοδρόμια που

κινούμαστε, είναι τα λεωφορεία, το μετρό, τα τρένα και οι

σταθμοί τους, είναι και το περιβάλλον που διαμορφώνει η

προβληματική κυκλοφορία των αυτοκινήτων μας.

Περιβάλλον διαμορφώνουν και η εγκληματικότητα και η

ανασφάλεια που βιώνουμε, η ποιότητα των νοσοκομείων

και των υπηρεσιών τους, η ποιότητα των κτιρίων στα

δικαστήρια, στα σχολεία, στα πανεπιστήμια και στους

αθλητικούς χώρους.

Περιβάλλον επίσης διαμορφώνουν και η αργή δικαιοσύνη, η ατιμωρησία και η ανοχή της αναρχίας, όπως και το

επίπεδο της κοινωνικής παιδείας των πολιτών της χώρας

που ζούμε.

Χρειάζεται η κατάλληλη νοοτροπία και ο πολιτισμός για

να τα αναγνωρίσουμε και να τα διαχειριστούμε όλα αυτά.

Διότι ο πολιτισμός δεν περιορίζεται στην τέχνη, στα ωραία

ρούχα, στα ποιοτικά σπίτια, στα εντυπωσιακά αυτοκίνητα

και γενικότερα στη λαμπερή εμφάνιση, αλλά είναι κάτι

βαθύτερο!

Ο πολιτισμός ενεργοποιεί τον άνθρωπο να κάνει ανάλογα

έργα ώστε να βελτιώνει το γενικότερο περιβάλλον

του και του επιτρέπει να κατανοεί τις αιτίες για όλες

τις αδυναμίες του κράτους. Παράλληλα του δίνει τις

δυνατότητες για να επεμβαίνει στη βελτίωσή τους και

να έχει ανάλογες απαιτήσεις από αυτούς που επέλεξε να τον εκπροσωπούν στη διακυβέρνηση της χώρας!

Όλοι οι μηχανικοί με τη δουλειά μας επηρεάζουμε

σημαντικά τη διαμόρφωση του δομημένου περιβάλλοντος

και πρέπει να έχουμε παράλληλα την ευαισθησία για την αειφορία, τον περιορισμό της κατανάλωσης ενέργειας

στα κτίρια και την προστασία του φυσικού περιβάλλοντος.

Παράλληλα έχουμε τη δυνατότητα να αναγνωρίζουμε και

να ελέγχουμε την ποιότητα των έργων που γίνονται και

αφορούν το ευρύτερο περιβάλλον μας!

Αυτό το τεύχος είναι αφιερωμένο σε όλους τους

μηχανικούς και σε όλες τις τεχνικές εταιρείες της χώρας

που ανακαινίζουν τα παλαιότερα κτίρια ή κατασκευάζουν

νέα ποιοτικά κτίρια και έχει ως στόχο να συμβάλλει στην

ανάδειξη των μεγάλων δυνατοτήτων τους και των ποιοτικών

έργων τους, όπως και στην ανάδειξη της σημασίας που

έχει η δουλειά τους στην ποιότητα ζωής και στον πολιτισμό

της χώρας μας.

Πέτρος Παπαϊωάννου Εκδότης - Πολιτικός μηχανικός

2023

17 ΙΟΥΝΙΟΣ
ΕΚΔΟΤΙΚΟ

Συνέντευξη

του ΑΛΕΞΗ ΑΛΕΞΙΟΥ, πολιτικού μηχανικού, Construction Project Manager, ΤΕΡΝΑ Α.Ε.

Η ΑΥΤΟΜΑΤΟΠΟΙΗΣΗ

ΣΤΙΣ ΚΑΤΑΣΚΕΥΕΣ

"Οι νέες τεχνολογίες είναι απαραίτητες για τη μελέτη, την παρακολούθηση, τον έλεγχο και την πιστοποίηση των βιώσιμων μεθόδων παραγωγής έργων."

Κ: Ποιες είναι οι τεχνολογίες που θα επηρεάσουν το μέλλον των κατασκευών μέσα στην επόμενη δεκαετία; Ποιες νέες δυνατότητες μας παρέχουν και ποιες καταργούν;

1. Φωτογραφική αποτύπωση με τηλεκατευθυνόμενο μη επανδρωμένο αεροσκάφος (drone) κατά τη φάση κατασκευής ηλεκτροπαραγωγικής μονάδας

φυσικού αερίου στην Κομοτηνή.

Πηγή: ΤΕΡΝΑ Α.Ε.

2. Η εικονική πραγματικότητα

μπορεί να προβάλλει ένα εικονικό

αντικείμενο στον πραγματικό χώρο

ή

στον ψηφιακό χώρο.

Πηγή: istockphoto.com

3. Εικονικό μοντέλο

κτιρίου με ΒΙΜ.

Πηγή: ZWP Ingenieur-AG.

Ο

κλάδος των κατασκευών βρίσκεται σε φάση ψηφιακού μετασχηματισμού, παρακολουθώντας την τρέχουσα τάση της αυτοματοποίησης και της ανταλλαγής δεδομένων στις τεχνολογίες παραγωγής σε μια περίοδο που δικαιολογημένα πήρε τον χαρακτηρισμό 4η βιομηχανική επανάσταση. Κάποιες από αυτές τις νέες τεχνολογίες, που ήδη επηρεάζουν και σίγουρα θα είναι σημαντικές για το μέλλον των κατασκευών την επόμενη δεκαετία, είναι κυρίως οι εξής:

• Η προσομοίωση κτιρίων (BIM), μια μέθοδος εκπόνησης τεχνικών μελετών που παρουσιάζει τις φυσικές και λειτουργικές ιδιότητες ενός τεχνικού έργου σε ένα εικονικό μοντέλο.

• Το Διαδίκτυο των Κατασκευών (Internet of Construction - IoC), η ασύρματη ανίχνευση και η διασύνδεση των μηχανημάτων. Αισθητήρες είναι δυνατόν να διαταχθούν στο εργοτάξιο και να μετρούν επίπεδα θορύβου, θερμοκρασίες, δονήσεις, μετακινήσεις και να προειδοποιούν για κινδύνους, ελαχιστοποιώντας ανεπιθύμητα συμβάντα.

• Τα τρισδιάστατα λέιζερ (3D lasers) τα οποία "σαρώνουν", δηλαδή υπολογίζουν συντεταγμένες στο πεδίο και η ψηφιακή πληροφορία μεταφέρεται στον ηλεκτρονικό υπολογιστή (point cloud) ως νέφος σημείων (συντεταγμένες).

• Η εικονική πραγματικότητα στις διάφορες μορφές της. Από την Virtual Reality (VR) η οποία αποτελεί μία προσομοίωση που δημιουργείται εξ ολοκλήρου από ένα υπολογιστικό σύστημα, έως

24 ΙΟΥΝΙΟΣ 2023 ΑΠΟΨΕΙΣ
1 2

την Augmented Reality (AR) ή αλλιώς επαυξημένη πραγματικότητα, που είναι μια άμεση ή έμμεση προβολή ενός εικονικού αντικειμένου στον πραγματικό χώρο ή ακόμη και την Mixed Reality (MR), τη μεικτή πραγματικότητα, η οποία είναι συνδυασμός και αλληλεπίδραση του αληθινού και του ψηφιακού κόσμου. • Η τρισδιάστατη εκτύπωση (3D printing), μια μέθοδος προσθετικής κατασκευής, στην οποία κατασκευάζονται αντικείμενα μέσω της διαδοχικής πρόσθεσης επάλληλων στρώσεων υλικού. Στην τρισδιάστατη εκτύπωση μπορούν να χρησιμοποιηθούν διάφοροι τύποι υλικού και η τεχνολογία διαρκώς εξελίσσεται. Ήδη στην Ολλανδία σπίτια, κατασκευασμένα από σκυρόδεμα με τρισδιάστατη εκτύπωση, έχουν δεχθεί τους πρώτους τους ενοίκους.

• Ο αυτόνομος εξοπλισμός μηχανημάτων, ο οποίος μειώνει το κόστος κατασκευής και περιορίζει τις πιθανότητες λάθους, μπορεί να χρησιμοποιηθεί σε μεγάλης κλίμακας έργα.

• H τεχνητή νοημοσύνη (AI), μέσω της οποίας μπορούμε να εξοικονομούμε πόρους. Η αυτόματη αναγνώριση βλαβών καθιστά τις επιθεωρήσεις πιο γρήγορες, φθηνότερες και αποτελεσματικότερες.

• Οι εφαρμογές ολοκληρωμένης παρακολούθησης και διοίκησης έργων (π.χ. PROCORE), με τις οποίες παρακολουθούμε και ενημερώνουμε στοιχεία του έργου, όπως σχέδια, μελέτες, προδιαγραφές, συμβατικά αρχεία, παρατηρήσεις, RFI, υποβολές, φωτογραφικό αρχείο, επιθεωρήσεις, περιστατικά, λίστα "punch" και έχουμε άμεση και εύκολη πρόσβαση, ακόμη και μέσω του κινητού τηλεφώνου μας. Όλες οι παραπάνω νέες τεχνολογίες βοηθούν στην ποιοτική κατασκευή των έργων και στη συνεργασία μεταξύ των τεχνικών, στην εκπαίδευση των εργαζομένων, στη διαχείριση του έργου, στη λεπτομερέστατη παρουσίαση του έργου και στην επικοινωνία με τους συντελεστές του έργου (μελετητές, ιδιοκτήτες, project managers κτλ.).

Κ: Τι ισχύει στην ελληνική κατασκευαστική πραγματικότητα; Αυτή η τεχνολογική ανάπτυξη βρίσκει έδαφος στα έργα που γίνονται σήμερα ή που πρόκειται να γίνουν από τις μεγάλες τεχνικές εταιρείες; Και αν ναι, θα αφορά κυρίως σε μεγάλα έργα ή θα μπορούσε να υιοθετηθεί και από μικρότερης κλίμακας έργα; Αυτή η τεχνολογική ανάπτυξη αρχίζει –έστω και με πολύ συγκρατημένα βήματα– να βρίσκει εφαρμογή σε μεγάλα έργα. H υγιής, ισοβαρής και ποιοτική ανάπτυξη των κατασκευών επιβάλλει την υιοθέτηση αυτών των τεχνολογιών και σε μικρότερης κλίμακας έργα, ακόμη και σε μικρά ιδιωτικά οικιστικά έργα. Αυτό βέβαια λόγω και των ιδιαιτεροτήτων

της κατασκευαστικής αγοράς στη χώρα μας με τις δυσανάλογα πολλές

μικρές ή και ατομικές κατασκευαστικές εταιρείες πιθανόν να αργήσει.

Κ: Πόσο έτοιμος είναι ο τομέας των κατασκευών στη χώρα μας για να αντεπεξέλθει σε μια τέτοια πρόκληση;

Ο κατασκευαστικός κλάδος περνάει μια μεταβατική φάση μετά από την πολύ δύσκολη περίοδο της οικονομικής κρίσης. Στην πορεία ανάπτυξης που διαγράφεται, αντιμετωπίζει νέες προκλήσεις, όπως η υγειονομική κρίση και ο πόλεμος στην Ουκρανία, που έχουν τεράστιες συνέπειες τόσο στις τιμές και στη διαθεσιμότητα των πρώτων υλών, όσο και σε ελλείψεις σε στελεχιακό και εργατικό προσωπικό. Η βιομηχανία της κατασκευής στη χώρα μας μοιάζει έτοιμη μετά από όλες αυτές τις "Συμπληγάδες" να μπορέσει να αποφέρει στην ελληνική οικονομία το τεράστιο και σημαντικό ποσοστό, που θα πρέπει να της αναλογεί. Η πολυπόθητη ανάπτυξη στον χώρο των κατασκευών με την εκτέλεση μεγάλων έργων ιδιωτικών, δημόσιων, σύμπραξης δημόσιου και ιδιωτικού τομέα (ΣΔΙΤ) θα πρέπει να είναι άρρηκτα συνδεδεμένη με την ανάπτυξη τεχνολογικών εργαλείων και εφαρμογών.

Κ: Τα επόμενα χρόνια εκτός από τις τεχνολογικές εξελίξεις ο πλανήτης μας προβλέπεται να αντιμετωπίσει και μείζονα προβλήματα, που προέρχονται κυρίως από την κλιματική αλλαγή, την υπερβολική εξόρυξη των ορυκτών πόρων, τα απόβλητα των κατασκευών και κατεδαφίσεων κτλ. Πώς πιστεύετε ότι οι αναδυόμενες τεχνολογίες θα συμβάλουν στην αντιμετώπισή τους; Η αειφορία και η βιωσιμότητα των κατασκευών είναι πλέον σημαντικός στόχος του κατασκευαστικού κλάδου. Δεν είναι τυχαίο ότι οι "πράσινες" πιστοποιήσεις εταιρειών αλλά και μεμονωμένων κτιρίων ή έργων αποκτούν ολοένα και μεγαλύτερη σπουδαιότητα στην ποιοτική ανάπτυξη των κατασκευών. Οι νέες τεχνολογίες είναι απαραίτητες για τη μελέτη, την παρακολούθηση, τον έλεγχο και την πιστοποίηση των βιώσιμων μεθόδων παραγωγής έργων.

Κ: Σε ό,τι αφορά στον τομέα εργασίας και επαγγελματικής απασχόλησης ποια πιστεύετε ότι είναι τα νέα ζητούμενα "εργαλεία"προσόντα που πρέπει να έχει ένας μηχανικός;

Η κατασκευή, όπως και άλλοι οικονομικοί κλάδοι, πέρασε μια περίοδο "υπερεξειδίκευσης".

Η υιοθέτηση όμως νέων τεχνολογιών, η βιώσιμη διαχείριση πόρων, η ασφάλεια και υγιεινή των εργαζομένων επιβάλλουν πλέον πιο συνδυαστικές επιστημονικές γνώσεις και κατάρτιση. Γνώσεις που αφορούν στη νομοθεσία, στην οικονομία

ΑΠΟΨΕΙΣ 25 ΙΟΥΝΙΟΣ 2023 3

ΝΕΟ ΒΙΟΤΕΧΝΙΚΟ

σε δείκτες LEED

Αρχιτεκτονική μελέτη: R.C.TECH

Γιάννης Δουρίδας, Χριστίνα Κόντου, Δήμητρα Σταθοπούλου, Ελεάννα Μπρέζα, Πηνελόπη Μαμούρα, Μαντώ Σκούρα, Αλίκη Παπαμιχαλοπούλου, Βέρα Κανελλοπούλου

Τεχνική διεύθυνση έργου: Βασίλης Δουρίδας, Μάρκος Δουρίδας, Εύη Παναγιωτοπούλου

Μηχανολογική μελέτη: JEPA - Ι. Παπαγρηγοράκης & Συνεργάτες

Στατική μελέτη: Ergon Analysis

Κατασκευή: ΜΠΑΛΛΙΑΝ ΤΕΧΝΙΚΗ Α.Ε.

Τοπογραφική μελέτη: Αναστάσιος Μουντανέας

Μελέτη φωτισμού: Prolight Design

Σύμβουλος LEED: DCarbon

Commissioning: VPC

Παρουσίαση: R.C.TECH

Φωτογραφίες: Αθηνά Σούλη

Φωτογράφιση με drone: Βαγγέλης Μιχελιδάκης

28 ΙΟΥΝΙΟΣ 2023
ΚΤΙΡΙΟ ΣΤΟΝ ΠΕΙΡΑΙΑ
Σύμμεικτη κατασκευή
και υψηλή απόδοση
29 ΙΟΥΝΙΟΣ 2023
42 ΙΟΥΝΙΟΣ 2023 ΕΡΓΟΤΑΞΙΟ

Αρχιτεκτονική μελέτη: ΑΕΤΕR Architects

Ομάδα αρχιτεκτονικής μελέτης:

Χάρρυ Μπουγαδέλλης

Θάνος Αθανασόπουλος

Μαρία Ρίζου, Στεφανία Καψάσκη, Πηνελόπη Κουγιανού, Σπυριδούλα Κουλουμπή, Μαρία Χριστίνα Σκιαδά

Κύριος του έργου: Αστήρ Μαρίνα Βουλιαγμένης Α.Ε.

Στατική μελέτη: ΤΤΑ Α.Ε.

Μελέτη Η/Μ εγκαταστάσεων: TEAM M-H Σύμβουλοι Μηχανικοί A.Ε.

Μελέτη λιμενικών έργων: Marnet A.T.E.

Μελέτη περιβάλλοντος χώρου: Neiheiser Argyros

Κυκλοφοριακός & υδραυλικός σχεδιασμός: Δρόμος Σύμβουλοι Μελετητές Ε.Π.Ε.

Διοίκηση έργου: Hill International

Τεχνικός σύμβουλος: Περικλής Κωνσταντινίδης, πολιτικός μηχ.

Σύμβουλος φωτισμού: CK.design.Lighting

Αρχικό masterplan: KSE Studio

Παρουσίαση: ΑΕΤΕR Architects

Τρισδιάστατες απεικονίσεις: Batis 3D Design Studio

43 ΙΟΥΝΙΟΣ 2023 ΕΡΓΟΤΑΞΙΟ
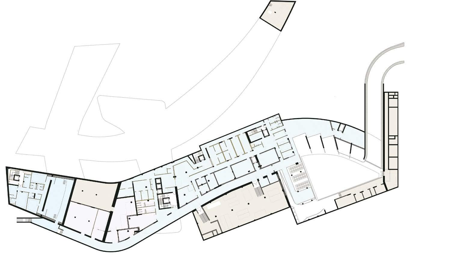
ΜΑΡΙΝΑ
ΒΟΥΛΙΑΓΜΕΝΗΣ
Αναβάθμιση & εκσυγχρονισμός των χερσαίων υποδομών

1. Astir Marina.

2. Astir Palace Hotel.

3. Ναός του Απόλλωνα Ζωστήρα.

4. Ναυτικός όμιλος Βουλιαγμένης.

5. Ακτή.

6. Λίμνη Βουλιαγμένης.

Το έργο βρίσκεται στο ακρωτήρι της Βουλιαγμένης, ένα πυκνό πευκόδασος στις νότιες ακτές της Αθήνας. Εντούτοις, ως μαρίνα, το οικόπεδο αποτελείται και από ένα νέο διαμορφωμένο τεχνητό έδαφος επάνω στο παράκτιο μέτωπο.

Σχεδιασμός περιβάλλοντος χώρου: Neiheiser Argyros

Ομάδα μελέτης: Ryan Neiheiser, Xristina Argyros, George Foufas, Tasos Theodorakakis, Eleni Vagianou, Iason Ntounis, Alkisti Michelatou, Andreas Anagnostopoulos

Ειδικός τοπίου: Simon Rackham (SRLA)

Στατικά: TTA Engineers

Η/Μ: TEAM E-M Consulting Engineers

Φωτισμός: CK Lighting

Συγκοινωνιολογικά: Dromos

Μέγεθος: 35.000 m²

Εντολέας: Αστήρ Μαρίνα

Παρουσίαση: Neiheiser Argyros

Η βασική αρχή του έργου προκύπτει μέσα από την ιδιαίτερη πρόκληση σχεδιασμού ενός τοπίου εκεί που πριν δεν υπήρχε στεριά. Ερευνήθηκαν μέθοδοι αναπαράστασης του υποθαλάσσιου τοπίου, που αποτελεί οργανική, άρρηκτη συνέχεια του ορατού εδάφους. Οι ναυτικοί χάρτες χρησιμοποιούν στάθμες, υψομετρικές καμπύλες, ανεμολόγια, χρωματικές διαβαθμίσεις και διαγραμμίσεις. Με ιδιαίτερο ενδιαφέρον οι μελετητές επικεντρώθηκαν στη λογική των ισοϋψών, ένα σύστημα από ίχνη του εδάφους προβαλλόμενα σε μια δισδιάστατη επιφάνεια. Μέσα από παλαιές στρατιωτικές αεροφωτογραφίες ανακαλύφθηκε το εξαιρετικά ενδιαφέρον γεωγραφικό παρελθόν της περιοχής: το αρχικό ή "φυσικό" ανάγλυφο, με τις ακτές, τους κόλπους και τις νησίδες του. Μέσα από τον σχεδιασμό του έργου οι μελετητές διηγήθηκαν εκ νέου αυτήν τη γεωλογική ιστορία του τόπου. Γι’ αυτόν τον λόγο πρώτη κίνηση ήταν να υπερθέσουν το σύστημα των αρχικών υψομετρικών καμπυλών στη βιομηχανική επιφάνεια της νέας μαρίνας, βρίσκοντας μέσα από την αντιπαράθεση με την αδρή γεωμορφολογία του τόπου μια εξαιρετικά ενδιαφέρουσα νέα εικόνα. Παράλληλα με τις ισοϋψείς, υπερέθεσαν και έναν κάνναβο διαστάσεων 2 x 2 (m). Τελευταίο επίπεδο του σχεδιασμού, το σύστημα των φυτεμένων νησίδων, που λειτουργούν ως "πράσινοι" φράχτες μεταξύ του παραθαλάσσιου μετώπου και του χώρου κίνησης των οχημάτων.

Μ’ αυτόν τον τρόπο ο σχεδιασμός του τοπίου αποτελεί έναν γιγάντιο χάρτη της ιστορίας αλλά και των σύγχρονων τάσεων που δρουν στο οικόπεδο, κυριολεκτικά σχεδιασμένο στις επιφάνειες της νέας μαρίνας, ως συγκερασμός διαφορετικών, συχνά συγκρουόμενων συστημάτων σε μια δημιουργική συνύπαρξη. Συμπληρωματικές σχεδιαστικές αφορμές αποτέλεσαν η ιστορία των μεσοπολεμικών λουτρικών εγκαταστάσεων της ευρύτερης περιοχής, η έντονη αρχαιολογία του τόπου, η ανάγκη ανάδειξης της τοπικής υλικότητας, της πανίδας και της χλωρίδας. Ταυτοχρόνως το έργο έχει εγγενώς

52 ΙΟΥΝΙΟΣ 2023
ΔΗΜΟΣΙΟΣ ΧΩΡΟΣ
ΚΑΙ ΔΙΑΜΟΡΦΩΣΗ ΤΟΠΙΟΥ στη Μαρίνα Βουλιαγμένης
ΕΡΓΟΤΑΞΙΟ
1 1 2 3 4 5 6

"Κατοικήσιμος"

παγκόσμιο χαρακτήρα, επιδιώκοντας να αποτελέσει έναν μοναδικό τουριστικό και εμπορικό προορισμό.

Κάνναβος προσανατολισμού

Ο κάνναβος 2 x 2 (m) προσανατολίζεται με βάση την κεντρική θαλάσσια λεκάνη, που είναι στραμμένη κατά 23° από τον βορρά. Κινούμενος στον χώρο, ο επισκέπτης μπορεί συνεχώς να ευθυγραμμίσει το σώμα του με τη χάραξη του κέντρου της μαρίνας. Παρότι ο κάνναβος επεκτείνεται σε όλο το οικόπεδο, δημιουργήθηκε μια ιεραρχία των υλικών με βάση την εκλέπτυνση και την υφή τους –μια μείξη γυαλισμένων, φλογισμένων, πελεκητών και αμμοβολημένων πλακιδίων βασάλτη στους κύριους χώρους καταστημάτων και εστίασης, αδρούς κυβόλιθους στην παραθαλάσσια πεζοδρομημένη ζώνη και δίχρωμη άσφαλτο στους δρόμους και στους βοηθητικούς χώρους. Όπου ήταν εφικτό, προτιμήθηκαν οι κοινές επιφάνειες κίνησης οχημάτων και πεζών, ελαχιστοποιώντας τις ανισοσταθμίες και τα κράσπεδα, δίνοντας προτεραιότητα στον πεζό και αναγκάζοντας το αυτοκίνητο να μειώσει ταχύτητα.

Ιστορικές ισοϋψείς

Με τις διδαχές του Δημήτρη Πικιώνη στο μυαλό, οι

1

Τοπογραφικό.

2

Το παράκτιο μέτωπο αποτελείται από ένα νέο διαμορφωμένο τεχνητό έδαφος. 3, 4

Τοποθέτηση αδρών κυβόλιθων σε κάνναβο 2 x 2 (m) στην παραθαλάσσια πεζοδρομημένη ζώνη.

53 ΙΟΥΝΙΟΣ 2023
αναλημματικός τοίχος Πράσινα νησιά Ιστορικές ισοϋψείς Κάνναβος προσανατολισμού Masterplan περιβάλλοντος χώρου ΕΡΓΟΤΑΞΙΟ
ιστορικές υψομετρικές καμπύλες εκφράστηκαν στο επίπεδο της μαρίνας με τη χρήση ρετα-
ΣΤΟΙΧΕΙΑ ΣΧΕΔΙΑΣΜΟΥ 2 3 4

Αρχιτεκτονική μελέτη: Potiropoulos+Partners

Project management: 0508 FIVE EIGHT

Στατική μελέτη: ΟΜΕΤΕ Α.Ε.

Η/Μ μελέτη: HM Εngineering A.E

Επίβλεψη: ΕΛΠΕΝ Α.Ε.

Μελέτη τοπίου: H. Pangalou & Associates Landscape Architects

Μελέτη φωτισμού: ASlight

Κυκλοφοριακός σχεδιασμός: Δρόμος Σύμβουλοι Μελετητές Ε.Π.Ε.

Ακουστική μελέτη: Timagenis Architects Acoustics Design Consultants

Περιβαλλοντική μελέτη: Δ. Αργυρόπουλος και Συνεργάτες Ο.Ε.

Ιδιοκτήτης: ΕΛΠΕΝ Α.Ε.

Τοποθεσία: Επιχειρηματικό "Πάρκο Πέτρα Γιαλού - Βούλια - Προκαλήσι", Σπάτα, Αττική

Συνολικό εμβαδό κτιρίου: 15.419 m2

Χρόνος μελέτης: 2018 - 2020

Χρόνος κατασκευής: 2019 -

Παρουσίαση: Potiropoulos+Partners

Τρισδιάστατη απεικόνιση: Batis Studio

Φωτογραφίες: Κωνσταντίνος Ρομπόρας, Potiropoulos+Partners

58 ΙΟΥΝΙΟΣ 2023 ΕΡΓΟΤΑΞΙΟ
"ATHENS LIFETECH PARK"
Σύνθετο αρχιτεκτονικό κέλυφος με καμπύλες γεωμετρίες
ΕΡΓΟΤΑΞΙΟ 59 ΙΟΥΝΙΟΣ 2023

ΕΠΙΧΕΙΡΗΜΑΤΙΚΟ

ΠΑΡΚΟ "JOIST"

Επανάχρηση μεταλλικού βιοτεχνικού κτιρίου

στη Λάρισα

Αρχιτεκτονική μελέτη: aether:arch / Αντώνιος Μόρας, Χάιδω Γεωργούλη, Μελίνα Παραφέστα,

Δέσποινα Πάλλη, Βασιλική Ιακωβάκη (αρχιτέκτονες μηχ.), Κωνσταντίνα Δαστιρίδου (πολιτικός μηχ.)

Στατική μελέτη: Concentral Group / Τάσος Νικολαΐδης

Η/Μ μελέτη: Γεώργιος Κόνιαρης

Επίβλεψη: aether:arch / Αντώνιος Μόρας, Χάιδω Γεωργούλη, Αντώνιος Κυρίτσης

Ανάπτυξη εταιρικής ταυτότητας: Cursor Design Studio

Ιδιοκτήτης: The Factory Μονοπροσωπη ΙΚΕ

Τοποθεσία: Βαλτετσίου 1, Λάρισα

Συνολικό εμβαδό κτιρίου: 1.805,4 m²

Χρόνος κατασκευής: 2021 - 2022

Παρουσίαση: aether:arch

Φωτογραφίες: Δημήτρης Πιτσίλκας, Χάιδω Γεωργούλη

74 ΙΟΥΝΙΟΣ 2023
ΕΡΓΟΤΑΞΙΟ
75 ΙΟΥΝΙΟΣ 2023 ΕΡΓΟΤΑΞΙΟ

ΦΡΑΓΜΑ ΥΔΡΑΤΜΩΝ

ΚΤΙΡΙΑΚΕΣ ΚΑΤΑΣΚΕΥΕΣ

Η ΠΑΡΑΛΕΙΨΗ ΤΟΥ, ΟΤΑΝ ΑΠΑΙΤΕΙΤΑΙ, ΜΠΟΡΕΙ ΝΑ ΠΡΟΚΑΛΕΣΕΙ ΣΟΒΑΡΑ

ΠΡΟΒΛΗΜΑΤΑ ΥΓΡΑΣΙΑΣ, ΕΝΩ Η ΤΟΠΟΘΕΤΗΣΗ ΤΟΥ, ΟΤΑΝ ΔΕΝ ΧΡΕΙΑΖΕΤΑΙ, ΠΑΡΕΜΠΟΔΙΖΕΙ ΧΩΡΙΣ ΛΟΓΟ ΤΗΝ "ΑΝΑΠΝΟΗ" ΤΟΥ ΔΟΜΙΚΟΥ ΣΤΟΙΧΕΙΟΥ

Ως φράγμα υδρατμών σε ένα δομικό στοιχείο ορίζεται η στρώση κάθε υλικού που παρουσιάζει υψηλή αντίσταση στη διάχυση των υδρατμών και πρακτικά παρεμποδίζει τη διέλευσή τους μέσα από τους πόρους της μάζας του. Τέτοια υλικά συναντώνται συχνά στα δομικά στοιχεία των κτιριακών κατασκευών και η παρουσία τους μπορεί να οφείλεται:

• είτε στην επί τούτου τοποθέτησή τους για την αποφυγή συμπύκνωσης των διαχεόμενων υδρατμών μεταξύ των στρώσεων ενός δομικού στοιχείου

• είτε στο γεγονός ότι εξ ανάγκης υπάρχουν, προκειμένου να εξυπηρετούν κάποιον συγκεκριμένο σκοπό (π.χ. τη στεγανοποιητική προστασία ενός δώματος) και επομένως εκ της φύσεώς τους παρεμποδίζουν τη διέλευση των υδρατμών, προβάλλοντας υψηλή αντίσταση σ' αυτήν

• είτε στην ανάγκη να αντιμετωπισθούν τα προβλήματα που δημιουργούν

άλλες τέτοιες αδιαπέραστες στρώσεις που βρίσκονται στη διατομή

και λειτουργούν ως φράγματα υδρατμών

ΤΕΧΝΙΚΕΣ ΣΕΛΙΔΕΣ Άρθρο του ΔΗΜΗΤΡΗ ΑΡΑΒΑΝΤΙΝΟΥ, καθηγητή στο Εργαστήριο Οικοδομικής & Φυσικής των Κτιρίων του Τμήματος Πολιτικών Μηχανικών Α.Π.Θ.
(δηλαδή όπως αυτά της
Έτσι, άλλοτε
επιβαρυντικά για τη διατομή παρά το γεγονός ΤΟ
ΣΤΙΣ
προηγούμενης περίπτωσης).
λειτουργούν
85 ΙΟΥΝΙΟΣ 2023

Πάχη στρώσεων [m]

Διαγραμματική παράσταση της πορείας της καμπύλης των πιέσεων κορεσμού (Ps) και των μερικών πιέσεων (P) σε ένα δομικό στοιχείο. Αν οι δύο καμπύλες συναντηθούν, σημαίνει ότι σ' εκείνη τη θέση θα σχηματισθεί συμπύκνωση των διαχεόμενων υδρατμών. Στο σχήμα το γραμμοσκιασμένο τμήμα ορίζει την ποσότητα των υδρατμών που θα συμπυκνωθούν. Στην πραγματικότητα στη γραμμοσκιασμένη περιοχή οι δύο καμπύλες ταυτίζονται, διότι ο αέρας των πόρων βρίσκεται σε κατάσταση κορεσμού και επομένως η καμπύλη των μερικών πιέσεων (Ρ) παρακολουθεί την καμπύλη των πιέσεων κορεσμού (Ps) και δεν λαμβάνει τιμή μεγαλύτερη αυτής.

Πλακίδια πορσελάνης ή ορθομαρμάρωση

Συνδετικό κονίαμα (π.χ τσιμεντοκονίαμα)

Οπτοπλινθοδομή

Θερμομονωτική στρώση

Φράγμα υδρατμών (π.χ

φύλλο αλουμινίου ή νάιλον)

Γυψοσανίδες (επί μεταλλικού καννάβου)

Πορεία υδρατμών

Το φράγμα ανακόπτει την πορεία

των υδρατμών στη θερμή περιοχή του δομικού στοιχείου

Στην τοιχοποιία του σκαριφήματος η εξωτερική ορθομαρμάρωση δημιουργεί τις προϋποθέσεις σχηματισμού συμπύκνωσης των διαχεόμενων υδρατμών πίσω από τις πλάκες μαρμάρου. Ομοίως, λόγω της τοποθέτησης της θερμομονωτικής στρώσης από την εσωτερική πλευρά της τοιχοποιίας, ο κίνδυνος συμπύκνωσης είναι επίσης ορατός και στη θέση επαφής της θερμομόνωσης με την οπτοπλινθοδομή. Ο κίνδυνος αποτρέπεται με την τοποθέτηση ενός φύλλου νάιλον ή ενός φύλλου αλουμινίου από την εσωτερική πλευρά της θερμομονωτικής στρώσης (θερμή περιοχή του δομικού στοιχείου).

Πηγή: Δ. Aραβαντινός Πηγή: Δ. Aραβαντινός

συναντηθούν ποτέ. Αν όμως τύχει σε κάποια θέση να συναντηθούν, σημαίνει ότι η καμπύλη των μερικών πιέσεων ταυτίζεται με την καμπύλη των πιέσεων κορεσμού και ότι σ' εκείνη τη θέση ο αέρας των πόρων βρίσκεται σε κατάσταση κορεσμού και τότε η περίσσεια υδρατμών που δεν μπορεί να τη συγκρατήσει ο αέρας εναποτίθεται ως σταγονίδια μέσα στους πόρους του δομικού στοιχείου, κοινώς μετατρέπεται σε υγρασία. Η θέση, στην οποία αυτές οι δύο καμπύλες συναντώνται –όταν συναντώνται–, είναι πρωτίστως η εξωτερική επιφάνεια της θερμομονωτικής στρώσης, επειδή η καμπύλη των πιέσεων κορεσμού παρακολουθεί την πτώση της θερμοκρασίας και σ' εκείνη τη θέση αυτή είναι απότομη, ενώ η καμπύλη των μερικών πιέσεων, καθώς περιγράφει την πραγματική κατάσταση, δεν καταφέρνει να την παρακολουθήσει με αποτέλεσμα οι δύο καμπύλες να συναντηθούν. Στη θέση ή στο τμήμα που οι δύο καμπύλες ταυτίζονται επικρατεί κατάσταση κορεσμού και η περίσσεια υδρατμών μεταπίπτει σε σταγονίδια.

Η θέση της

θερμομονωτικής στρώσης

Καθοριστικό στοιχείο για τη συνάντηση ή όχι των δύο καμπυλών αποτελεί η θέση της θερμομονωτικής στρώσης στη διατομή του δομικού στοιχείου:

• Αν η θερμομόνωση τοποθετηθεί εξωτερικά, το ενδεχόμενο συνάντησης των δύο καμπυλών, για τα ελληνικά κλιματικά δεδομένα είναι πολύ μικρό, σχεδόν δεν υφίσταται.

• Αν η θερμομόνωση τοποθετηθεί στον πυρήνα της διατομής υπάρχει μικρή πιθανότητα συνάντησης των δύο καμπυλών, αν και πάλι αυτή η πιθανότητα είναι πολύ περιορισμένη και αυτό συμβαίνει συνήθως σε μεγάλες διαφορές θερμοκρασίας

μεταξύ εσωτερικού και εξωτερικού χώρου ή σε πολύ υψηλά ποσοστά σχετικής υγρασίας του εσωτερικού χώρου (π.χ. φ > 90%).

• Αν, τέλος, η θερμομονωτική στρώση τοποθετηθεί προς

την εσωτερική πλευρά της διατομής, οι πιθανότητες είναι

μεγαλύτερες έναντι των δύο προηγούμενων περιπτώσεων.

Όμως αυτό δεν σημαίνει ότι οπωσδήποτε θα σχηματισθεί

συμπύκνωση υδρατμών· απλώς οι πιθανότητες είναι

περισσότερες. Η εκδήλωση του φαινομένου εξαρτάται και

πάλι από τα θερμοφυσικά και γεωμετρικά χαρακτηριστικά

των στρώσεων και από τις κρατούσες εσωτερικές και εξωτερικές μικροκλιματικές συνθήκες. Κατά συνέπεια, σε κάθε περίπτωση, αν κριθεί ότι υπάρχει κίνδυνος σχηματισμού συμπύκνωσης των διαχεόμενων υδρατμών, είναι σκόπιμο να προβλεφθεί η τοποθέτηση ενός φράγματος υδρατμών, που θα παρεμποδίζει αυτούς να φθάσουν

στην επίμαχη θέση. Βέβαια σε μια τέτοια περίπτωση το δομικό στοιχείο "δεν αναπνέει", κάτι που, όπως προαναφέρθηκε, δεν είναι επιθυμητό, είναι όμως αναπόφευκτο.

Η επιλογή των υλικών και της θέσης

του φράγματος υδρατμών

Τα υλικά που χρησιμοποιούνται ως φράγματα υδρατμών είναι

υλικά με υψηλή τιμή στον συντελεστή αντίστασης στη διάχυση

των υδρατμών. Συνήθως επιλέγονται υλικά ασφαλτικής βάσης (ασφαλτικές επαλείψεις ή ασφαλτικά φύλλα), φύλλα νάιλον ή

φύλλα αλουμινίου, τα οποία στις περισσότερες περιπτώσεις είναι επικολλημένα στη μία όψη του θερμομονωτικού υλικού (ως επί το πλείστον σε πλάκα ή πάπλωμα υαλοβάμβακα ή πετροβάμβακα).

ΤΕΧΝΙΚΕΣ ΣΕΛΙΔΕΣ 93 ΙΟΥΝΙΟΣ 2023
ΕΞΩ ΕΞΩ ΜΕΣΑ P d1
d4 Ps Ps Ps P1 P2 P3 Pk' Pk'' P P P Pf,i Pf,a Pa Κλίμακα πιέσεων P [N/m²]
ΜΕΣΑ
d2 d3

Κτίρια με σύμμεικτα δομικά στοιχεία κατασκευάζονται διεθνώς εδώ και πολλές δεκαετίες και αποτελούνται από τα δύο πιο δημοφιλή δομικά υλικά, τον χάλυβα και το σκυρόδεμα. Αυτά τα δύο υλικά είναι συμβατά μεταξύ τους, αφού έχουν παρόμοιο συντελεστή θερμικής διαστολής και αλληλοσυμπληρώνονται, συνδυάζοντας τη θλιπτική και εφελκυστική αντοχή του σκυροδέματος και του χάλυβα, αντίστοιχα. Έτσι, ο σχεδιασμός σύμμεικτων δομικών στοιχείων συνεπάγεται την επιλογή διατομών μικρότερου βάρους και διαστάσεων σε σύγκριση με αυτές που κατασκευάζονται αμιγώς από οπλισμένο σκυρόδεμα (Ο/Σ) ή μορφοχάλυβα. Τα σύμμεικτα κτίρια υπερτερούν έναντι των απλών μεταλλικών, διότι με τη χρήση του σκυροδέματος μειώνεται το μέγεθος των μεταλλικών διατομών και το κόστος κατασκευής. Αυτό συμβαίνει αφενός λόγω της ανάπτυξης δράσης πλακοδοκού ανάμεσα στη μεταλλική δοκό και στην πλάκα Ο/Σ και αφετέρου λόγω της πλευρικής συγκράτησης του άνω πέλματος των δοκών από την πλάκα ορόφου. Με τη χρήση σύμ-

ΔΟΜΙΚΑ

Παρουσίαση: ΔΗΜΗΤΡΙΟΣ ΞΕΝΟΣ, διπλωματούχος πολιτικός μηχ. Α.Π.Θ., δρ Πανεπιστημίου της Γλασκώβης Σχεδίαση: ARCHIL MACHARADZE, αρχιτέκτονας μηχ.

μεικτων πλακών μειώνεται ο απαιτούμενος αριθμός μεταλλικών διαδοκίδων, γεφυρώνονται μεγαλύτερα ανοίγματα και περιορίζεται ο αριθμός των τελικών μεταλλικών συνδέσεων. Ακόμη, οι απαιτήσεις των σύμμεικτων υποστυλωμάτων αναφορικά με την πυροπροστασία και τη διάβρωση καλύπτονται, όταν η μεταλλική διατομή εγκιβωτίζεται σε Ο/Σ.

Οι διατομές των σύμμεικτων δομικών στοιχείων προκύπτουν μικρότερες από τις αντίστοιχες από Ο/Σ με αποτέλεσμα τη μείωση του τελικού βάρους του κτιρίου και των αντίστοιχων σεισμικών φορτίων αλλά και του μεγέθους των στοιχείων της θεμελίωσης.

Οι σύμμεικτες δοκοί έχουν μικρότερη κρέμαση από τις δοκούς Ο/Σ με αποτέλεσμα την εξασφάλιση μεγαλύτερου ελεύθερου ύψους ορόφου, που είναι σημαντικό σε πολυώροφα κτίρια εμπορικών χρήσεων. Σ’ αυτές τις κατασκευές δεσμεύεται μια περιοχή 0,5 - 1,0 m από την κάτω παρειά της πλάκας του ορόφου για τη εγκατάσταση Η/Μ εξοπλισμού, που πολλές φορές πρέπει να διέλθει μέσα από τις δοκούς. Επιπλέον, τα μεταλλικά στοιχεία των σύμμεικτων κτιρίων αξιοποιού -

97 ΙΟΥΝΙΟΣ 2023
ΣΥΜΜΕΙΚΤΕΣ ΚΑΤΑΣΚΕΥΕΣ
ΣΤΟΙΧΕΙΑ ΑΠΟ ΔΙΑΤΟΜΕΣ ΜΟΡΦΟΧΑΛΥΒΑ ΚΑΙ ΟΠΛΙΣΜΕΝΟΥ ΣΚΥΡΟΔΕΜΑΤΟΣ ΑΠΟΤΕΛΟΥΝ
ΤΑΣΕΙΣ ΔΟΜΗΣΗΣ ΜΕ ΠΟΛΛΑΠΛΑ ΟΦΕΛΗ
ΣΥΓΧΡΟΝΕΣ

Πλάκα, σκυροδετούμενη στο εργοτάξιο

Διατμητικός ήλος

Μεταλλική διατομή

Α. Σύμμεικτη πλάκα με σκυροδέτηση στο εργοτάξιο.

Οπλισμός

Σκυρόδεμα σύνδεσης πλακών στο εργοτάξιο

Διατμητικός ήλος

Μεταλλική διατομή

Τμήμα πλάκας, σκυροδετούμενο στο εργοτάξιο

Προκατασκευασμένο πέτασμα από Ο/Σ

Β. Σύμμεικτη πλάκα με προκατασκευασμένα πετάσματα από Ο/Σ και τμήματα σκυροδετούμενα στο εργοτάξιο.

Πλάκα, σκυροδετούμενη στο εργοτάξιο

Διατμητικός ήλος

συρραφής

Προκατασκευασμένο πέτασμα από Ο/Σ

Ράβδοι οπλισμού Ο/Σ

Τραπεζοειδές χαλυβδόφυλλο

Μεταλλική διατομή

Γ. Σύμμεικτη πλάκα με προκατασκευασμένα πετάσματα από Ο/Σ.

Eίδη σύμμεικτων πλακών.

σμός προκατασκευασμένων και επί τόπου κατασκευαζόμενων τμημάτων. Σ’ αυτές τις περιπτώσεις εξασφαλίζεται η σύμμεικτη λειτουργία των μεταλλικών δοκών, ενώ οι πλάκες σχεδιάζονται ως απλά στοιχεία Ο/Σ με αποτέλεσμα να απαιτούνται πολλές φορές ικριώματα σκυροδέτησης για την υποστήριξή τους. Στην περίπτωση των προκατασκευασμένων πλακών τμήματα επάνω από την περιοχή των σύμμεικτων δοκών πρέπει να σκυροδετούνται στο εργοτάξιο για να ματίζονται οι διαμήκεις οπλισμοί και να εξασφαλίζεται η συνέχεια της πλάκας, όπως και η διατμητική σύνδεση δοκού - πλάκας σ’ αυτές τις περιοχές. Ακόμη τοποθετούνται κατά μήκος των δοκών επιπλέον οπλισμοί για να παραλάβουν τις τάσεις λόγω διατμητικής παραμόρφωσης της πλάκας, ενώ συνιστάται επάνω από την προκατασκευασμένη πλάκα η σκυροδέτηση στρώσης Ο/Σ πάχους 5 - 10 cm.

Μεταλλική διατομή

Διατμητικός ήλος

Δ. Σύμμεικτη πλάκα με τραπεζοειδές χαλυβδόφυλλο.

Εναλλακτικά, οι πλάκες μπορούν να σχεδιαστούν ως σύμμεικτες με χαλυβδόφυλλο επίπεδης ή τραπεζοειδούς διατομής στην κάτω παρειά. Στην πρώτη περίπτωση η σύμμεικτη δράση επιτυγχάνεται με τη χρήση βλήτρων και απαιτείται πάντα η υποστήριξη της πλάκας κατά τη σκυροδέτηση.

Η χρήση τραπεζοειδούς χαλυβδόφυλλου προτιμάται από τους μελετητές, διότι συνεπάγεται μεγάλη μείωση του τελι -

κού βάρους της πλάκας, αποφεύγεται η χρήση ξυλότυπου, ενώ γεφυρώνονται μεγαλύτερα ανοίγματα. Η σύμμεικτη δράση εξασφαλίζεται λόγω του σχήματος της μεταλλι -

κής διατομής και με τη χρήση βλήτρων, ενώ το πάχος του σκυροδέματος ποικίλλει, εξασφαλίζοντας οικονομία στη χρήση του υλικού. Ο προσανατολισμός του χαλυβδόφυλλου είναι σημαντι -

κός, διότι με την τραπεζοειδή διατομή του εξασφαλίζεται αυξημένη δυσκαμψία και ορθότροπη μεταφορά φορτίων

ΤΕΧΝΙΚΕΣ ΣΕΛΙΔΕΣ 99 ΙΟΥΝΙΟΣ 2023
Οπλισμός

ΕΠΙΣΚΕΥΗ ΟΨΕΩΝ

Οι εξωτερικές όψεις σχηματοποιούν και προβάλλουν τα γνωρίσματα κάθε κτιρίου προς τα έξω. Κατασκευαστικά, οι όψεις αποτελούνται από διαφορετικά δομικά στοιχεία και υλικά, με ποικίλα τεχνικά χαρακτηριστικά και διαφορετικές λειτουργίες. Η αντοχή και η διατήρηση της μορφολογικής και αισθητικής ποιότητας των εξωτερικών όψεων στο χρόνο είναι στενά συνυφασμένες με τη λειτουργική διάρκεια ζωής της κατασκευαστικής δομής και της συνεργασίας των δομικών στοιχείων που τις συνθέτουν.

Καθαρισμός όψεων

Πριν από οποιαδήποτε επισκευή πρέπει να προηγείται προσεκτικός καθαρισμός των όψεων, ο οποίος αποκαλύπτει το πραγματικό μέγεθος και την έκταση των φθορών, καθορίζει την αναγκαιότητα για περαιτέρω επισκευές και παράλληλα προετοιμάζει το υπόστρωμα για τα επόμενα στάδια. Οι μέθοδοι καθαρισμού των όψεων διαιρούνται σε τρεις μεγάλες κατηγορίες ανάλογα με το βασικό υλικό που χρησιμοποιείται ως καθαριστικό μέσο: έκπλυση με νερό, αμμοβολή και επίδραση χημικών ουσιών.

ΤΕΧΝΙΚΕΣ ΣΕΛΙΔΕΣ Παρουσίαση: ΕΛΕΥΘΕΡΙΑ ΤΙΤΟΝΗ, διπλ. αρχιτέκτονας μηχανικός, MSc.
105
ΤΕΧΝΙΚΕΣ ΕΠΕΜΒΑΣΗΣ ΚΑΙ ΥΛΙΚΑ ΑΠΟΚΑΤΑΣΤΑΣΗΣ ΓΙΑ ΕΞΑΣΦΑΛΙΣΗ ΒΙΩΣΙΜΟΤΗΤΑΣ ΚΑΙ ΑΝΤΟΧΗΣ ΣΤΟΝ ΧΡΟΝΟ
ΙΟΥΝΙΟΣ 2023

1. Καθαρισμός

2. Σφράγιση με ρητίνες και τσιμεντενέματα

3. Αφαίρεση κατεστραμμένων περιοχών

4. Καθαρισμός του οπλισμού

Ο καθαρισμός με νερό, αμμοβολή ή ειδικές χημικές ουσίες διορθώνει τις αισθητικές ατέλειες και παράλληλα απομακρύνει τα σωματίδια

και τη βρομιά, ώστε να προετοιμαστεί

η επιφάνεια για την επιδιόρθωση.

5. Ενίσχυση και προστασία οπλισμού

Ενίσχυση του οπλισμού, αν απαιτείται, και προστασία από μελλοντική διάβρωση με αντιδιαβρωτικά προϊόντα ή εφαρμογή

ηλεκτροχημικών μεθόδων.

Πηγή: Remmers, Repair and Protection of Concrete Structures.

Διορθώνει τις επιφανειακές ρωγμές, σφραγίζοντας το άνοιγμα και αποκαθιστώντας τη στατική ακεραιότητα.

Ακριβής εντοπισμός των πληγεισών περιοχών και αφαίρεση των κατεστραμμένων

κομματιών σκυροδέματος, μέχρι να αποκαλυφθεί ο οπλισμός.

Καθαρισμός του οπλισμού

που έχει πληγεί και της περιμέτρου

γύρω του έως ότου εξαφανιστεί κάθε ίχνος διάβρωσης

6. Πλήρωση σκυροδέματος 7. Επικάλυψη με ειδικές επιστρώσεις 8. Επίστρωση τελικής επιφάνειας

Πλήρωση σκυροδέματος με έγχυση ειδικού τσιμεντοκονιάματος.

Χρήση προστατευτικών επιστρώσεων

για αποφυγή μελλοντικής διάβρωσης, προστασία από τοιχογραφήματα, υγρασία κτλ., όπου απαιτείται.

Η επιλογή της κατάλληλης μεθόδου καθαρισμού για μια όψη εξαρτάται από ποικίλους παράγοντες, οι οποίοι σχετίζονται με το επίπεδο και τη φύση των ρυπογόνων ουσιών, τη χρήση του κτιρίου και τα χαρακτηριστικά των υλικών, τον προϋπολογισμό

του έργου και το αναμενόμενο αποτέλεσμα. Κατά κανόνα οι δραστικές μέθοδοι καθαρισμού έχουν άμεσα αποτελέσματα

αλλά η ισχύς τους ενδέχεται να προκαλέσει διάβρωση των

υλικών, καθιστώντας τις όψεις πιο πορώδεις και ευαίσθητες σε μελλοντική ρύπανση. Οι ηπιότερες μέθοδοι έχουν πιο διακριτικά αποτελέσματα.

Στις περιπτώσεις που οι φθορές είναι επιφανειακές, ο καθαρισμός σε συνδυασμό με τη χρήση ειδικής προστατευτικής επικάλυψης

επαρκεί για να αποκαταστήσει την εμφάνιση των όψεων. Σε

περιπτώσεις μεγαλύτερων φθορών, στο στάδιο του καθαρισμού,

η επιφάνεια απαλλάσσεται από άλατα, λάδια, σκόνη και άλλους ρύπους και τα σαθρά σημεία απομακρύνονται σε όλο το

απαιτούμενο βάθος.

Επισκευή όψεων από εμφανές σκυρόδεμα

Αν και το σκυρόδεμα από τη φύση του είναι ανθεκτικό υλικό, τα περισσότερα κτίρια με εμφανή στοιχεία σκυροδέματος στις όψεις απαιτούν συνήθως μικρότερης ή μεγαλύτερης έκτασης

Εφαρμογή ειδικής επίστρωσης επιχρίσματος για επίτευξη ομοιόμορφης τελικής επιφάνειας.

επιδιορθώσεις μετά από 20 με 40 έτη λειτουργίας. Αν μάλιστα υπήρξαν προβλήματα κατά το στάδιο της κατασκευής ή αν το κτίριο βρίσκεται σε ιδιαίτερα ψυχρό ή υγρό κλίμα ή σε έντονα διαβρωτικό περιβάλλον, οι μηχανισμοί αλλοίωσης επιταχύνονται. Οι φθορές των όψεων ποικίλλουν ως προς τη σοβαρότητα και, εκτός από τις αισθητικές ατέλειες που προκαλούν, μπορούν να οδηγήσουν και σε πιο σοβαρές καταστάσεις, όπως προβλήματα στεγανότητας των εσωτερικών χώρων, στατικής επάρκειας και ασφάλειας χρήσης.

Ενδεδειγμένες επισκευαστικές τεχνικές

Οι τεχνικές επισκευής όψεων εμφανούς σκυροδέματος μπορούν σε γενικές γραμμές να καταταχθούν στις εξής κατηγορίες ανάλογα με το βαθμό επέμβασης:

Σφράγιση με ρητίνες και τσιμεντενέματα

Είναι η πιο αποτελεσματική τεχνική επισκευής επιφανειακών ρωγμών και οπών στο σκυρόδεμα, σε περιπτώσεις που δεν έχει προκληθεί διάβρωση του οπλισμού. Η σφράγιση γίνεται με εποξειδικές ρητίνες (ρητινενέσεις) ή με τσιμεντενέματα, τα οποία εγχέονται στη ρωγμή, σφραγίζοντας το άνοιγμα και αποκαθιστώντας πλήρως τη στατική ακεραιότητα και τη μονολιθικότητα της κατασκευής.

ΤΕΧΝΙΚΕΣ ΣΕΛΙΔΕΣ 106 ΙΟΥΝΙΟΣ 2023 ΣΥΓΧΡΟΝΑ ΣΥΣΤΗΜΑΤΑ ΕΠΙΔΙΟΡΘΩΣΗΣ ΟΨΕΩΝ ΕΜΦΑΝΟΥΣ ΣΚΥΡΟΔΕΜΑΤΟΣ
1 2 3 4 5 6 7 8

ΥΠΟΣΚΑΦΑ ΚΤΙΡΙΑ

ΤΑ ΕΝΕΡΓΕΙΑΚΑ ΟΦΕΛΗ ΚΑΙ ΟΙ ΝΟΜΟΘΕΤΙΚΕΣ ΔΙΑΤΑΞΕΙΣ

ΠΟΥ ΔΙΕΠΟΥΝ ΤΗΝ ΚΑΤΑΣΚΕΥΗ ΤΟΥΣ

"nCaved ", Σέριφος. Αρχιτεκτονική μελέτη: Ηλιάνα Κερεστετζή / Mold architects. © Γιώργης Γερόλυμπος.

Άρθρο της:

ΑΓΓΕΛΙΚΗΣ ΧΑΤΖΗΔΗΜΗΤΡΙΟΥ, διπλ. αρχιτέκτονα μηχ., ΜΑ (env), PhD

Τα κτίρια που καλύπτονται από το έδαφος διακρίνονται σε διάφορους τύπους ανάλογα με τη θέση τους σε σχέση με τη στάθμη του εδάφους και την κάλυψη των δομικών στοιχείων και μπορούν να κατηγοριοποιηθούν σε: • αυτά που βρίσκονται εξ ολοκλήρου κάτω από τη στάθμη του φυσικού εδάφους, καλύπτονται από το φυσικό έδαφος στην αρχική του μορφή και έχουν πρόσβαση, φωτισμό και αερισμό από υποβαθμισμένα

αίθρια ή υπαίθρια περάσματα, • αυτά που βρίσκονται εξ ολοκλήρου ή μερικώς επάνω από τη στάθμη του φυσικού εδάφους και καλύπτονται πλήρως με χώμα, δημιουργώντας έναν τεχνητό λόφο γύρω από τους τοίχους και την οροφή και αφήνοντας ελεύθερη μια όψη ή καλύπτοντας με χώμα την οροφή και τη βάση τους, ενώ οι τοιχοποιίες μένουν μερικώς ακάλυπτες για τη διάνοιξη ανοιγμάτων ή φεγγιτών.

113 ΙΟΥΝΙΟΣ
2023

Ανοίγματα φωτισμού και αερισμού σε υπόσκαφα κτίρια. Μονόπλευρος αερισμός.

φωτισμού και αερισμού σε υπόσκαφα κτίρια. Διαμπερής αερισμός.

Ανοίγματα φωτισμού και αερισμού σε υπόσκαφα κτίρια. Πολλαπλές κατακόρυφες δίοδοι για κατακόρυφα ανοίγματα και φεγγίτες.

του εδάφους (με εξαίρεση θερμομονωτικά υλικά απρόσβλητα

από την υγρασία).

Στον Κ.Εν.Α.Κ. καθορίζονται οι μέγιστοι επιτρεπόμενοι συντελεστές θερμοπερατότητας για τα δομικά στοιχεία σε επαφή με το

έδαφος για κάθε θερμική ζώνη στην Ελλάδα. Επίσης καθορίζονται οι συντελεστές θερμικής μετάβασης και για τον έλεγχο

της θερμομονωτικής επάρκειας του κτιρίου, στα δομικά στοιχεία σε επαφή με το έδαφος λαμβάνεται υπόψη ο ονομαστικός συντελεστής θερμοπερατότητας με μηδενική εξωτερική αντίσταση θερμικής μετάβασης (Ra=0 m2·K/W).

Η θέση της θερμομονωτικής στρώσης δεν επηρεάζει τον υπολογισμό του συντελεστή θερμοπερατότητας, όμως η τοποθέτηση της στην εξωτερική πλευρά μεταξύ των δομικών στοιχείων και του εδάφους επιτρέπει την αξιοποίηση της θερμοχωρητικότητας των υλικών δόμησης στον εσωτερικό χώρο.

θερμοχωρητικότητας

θερμοχωρητικότητας του εδάφους για τη μείωση των απαιτήσεων του κτιρίου σε θέρμανση και δροσισμό. Το φυσικό έδαφος, λόγω της περιεκτικότητας του σε υγρασία έχει υψηλή θερμική αδράνεια και διατηρεί σχετικά σταθερή θερμοκρασία καθ’ όλη τη διάρκεια του χρόνου. Η διακύμανση της θερμοκρασίας του εδάφους μειώνεται με την αύξηση του βάθους και σταθεροποιείται σε μεγάλο βαθμό περίπου 6 m κάτω από την στάθμη του φυσικού εδάφους καθ’ όλη τη διάρκεια του χρόνου. Επιπλέον, η επαφή του κτιρίου με το έδαφος προσφέρει προστασία από τους ψυχρούς ανέμους, τις κατακρημνίσεις, την ηλιακή ακτινοβολία και τις διακυμάνσεις της εξωτερικής θερμοκρασίας με αποτέλεσμα την ελαχιστοποίηση των θερμικών κερδών και απωλειών μέσω του κτιριακού κελύφους. Σημειώνεται ότι σε ορισμένες περιοχές, όπως στην Α’ κλιματική ζώνη στην Ελλάδα, η τοποθέτηση της θερμομονωτικής στρώσης στις τοιχοποιίες και στα δάπεδα που βρίσκονται σε επαφή με το έδαφος μπορεί να εμποδίζει την αξιοποίηση της υψηλής θερμοχωρητικότητας του εδάφους για το δροσισμό, κατά τη θερινή περίοδο, και οι απαιτήσεις του Κ.Εν.Α.Κ. για τη θερμική προστασία αυτών των δομικών στοιχείων (μέγιστος επι-

ΤΕΧΝΙΚΕΣ ΣΕΛΙΔΕΣ 116 ΙΟΥΝΙΟΣ 2023
του εδάφους Η επαφή του μεγαλύτερου τμήματος του περιβλήματος ενός υπόσκαφου κτιρίου με το έδαφος επιτρέπει την αξιοποίηση της Ανοίγματα
Αξιοποίηση

ΣΥΓΧΡΟΝΑ

Άρθρο του: ΔΗΜΗΤΡΗ ΠΑΠΑΔΟΠΟΥΛΟΥ, δρ. μηχανολόγου μηχανικού Ε.Μ.Π.

Ένα σοβαρό πρόβλημα, που συχνά ανακύπτει σε κάποιον κατασκευαστή ή εργολάβο με την ολοκλήρωση των διαδικασιών υπογραφής ανάθεσης ενός έργου, είναι ο τρόπος με τον οποίο θα πρέπει να ελέγχει την εξέλιξή του, καθώς και να επιτηρεί και να διαφυλάττει την προστασία των εγκαταστάσεων, των υλικών και του εξοπλισμού υλοποίησης των έργων του εργοταξίου από φυσικές καταστροφές, κακόβουλες ενέργειες ή άλλους τυχαίους παράγοντες.

Εργοτάξιο - Κίνδυνοι

Στη σύγχρονη εποχή η ασφάλεια για το κόστος του χρήματος που διατίθεται για την ολοκλήρωση ενός έργου παρουσιάζει υψηλή μεταβλητότητα και απαιτούνται προσεκτικοί χειρισμοί, κατά τη διάρκεια της υλοποίησης του έργου, καθώς και οι διάφοροι απρόβλεπτοι ασφαλι-

121 ΙΟΥΝΙΟΣ 2023 ΤΕΧΝΙΚΕΣ ΣΕΛΙΔΕΣ
ΣΥΣΤΗΜΑΤΑ ΑΣΦΑΛΕΙΑΣ ΓΙΑ ΤΗΝ ΕΠΙΤΗΡΗΣΗ ΚΑΙ ΠΡΟΣΤΑΣΙΑ ΤΩΝ ΕΓΚΑΤΑΣΤΑΣΕΩΝ
ΑΠΟΜΑΚΡΥΣΜΕΝΗ ΠΑΡΑΚΟΛΟΥΘΗΣΗ ΕΡΓΟΤΑΞΙΟΥ

1. Απομακρυσμένη παρακολούθηση σε εργοτάξιο με συσκευές επιτήρησης και κάμερες ασφαλείας. Πηγή: Sirix.

στικοί κίνδυνοι καθιστούν επιτακτική την ανάγκη τήρησης των χρονικών δεσμεύσεων για την ολοκλήρωσή του και την

έγκαιρη απόδοσή του στον δικαιούχο.

Οι παραπάνω λόγοι σε συνδυασμό με την αλματώδη εξέ -

λιξη των τηλεπικοινωνιών, της επιστήμης της πληροφορικής

και της τεχνολογίας των υλικών οδήγησαν πολλούς ερευ -

νητές και εταιρείες, κάνοντας τη σωστή "ανάγνωση" των

αναγκών της αγοράς, να παρουσιάσουν αρκετές σοβαρές

προτάσεις που δίνουν λύσεις σε πλήθος προβλημάτων, τα

οποία προκύπτουν κατά τη λειτουργία των εγκαταστάσεων

των εργοταξίων, αλλά και στην αρτιότερη προστασία του

συνολικού έργου.

Σχεδιασμός συστήματος ασφαλείας

Η φιλοσοφία των σύγχρονων συστημάτων ασφαλείας για

την επιτήρηση και προστασία των εγκαταστάσεων από απόσταση επιτάσσει το σχεδιασμό υπό το πλαίσιο κάποιων γενικών κανόνων. Έμφαση δίνεται στην έγκαιρη ανίχνευση

"απειλών" στην περίμετρο των υποδομών του εργοταξίου.

Στο συνολικό σχεδιασμό περιλαμβάνεται ο σχεδιασμός των συστημάτων επιτήρησης, οι λειτουργικές δυνατότητες των συστημάτων παρατήρησης, τα επί μέρους υποσυστήματα

συγκρότησης των συστημάτων και η διαδικασία επεξεργασίας δεδομένων των συστημάτων.

Γεγονός αποτελεί ότι πολλά από αυτά τα συστήματα ασφαλείας βασίζονται σε αρχιτεκτονικό σχεδιασμό συστημάτων, που προέρχονται από την ανάπτυξη εφαρμογών για προστασία από τρομοκρατικές επιθέσεις ή ασύμμετρων απειλών εχθρικών δυνάμεων σε περιόδους πολεμικών επιχειρήσεων σε βασικά έργα υποδομής, όπως σταθμούς παραγωγής ενέργειας, υδραγωγεία κτλ.

Ο στόχος του συστήματος ασφαλείας είναι να επιδείξει ένα έξυπνο σύστημα περιμετρικής επιτήρησης αλλά και παρατήρησης κρίσιμων εσωτερικών χώρων, που μπορεί να λειτουργεί σε όλες τις καιρικές συνθήκες και συνθήκες φωτός εντός του πλαισίου της αρχής προστασίας προσωπικών δεδομένων.

Τοπογραφική ποικιλομορφία

Το σύστημα πρέπει να παρακολουθεί κυρίως την περιοχή ακριβώς έξω από τα όρια των εγκαταστάσεων και να είναι σε θέση να παρέχει έγκαιρες προειδοποιήσεις για επίγειες απειλές (άτομα, οχήματα κτλ.), να έχει χαμηλό ποσοστό ψευδών συναγερμών π.χ. λόγω διέλευσης ζώων ή πουλιών από την περιοχή επιτήρησης, κίνησης κλαδιών δέντρων, καθώς και άλλων αβλαβών συμβάντων, σε συνδυασμό με

ΤΕΧΝΙΚΕΣ ΣΕΛΙΔΕΣ 122 ΙΟΥΝΙΟΣ 2023

ΕΙΔΗΣΕΙΣ//ΤΕΧΝΟΛΟΓΙΕΣ//ΥΛΙΚΑ//ΑΠΟΨΕΙΣ ΠΑΡΟΥΣΙΑΣΗ:

145 ΙΟΥΝΙΟΣ 2023 Υποαλλεργικό, αντιμικροβιακό, πλαστικό χρώμα VECHRO Κεντρικό σύστημα κλιματισμού DAIKIN ΣΥΣΤΗΜΑΤΑ ΚΛΙΜΑΤΙΣΜΟΥ ΕΛΛΑΣ Α.Ε. Συστήματα πέργκολας ALUMINCO Α.Ε. Θερμομονωτικά κουφώματα αλουμινίου ALUMIL Α.Ε. ΤΟ ΒΗΜΑ ΤΩΝ ΕΤΑΙΡΕΙΩΝ
ΠΑΧΗΣ, ΧΡΗΣΤΟΣ ΠΑΠΑΪΩΑΝΝΟΥ
ΛΕΥΤΕΡΗΣ

Κεντρικό σύστημα κλιματισμού DAIKIN VRV

Το σύστημα VRV της Daikin μειώνει την κατανάλωση ενέργειας, βελτιστοποιώντας την εποχιακή

απόδοση χάρη στον συνδυασμό εσωτερικών και εξωτερικών μονάδων, καινοτόμων τεχνολογιών και έξυπνων συστημάτων ελέγχου διαχείρισης ενέργειας. Η τεχνολογία μεταβαλλόμενου ψυκτικού προσαρμόζει αυτόματα τη θερμοκρασία του ψυκτικού μέσου ανάλογα με το φορτίο για τη βέλτιστη άνεση του χρήστη (εξαλείφει τα κρύα ρεύματα) και ταυτόχρονα αυξάνει την εποχιακή απόδοση. Οι αυτοκαθαριζόμενες μονάδες της Daikin αυξάνουν την εξοικονόμηση έως και 50%. DAIKIN ΣΥΣΤΗΜΑΤΑ ΚΛΙΜΑΤΙΣΜΟΥ

ΕΛΛΑΣ Α.Ε., Τ: 2108761300, www.daikin.gr

Πετροβάμβακας FIBRANgeo

Ο πετροβάμβακας FIBRANgeo είναι ένα φυσικό, ανόργανο, ινώδες, μονωτικό υλικό, το οποίο συνδυάζει την υψηλή ενεργειακή θερμομονωτική απόδοση με την απαράμιλλη πυροπροστασία και ηχοαπορροφητική ικανότητα. Είναι ιδιαίτερα δημοφιλές σε κτίρια βιοκλιματικής αρχιτεκτονικής, σε πράσινα κτίρια μηδενικού ή ελάχιστου περιβαλλοντικού αποτυπώματος λόγω της φυσικής του προέλευσης, της διαπνοής, της θερμικής αδράνειας και της διαστασιακής του σταθερότητας.

FIBRAN, Τ: 2310682425, www.fibran.gr

Συστήματα πέργκολας ALUMINCO

Συστήματα πέργκολας που εξασφαλίζουν την απόλυτη ρύθμιση σκίασης και την προστασία από την ηλιακή ακτινοβολία ενώ προσφέρουν αισθητική και ενεργειακή αναβάθμιση. Συνδυάζονται σε αρμονία με το φυσικό περιβάλλον και προσφέρουν πρακτικές και πολύ λειτουργικές λύσεις για κάθε ανοικτό χώρο όπως κατοικίες, ξενοδοχειακές μονάδες, εστιατόρια και καφετέριες, για όλες τις εποχές του χρόνου. Διατίθενται σε δύο τύπους: παραδοσιακή, με χρήση πανιού σκίασης ή με πολυκαρβονικά φύλλα και μοντέρνα, με χρήση πανιού σκίασης ή πολυκαρβονικά φύλλα ή κινούμενες/σταθερές περσίδες.

ALUMINCO Α.Ε., Τ: 2262047000, www.aluminco.com

Υποαλλεργικό, αντιμικροβιακό, πλαστικό χρώμα

SMALTOPLAST SILK

Καινοτόμο οικολογικό χρώμα, εσωτερικής χρήσης, άοσμο, πιστοποιημένο από το Βρετανικό Ίδρυμα Αλλεργιών ως υποαλλεργικό χρώμα με αντιμικροβιακές ιδιότητες, με βελουτέ ματ φινίρισμα. Είναι πλαστικό χρώμα υψηλής ποιότητας με τεχνολογία Nanosilver, η οποία εξασφαλίζει πιο καθαρούς και υγιεινούς χώρους. Κατατάσσεται στην ανώτερη κλάση Α+, συμβάλλοντας στην ποιότητα αέρα εσωτερικών χώρων. Κρατάει μικρόβια, μύκητες και αλλεργίες μακριά, με εξαιρετική αντοχή στον χρόνο και στο συχνό πλύσιμο (Κλάση 1, ΕΝ 13300/ΕΝ 11998). Είναι κατάλληλο για νοσοκομεία, ΜΕΘ, ιατρεία, σχολεία, ξενοδοχεία, αεροδρόμια κ.α. VECHRO, Τ: 2104816101, www.vechro.gr

Βιοκλιματικά στέγαστρα BIOCLIMATIC

Η Arka δημιουργεί υβριδικές εφαρμογές υψηλής τεχνολογίας όπως θερμομονωμένα στέγαστρα από εφελκυόμενες μεμβράνες για την κάλυψη μεγάλων επιφανειών. Χαρακτηριστικό παράδειγμα είναι η στέγαση του Ιωνικού Κολυμβητηρίου της Χίου, συνολικής επιφάνειας 3.500 m2. Για την κάλυψη της εγκατάστασης του κολυμβητηρίου επιλέχθηκε εφελκυόμενη μεμβράνη, η οποία είναι πλήρως ανακυκλώσιμη και εναρμονισμένη στα διεθνή πρότυπα περιβαλλοντικής ευαισθησίας. Η ενεργειακά άψογη συμπεριφορά του κελύφους περιορίζει δραστικά τις απαιτήσεις θέρμανσης και κλιματισμού στον εσωτερικό χώρο του κολυμβητηρίου με χαμηλό κόστος συντήρησης. ARKA SYNTHESIS Μ.Ε.Π.Ε., Τ: 2107473464, www.arkasynthesis.gr

Υπηρεσίες μακροχρόνιας μίσθωσης μηχανημάτων κλιματισμού

TRANE EAASY

Οι υπηρεσίες μακροχρόνιας μίσθωσης Trane αποτελούν μια καινοτόμο πρόταση για την ελληνική αγορά. Ο ενδιαφερόμενος επιλέγει τον τύπο του καινούριου μηχανήματος, που ικανοποιεί τις ανάγκες ψύξης ή θέρμανσης της εγκατάστασής του και το αποκτά χωρίς να χρειάζεται να επενδύσει κανένα κεφάλαιο. Στη διάρκεια της μίσθωσης η μόνη ενέργεια που απαιτείται είναι η καταβολή του μηνιαίου αντιτίμου, διότι τα κόστη συντήρησης, επισκευής, εξασφάλισης αδιάλειπτης λειτουργίας είναι στην υποχρέωση της Trane. Βρίσκει εφαρμογή σε ξενοδοχεία, βιομηχανίες, νοσοκομεία, εμπορικά κέντρα κ.ά.

TRANE HELLAS Α.Ε., Τ: 2108112200, www.trane.gr

147 ΙΟΥΝΙΟΣ 2023 ΤΟ ΒΗΜΑ ΤΩΝ ΕΤΑΙΡΕΙΩΝ

Η Purmo, κορυφαία εταιρεία βιώσιμων λύσεων θερμικής άνεσης σε εσωτερικούς χώρους, παρέχει συστήματα ενδοδαπέδιας θέρμανσης/ δροσισμού με προσαρμοσμένες λύσεις για κάθε έργο. Για νέα κατοικία, η Purmo διαθέτει συστήματα με ισχυρή θερμομόνωση και ηχομόνωση, σε διάφορα ύψη (από 2,2 cm έως 5 cm), υγρής και ξηράς δόμησης. Ο σωλήνας της Purmo κατασκευάζεται στο γερμανικό εργοστάσιο της Hewing, μέλους της Purmo Group. Διατίθενται συστήματα με διάφορους τρόπους συγκράτησης του σωλήνα, όπως η πλάκα κόμβων (Noppjet), η πλάκα διάτρητων κόμβων (Grid), η πλάκα (Rolljet) με καρφωτικά tackers και η πλάκα και σωλήνα (Klettjet) επενδεδυμένη εργοστασιακά με velcro, δίνοντας στον εγκαταστάτη τη δυνατότητα επιλογής. Επιπλέον, είναι κατάλληλα για δάπεδα μπετόν με μικροανωμαλίες, εξογκώματα και ανισοσταθμίες, καθώς απορροφούν πολλά από αυτά λόγω του μεγάλου πάχους της μόνωσης από διογκωμένη πολυστερίνη (EPS).

Για ανακαίνιση, η Purmo έχει αναπτύξει συστήματα υγρής και ξηράς δόμησης, τα οποία έχουν μικρό ύψος (από 2,2 cm), ελάχιστο βάρος, εύκολη τοποθέτηση και αμεσότατη απόδοση.

Επιπλέον, παίζει ρόλο η τοποθεσία του σπιτιού με το μικροκλίμα της περιοχής και εάν είναι μόνιμη ή εξοχική κατοικία. Σε μια νότια περιοχή της χώρας μας, κοντά στη θάλασσα, καλό είναι να επιλεγεί ένα σύστημα ενδοδαπέδιας με μικρή αδράνεια, ώστε να μπορεί να ακολουθήσει τις γρήγορες εναλλαγές του καιρού. Αυτό σημαίνει σύστημα υγρής δόμησης αλλά με λεπτό προφίλ θερμομπετόν ή ακόμη καλύτερα σύστημα ξηράς δόμησης χωρίς καθόλου προφίλ θερμομπετόν, όπου η απόκριση του δαπέδου είναι πολύ γρήγορη σχεδόν σαν τα σώματα panel. Το ίδιο ισχύει για μια εξοχική κατοικία, όπου όταν πηγαίνουμε σε αυτή θέλουμε να θερμανθεί όσο το δυνατό γρηγορότερα. Θα πρέπει τέλος να γνωρίζουμε ότι το σημαντικότερο όλων, τόσο για τη θερμική άνεση, όσο και για την εξοικονόμηση χρημάτων σε ένα σύστημα ενδοδαπέδιας θέρμανσης, είναι οι αυτονομίες, δηλαδή οι θερμοστάτες σε κάθε δωμάτιο μαζί με τον κατάλληλο πίνακα ελέγχου κάθε επιπέδου σε συνδυασμό με ηλεκτροθερμικούς κινητήρες ανά κύκλωμα. Ένα τέτοιο σύστημα διαχειρίζεται έξυπνα τις θερμοκρασίες σε κάθε χώρο ξεχωριστά, με ετεροχρονισμούς στο φορτίο και εσωτερική αντιστάθμιση, με αυξομειώσεις ανάλογα με την απαίτηση, με λειτουργίες πρόβλεψης καιρού και ανοικτού παραθύρου, κάνοντας την πηγή θερμότητας (λέβητας ή αντλία θερμότητας) να λειτουργεί ακριβώς όσο χρειάζεται. Το αποτέλεσμα της χρήσης των αυτοματισμών είναι η μέγιστη εξοικονόμηση ενέργειας ώστε σε πολύ μικρό χρονικό διάστημα να εξοικονομούνται τα χρήματα που έχουν δαπανηθεί για την αγορά τους.

THERMOVENT Α.Ε.

www.thermovent.gr • Τ: 2109887400

149 ΙΟΥΝΙΟΣ 2023 ΤΟ ΒΗΜΑ ΤΩΝ ΕΤΑΙΡΕΙΩΝ
Κριτήρια επιλογής ενδοδαπέδιας θέρμανσης

ΜΗΝΙΑΙO TEXNIKO ΠEPIOΔIKO

Νο 345 • ΙΟΥΝΙΟΣ '23 Κωδικός ΕΛ.ΤΑ.: 2554

EKΔOTHΣ - ΔIEYΘYNTHΣ

Πέτρος X. Παπαϊωάννου

πολιτικός μηχ.

ΔΙΕΥΘΥΝΣΗ ΣΥΝΤΑΞΗΣ

Δήμητρα Tσιώρα - Παπαϊωάννου

αρχιτέκτονας μηχ.

ΕΠΙΣΤΗΜΟΝΙΚΗ ΕΠΙΜΕΛΕΙΑ

Δημήτρης Αραβαντινός

δρ. πολιτικός μηχ., καθ. Εργ. Οικοδομικής & Φυσικής των Κτιρίων Α.Π.Θ.

ΕΠΙΣΤΗΜΟΝΙΚΟI ΣΥΝΕΡΓΑΤΕΣ

Αναστάσιος Κωτσιόπουλος

δρ. αρχιτέκτονας μηχ., ομότ. καθ.

Aρχιτεκτονικού Σχεδιασμού Α.Π.Θ.

Άγις Μ. Παπαδόπουλος

δρ. μηχανολόγος μηχ.,

καθ. Εργ. Κατασκευής Συσκευών

Διεργασιών Α.Π.Θ.

Κλειώ Αξαρλή

δρ. αρχιτέκτονας μηχ., ομότ. καθ. Εργ.

Αρχιτεκτονικής & Τεχνολογίας Α.Π.Θ.

Γεώργιος Πενέλης

δρ. πολιτικός μηχ., ομότ. καθ. Εργ. Κατασκευών Οπλισμένου Σκυροδέματος

και Φέρουσας Τοιχοποιίας Α.Π.Θ.

Δημήτρης Μπίκας

δρ. αρχιτέκτονας μηχ., ομότ. καθ. Εργ.

Οικοδομικής & Φυσικής των Κτιρίων Α.Π.Θ.

Νικόλαος Μουσιόπουλος

δρ. μηχανολόγος μηχ., καθ. Εργ. Μετάδοσης Θερμότητας και Περιβαλλοντικής Μηχανικής Α.Π.Θ.

Χάρης Δημουλιάς

δρ. ηλεκτρολόγος μηχ., καθ. Εργ. Ηλεκτρικών Μηχανών Α.Π.Θ.

Μαρία Στεφανίδου

γεωλόγος, δρ. πολιτικός μηχ., καθ. Εργ. Δομικών Υλικών Α.Π.Θ.

https://www.facebook.com/ktirio.gr/ https://linkedin.com/company/-κτιριο-εκδοσεις-ktirio-editions-

https://www.instagram.com/ktirio_editions/ https://www.youtube.com/user/KTIRIOeditions

Γεώργιος Ι. Μαντάνης επιστήμων ξύλου, καθ. Εργ. Επιστήμης & Τεχνολογίας Ξύλου, Παν. Θεσσαλίας

ΤΜΗΜΑ ΣΥΝΤΑΞΗΣ

Τέτη Λάλου

πολιτικός μηχ. ΤΕ

Ιωάννα Καραμιχαηλίδου

αρχιτέκτονας μηχ., MSc

Πωλίνα Ροῒδη μηχανολόγος μηχ.

ΣΥΝΕΡΓΑΤΕΣ ΣΥΝΤΑΞΗΣ

Ελευθερία Τιτόνη

αρχιτέκτονας μηχ., MSc

Μαρτσέλα Ανθρακοπούλου

αρχιτέκτονας μηχ., μηχανικός πολεοδομίας, χωροταξίας & περιφερειακής ανάπτυξης

Αθανασία Χάρη

πολιτικός μηχ., MSc

Αγγέλα Παϊπάη αρχιτέκτονας μηχ., MSc

Γιώργος Χατζηγεωργίου

πολιτικός μηχ., B.eng (Hons), MSc., σύμβουλος αρχιτεκτονικής ακουστικής - κτιριακής ηχομόνωσης Παναγιώτης Βεργούλης πολιτικός μηχ. & μεταλλειολόγος μηχ. Ε.Μ.Π. MSc περιβάλλοντος και ανάπτυξης

GRAPHIC DESIGN Κυριακή Παυλίδου

ΦΩTOΓPAΦIEΣ

M. Παππούς - K. Eυαγγελίδης O.E. Ιωάννα Νικολαρεῒζη

ΤΜΗΜΑ ΔΙΑΦΗΜΙΣΗΣ

Χρήστος Παπαϊωάννου mechanical engineer, MSc

Λευτέρης Παχής

μηχανολόγος μηχ., Α.Π.Θ.

Αριάν Αναστούλη

Νίκος Τσάμης

TMHMA EΞYΠHPETHΣHΣ

ΣYNΔPOMHTΩN

Iωάννης Κωνσταντινίδης

Παναγιώτης Χάιδας

Έλμα Πιστοφίδου

ΟΙΚΟΝΟΜΙΚΟ ΤΜΗΜΑ

Νίκος Παπαϊωάννου

πολιτικός μηχ.

Αντώνης Χατζόγλου Ιάκωβος Μαζαράκης

EKTYΠΩΣH - ΒΙΒΛΙΟΔΕΣΙΑ ThessPrint A.E.

ΔIANOMΗ ΑΡΓΟΣ Α.Ε.

KTIΡΙΟ ΕΚΔΟΣΕΙΣ Ι.Κ.E.

ΘΕΣΣΑΛΟΝΙΚΗ: Γ. Κρανιδιώτη 2, Τ.Κ. 555 35, Πυλαία, Τ.Θ. 8136 - Τ.Κ. 570 01 Έκδοση - Σύνταξη: τηλ.: 2310 480356, e-mail: ktirio@ktirio.gr

Πωλήσεις - Συνδρομές: τηλ.: 2310 480340, e-mail: sales@ktirio.gr, φαξ: 2311 826819

Διαφήμιση: τηλ.: 2310 480540, e-mail: adv@ktirio.gr

AΘΗΝΑ: Λεωφ. Κηφισίας 125 - 127, Cosmos Center Τ.Κ. 115 24, τηλ.: 210 7234591

ΕΓΓΡΑΦΗ ΣΥΝΔΡΟΜΗΤΩΝ

Τηλεφωνήστε στο: 2310 480340 ή μέσω διαδικτύου: www.ktirio.gr

EΞΥΠΗΡΕΤΗΣΗ ΣΥΝΔΡΟΜΗΤΩΝ

Για αλλαγές διευθύνσεων, παραγγελίες προηγούμενων τευχών και λοιπών εκδόσεων, προβλήματα στην παραλαβή των τευχών κτλ., τηλεφωνήστε στο: 2310 480340 ή στείλτε e-mail στο: sales@ktirio.gr

3 ΤΕΥΧΗ ΚΤΙΡΙΟ 1 ΤΕΥΧΟΣ ΞΕΝΟΔΟΧΕΙΑ 3 ΤΕΥΧΗ ΑΡΧΙΤΕΚΤΟΝΙΚΗ 1 ΤΕΥΧΟΣ ΟΔΗΓΟΣ ΚΑΤΑΣΚΕΥΗΣ 1 ΤΕΥΧΟΣ ΕΡΓΟΤΑΞΙΑ 1 ΤΕΥΧΟΣ ΕΝΕΡΓΕΙΑ Η ετήσια συνδρομή 2023 περιλαμβάνει: • 10 τεύχη & ελεύθερη πρόσβαση στην ιστοσελίδα μας σε περισσότερα από • 800 τεχνικά άρθρα & εκπτώσεις στα • τεχνικά και αρχιτεκτονικά βιβλία ΓΙΝΕ ΣΥΝΔΡΟΜΗΤΗΣ ΤΩΡΑ! ONLINE: ΤΗΛΕΦΩΝΙΚΑ: www.ktirio.gr 2310 480 340 ΠΑΡΑΓΓΕΛΙΕΣ: ΓΙΑ ΔΙΑΡΚΗ ΤΕΧΝΙΚΗ ΕΝΗΜΕΡΩΣΗ

Turn static files into dynamic content formats.

Create a flipbook
Issuu converts static files into: digital portfolios, online yearbooks, online catalogs, digital photo albums and more. Sign up and create your flipbook.
KTIRIO & CONSTRUCTION SITE I JUNE 2023 by KTIRIO EDITIONS - Issuu