
8 VILLA M, ΟΨΗ ΜΕ ΚΑΤΑΣΚΕΥΗ
ΣΤΟ ΠΑΡΙΣΙ Triptyque Architecture, Philippe Starck
14 eLement, ΚΤΙΡΙΟ ΓΡΑΦΕΙΩΝ
ΣΤΟ
RS Sparch
20 ROBERT DAY SCIENCES CENTER,
BIG
26 ΠΑΝΕΠΙΣΤΗΜΙΑΚΟ
architectenbureau cepezed
32 ΑΝΑΒΑΘΜΙΣΗ & ΕΚΣΥΓΧΡΟΝΙΣΜΟΣ
ΒΟΥΛΙΑΓΜΕΝΗΣ AETER Architects
38 QUARTZ PLAZA, ΚΤΙΡΙΟ ΓΡΑΦΕΙΩΝ
Salon Alper Derinbogaz
44 MUSEE DES CONFLUENCES, ΑΝΑΛΥΣΗ
ΧΑΛΥΒΔΙΝΟΥ ΚΕΛΥΦΟΥΣ,
Coop Himmelb(l)au
50 HUB26, ΒΙΟΚΛΙΜΑΤΙΚΟ ΣΥΓΚΡΟΤΗΜΑ ΓΡΑΦΕΙΩΝ ΣΤΗ ΔΥΤΙΚΗ ΘΕΣΣΑΛΟΝΙΚΗ Divercity Architects
56 ZAYED NATIONAL MUSEUM, ΣΤΟ ΑΜΠΟΥ ΝΤΑΜΠΙ Foster+Partners
62 ΟΛΥΜΠΙΑΚΟ & ΠΑΡΑΟΛΥΜΠΙΑΚΟ ΜΟΥΣΕΙΟ, Η.Π.Α., ΜΕΤΑΛΛΙΚΟΣ ΣΚΕΛΕΤΟΣ & ΤΡΙΣΔΙΑΣΤΑΤΗ
Diller Scofidio + Renfro
68 ANNA PAPAGEORGIOU STEM CENTER ΣΤΗ ΘΕΣΣΑΛΟΝΙΚΗ Schema 4 Architects
74 ΑΕΙΦΟΡΑ
Herzog & de Meuron
80 PLATO CONTEMPORARY ART GALLERY
KWK PROMESS
86 KASSANDRA CENTER,
Deda & Architects
92 BUFFALO AKG ART MUDEUM,
BUFFALO,
104 SAP GARDEN,
3XN
BREEAM EXCELLENT
MVRDV 116 NCAVED,
Mold Architects
122 NOAH’S ARK CHILDREN’S HOSPICE, ΜΕ
& ΒΙΟΚΛΙΜΑΤΙΚΕΣ
Squire & Partners
128 SCALE HOUSE,
Kipseli Architects 134
& ΔΙΑΦΑΝΟ ΚΕΛΥΦΟΣ Renzo Piano Building Workshop
140 ΜΕΤΑΤΡΟΠΗ ΕΛΑΙΟΤΡΙΒΕΙΟΥ ΤΟΥ 1820 ΣΕ ΚΑΤΟΙΚΙΑ
ΛΕΥΚΑ ΔΑ Caterina Viguera Studio
146 BIOMEDICUM, ΠΕΡΙΒΑΛΛΟΝΤΙΚΟΣ ΣΧΕΔΙΑΣΜΟΣ ΤΟΥ ΚΕΝΤΡΙΚΟΥ ΑΙΘΡΙΟΥ, ΣΤΗ ΣΤΟΚΧΟΛΜΗ C.F. Møller Architects
152 ΜΕΤΑΛΛΙΚΟΣ ΟΡΓΑΝΙΣΜΟΣ ΚΤΙΡΙΟΥ ΓΡΑΦΕΙΩΝ ΚΑΙ ΒΙΟΜΗΧΑΝΙΚΩΝ ΕΓΚΑΤΑΣΤΑΣΕΩΝ ΣΤΗΝ ΕΛΕΥΣΙΝΑ Parthenios Architects + Associates
158 VILLA DOMES, ΜΟΝΟΚΑΤΟΙΚΙΑ ΜΕ ΜΕΤΑΛΛΙΚΟ ΦΕΡΟΝΤΑ ΟΡΓΑΝΙΣΜΟ ΣΤΗ ΜΟΛΔΑΒΙΑ Maxim Calujac
164 CASA KATSIRA, ΔΙΠΛΟΚΑΤΟΙΚΙΑ ΜΕ ΞΕΝΩΝΑ ΣΤΗΝ ΚΑΛΑΜΑΤΑ Petras Architecture
170 ΒΙΒΛΙΟΘΗΚΗ ΓΑΛΛΙΚΟΥ ΛΥΚΕΙΟΥ ΜΑΔΡΙΤΗΣ, ΜΕΛΕΤΗ ΚΑΙ ΚΑΤΑΣΚΕΥΗ Alberto Campo Baeza, Laps Architecture
176 ΠΤΥΧΩΤΗ ΤΟΙΧΟΠΟΙΙΑ ΣΕ ΕΠΕΚΤΑΣΗ
Bureau de Change
182
C.F. Møller
Tsquare Architects









1.
2.
3.
4.
5.
6.
7.
8.
9.
10.
11.
12.
13.
14.
15.
16.









1.
2.
3.
4.
5.
6.
7.
8.
9.





1.
2.
3.
4.
5.
6.

Casa Katsira
Petras Architecture
Petras Architecture
Xcon Xousos Constructions
Structural
Petras Architecture
Petras Architecture





Scale House




Οι

ξύλινηκουπαστή
1.
2.
3.
4.
5.
6.
7.
8.
9.
10.
ποδιάμεμεταλλικήτελικήεπιφάνεια
ειδικόεδάφικόυπόστρωμα
ποδιάμεμεταλλικήτελικήεπιφάνεια
1.
-στεγανοποιητικήασφαλτικήμεμβράνη
ινοσανίδα (τύπου Densglass)
-διηθητικόφύλλο -φεωύφασμα
-αποστραγγιστικόσύστημα
4.
5.
6.
7.
8.
οδηγοίανάρτησηςξύλινωνεπενδύσεων
επένδυση (ξύλινη)
-υπόστρωμαπροστασίας & συγκράτησης υγρασίας -αντιριζικήμεμβράνη -στεγανοποιητικήασφαλτικήμεμβράνη μεταλλικόςσκελετός απόκοιλοδοκούς
ινοσανίδα (τύπου Densglass) μετελικήεπιφάνειααπόμεταλλικόφύλλο




1.
2.
3.
4.
5.
6.





ΛΕΠΤΟΜΕΡΕΙΑ
1.
2.
3.
4.
5.
6.
7.










8.
14. L 40 x 4 (mm).




15. Οπλισμένο σκυρόδεμα.
16. Σκελετός γυψότοιχου.
17. Πετροβάμβακας 40 mm, 50 kg/m³.
18. Διάτρητη γυψοσανίδα 8 / 18 r πάχους 12,5 mm.
19. Πετροβάμβακας 8 cm, 75 kg/m³.
20. Επένδυση με
d=12,5 mm.
21. Κοιλοδοκός RHS 60 x 80 x 4 (mm).
22. Κοιλοδοκός RHS 60 x 80 x 4 (mm).

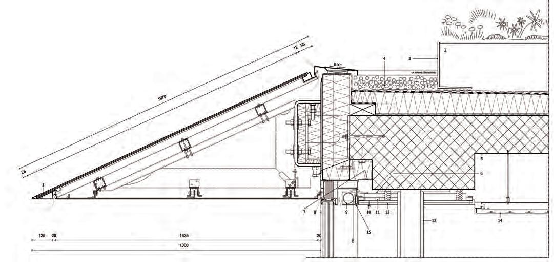
1. Φωτοβολταϊκό πέτασμα.
2. Θερμικά σκληρυμένος υαλοπίνακας, 6 mm.
3. Κούφωμα αλουμινίου.
4. Κοιλοδοκός SHS 60 × 3 (mm).
5. IPE 200.
6. Σύνθετο θερμομονωτικό πέτασμα, πάχους 8 cm.
7. Στεγανοποιητική επάλειψη με πολυουρεθανικό γαλάκτωμα.
8. Ελαφρώς οπλισμένο γαρμπιλόδεμα των 250 kg/m3 τσιμέντου.
9. Πλάκες εξηλασμένης πολυστερίνης 10 cm.
10. Ελαστομερής μεμβράνη 4 kg/m3 (διπλή στρώση).
11. Οπλισμένο σκυρόδεμα.
12.
13.
14.