



![]()





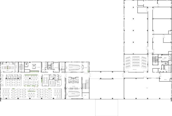
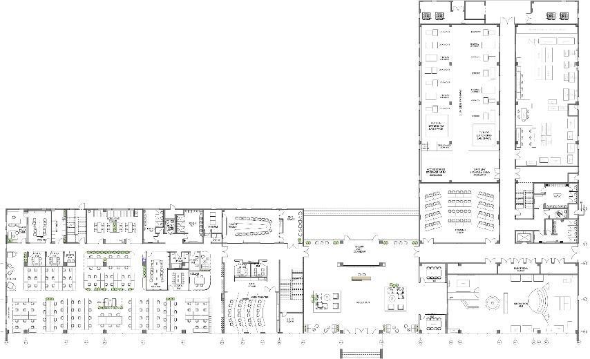
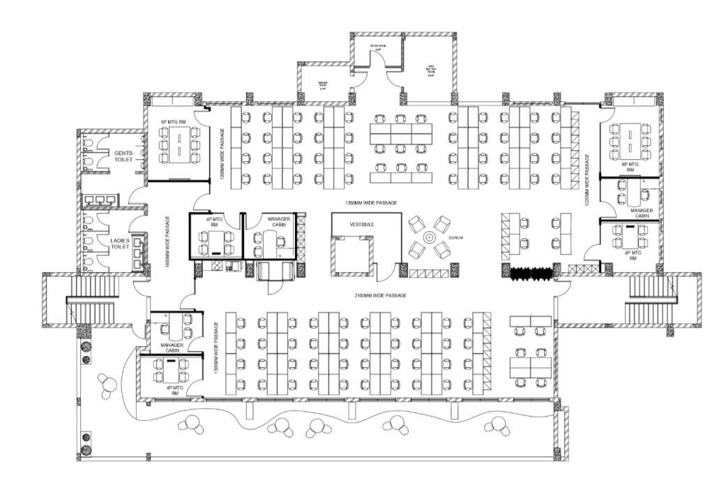
PLANT HEAD CABIN OPEN OFFICE
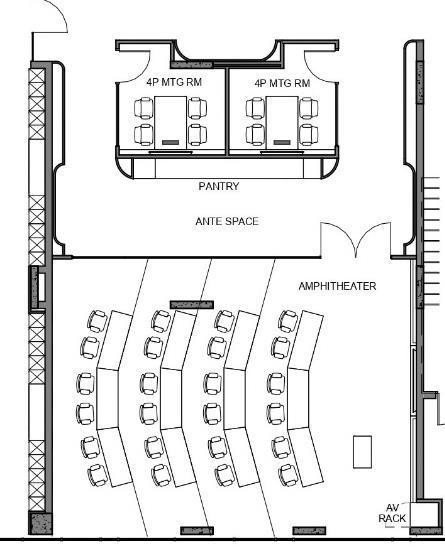
TRAINING ROOM
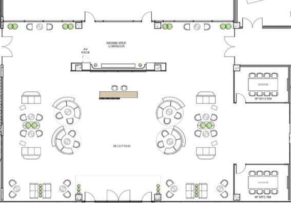
RECEPTION
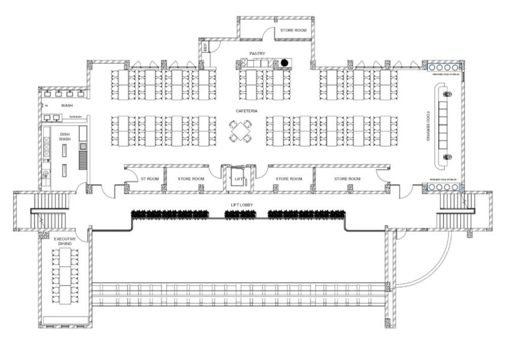
EXECUTIVE DINING
UTILITIES

MEETING ROOMS+ BOARD ROOMS
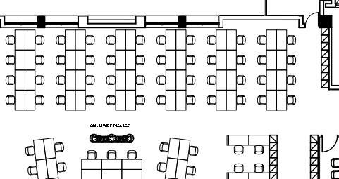
COLLABORATION SPACE
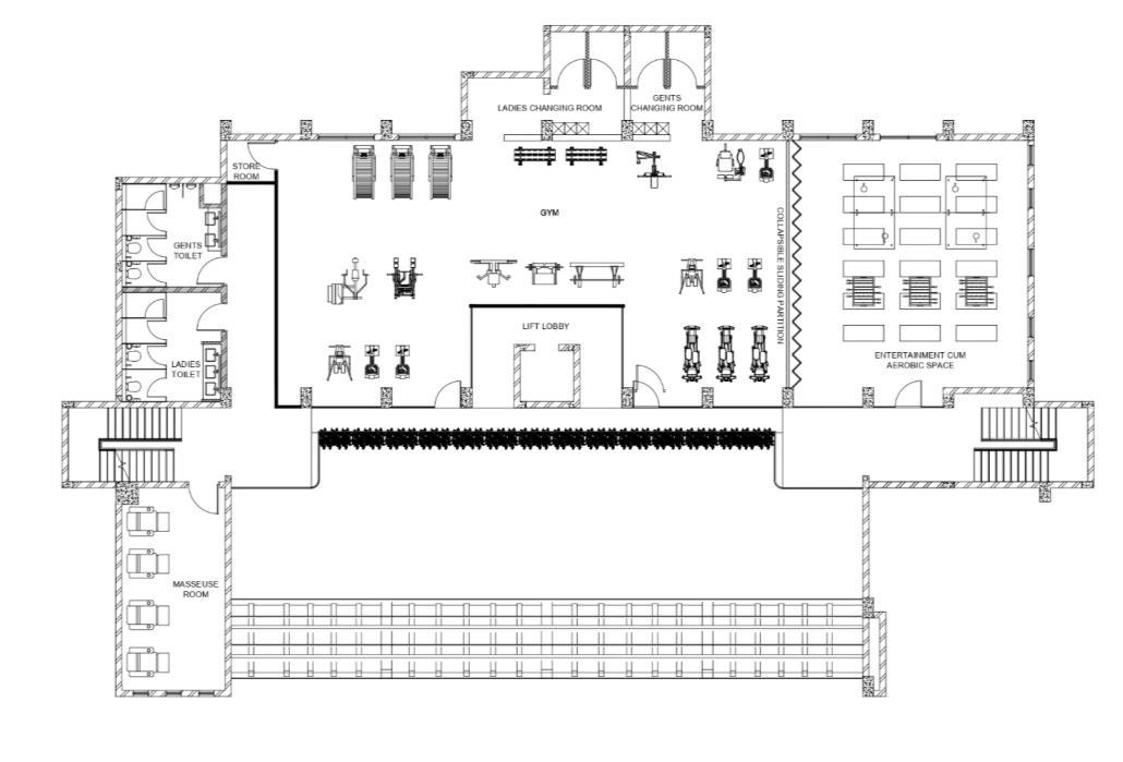
WELLNESS ROOM
LAB + BATTERY STORAGE










PERFORATED















































































FIRST FLOOR THIRD FLOOR













SiteArea =4046.85SQ.M
GroundCoverage:
Permissible=60%
Achieved=21.24%<60%
F.A.RDetails
Permissible=2.00
Achieved=1.99<2.00
GrossArea =860SQ.M
GFArea =30SQ.M
1TO10Area =800SQ.M
11thFloorArea=560SQ.M
TotalBuiltupArea=8551SQ.M

CarParkingDetails:
No.ofunits =90no.s
Visitorsparking (10%) =9no.s
Carparkingrequired =99no.s
Achievednoofcarparking =99no.s
Twowheelerparking-25%=364.37SQM








Totalarea -1600sqft
TotalBuiltuparea-1335sqft
GroundFloorArea-797sqft
ParkingPortico-291sqft
ElevationSlab-46sqft






residencewasproposedforMrNagarajin Cumbum.Thehousewithgroundandfirst floorfacestowardseastbringsmaximum naturallightsfrom eastandNorthregion. Withcentralcourtyardopentosky,proper givesearthyvibes.Surroundedwithplants


Groundfloor-3630SQFT
Firstfloor-3670SQFT
Headroom -200SQFT
TotalArea-7300SQFT





togetherandformingafascinatingdesign. LocationinThenidistrict,theresidenceis


