ARCHITECTURAL PORTFOLIO KSHITIJA PARGAONKAR

Page 1

ARCHITECTURAL

PORTFOLIO

College Of Architecture
KSHITIJA PARGAONKAR 9421963474 Mumbai kpargaonkar121@gmail.com CONTACT Teamwork SKILLS Time Management Leadership English SOFTWARE SKILLS Hindi Marathi LANGUAGE PROFESSIONAL PROFILE EDUCATION Sanskar Vidyalaya , Beed (2017) Champavati Highschool ,Beed (2019) SECONDARY EDUCATION HIGHER SECONDARY HOBBIES •Skechng •Painting •Singing •Photography S I R J J C O L L E G E O F A R C H I T E C T U R E The following is a curated collection of my arch design and personal work that reflects my pa creation and ambition to convert that into m content. I have always been inclined towards simplist solutions which creates well functioning a friendly spaces Looking forward for new challe experiences 80% AUTOCAD SKECHUP 75% PHOTOSHOP 60% ENSCAPE 70% LUMION 75% REVIT 40% V RAY 60% UNDER GRADUATE 4 th year Sir J J College Of Architecture Schindler Hatke Design Competiton Music Institute Design Faculty Medal Primary Health Care Center SOS Cildren's Village COMPETITIONS

Facilitation Centre

APMC Market Design

Commercial Complex

arts institute

Mass Housing

DESIGN

Interior

Citizen
fine
Residential
ALLIDE
Revit Model Making Potery Photography CONTENT ARCHITECTURALDESIGN
Design - Coworking Office Landscape Idea ARCHITECTURAL REPRESENTATION&DETAILING Working Drawing - Commercial Complex OTHERACTIVITIES

ARCHITECTURAL DESIGN SEM3

Site location Mumbai, India Total area 2820 sq m Built up area 432 sq m

DESIGN PROGRESS

Layout has been made considering pre designed roof design and keeping positions of skylights in mind No of counters are given more considering post covid situation and easy accessible to the visitors. As per the sequence of process at cfc , cabin of accountant is provided at exit so that visitor can pay and go out Cfc is designed for everyone, therefore ramp and special toilet are provided for handicapped/ disabled

EXTERIOR OF BUILDIG

It will be of plain RCC. RCC roof has high compressive strength and it is weather and fire resistant ACP sheets are used to enhance facade of the building These are light weight sheets. They will act like barrier for warm air.

CITIZEN FACILITATION CENTER
Sem 3

First thought was to provide slopes to collect rainwater for making it sustainable Vertical skylights are provided in between slopes which helps to get more natural light inside the building

Green roofs are given in between. Polycarbonate sheets helps for sunlight

ROOF DESIGN DEVELOPMENT

SITE

The site is in pune Bhandgaon village near Pune solapur highway. The area of the proposed site is approximately 39000sq m the site is surrounded by all farmlands towards west to North whereas to the east and South it has small houses and shoes which are facing the road Also to the north east corner there is hospital 7 m rajuri road connects the site to the main highway which is 10 m wide The distance between the main highway and aitw is approximately 10 m

While designing the grain mandi main focus was on easy and disturbance free circulation oh trucks vehicles and pedestrian. And also the Pavillion is the center of attraction of the grain mandi. So design is kind of symmetrical design which create courtyard which is replica of local structure like vada in Pune

For achieving Smooth and easy circulation I have provided separate entrance for trucks which are going to come for loading unloading and the will not disturb the pedestrians. And another entrance is for pedestrian and small vehicles so that pedestrian can enjoy the view of Pavillion from road also Roof of pavilion is of timber truss cladded with clay tiles which will give the local feel to the structure

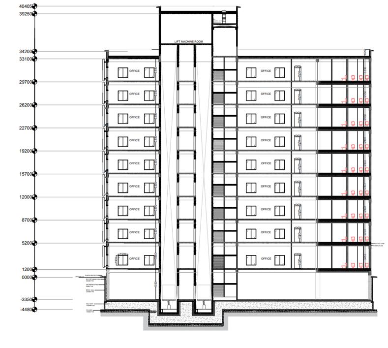
APMC AECHITECTURAL DESIGN
Sem 4
SECTION

LOCATION

Initially started with individual massing according toh the area distribution then by adding and compiling all three functions developed it into one massing

AREA DISTRIBUTION

Office : floor plate 1408sq m

Total office area : ground +8floors ie 12672sqm

: floor plate 2176sqm

shops area : ground +one floor =4352sqm

: fine dine of 700sqm & 2cafe of 64sq & 80sqm

COMERCIAL COMPLEX
Behind Civil Court Belapur, Panvel Creek ,Gopinath Panda Patil Marg Sector 15 belapur facing the road to its west
Shops
Total
Eateries
Sem 5

The Design has separate vehicular entry , pedestrian entry and service entry. Left side of the structure there is office building of 8 floors having welcoming entry with pick up drop off point The small fountain at entrance welcomes pedestrian to shopping complex and Cafe . Shopping complex is of G+1 floor and above it at 2 ND floor there is fine dine restaurant with open terrace dinning.

PLAN
SECTION View of commercial complex

Site Location: PARSIKHILL, Sector23, CBDBelapur, Navi Mumbai , Maharashtra

Design

The

Total

of

Separate

in between two studios so

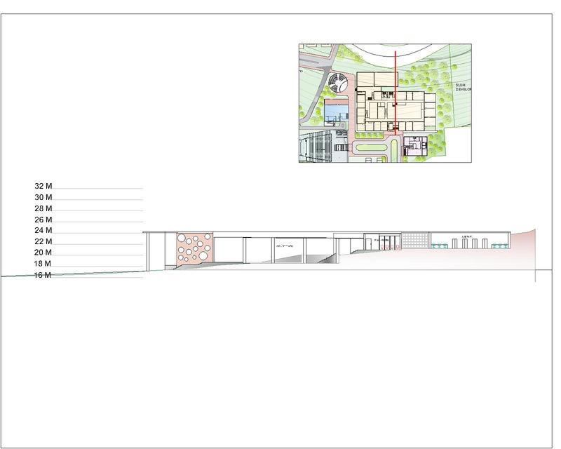
FINE ARTS INSTITUTE
:The vision of proposed institute to teach interior design and graphics design . Students develop the required skills under guidance of professional instructors
no
student : 300 Undergraduate :230 Postgraduate :60 Total no of faculties :30 Permanent :20 Visiting :10
Institute has graduate and undergraduate program Interior and Graphics Design are two courses are there
Vehicular and pedestrian Pathways For light and air ventilation courtyards are provided, also there are small courtyards provided
students can take break and relax. Points Considered While Designing Sem 6 PLAN
Academic Block Section Elevation Admin Block Canteen Auditorium

LOCATION: Mithaghar Rd,, Tata Colony, Mulund East, Mumbai, Maharashtra 400081

Being situated in MULUND. The main aim of the design was to provide quality lifestyle for the residents while also considering the health factor

The building footprings have been made as compact as possible to enable more green plantations.flower bed and more interactive spaces

The community spirit is lost in any of todays mass housing societies, and hence, an attempt has been made to provide as many inter active spaces on the commuting routes and on the amenity podium as well.

The user group has been categorized based on the age groups and different spaces like kids playing area, senior citizens hall and park, and multifunctional halls, yoga centres and meditation centres have been

RESIDENTIAL MASS HOUSING
Sem 7

CLUSTER OF3BHKFLATS

TOTALFLOORS

NOOFFLATSPERFLOOR

TYPEOFFLAT 3BHK REFUSEFLOORON7TH&14THFLOOR

CLUSTER OF2BHKFLATS

WNGB&C

NOOFFLATSPERFLOOR

TYPEOFFLAT 2BHK REFUSEFLOORON7TH&14THFLOR

CLUSTER 1BHKFLATS WINGDEFG TYPEOFFLAT1BHK NOOFFLATSPERFLOOR6 TOTALFLOORS17181020reap TOTALNOOFFLATS102108+114+120 REFUSEFLOORON7TH&14THFLOR
TOTALFLOORS:21
6 TOTALNOOFFLATS126 126 252
WINGA
20
6 TOTALNOFLATS 120
SITE PLAN

LOCATION

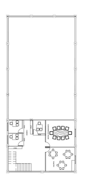
At a walking distance of 10 mins from Kharghar Railway Station. This facility is quite prominently visible from Sion Panvel highway Its on the 7th floor of a commercial building, which houses various types of establishments. Attached to a refugee area which can be used for hanging out for our staff.

PRECEPTION LAN

COWORKING SPACE Interior design Sem 4
Views & Sections

Site selected is near to the bindusara lake, and it is 1 km away from highway. Sun path is from East to west via south.

Considering the nearby lake landscape is designed such a way that it will take you to the best view from site

Site has 10 m wide direct road access

At the entrance water bodies and palm trees will give you warm welcome. There are three pathways you can enter from any one of them,having grass block paving. In between the pathways there is green grass where you can seat on ground and relax or kids can play These pathway of stone paving will lead you to the nice pargolas which has the wooden roof & that will give you shade

Then from all the pergolas you will lead to the point which is at 1 m height where you can enjoy the best view of the lake. That can be called as deck which has brick paving. And chafa trees on the both side of the site will give you cool breeze and nice aroma

LANDSCAPE DESIGN SEM 5
PLAN VIEWS

GROUND

WORKING DRAWING OF COMERCIAL COMPLEX
FLOOR PLAN SECTION ELEVATION & STRIP SECTON DETAILS Sem 6
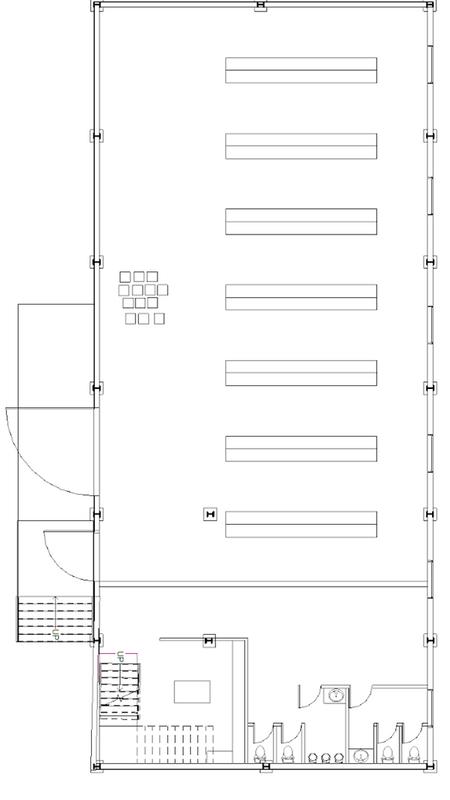
REVIT - WAREHOUSE
Exploded View View Section AA' Section BB' Key plan
OTHER ACTIVITIES MODEL MAKING POTERY PHOTOGRAPHY
KSHITIJA PARGAONKAR +919421963474 kpargaonkar121@gmail.com

Turn static files into dynamic content formats.

Create a flipbook
Issuu converts static files into: digital portfolios, online yearbooks, online catalogs, digital photo albums and more. Sign up and create your flipbook.
ARCHITECTURAL PORTFOLIO KSHITIJA PARGAONKAR by kshitija pargaonkar - Issuu