UNDERGRADUATE ARCHITECTURAL PORTFOLIO

Page 1

KRUTIKAKPATIL

HelloIamkrutikapatil,afourthyearb-archstudent atBNCAcollegeofarchitectureforwomen,pune

Anenthusiasticandcreativearchitecturestudent, seekingfornewopportunitiesandexperiencesin unfoldingspacesthroughdesign

Ibelievethatgreatdesignsaretheresultof collaborativeworkcombinedwithpassionate, innovativeandsensitivevaluesthattransformsa placeintoauniquesolutionthatrespondstohuman needs.

Iamlookingforwardtoexperiencethework environmentandgainpracticalknowledgetoexcelit inafruitfulmanner.

CONTACT:9307816496

E-MAILID:krutikakp2290@gmail.com

LINKEDIN:Https://www.Linkedin.Com/feed/

EDUCATIONBACKGROUND

SCHOOL JR.COLLEGE DEGREECOLLEGE

CO-CURRICULAR

Enzochemhighschool,Yeola Dist.-Nashik(SSC-94.30%)

Enzochemhighschoolandjr. CollegeYeola,Dist-Nashik (2016-2018)(HSC-84.70%)

Dr.Bhanubennanavaticollege ofarchitectureforwomen,Pune (2023-current)

WORKSHOPS/COMPETITONS/ELECTIVES

WORKSHOPS

1.TOILETTALES(2019)

2.BRICKWORKSHOPINBNCA,PUNE(2020)

3.AESA(2023)

Theurbanstatelevelcollaborationwiththe URBANLABtostudytheopportunitiesfor reformingparking'sinmulti-city

COMPETITION

1.NASA REFORMINGCIRCLES(2020-2021)

2.INSDAGCOMPETITION(2022) (STADIUMGALLERYDESIGN)

3.UNFOLD2.0DESIGNCOMPETITION(CURRENT)

4.MILLENIUMFELLOWSHIP(Round2cleared) (current)

5.VANAJAPHOTOGRAPHYCOMPETITION2023

ELECTIVES

1.Parametricarchitecture(Agrade)

2.Architecturalanthropology(Agrade)

SKILLS SOFTWARES

1.AUTODESKAUTOCAD

2.SKETCHUP

3.PHOTOSHOP

4.RHINOCEROS OTHERTOOLS

1.POWERPOINT

2.WORD

3.EXCEL

4.CANVA HANDSON

1.SKETCHING

2.MODELMAKING

3.HANDDONEWORK

4.PHOTOGRAPHY (AttachmentInstagramaccountlink)

LINGUISTICSKILLS

1.ENGLISH

2.MARATHI

3.HINDI

INSTAGRAMID:Https://www.Instagram.Com/

RESIDENCE:OmSaiColony,Badapurroad, Yeola,Nashik

3.Researchpaper

CURRENTColonialarchitecture

ArchitectureinsouthAsia

OTHEREXPERIENCES

•STUDYTOURIN2020 CHOLACHAGUDDA(KARANATAKA)

•UAE(DUBAIANDABUDHABI) Internationaltour(2022)

CURRI CULUMVITAE

SEMESTERWISEPROJECTS

PROJECT1:

RETIREMENTHOUSING

PROJECT2:

REIMAGININGBORICAMPUS (CAMPUSDESIGN)

PROJECT3: FINEARTSINSTITUTE(SPPU CAMPUS)

PROJECT4: (LANDSCAPEPROJECT)

LANDSCAPEDESIGNFOR SHAILESHSOCIETY

PROJECT5:

KIOSKPLANNING

MISCELLANEOUS:

ABCS(MultilevelBasement& stadiumgallerydesign)

SUBDIVISIONOFLAND(Urban studies)

•WORKINGDRWAWING

•HANDDONESHEETS

•ELECTIVE(parametricmodelling)

•PHOTOGRAPHY

CONTENT
PROJECTS

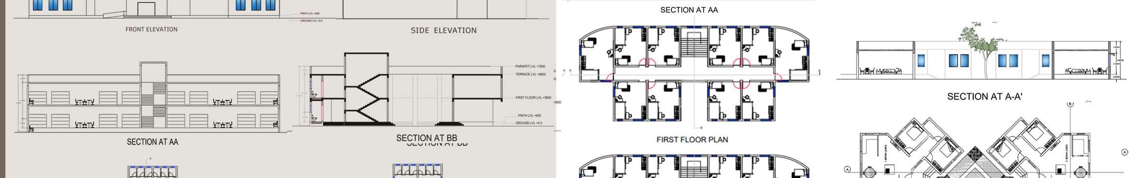
HOUSINGFORSENIORCITIZEN:

RETIREMENTHOUSING

RETIREMENT HOUSING 2BHKCLUSTER MASTERPLAN
RETIREMENT HOUSING STUDIOAPRTMENT MASTERPLAN
RETIREMENT HOUSING
MASTERPLAN
RETIREMENT HOUSING

A12ACRESOFAREAOFBORICAMPUS FORCONSERVINGANDADAPTINGTHE HERITAGETOSTORE

PRINCIPLESOFDESIGNINGCAMPUSGENERALPRINCIPLES

•LANDUSEANDFACILITIES

•ENVIRONMENTAL

•SUSTAINABILITY

•OPENSPACE

•PARKINGCIRCULATIONAND

•UTILITYINFRASTRUCTURE

LOCATION:PUNE

PROJECT:REIMAGINING BHANDARKARRESEARCH INSTITUTE

BUILDINGTYPOLOGY:CAMPUS DESIGN

Reimagining bori campus

SITEPLAN

ZONINGOPTIONS

SINGLEOCCUPENCY GUESTHOUSE

campus design CANTEEN
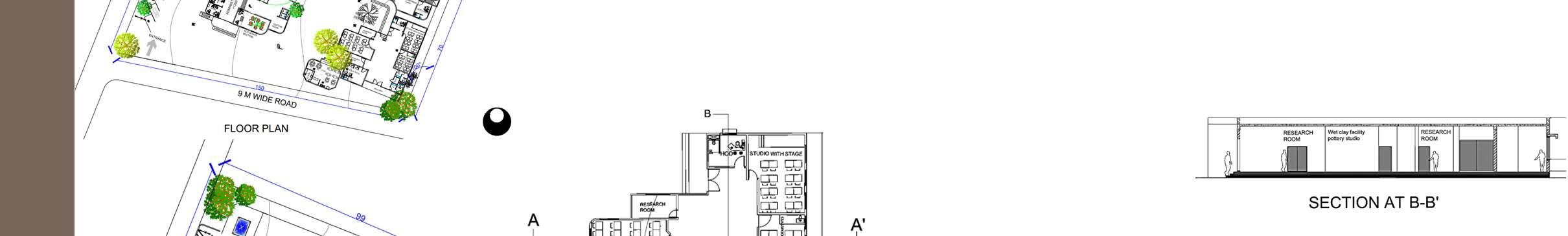
FINE ARTS INSTITUTE AT SPPU LOCATION:PUNE SPPUUNIVERSITY
fine arts institute SITESECTION
Shailesh society Landscape design

THEPROJECTWAS ALLABOUTTO DESIGNAPARKNEAR THESHAILESH SOCIETY’SCULTUTRAL HALLASTHEREWASA NEGATIVESPACE AROUNDTHEHALLSO TOMAKEITMORE PICTURESQUETHE STUDIOWAS PLANNEDFOR LANDCAPEPROJECT

SITEPLAN

Shailesh society

MULTIUTILITYKIOSKPLANNINGATSPPUCAMPUS

DESIGNOBJECTIVE:

•SHOULDBEUNIVERSALLYACCESSIBLE

•ASHOPFORHERITAGESPINE DOCUMENTATIONSHOP

KIOSK DESIGN
KIOSK PLANNING
BASEMENT MULTILEVEL
LONG SPAN stadium gallery design
URBAN STUDIES SUBDIVISION OF LAND SUBDIVISIONOFLAND
URBAN STUDIES SUBDIVISION OF LAND SUBDIVISIONOFLAND
WORKING DRAWINGS
Working drawings (toilet and staircase details)
HAND-DONE WORK
MODULARKITCHEN TIMBERWINDOW
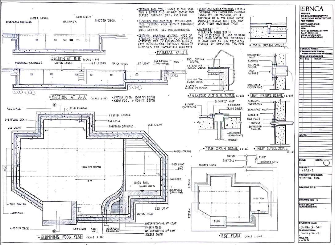
SWIMMINGPOOLDESIGN RCCSUPERSTRUCTURE
HANDDONE WORK

SOFTWAREUSED-RHINO ANDGRASSHOPPER

TORNADOBUILDING

PARAMETRIC MODELLING
LOTUSTEMPLE
Parametric architecture
SOFTWAREUSEDRHINOANDGRASSHOPPER
PARAMETRICMODELLING

VISUALART

LOCATIONS

DUBAI-ABUDHABI-PUNEDHULE-NASHIK

CAMERAUSEDONEPLUSNORD2 SAMSUNGS21

PHOTOGRAPHY

THANKYOU

ACADEMIC WORK PORTFOLIO

Turn static files into dynamic content formats.

Create a flipbook
Issuu converts static files into: digital portfolios, online yearbooks, online catalogs, digital photo albums and more. Sign up and create your flipbook.