

![]()


LIMA/PERU

Actualmente soy bachiller de la carrera deArquitectura con vocación de servicio,positivo,dinámico,honestoy trabajadorcon ganas de incorporarme aunaempresade construccióndeprestigio Siempre ofreciendo lo mejor de mi con una sonrisa y alternativas de solución.
2016 / 2022
Universidad San Martin De Porres /Facultad deArquitectura e Ingeniería
2013 Colegio Pamer
IDIOMAS
ESPAÑOL
ERICK KROVICK
LATORRE SALVA
BACHILLER EN ARQUITECTURA
CONTACTO



ericklatorresalva@gmail.com
916 188 232
Erick La Torre Salva
LIMA/PERU
2023
INGLES
SOFTWARE
AUTOCAD
ARCHICAD
SKETCHUP
ADOBE PHOTOSHOP
LUMION
MICROSOFT OFFICE
CONGRESOS Y OTROS CURSOS
XXII CONGRESO INTERNACIONAL DE INGENIERIA,CIENCIAS AERONAUTICAS Y ARQUIFORO
Universidad San Martin De Porres (Octubre 2017 -2018)
LECTURA DE PLANOS DE ARQUITECTURA (Sensico 2022)
LECTURA DE PLANOS DE ESTRUCTURA (Sensico 2022)
INDICE:
1. CASA DE
2. CASAUNIFAMILIAR
3. REMODELACIÓN
TIENDA EQUIPOS ELECTRONICOS
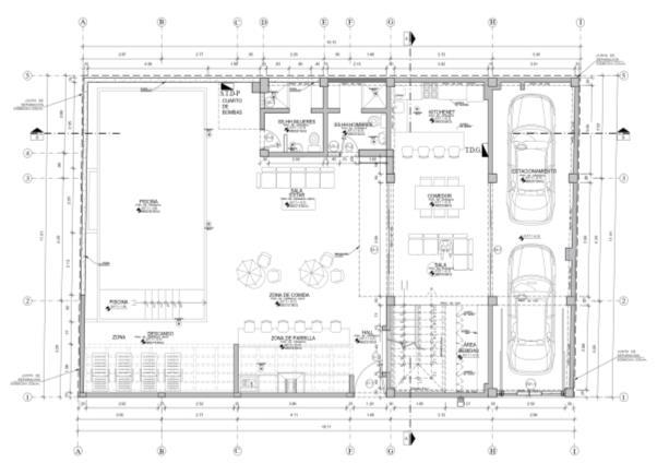
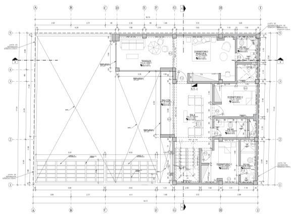
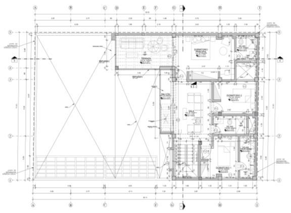
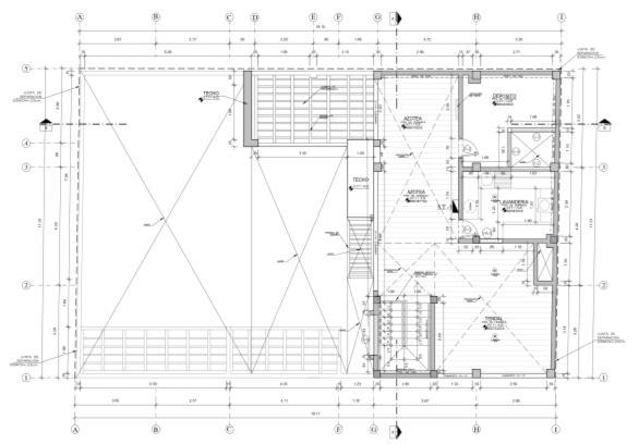
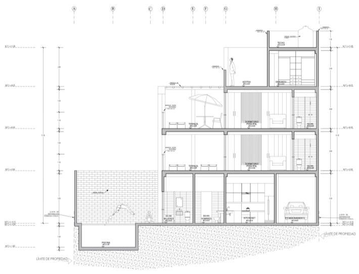
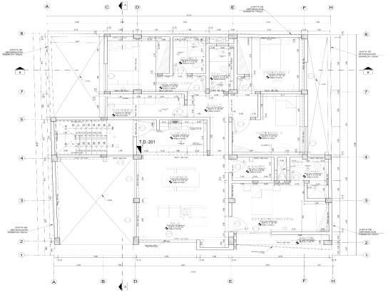
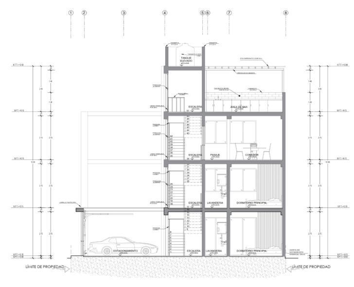
-Se realizo diseño de una vivienda de 3 pisos mas azotea, teniendo en cuenta requerimientos por el cliente.













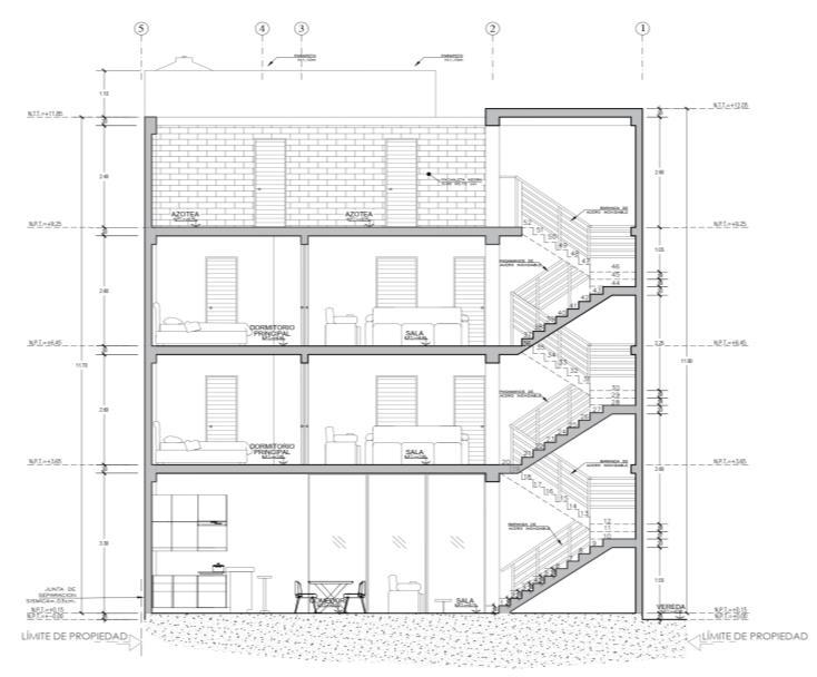
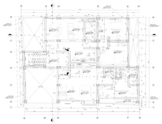
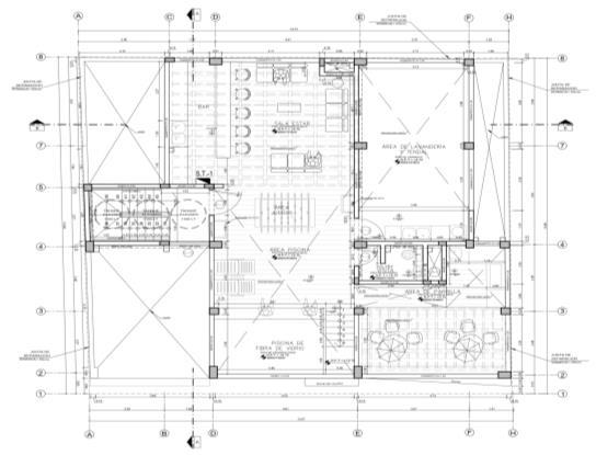
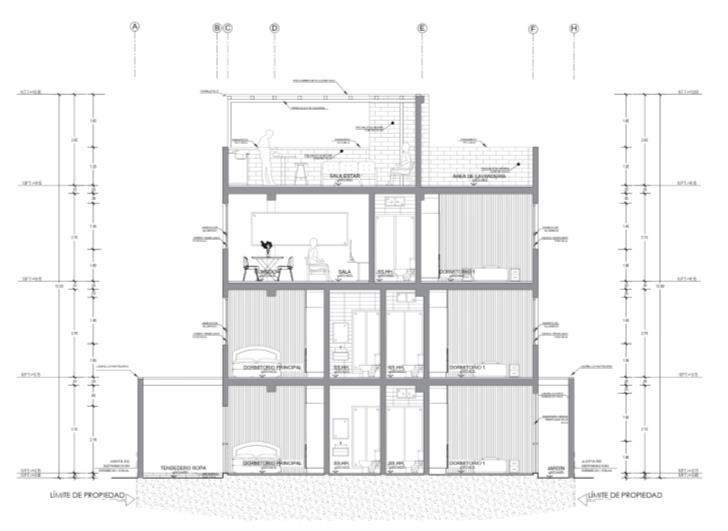
-Se realizo diseño de una vivienda de 3 pisos mas azotea, donde el primer nivel iba habitar la dueña y el 2do piso como el 3er piso para alquilar.













EN
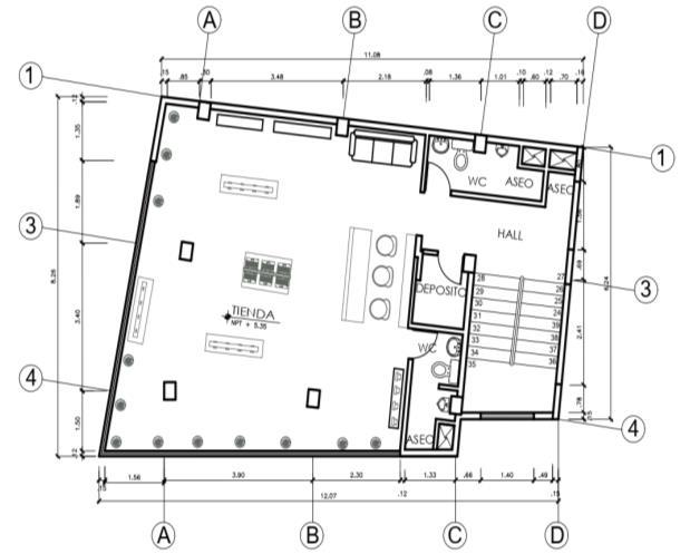
-Se realizo la remodelación y diseño interior de una vivienda ,quería funcionar en un segundo nivel como tienda de equipos electrónicos






