K_Leitgebova Portfolio

Page 1

Ing. arch. Kristýna Leitgebová práce.

JUNIOR ARCHITEKT

Canada | 2021 - 2022

Russell & Russell Design Studios | Canmore

AB,

vila pro rodinu

Schmaltz

2022

Autor

Alasdair Russell

Leslie Russell

Společně s

Dmitri Yasenev Lokace

Banff AB, Kanada

Stavba určená k trvalému bydlení se nachází v historické zástavbě horského města Banff, které je vstupní bránou a oblíbeným turistickým letoviskem kanadských Skalistých hor.

Vila je navržena jako dvoupatrová, podsklepená se sedlovou střechou.

Jsou využity typické lokální přírodní materiály v kombinci cedrového dřeva, jedle douglasky a kamene Rundle v tmavém odstínu.

Hlavní obytné prostory domu jsou situovány ve 2np, které nabízí výhledy do okolní krajiny.

SCHMALTZ RESIDENCY

LANE

KOOTENAY AVENUE

site/ landscape plan 1:150 N RIMELEV=104.23 RIMELEV=106.93 existing sanitary sewer approx. location of existing water line 59° 50' 55" 33.804 172° 43' 21" 10.820 137° 34' 37" 26.314 CH=21.920R=370.637BRG=125° 02' 38"
centerline of road edge of asphalt edge of asphalt 59° 49' 36" 40.188 existing stone fence 0.4wide portion of existing stone fence yo be removed road design by others 107.30 59° 50' 55" 36.831 137° 349' 37" 15.426 59° 49' 36" 35.509 137° 28' 59" 26.309 59° 49' 36" 37.151 lot 14 lot 16 lot 17 lot 15 lot 7A block 3 PLAN 93660 (CLSR) 0810789 (LTO) lot 5 PLAN 43034 (CLSR) 2296HG (LTO) 59° 49' 36" 2.426 garbage bins 6m front setback 2m side setback driveway (stamped concrete) driveway (stamped concrete) cant. above cant. above deck above deck above porch porch 105.18 105.10 105.35 105.80 106.35 106.80 106.80 106.86 106.35 105.80 105.35 105.10 105.04 105.26 105.50 105.30 ADJACENT DWELLING proposed duplex A T/O ROOF PEAK = 116.57 T/O LOFT FLOOR SHTHG. = 12.22 T/O UPPER FLOOR SHTHG. = 109.13 T/O LOWER FLOOR SLAB = 106.04 GARAGE SLAB @ O.H. DOORS = 106.00 6m front setback 4.5m rear setback 4.5m rear setback 105.05 104.75 104.70 106.60 106.20 106.10 106.00 105.80 105.85 105.40 105.30 concrete retaining wall or similar (typ.) swale 105.95 105.60 105.50 106.20 105.85 105.75 4.5m rear setback 6m front setback 6m front setback adjacent duplex B T/O ROOF PEAK = 117.23 T/O LOFT FLOOR SHTHG. = 112.88 T/O UPPER FLOOR SHTHG. = 109.79 T/O LOWER FLOOR SLAB = 106.70 GARAGE SLAB @ O.H. DOORS = 106.09 107.30 107.20 107.05 106.12 107.11 107.04 106.50 105.91 107.00 107.10 107.20 107.40 105.91 106.09 106.03 107.30 107.25 106.40 106.10 107.50 106.10 106.12 cant. above cant. above cant. above porch porch porch porch deck above deck above deck above eave above eave above driveway (stamped concrete) driveway (stamped concrete) 106.09 adjacent duplex A T/O ROOF PEAK = 117.23 T/O LOFT FLOOR SHTHG. = 112.88 T/O UPPER FLOOR SHTHG. = 109.79 T/O LOWER FLOOR SLAB = 106.70 GARAGE SLAB @ O.H. DOORS = 106.09 106.03 106.22 106.45 106.54 105.50 106.40 59° 49' 36" 36.872 lot 15 6m front setback 4.5m rear setback driveway (stampedconcrete) driveway (stampedconcrete) cant. above porch cant. above porch deck above deck above cant. above cant. above 107.86 107.72 107.75 107.57 107.62 107.46 107.76 107.90 107.35 107.30 107.25 107.05 107.09 107.12 107.15 107.23 107.30 107.30 107.30 107.30 107.30 107.30 107.74 106.70 106.55 adjacent duplex A T/O ROOF PEAK = 118.44 T/O LOFT FLOOR CONC. = 113.71 T/O UPPER FLOOR CONC. = 110.58 T/O LOWER FLOOR SLAB = 107.45 GARAGESLAB@O.H.DOORS=107.30 adjacent duplex B T/O ROOF PEAK = 118.44 T/O LOFT FLOOR CONC. = 113.71 T/O UPPER FLOOR CONC. = 110.58 T/O LOWER FLOOR SLAB = 107.45 GARAGESLAB@O.H.DOORS=107.15 107.76 107.20 107.15 107.40 106.30 106.35 6m front setback 4.5m rear setback eave above eave above 107.30 107.68 103.00 104.05 porch porch 105.70 105.73 105.73 105.76 105.83 proposed duplex B T/O ROOF PEAK = 116.88 T/O LOFT FLOOR SHTHG. = 12.53 T/O UPPER FLOOR SHTHG. = 109.44 T/O LOWER FLOOR SLAB = 106.35 GARAGE SLAB @ O.H. DOORS = 106.20 105.90 106.10 106.10 106.10 106.15 106.15 105.50 104.95 104.65 104.60 106.00 105.85 105.60 106.00 106.05 105.90 106.00 proposed conc. retaining wall proposed conc. retaining wall proposed conc. retaining wall LANE 4m right of way & access easement 4m right of way & access easement 4m right of way & access easement 4m right of way & access easement 149° 55' 57" 25.043 6m front setback 6m front setback 2m side setback 4.5m rear setback SITE AREA 947.20 m² SITE COVERAGE PROPOSED: SITE COVERAGE % ALLOWED:40.00 % PROPOSED:34.81 % FLOOR AREA RATIO ALLOWED:0.5 (duplex) PROPOSED: 1m permitted projections GFA upperlowertotalproposedduplex T/OROOFPEAK=115.18 T/OT/OUPPERFLOORSHTHG.=108.78 ENTRYFLOORSHTHG.=106.82 T/OMIDDLEFLOORSHTHG.=105.64 T/OLOWERFLOORSLAB=102.50 proposedgarage O.H.GARAGESLAB@ DOORS=105.28 0.53 105.28 105.45 105.28 105.42 porch deck above deck above windowwell coveredentry eaveabove ADJACENT DWELLING driveway driveway 105.16 104.79 105.44 covered patio 104.44 104.37 102.35 walkway to entry walkwaytoentry 0.57 windowwell x x x x x x x x x x x x x proposed wood fence gate proposed gate deckaboveeaveabove property 0.07 min. typical side yard swale section 1:50 MUNICIPAL ADDRESS 137 KOOTENAY AVENUE BANFF, AB LEGAL DESCRIPTION LOT: 16 BLOCK: 3 PLAN: 2296 H.G LAND USE DESIGNATION RSA: spray avenue district LIGHT FIXTURE SYMBOL PROPOSED EXTERIOR LIGHTING refer to exterior electrical plans for detailed locations QUANTITY PROPOSED LANDSCAPING LEGEND mock orange philadelphus lewisi (deciduous shrub) trembling aspen (deciduous tree) 75 mm caliper shrubby cinquefoil potentilia fruiticosa (deciduous shrub) natural grasses refer to plan 75 mm caliper amur cherry prunus maackia (deciduous tree) 8.70 6.05 6.46 2.07 FOR GEODETIC) AND ELEVATIONS ARE IN METRES. ARE GEODETIC AND ARE REFERENCED TO CCM 11. PLAN LEGEND: 99.99 PEDESTAL FOR GEODETIC) SPOT ELEVATIONS 99.99 ARROW ELECTRICITY SERVICE/ TELEPHONE LINE SERVICE WATER/ SANITARY/ SEWER SERVICES A1.2 #200 817 main street canmore alberta t1w 2b3 info@russellandrussell.ca 403 678 3003 www.russellandrussell.ca and DESIGNED: CC/ AR CHECKED: AR PROJECT: Copyright reserved. These drawings and designs are at all times the property of the designer and may not be used without permission. They are to be used only for the project shown. Written consent is required from the designer before any reproduction. ADDRESS: 1077 schmaltz CLIENT: lot 16137 kootenay ave. banff, ab LOT: 16 BLOCK: 3 PLAN: 2296 H.G. Remi & Dominique Schmaltz A: issued for review 2021-05-20 B: GFA & walkway revisions 2021-06-10 C: DP revisions 2021-07-27 D: grade revisions 2021-08-03 E: design revisions 2021-09-14 F: design revisions 2021-10-05 G: design revisions 2021-10-21 H: design revisions 2021-10-25 I: BP issue 2021-12-01 J: deck & chimney revision 2022-02-18 K: deck & window revision 2022-04-08 L: pantry changes 2022-04-12 plan existing sanitary 26.314
portion of existing 37.151 17 PLAN 93660 (CLSR) (LTO) 2296HG (LTO) 59° 36" 6m 105.10 105.35 FLOOR SLAB setback swale 106.20 105.80 105.40 or 105.60 2m side setback porch driveway = 106.70 106.40 above 107.35 107.30 adjacent CONC. FLOOR 110.58 T/O SLAB adjacent duplex B LOFT SLAB O.H. 107.20 2m side setback front setback porch T/O LOFT FLOOR SHTHG. = 12.53 UPPER T/O LOWER FLOOR SLAB = 106.35 SLAB 106.00 106.05 retaining wall access easement front PROPOSED: % GFA 105.45 105.42 deck coveredentry driveway 104.37 populus 75 12 ELEVATIONS CCM info@russellandrussell.ca and only designer Remi & Dominique ISSUED: B: & 2021-06-10 DP revisions grade revisions design revisions I: deck & chimney site/ landscape plan 1:150 N RIMELEV=104.23 RIMELEV=106.93 existing sanitary sewer approx. location of existing water line 59° 50' 55" 33.804 172° 43' 21" 10.820 137° 34' 37" 26.314 CH=21.920R=370.637BRG=125° 02' 38"
AVENUE
centerline of road edge of asphalt edge of asphalt 59° 49' 36" 40.188 existing stone fence 0.4wide portion of existing stone fence yo be removed road design by others 107.30 59° 50' 55" 36.831 137° 349' 37" 15.426 59° 49' 36" 35.509 137° 28' 59" 26.309 59° 49' 36" 37.151 lot 14 lot 16 lot 17 lot 15 lot 7A block 3 PLAN 93660 (CLSR) 0810789 (LTO) lot 5 PLAN 43034 (CLSR) 2296HG (LTO) 59° 49' 36" 2.426 garbage bins 6m front setback 2m side setback driveway (stamped concrete) driveway (stamped concrete) cant. above cant. above deck above deck above porch porch 105.18 105.10 105.35 105.80 106.35 106.80 106.80 106.86 106.35 105.80 105.35 105.10 105.04 105.26 105.50 105.30 ADJACENT DWELLING proposed duplex A T/O ROOF PEAK = 116.57 T/O LOFT FLOOR SHTHG. = 12.22 T/O UPPER FLOOR SHTHG. = 109.13 T/O LOWER FLOOR SLAB = 106.04 GARAGE SLAB @ O.H. DOORS = 106.00 6m front setback 4.5m rear setback 4.5m rear setback 105.05 104.75 104.70 106.60 swale 106.20 106.10 106.00 105.80 105.85 105.40 105.30 proposed Redi-Rock concrete retaining wall or similar (typ.) 105.95 105.60 105.50 106.20 105.85 105.75 4.5m rear setback 2m side setback 6m front setback 6m front setback adjacent duplex B T/O ROOF PEAK = 117.23 T/O LOFT FLOOR SHTHG. = 112.88 T/O UPPER FLOOR SHTHG. = 109.79 T/O LOWER FLOOR SLAB = 106.70 GARAGE SLAB @ O.H. DOORS = 106.09 107.30 107.20 107.05 106.12 107.11 107.04 106.50 105.91 107.00 107.10 107.20 107.40 105.91 106.09 106.03 107.30 107.25 106.40 106.10 107.50 106.10 106.12 cant. above cant. above cant. above porch porch porch porch deck above deck above deck above eave above eave above eave above driveway (stamped concrete) driveway (stamped concrete) 106.09 adjacent duplex A T/O ROOF PEAK = 117.23 T/O LOFT FLOOR SHTHG. = 112.88 T/O UPPER FLOOR SHTHG. = 109.79 T/O LOWER FLOOR SLAB = 106.70 GARAGE SLAB @ O.H. DOORS = 106.09 106.03 106.22 106.45 106.54 105.50 106.40 59° 49' 36" 36.872 lot 15 6m front setback 4.5m rear setback driveway (stampedconcrete) driveway (stampedconcrete) cant. above porch cant. above porch deck above deck above cant. above cant. above 107.86 107.72 107.75 107.57 107.62 107.46 107.76 107.90 107.35 107.30 107.25 107.05 107.09 107.12 107.15 107.23 107.30 107.30 107.30 107.30 107.30 107.30 107.74 106.70 106.55 adjacent duplex A T/O ROOF PEAK = 118.44 T/O LOFT FLOOR CONC. = 113.71 T/O UPPER FLOOR CONC. = 110.58 T/O LOWER FLOOR SLAB = 107.45 GARAGESLAB@O.H.DOORS=107.30 adjacent duplex B T/O ROOF PEAK = 118.44 T/O LOFT FLOOR CONC. = 113.71 T/O UPPER FLOOR CONC. = 110.58 T/O LOWER FLOOR SLAB = 107.45 GARAGESLAB@O.H.DOORS=107.15 107.76 107.20 107.15 107.40 106.30 106.35 2m side setback 6m front setback 4.5m rear setback eave above eave above 107.30 107.68 103.00 104.05 porch porch 105.70 105.73 105.73 105.76 105.83 proposed duplex B T/O ROOF PEAK = 116.88 T/O LOFT FLOOR SHTHG. = 12.53 T/O UPPER FLOOR SHTHG. = 109.44 T/O LOWER FLOOR SLAB = 106.35 GARAGE SLAB @ O.H. DOORS = 106.20 105.90 106.10 106.10 106.10 106.15 106.15 105.50 104.95 104.65 104.60 106.00 105.85 105.60 106.00 106.05 105.90 106.00 proposed conc. retaining wall proposed conc. retaining wall proposed conc. retaining wall LANE 4m right of way & access easement 4m right of way & access easement 4m right of way & access easement 4m right of way & access easement 149° 55' 57" 25.043 6m front setback 6m front setback 2m side setback 4.5m rear setback SITE AREA 947.20 m² SITE COVERAGE PROPOSED: SITE COVERAGE % ALLOWED:40.00 % PROPOSED:34.81 % FLOOR AREA RATIO ALLOWED:0.5 (duplex) PROPOSED: 1m permitted projections GFA upperlowertotalproposedduplex T/OROOFPEAK=115.18 T/OT/OUPPERFLOORSHTHG.=108.78 ENTRYFLOORSHTHG.=106.82 T/OMIDDLEFLOORSHTHG.=105.64 T/OLOWERFLOORSLAB=102.50 proposedgarage O.H.GARAGESLAB@ DOORS=105.28 7.04 3.31 105.28 105.45 105.28 105.42 porch deck above deck above windowwell coveredentry eaveabove 3.87 ADJACENT DWELLING driveway driveway 105.16 104.79 105.44 covered patio 104.44 104.37 102.35 walkway to entry walkwaytoentry 0.57 windowwell x proposed proposed wood fence proposed gate proposed gate deckaboveeaveabove typical side yard swale section MUNICIPAL ADDRESS 137 KOOTENAY AVENUE BANFF, AB LEGAL DESCRIPTION LOT: 16 BLOCK: 3 PLAN: 2296 H.G LAND USE DESIGNATION RSA: spray avenue district CONCEALED POT LIGHT PROPOSED EXTERIOR LIGHTING refer to exterior electrical plans for detailed locations PROPOSED LANDSCAPING LEGEND mock orange philadelphus lewisi 12 populus tremuloides (deciduous tree) 75 mm caliper shrubby cinquefoil (deciduous shrub) 12 75 mm caliper amur cherry prunus maackia (deciduous tree) 8.70 6.05 6.46 2.07 GEODETIC) ELEVATIONS PLAN LEGEND: 99.99 GEODETIC) ELEVATIONS 99.99 SERVICE SANITARY/ SEWER SERVICES LINE A1.2 #200 817 main street canmore alberta t1w 2b3 info@russellandrussell.ca 403 678 3003 www.russellandrussell.ca and DRAWING NUMBER: DRAWN: CC DESIGNED: CC/ AR CHECKED: AR PROJECT: Copyright reserved. These drawings and designs are at all times the property of the designer and may not be used without permission. They are to be used only for the project shown. Written consent is required from the designer before any reproduction. ADDRESS: 1077 schmaltz CLIENT: lot 16137 kootenay ave. banff, ab LOT: PLAN: 2296 H.G. Remi & Dominique Schmaltz ISSUED: A: issued for review 2021-05-20 B: GFA & walkway revisions 2021-06-10 C: DP revisions 2021-07-27 D: grade revisions 2021-08-03 E: design revisions 2021-09-14 F: design revisions 2021-10-05 G: design revisions 2021-10-21 H: design revisions 2021-10-25 I: BP issue 2021-12-01 J: deck & chimney revision 2022-02-18 K: deck & window revision 2022-04-08 L: pantry changes 2022-04-12 situace 1:600
LANE KOOTENAY AVENUE

půdorys 1np 1/16“ = 1‘-0“

bedroom 1 16'0 x 17'6 deck 11'0 x 21'0 FP dining 18'5 x 20'0 covered deck 20'0 x 12' upper floor plan 1/4" = 1'-0" 1862 ft.² - does not include exterior walls 1972 ft.² GFA N living 22'0 20'0 kitchen 12'0 x 20'0 covered deck 9' x 21' open to below laundry chute sun deck 22' x 12' roof below wic 15'0 x 6'0 total developed area (above grade) 3757 ft.² above grade - does not include exterior walls butler's BBQ fridge/ freezer BF DW 3-sided gas fire place w/ hide -able TV above half wall D D C C B B A A 1.52 3.66 3.35 3.86 3.86 16.26 1.37 7.42 6.40 3.66 15.19 1.98 1.32 0.91 4.57 6.40 3.66 15.19 3.89 6.10 6.93 3.35 16.92 2.74 2.74 roof below future elevator DW 60"x32" freestanding 48"x78" steam shower w/ glass walls outdoor counter top w/ full height pantry B D F G C C 1.36 3.51 2.07 2.07 2.73 3.43 1.75 0.99 2.21 2.21 0.99 0.46 1.34 2.20 2.20 1.22 0.61 1.93 1.93 2.24 1.63 1.60 1.75 1.84 1.81 0.68 0.64 0.89 0.64 2.74 1.83 0.99 1.45 0.99 2.21 1.60 3.20 1.28 1.93 1.51 1.23 1.77 0.61 6.44 1.89 1.78 0.61 4.46 1.09 2.02 6.25 1.52 1.45 2 3 5 7 8 8 10 11 14 16 16 14 15 15 19 21 23 21 27 27 33 34 35 15 15 15 37 exterior wall & window above 6 0.26 1.44 2.99 1.44 0.26 0.86 0.26 6.78 5.87 3.73 0.26 0.11 1.53 2.81 1.53 0.11 8"x8"post 8"x8"post 8"x8"post 8"x8"post 8"x8"post 8"x8"post 8"x8"post 8"x8"post 8"x8"post 8"x8"post 8"x8"post 8"x8"post 8"x8"post 8"x8"post 8"x8"post 8"x8"post 8"x8"post 8"x8"post 8"x8"post 8"x8"post 10.06 1.43 0.97 door schedule description size 3'-0" x6'-8" steel panel w/ weatherstripping & self closer wood panel 2'-6" x 6'-8" "barn"/ track door wood panel 3'-0" x 7'-0" double closet doors - wood panel 33'-0" x 6'-8"wood panel (future elevator doors) 2'-6" x 6'-8" "barn"/ track door wood panel 3'-2" x 7'-0" wood panel 2'-4" x 6'-8" "barn"/ track door wood panel 2'-6" x 7'-0" double closet doors - wood panel 3'-0" x 6'-8" double closet doors - wood panel 2'-0" x 6'-8" A2.3 817 main street canmore alberta t1w 2b3 info@russellandrussell.ca 403 678 3003 www.russellandrussell.ca and DRAWING NUMBER: DRAWN: CC PROJECT: Copyright reserved. These drawings and designs are at all times the property of the designer and may not be used without permission. They are to be used only for the project shown. Written consent is required from the designer before any reproduction. 1077 schmaltz CLIENT: lot 16137 kootenay ave. banff, ab LOT: 16 BLOCK: 3 PLAN: 2296 H.G. Remi & Dominique Schmaltz ISSUED: A: issued for review 2021-05-20 B: GFA & walkway revisions 2021-06-10 C: DP revisions 2021-07-27 D: grade revisions 2021-08-03 E: design revisions 2021-09-14 F: design revisions 2021-10-05 G: design revisions 2021-10-21 H: design revisions 2021-10-25 I: BP issue 2021-12-01 J: deck & chimney revision 2022-02-18 K: deck & window revision 2022-04-08 L: pantry changes 2022-04-12 dining 18'5 x 20'0 upper floor plan 1/4" = 1'-0" 1862 ft.² - does not include exterior walls 1972 ft.² GFA N kitchen 12'0 x 20'0 covered deck 9' x 21' sun deck 22' x 12' total developed area (above grade) 3757 ft.² above grade - does not include exterior walls butler's BBQ fridge/ freezer BF DW half wall B A 1.52 3.66 1.98 1.32 0.91 4.57 6.40 3.66 15.19 3.89 2.74 2.74 future elevator DW outdoor counter top w/ full height pantry B F 1.36 3.51 2.07 1.75 1.84 1.81 0.89 0.64 2.74 1.83 0.99 1.45 0.99 2.21 1.60 6.44 1.89 1.78 1.52 1.45 8 8 10 14 16 16 14 15 15 19 21 0.86 3.73 0.26 1.53 0.11 8"x8"post 8"x8"post 8"x8"post 8"x8"post 8"x8"post 8"x8"post 8"x8"post 10.06 1.43 0.97 interior door schedule description size symbolspec. A B quantity 1 C 3'-0" x6'-8" steel panel w/ weatherstripping & self closer D E F 13 wood panel 2'-6" x 6'-8" "barn"/ track door - wood panel 3'-0" x 7'-0" 1 1 double closet doors - wood panel 33'-0" x 6'-8"wood panel (future elevator doors) (2) 2'-6" x 6'-8" H "barn"/ track door - wood panel 3'-2" x 7'-0" 1 1 wood panel 2'-4" x 6'-8" "barn"/ track door - wood panel 2'-6" x 7'-0" 1 4 double closet doors - wood panel (2) 3'-0" x 6'-8" 1 double closet doors - wood panel (2) 2'-0" x 6'-8"
T/O ROOF PEAK = 115.18 T/O ROOF PEAK = 115.18 12 12 D C exterior finishes #area 1roof IKO-asphalt shingle royal estate mountain slate 2fascia 12" cedar board ardec lifetime wood treatment 3soffit cedar sikkens clear finish 4eaves troughs aluminum black 5horizontal sidingcedar ardec lifetime wood treatment 6trim cedar ardec lifetime wood treatment 7 stucco stucco benjamin moore 'coachman's cape” 8stone natural ledge stone dark rundle 9 deck duradek driftwood 10front door cedar sikkens clear finish 11patio doors aluminum black 12garage door cedar sikkens clear finish 13windows aluminum black 14railings cedar ardec lifetime wood treatment 15deck rim 12" cedar board ardec lifetime wood treatment 16heavy timbers douglas fir sansin - acorn 17bellybands cedar ardec lifetime wood treatment A3.1 #200 817 main street canmore alberta t1w info@russellandrussell.ca 403 678 3003 www.russellandrussell.ca and DRAWING NUMBER: CHECKED: PROJECT: Copyright reserved. These drawings and designs are at all times property of the designer and be used without permission. They to be used only for the project Written consent is required from designer before any reproduction. 1077 schmaltz CLIENT: lot 16137 kootenay banff, ab LOT: BLOCK: PLAN: 2296 Remi & Dominique Schmaltz A: issued for review 2021-05-20 B: GFA & walkway revisions 2021-06-10 C: DP revisions 2021-07-27 D: grade revisions 2021-08-03 E: design revisions 2021-09-14 F: design revisions 2021-10-05 G: design revisions 2021-10-21 H: design revisions 2021-10-25 I: BP issue 2021-12-01 J: deck & chimney revision 2022-02-18 K: deck & window revision 2022-04-08 L: pantry changes 2022-04-12 north (front) elevation 1/4"=1'-0" T/O WALL PLATE T/O MIDDLE FLOOR SHTHG. = 105.64 2.77 T/O UPPER FLOOR SHTHG. = 108.78 T/O ROOF PEAK = 115.18 0.37 T/O WALL PLATE T/O GARAGE SLAB @ O.H. DOORS = 105.28 2.77 3.12 T/O UPPER FLOOR SHTHG. = 108.78 T/O ROOF PEAK = 115.18 0.37 T/O WALL PLATE 3.63 3.45 2.94 T/O WALL PLATE T/O WALL PLATE T/O LOWER FLOOR SLAB = 102.50 2.77 0.37 12 10 12 10 12 5 12 3 12 8 105.28 105.45 105.42 midpoint of roof 26'-5 3/4" [8.07m] to mid point of roof midpoint of roof 26'-0 1/2" [7.94m] to mid point of roof 1 1 1 2 3 5 7 8 9 10 9.89 0.51 0.51 0.51 0.61 0.61 0.61 0.61 0.20 0.51 0.61 2 4 8 6 7 16 1 3 5 13 14 15 9 10 12 D C 17 west (right) elevation 1/4"=1'-0" 12 10 12 5 T/O WALL PLATE T/O MIDDLE FLOOR SHTHG. = 105.64 2.77 T/O UPPER FLOOR SHTHG. = 108.78 T/O ROOF PEAK = 115.18 0.37 3.45 2.94 T/O WALL PLATE T/O WALL PLATE T/O LOWER FLOOR SLAB = 102.50 2.77 0.37 T/O ROOF PEAK = 115.18 4.42 3.94 T/O WALL PLATE @ ENTRY T/O LOWER FLOOR SLAB = 102.50 12 5 T/O WALL PLATE T/O ENTRY FLOOR SHTHG. = 106.82 0.37 3.95 105.45 105.42 105.16 midpoint of roof 26'-10 7/8" [8.20m] to mid point of roof midpoint of roof 25'-11 9/16" [7.91m] to mid point of roof 11 7 8 13 14 15 16 16 14 17 0.51 0.51 1.22 0.61 0.61 0.61 0.61 0.61 0.61 0.46 2 4 1 3 6 13 14 15 9 7 16 11 8 5 13 B A 17 exterior finishes #area material finish 1roof IKO-asphalt shingle royal estate mountain slate 2fascia 12" cedar board ardec lifetime wood treatment 3soffit cedar sikkens clear finish 4eaves troughs aluminum black 5horizontal sidingcedar ardec lifetime wood treatment 6trim ardec lifetime wood treatment 7 stucco stucco benjamin moore 'coachman's cape” 8stone natural ledge stone dark rundle 9 deck duradek driftwood 10front door cedar sikkens clear finish 11patio doors aluminum black 12garage door cedar sikkens clear finish 13windows aluminum black 14railings cedar ardec lifetime wood treatment 15deck rim 12" cedar board ardec lifetime wood treatment 16heavy timbers douglas fir sansin - acorn 17bellybands cedar ardec lifetime wood treatment A3.1 817 main street canmore alberta t1w info@russellandrussell.ca 403 678 3003 www.russellandrussell.ca and DRAWING NUMBER: DRAWN: DESIGNED: PROJECT: Copyright reserved. These drawings and designs are at all times property of the designer and be used without permission. They to be used only for the project Written consent is required from designer before any reproduction. ADDRESS: 1077 schmaltz lot 16137 kootenay banff, ab LOT: BLOCK: PLAN: 2296 Remi & Dominique Schmaltz ISSUED: A: issued for review 2021-05-20 B: GFA & walkway revisions 2021-06-10 C: DP revisions 2021-07-27 D: grade revisions 2021-08-03 E: design revisions 2021-09-14 F: design revisions 2021-10-05 G: design revisions 2021-10-21 H: design revisions 2021-10-25 I: BP issue 2021-12-01 J: deck & chimney revision 2022-02-18 K: deck & window revision 2022-04-08 L: pantry changes 2022-04-12 severní pohled
pohled
/ přední 1/16“ = 1‘-0“ západní
1/16“ = 1‘-0“

dvojdomek u jezera v kanadské provincii

Quebec

2022

Autor

Alasdair Russell

Leslie Russell

Lokace

Quebec, Kanada

Stavba určená k trvalému bydlení se nachází u rekreačního jezera v kanadské provincii Quebec. Jedná se o zrcadlově orientovaný dvojdům pro majitele a širší rodinu, určený k trvalé rekreaci. Objekt je navržen jako dvoupodlažní s obytným podkrovím.

Zasazení stavby do svahu nabízí výhled na přilehlé jezero.

Fasáda domu se skládá s typických prvků bakadské architektuty, jako jsou např. dřevěné šindele, odhalené dřevěné rámové konstrukce a různé typy dřevěných obkladů. Nedílnou součástí fasády je obklad z přírodního kamene.

DŮM
JEZERA, QUEBEC
U
24,59 47,19 54,25 20,05 15,42 20ANS 20ANS 20ANS 20ANS 20ANS 20ANS 20ANS 20ANS 20ANS 100ANS 100ANS 100ANS 100ANS 100ANS 100ANS 100ANS 100ANS 100ANS 5.00m [16'-4 3/4"] 8.72m [28'-7 1/2"] 5.00m [16'-4 3/4"] 9.75m [32'] 32.46m [106'-6"] 2.79m [9'-1 3/4"] 2.92m [9'-6 3/4"] 4.32m [14'-2 1/4"] 1.22m [4'] 5.00m [16'-4 3/4"] 0.61m [2'] 6.47m [21'-2 3/4"] 0.61m [2'] 8.95m [29'-4 1/4"] rock retaining wall 0.6m high 10.68m [35'-0 1/2"] 62.97 62.87 62.72 62.53 62.38 62.15 60.89 61.76 60.21 60.81 4.88m [16'] 5.40m [17'-8 3/4"] SPECIES SIZE QUANTITY N A.:21,14 R.: 241,95 LIGNE CORRESPONDANT À LA COTE D'EXPLOITATION DU BARRAGE DU LAC TÉMISCOUATA (488 PIEDS OU 148,74m) À PARTIR DE LAQUELLE LA BANDE DE PROTECTION RIVERAINE DE 10,00 M DOIT ÊTRE ÉTABLIE repère d'arpentage (staking bench-mark) LOT 6 206 258 2 008,8 m2 AREA OF PARCEL 2008.8 m² PARCEL COVERAGE proposed house 205.1 m² 2208.0 ft2 proposed decks 64.7 m² 696.0 ft total 269.8 m² 2904.0 ft2 % OF PARCEL COVERAGE PROPOSED: 13.4 % SQUARE FOOTAGE lower level - 1885 ft.² = 175.1 m middle level 2075.6 ft.² = 192.8 m2 upper level 918.6 ft.² = 85.3 m total: 4876.2 ft.² = 453 m does not include exterior walls and mechanical mech. - 106 ft.² = 9.8 2 edge of the road bord du chemin center line of the road ligne centrale du chemin 5 m setback 5 m setback 1,5 m setback edge of the woods bord de boisé edge of the woods bord de boisé 63.00 pond étang high water lines haut de talus high water lines haut de talus bicycle path piste cyclable cedar hedge haie de cèdres LOT 6 206 257 LOT 6 206 260 repère d'arpentage (staking bench-mark) repère d'arpentage (staking bench-mark) repère d'arpentage (staking bench-mark) 1 2 SWALE UPPER FLOOR 65.79 PATIO 62.85 62.60 UNIT A deck over SWALE deck over PATIO PROPOSED LANDSCAPING LEGEND 3 coniferous tree 3m height 3m height deciduous tree 7 39 mixed shrub proposed site & landscape plan 1:100 boulder 10 m frontyard setback PROPOSED BUILDING UNIT B 62.30 62.30 59.80 60.57 59.81 59.81 59.68 59.68 60.57 8.78m [28'-9 1/2"] 8.78m [28'-9 1/2"] 8.81m [28'-10 3/4"] 10.00m [32'-9 1/2"] approximate location of septic tank approximate location of septic field 5.00m [16'-4 3/4"] #200 817 main street canmore alberta t1w 2b3 info@russellandrussell.ca 403 678 3003 www.russellandrussell.ca and DRAWING NUMBER: DRAWN: KL DESIGNED: AR CHECKED: AR PROJECT: Copyright reserved. These drawings designs property designer may be used without permission. They to be used only for the project shown. Written consent is required from the designer before any reproduction. 1148 lakeside quebec home (duplex) CLIENT: ville de témiscouata -sur-le-lac, quebec LOT: 6 206 258; 6 206 259 BLOCK:D'Alessandro & Lamoureux ISSUED: A: issued for review 2021-11-26 B: issued for BP 2021-11-30 A1.1 24,59 47,19 54,25 20,05 15,42 20ANS 20ANS 20ANS 20ANS 20ANS 20ANS 20ANS 20ANS 20ANS 100ANS 100ANS 100ANS 100ANS 100ANS 100ANS 100ANS 100ANS 100ANS 5.00m [16'-4 3/4"] 8.72m [28'-7 1/2"] 5.00m [16'-4 3/4"] 9.75m [32'] 32.46m [106'-6"] 2.79m [9'-1 3/4"] 2.92m [9'-6 3/4"] 4.32m [14'-2 1/4"] 1.22m [4'] 5.00m [16'-4 3/4"] 0.61m [2'] 6.47m [21'-2 3/4"] 0.61m [2'] 8.95m [29'-4 1/4"] rock retaining wall 0.6m high 10.68m [35'-0 1/2"] 62.97 62.87 62.72 62.53 62.38 62.15 60.89 61.76 60.21 60.81 4.88m [16'] 5.40m [17'-8 3/4"] SPECIES SIZE QUANTITY SYMBOL N A.:21,14 R.: 241,95 LIGNE CORRESPONDANT À LA COTE D'EXPLOITATION DU BARRAGE DU LAC TÉMISCOUATA (488 PIEDS OU 148,74m) À PARTIR DE LAQUELLE LA BANDE DE PROTECTION RIVERAINE DE 10,00 M DOIT ÊTRE ÉTABLIE (LEVÉ LE 21 AOÛT 2017) repère d'arpentage (staking bench-mark) LOT 6 206 258 2 008,8 m2 AREA OF PARCEL 2008.8 m² PARCEL COVERAGE proposed house 205.1 m² 2208.0 proposed decks 64.7 m² / 696.0 ft total 269.8 m² 2904.0 ft2 % OF PARCEL COVERAGE PROPOSED: 13.4 % SQUARE FOOTAGE lower level - 1885 ft.² = 175.1 m2 middle level 2075.6 ft.² = 192.8 m upper level - 918.6 ft.² = 85.3 m total: 4876.2 ft.² = 453 m2 does not include exterior walls and mechanical mech. - 106 ft.² = 9.8 edge of the road bord du chemin center line of the road ligne centrale du chemin 5 m setback 5 m setback 1,5 m setback edge of the woods bord de boisé edge of the woods bord de boisé MAIN FLOOR pond étang high water lines haut de talus high water lines haut de talus bicycle path piste cyclable cedar hedge haie de cèdres LOT 6 206 257 LOT 6 206 260 repère d'arpentage (staking bench-mark) repère d'arpentage (staking bench-mark) repère d'arpentage (staking bench-mark) 1 2 SWALE UPPER FLOOR 59.91 PATIO 62.85 UNIT A deck over SWALE 59.81 deck over PATIO 59.81 PROPOSED LANDSCAPING LEGEND 3 coniferous tree 3m height 3m height deciduous tree 7 39 mixed shrub proposed site & landscape plan 1:100 boulder 10 m frontyard setback PROPOSED BUILDING UNIT B 62.60 62.30 62.30 59.80 60.57 59.81 59.81 59.68 59.68 60.57 8.78m [28'-9 1/2"] 8.78m [28'-9 1/2"] 8.81m [28'-10 3/4"] 10.00m [32'-9 1/2"] approximate location of septic tank approximate location of septic field 5.00m [16'-4 3/4"] 817 main street canmore alberta t1w 2b3 info@russellandrussell.ca 403 678 3003 www.russellandrussell.ca and DRAWN: KL DESIGNED: AR CHECKED: AR PROJECT: Copyright reserved. These drawings and designs at all times the property of the designer and may not permission. They only project Written consent is required from the designer before any reproduction. ADDRESS: 1148 lakeside quebec home (duplex) CLIENT: ville de témiscouata -sur-le-lac, quebec LOT: 6 206 258; 6 206 259 BLOCK: PLAN: D'Alessandro & Lamoureux A: issued for review 2021-11-26 B: issued for BP 2021-11-30 A1.1 situace 1:400

2

půdorys 1np 1/16“ = 1‘-0“

A A B B 74' 29' 8' 8' 29' 27'-6" 4'-6" 32' 27'-6" 4'-6" 32' 14'-6" 10'-3 1/2" 3'-4" 9'-4" 3'-4" 10'-3 1/2" 14'-6" 8'-7 1/2" 5'-10 1/2" 5'-10 1/2" 8'-7 1/2" 3'-9 1/2" 4'-2 1/2" 4'-2 1/2" 3'-9 1/2" 8'-7 1/2" 8'-7 1/2" 12' 12' 6' 4' 5'-10 1/2" 5'-10 1/2" N 37' 37' 9'-3 1/2" 1/2" 4'-4 1/4" 4'-6" 4'-6" 5' 9'-3 1/2" 1/2" 3'-7 3/4" 4'-4 1/4" 4'-6" 4'-6" 5' UNIT B UNIT A main floor plan 1/4" = 1'-0" UNIT A - 1037.8 ft2 = 96.4 m2 - does not include exterior walls UNIT B - 1037.8 ft2 = 96.4 m2 - does not include exterior walls total - 2075.6 ft² = 192.8 m2- does not include exterior walls bedroom 1 17'4 x 9'6 entry 7'7 11'6 entry 7'7 x 11'6 deck 29'0 x 12'0 deck 29'0 x 12'0 bedroom 1 17'4 x 9'6 FP FP living 17'0 x 17'6 15'-10 9/16" 2'-4 1/2" 8'-1" 10" 7'-7" 2'-6" 15'-10 9/16" 36" high railing 36" high railing ROCK CLAD WOOD F/P ROCK CLAD WOOD F/P 36" high handrail 36" high handrail UP 14 R @ 7 7/8" UP 14 R @ 7 7/8" C C B B B A B B D D G E 3'-7 3/4" 2'-7" 17'-7 1/2" 8'-9 1/2" 8'-9 1/2" 17'-7 1/2" 2'-7" 4'-7 7/16" 4'-3 15/16" 4'-2 1/2" 4'-2 1/2" living 17'0 x 17'6 kitchen 11'0 x 13'2 1 1 3 5 5 9 9 12 12 3 4 4 kitchen 19'8 13'2 dining 11' x 8' dining 11'0 x 8'0 2' 3'-11" G G interior door schedule description size symbolspec. A B quantity 12 C D E F 8 wood panel 2'-8" x 7'-0" 2 wood panel 2'-6" x 7'-0"(2) 3'-6" x 7-0" 4 6 pocket door wood panel G H J (2) 2'-6" x 7'-0" 2'-4" x 7'-0" wood panel bi-pass closet doors wood panel bi-pass closet doors wood panel folding doors - wood panelbi-pass closet doors wood panel (2) 3'-0" x 4'-0" bi-pass closet doors wood panel (2) 2'-6" x 4'-0" 2 2 0 2 2 (2) 1'-6" x 7'-0" (2) 1'-0" x 7'-0" canmore info@russellandrussell.ca 403 www.russellandrussell.ca DRAWING DRAWN: DESIGNED: PROJECT: Copyright and designs property be used Written designer 1148 quebec (duplex) CLIENT: ville -sur-le-lac, BLOCK: PLAN: D'Alessandro Lamoureux ISSUED: A: B: issued 2021-11-30 A A B B 29' 16' 29' 74' 29' 8' 8' 29' 74' 27'-6" 4'-6" 32' 27'-6" 4'-6" 32' 3'-4" 3'-4" 8'-7 1/2" 5'-10 1/2" 5'-10 1/2" 8'-7 1/2" 3'-9 1/2" 4'-2 1/2" 4'-2 1/2" 3'-9 1/2" 8'-7 1/2" 8'-7 1/2" 12' 12' 4' 5'-10 1/2" 5'-10 1/2" N 37' 37' 9'-3 1/2" 1/2" 4'-4 1/4" 4'-6" 4'-6" 5' 9'-3 1/2" 1/2" 3'-7 3/4" 4'-4 1/4" 4'-6" 4'-6" 5' UNIT B UNIT A main floor plan 1/4" = 1'-0" UNIT A - 1037.8 ft2 = 96.4 m2 - does not include exterior walls UNIT B - 1037.8 ft2 = 96.4 m2 - does not include exterior walls total - 2075.6 ft² = 192.8 m2- does not include exterior walls bedroom 1 17' x 9' entry 7' x 11' entry 7'7 11'6 deck 29'0 12'0 deck 29'0 12'0 bedroom 1 17' x 9' FP FP living 17'0 17'6 15'-10 9/16" 2'-4 1/2" 3'-11" 8'-1" 10" 7'-7" 2'-6" 2'-1" 15'-10 9/16" 36" high railing 36" high railing ROCK CLAD WOOD F/P ROCK CLAD WOOD F/P 36" high handrail 36" high handrail UP 14 R @ 7 7/8" UP 14 R @ 7 7/8" C C B B B A B B D G E 3'-7 3/4" 2'-7" 17'-7 1/2" 8'-9 1/2" 8'-9 1/2" 17'-7 1/2" 2'-7" 4'-7 7/16" 4'-3 15/16" living 17'0 17'6 kitchen 11' 13'2 1 1 3 5 5 9 9 12 12 3 4 4 kitchen 19' x 13' dining 11'0 x 8'0 dining 11'0 8'0 2' 3'-11" G G interior door schedule description size symbolspec. A B quantity 12 C D E F 8 wood panel 2'-8" x 7'-0" 2 wood panel 2'-6" x 7'-0"(2) 3'-6" x 7-0" 4 6 pocket door - wood panel G H J (2) 2'-6" x 7'-0" 2'-4" x 7'-0" wood panel bi-pass closet doors - wood panel bi-pass closet doors - wood panel folding doors - wood panelbi-pass closet doors - wood panel (2) 3'-0" x 4'-0" bi-pass closet doors - wood panel (2) 2'-6" x 4'-0"
2 0 2 2 (2) 1'-6" x 7'-0" (2) 1'-0" x 7'-0"

severní pohled / přední 1/16“ = 1‘-0“

jižní pohled / zadní 1/16“ = 1‘-0“

62.30 62.85 62.30 9'-1" 1'-0 3/4" 8'-0 5/8" 1'-1 1/8" 12'-2 1/8" 21'-3 7/8" north (front) elevation 1/4" = 1'-0" WALL PLATE LOWER FLOOR SLAB = 59.91m MAIN FLOOR SHTHG. = 63.00m WALL PLATE ROOF PEAK = 69.5m property line 12 2.5 EXISTING GRADE AT PROPERTY LINE EXISTING GRADE PROPOSED GRADE A 7'-4" UPPER FLOOR SHTHG. = 65.79m T/O WALL PLATE T/O LOWER FLOOR SLAB = 59.91m T/O MAIN FLOOR SHTHG. = 63.00m T/O WALL PLATE T/O ROOF PEAK = 69.5m T/O UPPER FLOOR SHTHG. = 65.79m 3' 8.25 12 1 1 2 2 3 3 4'-6 15/16" 1 1 10 17 6 8 2 1 8 16 12 5 15 4 4 exterior finishes #area material finish 1roof asphalt shingles IKO charcoal grey 2fascia 10" cedar dark espresso brown 3soffit vented aluminium soffit dark espresso brown 4eaves troughs extruded aluminum galvanized 5walls shingles green 6walls 2 vertical siding green 7walls 3 horizontal siding dark espresso brown 8walls 4 stone natural ledge stone 9heavy timbers douglas fir dark espresso brown 10doors- front custom wood black 11doors- french aluminum/ vinyl black 12windows aluminum/ vinyl black 13wood railings cedar LifeTime wood treatment dark espresso brown 14deck dura-dek membrane legacy driftwood 15bellyband 2"x12" clear cedar board green 16trim cedar board black 17shutters cedar dark espresso brown 817 main street canmore alberta t1w info@russellandrussell.ca 403 678 3003 www.russellandrussell.ca and DRAWING NUMBER: DRAWN: DESIGNED: CHECKED: PROJECT: Copyright reserved. These and designs are at all property of the designer and be used without permission. to be used only for the project Written consent is required designer before any reproduction. ADDRESS: 1148 lakeside quebec home (duplex) CLIENT: ville de témiscouata -sur-le-lac, quebec LOT:6 206 258; BLOCK: PLAN: D'Alessandro Lamoureux ISSUED: A: issued for review 2021-11-26 B: issued for BP 2021-11-30 A3.1 9'-1" 1'-0 3/4" 8'-1" 1'-0 3/4" 12'-2 1/8" 21'-3 7/8" south (rear) elevation 1/4" = 1'-0" property line A SLAB = 59.91m SHTHG. = 63.00m 69.5m SHTHG. = 65.79m T/O WALL PLATE T/O LOWER FLOOR SLAB = 59.91m T/O MAIN FLOOR SHTHG. = 63.00m T/O WALL PLATE T/O ROOF PEAK = 69.5m T/O UPPER FLOOR SHTHG. = 65.79m 59.68 59.68 59.81 11 8 12 12 12 12 11 10 9 7'-4" 9 6 8 11 8 9 2 1 5 16 12 12 2.5 8.25 12 10 exterior finishes material finish asphalt shingles IKO charcoal grey 10" cedar dark espresso brown vented aluminium soffit dark espresso brown troughs extruded aluminum galvanized shingles green vertical siding green horizontal siding dark espresso brown stone natural ledge stone timbers douglas fir dark espresso brown front custom wood black french aluminum/ vinyl black 12windows aluminum/ vinyl black railings cedar LifeTime wood treatment dark espresso brown dura-dek membrane legacy driftwood 15bellyband 2"x12" clear cedar board green cedar board black cedar dark espresso brown 817 main street canmore alberta t1w 2b3 info@russellandrussell.ca 403 678 3003 www.russellandrussell.ca and DRAWING NUMBER: DRAWN: KL DESIGNED: AR Copyright reserved. These drawings and designs are at all times the property of the designer and may not be used without permission. They are to be used only for the project shown. Written consent is required from the designer before any reproduction. ADDRESS: 1148 lakeside quebec home (duplex) CLIENT: ville de témiscouata -sur-le-lac, quebec LOT:6 206 258; 6 206 259 BLOCK:PLAN:D'Alessandro & Lamoureux ISSUED: A: issued for review 2021-11-26 B: issued for BP 2021-11-30 A3.2

JUNIOR ARCHITEKT RadaArchitekti

| Brno, CZE | 2017- 2020

rekonstrukce bývalé budovy jatek

2017

Autor

Ing. arch. Pavel Rada

Ing. arch. Karel Doležel Společně s

Ing. arch. Martina Gábor

Ing. arch. Kateřina Baťková vizualizace MISS3

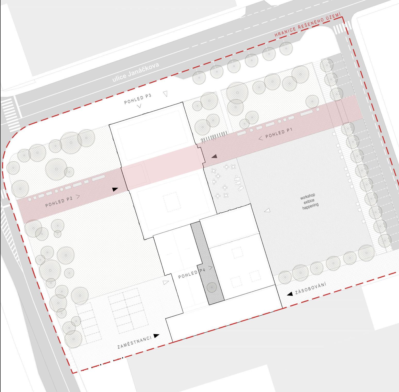
Zásadní koncepční myšlenkou návrhu je obnova vnitřního exteriérového atria a zachování existence původních budov Jatek. Z ulice Masné je navržen hlavní přístupový směr a hlavní vstup do foyeru galerie. Vedlejší vstup do stejné vstupní haly je uvažován od ulice Porážkové. Záměrem je ponechat stavbě její původní výraz a identitu, ale zároveň vytvořit nové prostory kulturní instituce 21. století. Návrh respektuje vnější vzhled Jatek z režného zdiva, který je historicky pevně spojen s místem a tvoří nenahraditelnou tvář průmyslové výstavby a kulturního dědictví Ostravy. Koncept rekonverze na galerii počítá s takovým provozním uspořádáním, které při novém funkčním využití zachovává původní objekty A, B a C, které byly v minulosti rovněž propojené v jeden provozní celek a navíc obnovením exteriérového vnitřního atria oživuje jak novou architekturu, tak odkazuje k původní srostlici budov. Návrh pouze odstraňuje objekt D jako bezvýznamnou, konstrukčně dožitou stavbua v její půdorysné stopě realizuje čtyřpodlažní novostavbu, ve které je umístěno zázemí galerie, jako jsou sklady, administrativa a ubytování. Tato servisní budova je v celém organismu budov původních Jatek uložena jako „nová dilatace“, která v budoucnu umožní propojení s novou, možná také kulturní funkcí sousedního objektu. Povrchová úprava novostavby (červené lícovky v tmavším odstínu) odkazuje k původním jatkám, ale tvarosloví je současné.

soutěž
GALERIE PLATO OSTRAVA architektonická

SITUACE

PŮDORYS 1NP

pohled P1 pohled P2

5. místo

architektonická soutěž

Komunitní centrum v Říčanech u Brna

2019 Společně s

Ing. arch. Pavel Rada

Ing. arch. Martina Gábor

architektonická soutěž / 5. místo vizualizace MISS3

„Komunitní centrum Říčanský mlýn je umístěno do více objektů, jež svým charakterem zapadají do daného území a jeho navazujícího okolí. Návrh využívá jedinečnosti místa – protékající Říčanský potok, zasazení do svahu, vzrostlou zeleň nebo i historii místa. Zároveň reaguje na nedostatky území, zejména na hlučnost a dopravní zatížení. Objekty, spolu s nově navrženým nábřežím, vytvářejí „městskou náves“, kde se mohou konat akce různého druhu a obyvatelé zde mohou relaxovat, sportovat, ale i využívat různé služby.“

CENTRUM ŘÍČANSKÝ MLÝN
KOMUNITNÍ

BYDLENÍ C

SCHÉMA KONCEPCE ŘEŠENÍ

SC HÉ MA KONCE P CE ŘEŠENÍ

ULICE JIHLAVSKÁ PĚŠÍ LÁVKA

DOPLNĚNÍ ULIČNÍ ČÁRY HMOTOU VYUŽITÍ TERENNÍ HRANY PROTIHLUKOVÁ OPATŘENÍ ODSTUP OD SOUSEDNÍCH POZEMKŮ

doplnění uliční čáry hmotou využití terénní hrany protihluková opatření odstup od sousedních pozemků

DOPLNĚNÍ ULIČNÍ ČÁRY HMOTOU

VYUŽITÍ TERENNÍ HRANY

PEČOVATELSKÁ SLUŽBA

OBČANSKÁ VYBAVENOST

přizpůsobení měřítka zástavbě dopravní napojení řešeného území

PŘIZPŮSOBENÍ MĚŘÍTKA HMOTOVÉ ZÁSTAVBĚ

DOPRAVNÍ NAPOJENÍ ŘEŠENÉHO ÚZEMÍ

1.ETAPA

2.ETAPA

1.ETAPA

PROTIHLUKOVÁ OPATŘENÍ ODSTUP OD SOUSEDNÍCH POZEMKŮ K OMUNITNÍ CENTRUM

OBJEKTY BYDLENÍ A, B, C

OBJEKT OBČANSKÉ VYBAVENOSTI A

OBJEKTY BYDLENÍ A, B, C

PEČOVATELSKÉ SLUŽBY

OBJEKT OBČANSKÉ VYBAVENOSTI A

PARKING V ULICI MLÝNSKÁ

PEČOVATELSKÉ SLUŽBY

AUTOBUSOVÁ ZASTÁVKA

PARKING V ULICI MLÝNSKÁ

LÁVKA PŘES ŘÍČANSKÝ POTOK

AUTOBUSOVÁ ZASTÁVKA

LÁVKA PŘES ŘÍČANSKÝ POTOK

2.ETAPA

OBJEKT SPOLEČENSKÉHO CENTRA

DOPLŇKOVÉ FUNKCE

OBJEKT SPOLEČENSKÉHO CENTRA

DOPLŇKOVÉ FUNKCE

SADOVÉ A TERÉNNÍ ÚPRAVY PARKU A NÁBŘEŽÍ ŘÍČANSKÉHO POTOKA

SADOVÉ A TERÉNNÍ ÚPRAVY PARKU A NÁBŘEŽÍ ŘÍČANSKÉHO POTOKA

PŘIZPŮSOBENÍ MĚŘÍTKA HMOTOVÉ ZÁSTAVBĚ DOPRAVNÍ NAPOJENÍ ŘEŠENÉHO ÚZEMÍ ANOTACE

1.ETAPA

1.ETAPA

OBJEKTY BYDLENÍ A, B, C OBJEKT OBČANSKÉ VYBAVENOSTI A PEČOVATELSKÉ SLUŽBY PARKING V ULICI MLÝNSKÁ AUTOBUSOVÁ ZASTÁVKA LÁVKA PŘES ŘÍČANSKÝ POTOK

2.ETAPA

2.ETAPA

OBJEKTY BYDLENÍ A, B, C OBJEKT OBČANSKÉ VYBAVENOSTI A PEČOVATELSKÉ SLUŽBY PARKING V ULICI MLÝNSKÁ AUTOBUSOVÁ ZASTÁVKA LÁVKA PŘES ŘÍČANSKÝ POTOK

OBJEKT SPOLEČENSKÉHO CENTRA DOPLŇKOVÉ FUNKCE SADOVÉ A TERÉNNÍ ÚPRAVY PARKU A NÁBŘEŽÍ ŘÍČANSKÉHO POTOKA

OBJEKT SPOLEČENSKÉHO CENTRA DOPLŇKOVÉ FUNKCE SADOVÉ A TERÉNNÍ ÚPRAVY PARKU A NÁBŘEŽÍ ŘÍČANSKÉHO POTOKA

SITUACE 1:200

PRIZPŮSOBENÍ SE CHARAKTERU OKOLNÍ ZÁSTAVBY VYTVOŘENÍ KOMUNITNÍHO CENTRA ÚPRAVA A PŘÍSTUPNOST NÁBŘEŽÍ PROSTUPNOST ÚZEMÍM

přizpůsobení se charakteru okolní zástavby vytvoření komunitního centra úprava a přístupnost nábřeží prostupnost území

SITUACE ŠIRŠÍC H VZ TA HŮ 1:5000

1
VELKÁ BÍTEŠ
KOMUNITNÍ CENTRUM
5m 5m
K OMUNITNÍ CENTRUM Ř ÍČANSKÝ MLÝN J E UMÍST Ě NO D O O BJ EKT Ů J E Ž S V ÝM C H ARAKTEREM Z A PA D A J D O D AN ÉH O A J E H O OKOLÍ N ÁV R H VY U Ž Í VÁ J E D INEČNOSTI MÍSTA – P ROT É KA J ÍCÍ Ř ÍČANSKÝ P OTOK , Z ASA Z ENÍ D O S VA H U , VZ ROSTLOU Z ELE Ň NE B O I H ISTORII MÍSTA Z Á RO V E Ň REA G U J NE D OSTATK Y ÚZ EMÍ , Z E J M É NA NA H LUČNOST A D O P RAV NÍ Z ATÍ Ž ENÍ O BJ EKT Y S P OLU S NO VĚ NAV R Ž ENÝM N ÁB ŘE Ž ÍM VY T VÁ ŘE J Í M Ě STKOU N ÁV ES “, K D E SE MO H OU KONAT R ŮZ N ÉH O D RU H U A O BYVATEL É ZD E MO H OU RELA x O VAT S P ORTO VAT ALE I VY U Ž Í VAT R ŮZ N É SLU ŽBY
HÉ MA ETA P I Z ACE ANOTACE OBČANSKÁ VYBAVENOST 19 20 21 22
SC
KOUPALIŠTĚ
MLÝN
E UMÍST Ě NO D O V ÍCE
Ů , J E Ž S V ÝM C H ARAKTEREM Z A PA D A J Í D O D AN ÉH O ÚZ EMÍ A J E H O OKOLÍ N ÁV R H VY U Ž Í VÁ J E D INEČNOSTI MÍSTA P ROT É KA J ÍCÍ Ř ÍČANSKÝ P OTOK Z ASA Z ENÍ D O S VA H U VZ ROSTLOU Z ELE Ň NE B O I H ISTORII MÍSTA Z Á RO V E Ň REA G U J E NA NE D OSTATK Y ÚZ EMÍ Z E J M É NA NA H LUČNOST A D O P RAV NÍ Z ATÍ Ž ENÍ O BJ EKT Y, S P OLU S NO VĚ NAV R Ž ENÝM N ÁB ŘE Ž ÍM , VY T VÁ ŘE J Í „ M Ě STKOU N ÁV ES “, K D E SE MO H OU KONAT AKCE R ŮZ N ÉH O D RU H U A O BYVATEL É ZD E MO H OU RELA x O VAT S P ORTO VAT ALE VY U Ž Í VAT R ŮZ N É SLU ŽBY VELKÁ BÍTEŠ 15,5 km
Ř ÍČANSKÝ
J
O BJ EKT
ULICE ZAMLÝNEM 11 12 13 14 15 16 17 18 ULICE JIHLAVSKÁ LÁVKA BRNO
BÍTEŠ 15,5 km

SCHÉMA FUNKCÍ

OBJEKTY BY d LENÍ - CELKEM 30 BYTŮ

OBJEKT OBČANSKÉ VYBAVENOSTI A A p EČOVATELSKÉ SLUŽBY

OBJEKT S p OLEČENSKÉ h O CENTRA

h É MA FUNKCÍ

SC h É MA FUNKCÍ

OBJEKTY BY d LENÍ - CELKEM 30 BYTŮ

SC h É MA FUNKCÍ

OBJEKT OBČANSKÉ VYBAVENOSTI A A p EČOVATELSKÉ SLUŽBY

OBJEKTY BY d LENÍ - CELKEM 30 BYTŮ

OBJEKTY BY d LENÍ - CELKEM 30 BYTŮ

OBJEKT S p OLEČENSKÉ h O CENTRA

OBJEKT OBČANSKÉ VYBAVENOSTI A A p EČOVATELSKÉ SLUŽBY

OBJEKT OBČANSKÉ VYBAVENOSTI A A p EČOVATELSKÉ SLUŽBY

OBJEKT S p OLEČENSKÉ h O CENTRA

OBJEKT S p OLEČENSKÉ h O CENTRA

objekty bydlení - celkem 30 bytů objekty občanské vybavenosti a pečovatelské služby objekty společenského centra

ŘE z O p O h LE d h 1:200 ŘE z O p O h LE
F 1:200
d
O BJ EKT O B ČANSK É VYB E V ENOSTI BJ EKT S p OLEČENSK É h O CENTRA p IETA MLÝNA MLÝNSK É KOLO „CENTRO p IETO“ O BJ EKT BY d LENÍ B ŘÍČANSKÝ p OTOK p ARKIN g ULICE MLÝNSK á ULICE MLÝNSK á ST á V A J ÍCÍ L á V KA ULICE MLÝNSK á A p EČO V ATELSK É SLU ŽBY SC h É MA FUNKCÍ ŘE z O p O h LE d F 1:200
O BJ EKT O B ČANSK É VYB E V ENOSTI ULICE MLÝNSK á ST á V A J ÍCÍ L á V KA A p EČO V ATELSK É SLU ŽBY
ŘE
O p
LE d F 1:200
SC
z
O h
EKT O B ČANSK É VYB E V ENOSTI ULICE MLÝNSK á ST á V A J ÍCÍ L á V KA A p EČO V ATELSK É SLU ŽBY
ŘE
z O p O h LE d F 1:200
B ČANSK É VYB E V ENOSTI ULICE MLÝNSK á ST á V A J ÍCÍ L á V KA p EČO V ATELSK É SLU ŽBY

pohled A / ulice Mlýnská

pohled B řezopohled řezopohled

3 KOMUNITNÍ CENTRUM ŘÍČANSKÝ MLÝN 1700 2700 3000 2700 3000 + 3,000 + 6,000 + 9,000 ± 0,000 - 1,500 1700 2700 3000 2700 3000 + 3,000 + 6,000 + 9,000 ± 0,000 - 1,500 1700 2700 3000 2700 3000 + 3,000 + 6,000 + 9,000 ± 0,000 ŘE Z O P O H LE D A / ULICE MLÝNSK Á 1:200 O BJ EKT BYD LENÍ C P ARKO VÁ NÍ V ULICI KR Y T É P ARKO V ACÍ ST Á NÍ KR Y T É P ARKO V ACÍ ST Á NÍ KR Y T É P ARKO V ACÍ ST Á NÍ O BJ EKT BYD LENÍ B O BJ EKT BYD LENÍ C O BJ EKT BYD LENÍ C O BJ EKT BYD LENÍ A O BJ EKT BYD LENÍ A KOMUNITNÍ Z A H RA DY KOMUNITNÍ Z A H RA DY KOMUNITNÍ Z A H RA DY KOMUNITNÍ Z A H RA DY KOMUNITNÍ Z A H RA DY KOMUNITNÍ Z A H RA DY UČE B NA UČE B NA S P OLEČENSK Á MÍSTNOST S P OLEČENSK Á MÍSTNOST C H R Á N Ě N Á D ÍLNA C H R Á N Ě N Á D ÍLNA KA VÁ RNA KA VÁ RNA O BJ EKT BYD LENÍ A O BJ EKT O B ČANSK ÉH O VYB A V ENÍ O BJ EKT O B ČANSK ÉH O VYB A V ENÍ A P EČO V ATELSK É SLU ŽBY O BJ EKT O B ČANSK ÉH O VYB A V ENÍ A P EČO V ATELSK É SLU ŽBY ŘE Z O P O H LE D B 1:200 ŘE Z O P O H LE D C 1:200 4 ŘE z O p O h LE d g 1:200 ŘE z O p O h LE d E 1:200 ULICE MLÝNSK á p ARKIN g ULICE MLÝNSK á p ARKIN g ULICE MLÝNSK á ULICE MLÝNSK á 4 ŘE z O p O h LE d g 1:200 ŘE z O p O h LE d E 1:200 p ARKIN g p ARK pě ŠÍ TRAS Y ULICE MLÝNSK á p ARKIN g ULICE MLÝNSK á p ARKIN g ULICE MLÝNSK á ULICE MLÝNSK á ŘE z O p O h LE d d 1:200

řezopohled H

KOMUNITNÍ CENTRUM ŘÍČANSKÝ MLÝN

řezopohled

ŘE z O p O h LE d h 1:200 ŘE z O p O h LE d F 1:200 O BJ EKT O BJ EKT O B ČANSK É VYB E V ENOSTI O BJ EKT O B ČANSK É VYB E V ENOSTI KA V á RNA ŘÍČANSKÝ p OTOK O BJ EKT S p OLEČENSK É h O CENTRA O BJ EKT S p OLEČENSK É h O CENTRA p IETA MLÝNA MLÝNSK É KOLO „CENTRO p IETO“ O BJ EKT BY d LENÍ B O BJ EKT BY d LENÍ B ŘÍČANSKÝ p OTOK ŘÍČANSKÝ p OTOK B US p ARKIN g ULICE MLÝNSK á ULICE MLÝNSK á ST á V A ÍCÍ L á V KA ULICE MLÝNSK á p ARK pě ŠÍ TRAS Y A p EČO V ATELSK É SLU ŽBY A p EČO V ATELSK É SLU ŽBY p IETA KOMUNITNÍ CENTRUM ŘÍČANSKÝ MLÝN ŘE z O p O h LE d h 1:200 ŘE z O p O h LE d F 1:200 OBJEKTY BY d LENÍ - CELKEM 30 BYTŮ OBJEKT OBČANSKÉ VYBAVENOSTI A A p EČOVATELSKÉ SLUŽBY OBJEKT S p OLEČENSKÉ h O CENTRA „CENTRO p IETO“ O BJ EKT S p OLEČENSK É h O CENTRA p ARK pě ŠÍ TRAS Y ŘÍČANSKÝ p OTOK O BJ EKT O B ČANSK É VYB E V ENOSTI O BJ EKT O B ČANSK É VYB E V ENOSTI KA V á RNA ŘÍČANSKÝ p OTOK O BJ EKT S p OLEČENSK É h O CENTRA O BJ EKT S p OLEČENSK É h O CENTRA p IETA MLÝNA MLÝNSK É KOLO „CENTRO p IETO“ O BJ EKT BY d LENÍ B O BJ EKT BY d LENÍ B ŘÍČANSKÝ p OTOK ŘÍČANSKÝ p OTOK B US p ARKIN g ULICE MLÝNSK á ULICE MLÝNSK á ST á V A ÍCÍ L á V KA ULICE MLÝNSK á p ARK pě ŠÍ TRAS Y A p EČO V ATELSK É SLU ŽBY A p EČO V ATELSK É SLU ŽBY p IETA MLÝNA MLÝNSK É KOLO O BJ EKT BY d LENÍ C ULICE MLÝNSK á SC h É MA FUNKCÍ G E
1:800
F

rekonstrukce obývacího pokoje s kuchyní

2019

Společně s

Ing. arch. Pavel Rada

Návrh se zabývá rekostrukcí kuchyně spojené s obývacím prostorem v rodinném domě ze 70. let.

Interiér je navržen v přírodních materiálech a světlých barvách. Důležitými prvky je krb a knihovna, kdy obyvatelé tráví podstatnou část volného času čtením knih.

MORAVANY
INTERIÉR
DŘEVO RYCHLOVARNÁ KONVICE TOUSTOVAČ ODŠŤAVŇOVAČ ROBOT push push pohled A pohled B pohled D pohled C pohled E řez F řez F 600 600 600 600 600 600 600 600 push push 50 310 50 420 110 100 828 110 100 600 1100 1000 1150 350 600 2900 6400 3000 1800 4800 900 2100 1800 push 1830 1470 150 900 150 150 900 150 1471 1829 2590 1750 1350 Ø1200 3000 3000 2344 půdorys 1:50
DŘEVO pohled E 6400 150 900 150 1471 1829 2590 1750 1350 Ø1200 2344 2500 60 300 600 600 600 900 1800 920 80 412 236 182 10 900 600 600 1800 1300 1000 900 600 400 2560 pohled D 1:50

Městská galerie

Kulturní polyfunkční centrum v Novém Jičíně

architektonická soutěž 2018

Společně s

Ing. arch. Pavel Rada

Ing. arch. Martina Gábor

Soutěž se zabývala architektonickým komplexem Hücklových vil od vídeňského architekta Otto Thienemanna, jehož dominantou jsou dvě zrcadlově symetrické novorenezanční vily obklopené rozsáhlou parkovou úpravou.

Návrh se zabývá dlouhodobě nevyužívanou vilou Augusta Hückela, a umisťuje zde zcela novou funkci městské galerie - kulturní polyfunkční centrum. Návrh předpokládá vrátit vile vnější podobu tak, aby co nejvíce respektovala původní návrh autora. A odstraňuje chátrající dostavby pozdějších let.

HUCKELOVY VILY

M Ě STSKÝ PARK ANGLICKÉHO TYPU

MĚSTSKÝ PARK ANGLICKÉHO TYPU

MĚSTSKÝ PARK ANGLICKÉHO TYPU

VILA 2 - AUGUSTA HUCKELA

ZÁSOBOVÁNÍ

VILA 1 - JOHANA HUCKELA

VILA 2 - AUGUSTA HUCKELA

ZÁSOBOVÁNÍ

ZÁSOBOVÁNÍ

VILA 1 - JOHANA HUCKELA

ZÁSOBOVÁNÍ

UBYTOVNA „NA LESNÍ“ 1 7 22 28

TERASA

ZÁSOBOVÁNÍ

TERASA

POBYTOVÁ PLOCHA

STSKÝ PARK FRANCOUZSKÉHO TYPU

VILA 1 - JOHANA HUCKELA

ZÁSOBOVÁNÍ

POBYTOVÁ PLOCHA

UBYTOVNA „NA LESNÍ“ 14 15 22 28

UBYTOVNA „NA LESNÍ“ 1 7 8 14 15 21

FRANCOUZSKÉHO TYPU

MĚSTSKÝ PARK FRANCOUZSKÉHO TYPU

VJEZDVÝJEZD

P Ě ŠÍ VSTUP

FRANCOUZSKÉHO TYPU

VJEZDVÝJEZD

P Ě ŠÍ VSTUP

VJEZD VÝJEZD

PĚŠÍ VSTUP

VJEZD VÝJEZD 8 14 15 21 22 28

PĚŠÍ VSTUP

VSTUP

VSTUP

ŠÍ HLAVNÍ TRASY

Ř EŠENÉHO ÚZEM OBJEKTY

situace

1:1000 „Návrh zachovává původní koncepci francouzské zahrady ve spodní části pozemku a anglický park v horní části. Pouze přizpůsobujeme dimenze současným parametrům.“

„Objekty jsou propojeny venkovní terasou, jenž je možné využít při konání společenských akcí.“

22 28 VILA 1
S HLAVNÍ
VEDLEJŠÍ
P Ě
- JOHANA HUCKELA
HRANICE
M Ě STSKÝ PARK ANGLICKÉHO TYPU

M

STSKÝ PARK ANGLICKÉHO TYPU

ZÁSOBOVÁNÍ

ZÁSOBOVÁNÍ

SKLADOVÉ PROSTORY PRO MOBILIÁ Ř GALERIE ZAHRADNICKÉ

ZAHRADNICKÉ ZÁZEMI SKLADOVÉ

DORYS1.NP

ZÁSOBOVÁNÍ

ZÁSOBOVÁNÍ

HLAVNÍ VSTUP ŠATNÍ SK Ř Ň KY ŠATNÍ Ň ÚKLID

VSTUPNÍ HALA

ZÁSOBOVÁNÍ VJEZDVÝJEZD VILA 2 - AUGUSTA HUCKELA UBYTOVNA „NA LESNÍ“

ŠÍ VSTUP STSKÝ PARK FRANCOUZSKÉHO TYPU

DOPROVODNÝ

RECEPCE

TERASA

SÁL PRO FLEXIBILNÍ KRÁTKODOBÉ VÝSTAVY

UBYTOVNA „NA LESNÍ“

SÁL PRO FLEXIBILNÍ KRÁTKODOBÉ VÝSTAVY

JÍDELNA SÁL STÁLE EXPOZICE RODINY HÜCKEL Ů

TERASA

SÁL PRO FLEXIBILNÍ KRÁTKODOBÉ VÝSTAVY

UBYTOVNA „NA LESNÍ“

HLAVNÍ VSTUP VEDLEJŠÍ VSTUP P Ě ŠÍ HLAVNÍ TRASY HRANICE Ř EŠENÉHO ÚZEM OBJEKTY P

půdorys 1np 1:200 „Existenci bydlení rodin Huckelů bude zobrazovat původní dochovalá jídelna. A bude tak jedinou stálou expozicí městské galerie.“

„Do galerijních prostor se vstupuje stávajícím hlavním vchodem přes původní vstupní elegantní dvouramenné mramorové schodiště a nově navržené foyer s recepcí. Foyer tak vytváří ústřední bod celého dispozičního řešení.“

S
PŮDORYS 1.NP - MĚSTSKÁ GALERIE 1:100
Ě ŠÍ VSTUP
Ě
1 7 22 28 VILA
BO Č
1 - JOHANA HUCKELA FOYER /
NÍ HALA
PROGRAM K VÝSTAVÁM
ZÁZEMÍ
PROSTORY PRO EXPONÁTY
Ů
ERBAUT B B A A 12345 A 1 2 5 6 7 PĚŠÍ VSTUP TERASA POBYTOVÁ PLOCHA
ZÁSOBOVÁNÍ VJEZD
1 7 8 14 15 21 22 28 VILA 1 - JOHANA HUCKELA S
VSTUP VEDLEJŠÍ
P Ě ŠÍ HLAVNÍ TRASY HRANICE Ř
Ě
STSKÝ PARK ANGLICKÉHO TYPU
SKLADOVÉ PROSTORY PRO EXPONÁTY P Ů DORYS1.NP-M Ě STSKÁGALERIE1:100P
MĚSTSKÝ PARK FRANCOUZSKÉHO TYPU MĚSTSKÝ PARK ANGLICKÉHO TYPU
VÝJEZD
HLAVNÍ
VSTUP
EŠENÉHO ÚZEM OBJEKTY P
VILA 2 - AUGUSTA HUCKELA
VJEZDVÝJEZD
14 15 22 28 VILA 1 - JOHANA HUCKELA

řez A 1:400

řez B 1:400

pohled jihovýchod 1:400

ŘEZ BB 1:200 POHLED B jihovýchod 1:200

ERASMUS PRACOVNÍ STÁŽ

Rüdiger

Lainer + Partner

Vídeň, Rakousko

RLP
| 2016

HOHO WIEN

| „nejvyšší“ dřevěná budova světa realizace | Vienna 2016

Pracovala jsem na dílčích částech v průběhu projektu.

Nejzajímavější byla výroba sádrového modelu fasádních panelů v reálné velikosti, které měly ztvárňovat kůru stromu jako odkaz na hlavní stavební materiál.

QBC6 | „život v zeleni“

realizace | Vídeň, 2016

Pracovala jsem na půdorysech a řezech a také jsem zpracovávala detaily pro balkony s osázenými květináči, které tvoří zásadní „zelený“ výraz budovy.

OTTO WAGNER

POSTSPARKASSE

studie pro rekonstrukci Navrhovali jsme rekonstrukci jedné z nejznámějších secesních budov Vídně od Otto Wagnera. Hlavní myšlenkou projektu byla konverze dvou horních podlaží na luxusní mezonetové apartmány v modulovém systému umožňujícím variabilitu dispozic se soukromými zelenými atrii.

ING. ARCH. KRISTÝNA LEITGEBOVÁ leitgebova.kristyna@gmail.com +420 773 910 917

Turn static files into dynamic content formats.

Create a flipbook
Issuu converts static files into: digital portfolios, online yearbooks, online catalogs, digital photo albums and more. Sign up and create your flipbook.
K_Leitgebova Portfolio by Kristýna Leitgebová - Issuu