KristanMRio_Portfolio

Page 1


residential design

CONCEPT STATEMENT

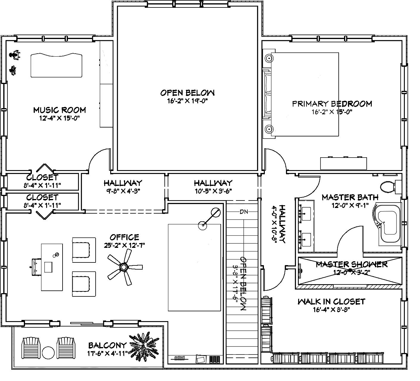
The “Curvaceous Quarters” residential design of the Atkins Brownstone Remodel centers on reconfiguring the 1st floor to improve room flow by de-emphasizing the existing segmented layout while preserving original architectural details.

The design aims to create a custom space that honors Mr. and Mrs. Atkins’ Parisian honeymoon through ample daylighting and artificial lighting, renewable resources, and environmentally conscious materials

Key architectural features implemented to achieve this include:

• focal parlor wall with bookcases and tile flanking the fireplace.

• curved dining room walls transitioning into hallways.

• complementary curved ceiling canopies.

• expansive kitchen with extra storage, a coffee bar, banquette seating, and a scullery and dedicated office space.

AND MATERIALS

Dining Table

Kravet Design

Avenue Dining Table

Maple With Pure

[Base and Top] Brass Foot Plates

Dining Chairs

Kravet Design

Sonata Arm & Side Chairs

Maple With Pure Light Walnut Stain [Legs]

LeeJofa Wild Geese Linen, Indigo [Upholstery]

RENDERED PROPOSED PLAN

Chandelier

Kravet / Luxe Light and Home

LeMarais Chandelier Ivory French Plaster

Beverage Bar

Kravet Design

Halsey Grasscloth Bar

Oak Cerused Finish, Weathered Grasscloth Wallpaper, Tidepool

Produced in Autodesk AutoCAD. Rendered in Adobe Photoshop.

Reproduction

Archival Giclee Print

CuratedKravet

Floater Frame

PERSPECTIVES, ELEVATIONS & SECTION

Elevations and Section Cut produced in Autodesk AutoCAD. | Perspectives in Chief Architect.

Original Scale: 1/2”=1’-0” [NTS - original scale is representative of industry standards.]

residential design

Original Scale: 1/2”=1’-0” [NTS - original scale is representative of industry standards.]

Original Scale: 1”=1’-0” [NTS - original scale is representative of industry standards.]

SECTION CUT - FOYER HALL TREE
WEST ELEVATION - DINING ROOM BUILT-IN WET BAR
WEST ELEVATION - LIVING ROOM FIREPLACE

informationmodeling

3D MODELING AND VISUALIZATION

Using Chief Architect software with Building Information Modeling (BIM) capabilities enhances architectural design and project management by enabling detailed 3D modeling and 2D construction drawings, particularly for residential projects, offering automated tools for kitchen & bath design, home design, and interior design.

Creation and management of schedules for various objects like furniture, windows, doors, electrical, cabinetry, fixtures, and even custom schedules can be generated to coincide with plot and floor plan views, elevations, sections, electrical plans, and CAD detailing for field use.

EXTERIOR AXONOMETRIC

building information modeling

building informationmodeling

Original Scale: 1/8”=1’-0”

[NTS - original scale is representative of industry standards.]

KITCHEN FLOOR PLAN

Original Scale: 1/2”=1’-0”

[NTS - original scale is representative of industry standards.]

PERSPECTIVES, CROSS SECTION & ELEVATIONS

building information modeling

NKBA CROSS SECTION - KITCHEN [FIRST FLOOR]
NKBA WALL ELEVATION - MASTER BATHROOM [SECOND FLOOR]
Original Scale: 1/2”=1’-0” [NTS - original scale is representative of industry standards.]
Original Scale: 1/2”=1’-0” [NTS - original scale is representative of industry standards.]

OLIVA & MAR TAPAS

restaurant design

MISSION STATEMENT

At Oliva & Mar, our mission is to create a safe and comfortable family-friendly atmosphere where every guest can savor the rich flavors of Mediterranean tapas. We are dedicated to providing a gourmet culinary experience that not only delights the palate but also fosters connection and joy among family and friends. Our serene haven is designed for pure enjoyment, inspiring our team to bring warmth, passion, and creativity to every dish and interaction. Together, we strive to build a community hub where memories are made, laughter is shared, and the spirit of Mediterranean hospitality flourishes.

CONCEPT STATEMENT

Oliva & Mar is a Mediterranean tapas in the heart of Falmouth, MA - just a short boat ride from Martha’s Vineyard. The proposed floor plan allows for seating for 140 guests of the 217 guest occupancy allowed by code.

The restaurant design for Oliva & Mar focuses on accessibility compliance, durability of finishes, and acoustics with an overall biophilic design.

The design solution uses contract grade performance fabrics to achieve longevity of materials. The resolution incorporates slip resistant flooring, built-in furnishings, and an open concept floor plan to accommodate the needs of accessible staff and patrons alike.

FLOOR PLAN

Original Scale: 1/8”=1’-0” [NTS - original scale is representative of industry standards.]

Dining Seating: 128 Bar and Wait Seating: 12 Total Capacity: 140

Logo designed in Adobe Illustrator.

2 & 4

RENDERED FLOOR PLAN

RENDERED VIEWS

Renders produced in Trimble SketchUp and enhanced in Chaos Enscape. | Section View hatched in Adobe Photoshop.

hospitality design

DESIGN CONCEPT

The evidence-based design (EBD) of the healthcare facility, Warm Friend Assisted Living Home, communicates a design philosophy that prioritizes resident well-being and creates spaces that evoke a sense of feeling like home. By combining warmth, comfort, and a touch of luxury, the design aims to enhance the quality of life for residents with a warm, inviting, and aesthetically pleasing environment.

DESIGN FOCUS

• cozy and interactive environment

• warm color scheme

• luxury appliances and furnishings

• living green walls

• ties to nature and abstract art

• accessibility, functionality, and safety

FINISH SELECTIONS

Lobby Upholstery

Zeron® Protective Finish, Exceeds 100,000 Double Rubs

Outdoor Fabrics

Sunbrella® Contract with Defiance®, PFOA and PFOS Free

Theatre Carpeting Green Label Plus® Certified, Actionbac® Mold/Mildew Resistant

Library Pods Non-PFAS, Advanced Soil and Stain Resistant Top Coat + Ink Resistance

Logo designed in Adobe Illustrator.

Main Dining Seating Soil & Stain Resistant Top Coat

Nursing Station Recliner Low Emitting, Phthalate Free, PVC Free

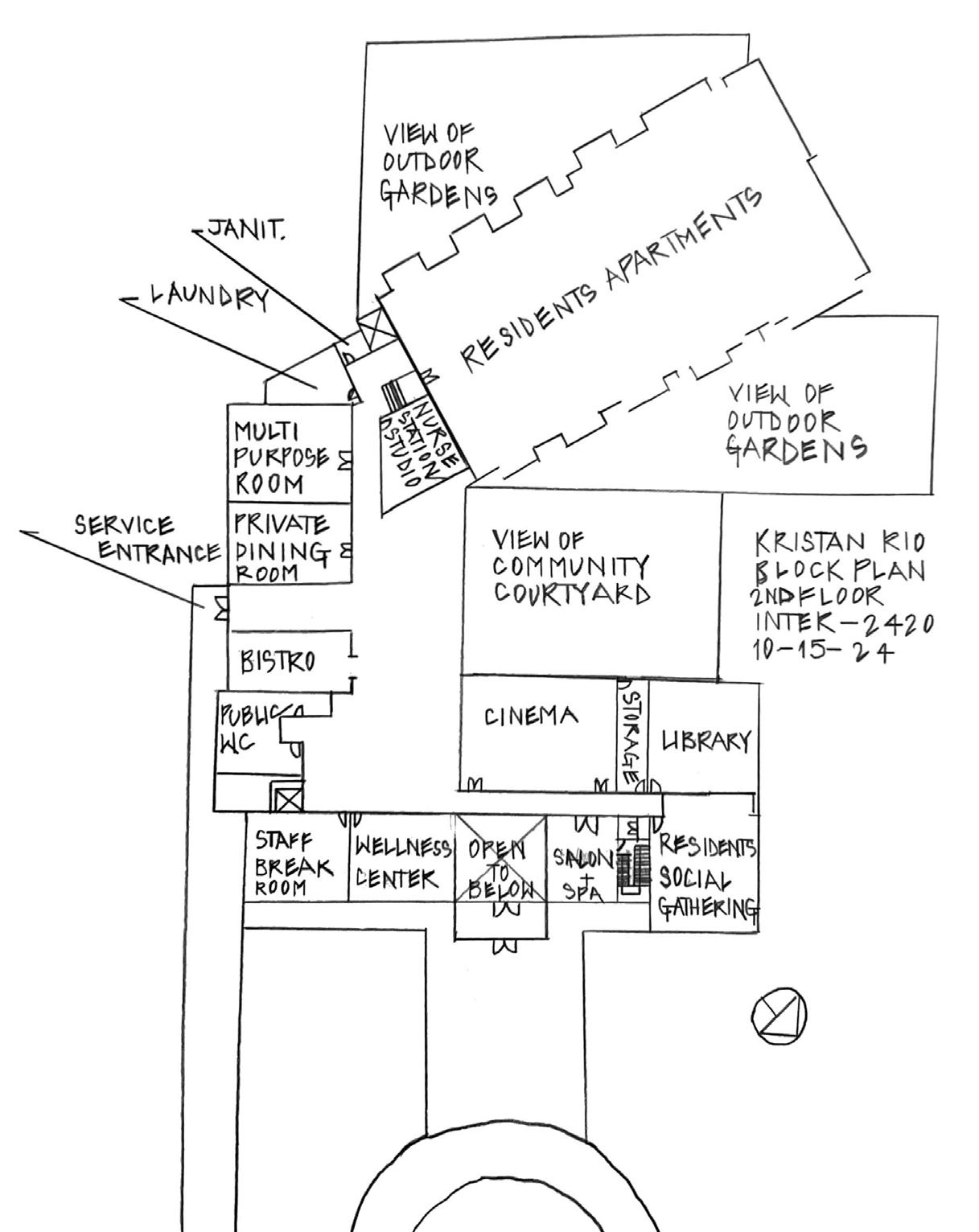
BLOCK PLANS

healthcare design

“A thing of beauty is a joy forever.”
-John Keats

Kristan Rio is a recent graduate of the College of DuPage, earning an AAS in Interior Design with a 4.0 GPA. She also holds a Bachelor of Arts in English from DePaul University and brings over 30 years of experience in marketing and corporate communications management to her interior design career.

A self-taught, highly motivated graphic designer, Kristan has applied her creative skills across diverse industries. For the past five years, she has worked as a Design Studio Specialist and Home Decorator for both a major e-commerce retailer and a local boutique, where she engaged directly with clients to deliver functional, stylish interior solutions.

Her extensive software proficiency includes Adobe Creative Suite [Acrobat, Dimensions, Dreamweaver, Illustrator, InDesign, PageMill, Photoshop, Premier, Type Manager Deluxe], Autodesk [AutoCAD and Fabrication CAMduct], Canva, Chief Architect, Configura CET Commercial Interiors, Trimble SketchUp with Chaos Enscape, among others.

hello@kristanriodesign.com

708.822.8019 issuu.com/kristanrio linkedin.com/in/kristan-pavloski-rio

Turn static files into dynamic content formats.

Create a flipbook
Issuu converts static files into: digital portfolios, online yearbooks, online catalogs, digital photo albums and more. Sign up and create your flipbook.
KristanMRio_Portfolio by kristanrio - Issuu