PORTFOLIO KONRADAS JURNA

![]()

Aukštasis išsilavinimas
vilniaus gedimino technikos universitetas
2021-dabar
vidurinis išsilavinimas
Vilniaus gabijos gimnazija
2017-2021
papildomas išsilavinimas
jaunųjų architektų ir dizainerių mokykla
2017-2021
vilniaus miesto sporto centras
2016-2021
architektūros praktika
mb inout.designstudio
2023/07-2023/09


+370 66351194

VILNIUS, LIETUVA photoshop illustrator indesign microsoft office sketchup lumion revit autocad arcgis
vilniaus justino vienožinskio dAILĖS MOKYKLA
2015-2019
lietuvių gimtoji kalba anglų laisvai rusų pagrindai






vilnius, mokslininkų g. 1a
idėjinė tūrių schema

aprašas daugiabučio tikslas – sukurti į aplinką reaguojantį tūrį bei detales, kurios atsižvelgtų į Daugiabutį iš rytinės pusės dengiantį spygliuočių mišką.
Reguliuojamos fasado detalės tarnauja kaip uždanga nuo saulės ir kartu sukuria dinamišką, besikeičiantį įvaizdį.
Galeriniai koridoriai ir įveiklintas pirmas daugiabučio
aukštas komercinėmis patalpomis padeda sukurti
aktyvesnę aplinką.
vakarinis fasadas

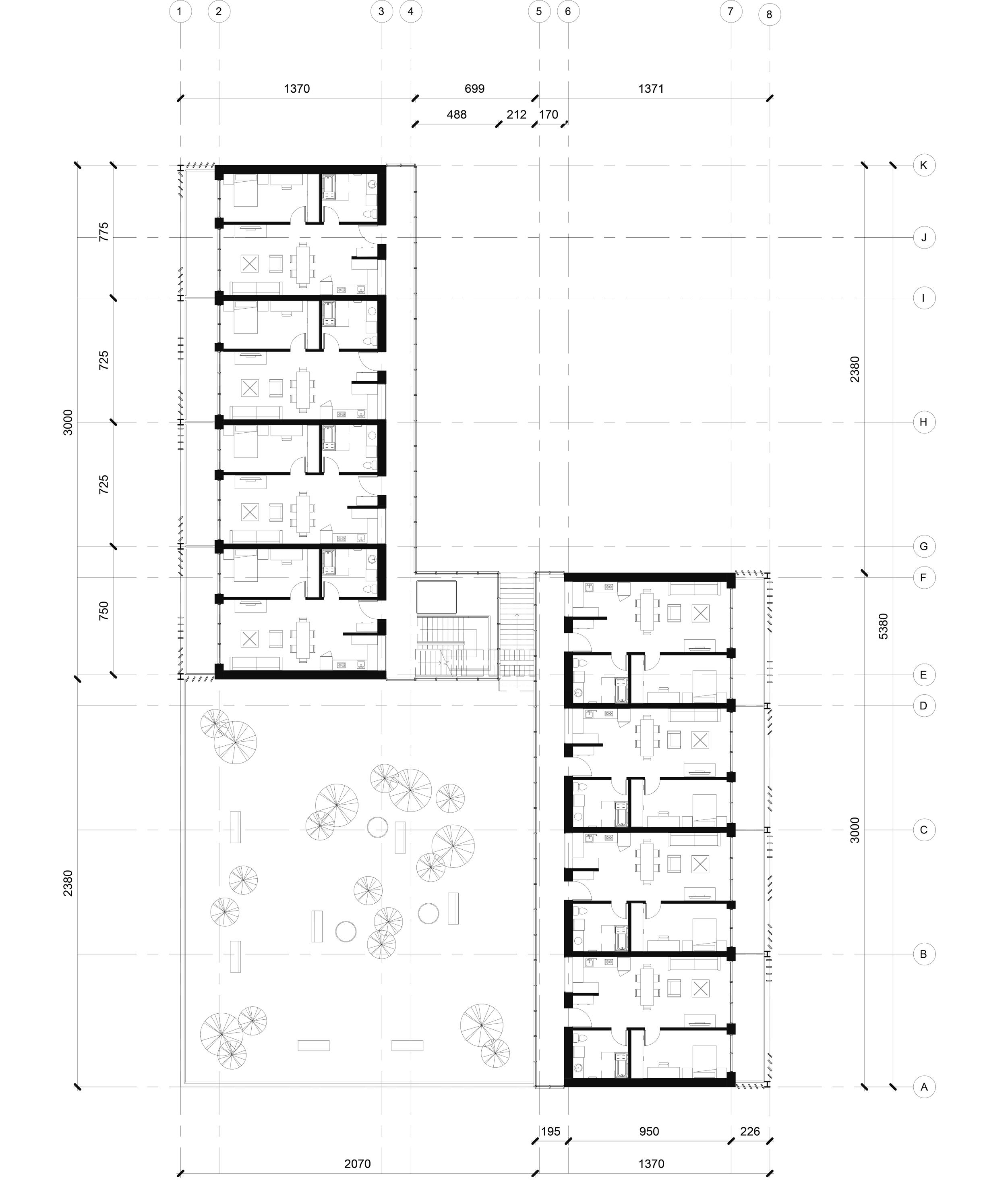
Pirmo aukšto planas

„IYTE“ universitetas turkija, izmiras

pirmo aukšto planas

aprašas
šiuo projektu siekiama sukurti harmoningą jungtį tarp interjero ir eksterjero, jog tiek vidiniai, tiek išoriniai tūriai bei erdvės turėtų bendrą kalbą ir būtų intuityvūs.

šiaurės rytų fasadas





kompozicinės priemonės




idėjine schema

aprašas
problema – Raseinių turgavietės teritorija, nors kerta reikšmingiausią įvažiavimą į miestą, nesuformuoja miesto įvaizdžio.
sprendimas – suformuoti tūrių kompozicija, kuri išspręstų šias problemas naudojant įvarius kompozicinius ir tūrinius įrankius.



išklotinė





