Konrad Boncza-Pioro Selected Projects 2

Page 1


Selected Projects

KONRAD BONCZA-PIORO MA CMLI

INTRODUCTION:

With nearly twelve years of experience dedicated to enhancing the relationship between the built environment and its natural, social, and economic contexts, I have gathered experience working on multi-disciplinary projects focusing on high quality delivery of design ideas in close collaboration with teams and clients.

My approach to design is based on understanding of the dynamic between the built environment and social, economic, cultural and environmental character of a place that responds to the needs of people from the whole spectrum of the community and the natural environment.

I promote conceptual design based on sound technical principles aiming at mitigating pollution, expanding green infrastructure, integrating urban drainage and high-quality and durable materials to create safe and sustainable places for everyone.

As landscape architects we are at the forefront of today’s world challenges, whether it is climate change, social change or economic change. We have unique set of skills to adapt urban and rural environments for human civilisation to continue. We are also deeply aware of damage human activity has inflicted on Earth as a whole affecting all species. Being a landscape architect is more than a job for me, it is a vocation and motivating questions throughout my career are: ‘How can I contribute to the environment by designing in a sustainable way?’ and ‘What can we collectively do to become resilient in face of changing climate?’

Thank you

MAURITIUS CENTRAL BANK - LANDSCAPE/URBAN DESIGN STRATEGY

CINER GLASS - LANDSCAPE MASTERPLAN - STAGE 4

WANDSWORTH RIVERSIDE QUARTER - BUILDING 6B - STAGES: 0-7

MARSH WALL - STAGES: 0-3

THORPEBURY - THE NORTH-EAST OF LEICESTER SUSTAINABLE URBAN EXTENSION - STAGES: 0-4

SOUTHALL MASTERPLAN - STAGES: 0-3

BSKYB CAMPUS DEVELOPMENT - STAGES: 0-3

DRUK WHITE LOTUS SCHOOL - CONSTRUCTION SUPERVISION, VOLUNTARY WORK

SILVERTOWN QUAYS - MINOCO WHARF VISION

TECHNICAL WORK EXAMPLES

MAURITIUS CENTRAL BANK - LANDSCAPE/URBAN DESIGN STRATEGY

LANDSCAPE/URBAN DESIGN STRATEGY

The MCB campus landscape is designed holistically to function as the setting onto which the buildings and activities are embedded. The landscape is multi-functional, and supports human comfort, wellbeing and recreation, as well as providing habitat areas and support ecosystem services such as promoting a sustainable water cycle, air purification, and human recreation. It is also a richly planted visual setting contributing greatly to the character and atmosphere of the Campus, providing different experiences for staff and visitors alike.

The landscape echoes the wider sustainability ethos and is a living breathing entity of environmental support. The landscape is designed with special attention to using a nature-based solution approach, favouring soft engineering over hard engineering solutions when practicably possible. The emphasis on using a palette of indigenous plant communities provides a strong botanical theme to the campus. The botanical theme is defined as using plants to give character and identity to the spaces.

networks that cover site will greatly contribute creating an important buildings, providing visually highways. These to ecosystem services sequestration, avoided pollution removal, visual there are variations based on aspect, soil adjacent activities and providing different landscape for staff and buffer forests could

Inspired by the wet forest orchids will provide a on arrival to the site.

Tree clusters associated with areas around the buildings create distinct mini forests to provide shade and cooling for staff and visitors. Integration with the proposed canopy and dinning terrace to complement the adjacent activities will help to create different atmospheres within the campus. Courtyard spaces associated with work functions may be designed with collaboration spaces. The

Drawing inspiration from local Mauritius landscapes, the central organising landscape feature is a riverine system with ribbon of ponds that traverses through the site. This meandering landscape runs north south through the centre of the site and provides an organising structure for the wider campus. Planting communities are defined in each of the key areas but are linked together by their focus on indigenous plants, with occasional non-native plants included for resilience against climate heating, and prolongation of the flowering season for nectar feeding animal species. A series of journeys draws people in and through the landscape spaces, with focus on the linking elements of these journeys, paying special attention to the curation of the transitions between each space.

benefits, there are multiple environmental and ecosystem services that these tree communities will support and strengthen. The following 4 types of tree communities are considered, some with their own subcategories to further differentiate and define quality of the grain in the Campus landscape.

Riverine Landscape

Inspired by the natural pools found in upland rivers a series of ponds, linked together in a ribbon traversing north south through the site, composed of water of varying depth, the Riverine Landscape cuts confidently across the site. Composed of a series of connected pools of water, with marginal planting flanking its border and boulders lining the sides of the connective linear feature. The ribbon of ponds will collect and store water harvested from the site. The Riverine Landscape connects to the central square with the Cascade whilst also connecting the Care & Wellness Area, and the Main Building.

such as carbon storage and sequestration, avoided storm water run-off, air pollution removal, visual amenity. Within the campus there are variations between the different areas, based on aspect, soil type, water table, levels, and adjacent activities and building functions, as well as providing different experiences of the campus landscape for staff and visitors. Some examples of buffer forests could include:

• Dry evergreen forest: Inspired by the wet forest floor fauna the valley of orchids will provide a visually impressive display on arrival to the site.

• Wet evergreen forest: Inspired by the mangrove forests the wet evergreen forest edge will act as a sponge helping to absorb excess water and help to control water as it flows through the central ribbon of the site.

Water Gardens

Inspired by downstream riverbeds the water gardens consist of a series of islands with water flowing during the wetter season. Calibration of water levels to be further developed in next stages. Some ponds may be permanent water features, whilst the surrounding linear Riverine Landscape could, during drier seasons be transformed into an experience where people could be invited to engage with the water garden and walk through the base of a gravel riverbed to experience the Riverine landscape from a sunken perspective.

Biodiverse Lawns

Lawns are useful spaces for gathering and dwelling in the landscape, to support activities such as socialising, picnicking, and having contact with the ground. However, the typical composition of lawns, with a mono species crop requires high volumes of water to keep it looking green during the dry season. To reap the benefits that lawns can bring, a biodiverse native mix is proposed. This will increase drought tolerance and include nectar

MY ROLE:

Inspired by the mangrove forest edge will act absorb excess water as it flows through the

- Senior Landscape Architect

- Assistance to the Landscape Director

- Team management and coordination

- Conceptual design

- Coordination with Urban Design Team

- Meetings

dining terrace will support spill out space from the internal dining hall for staff and visitors. Suitability to hard landscape environments will be an important consideration for tree species selections. These spaces include:

• Dining terrace

• Courtyard spaces

• Arrival cluster

• Landscape link spaces between buildings

of lawn, around to grow taller, whilst more areas will be mown more support human activities.

57.
58. Reference image for buffer forests
59. Reference image for
Reference image for biodiversity
flowering plants to increase the landscape type. A management certain areas
Mini Forests

CINER GLASS - LANDSCAPE MASTERPLAN - STAGE: 4

LANDSCAPE CONCEPT

The overarching concept is to create a multi-functional and robust landscape that respects and responds to both open moorland and industrial context of the site. A strong landscape framework will retain and enhance the existing natural features of value and integrate green and blue infrastructure into the new development. A distinct setting to the building will be created which sources from the existing diversity of habitats on site and integrates it into the natural setting. The landscape spaces will be optimised to serve ecological functionality, amenity for staff members and sustainable water management through the application of four principles underpinning the design:

Protect and Restore

Ecological functionality will be maximised through integrating a network of green / blue infrastructure throughout the site. This will prioritise the retention and enhancement of valued habitats with the primary aim of supporting the protected and notable species present on site and within adjacent habitats.

Transition and integrate

The landscape will transition in character as it extends away from the building towards the open slopes to the north and east and will help to integrate the site into its wider setting.

Promote well-being

The landscape design will balance the need to protect and nurture sensitive areas of habitats with providing spaces for staff members to access and enjoy the landscape. Amenity and opportunities for recreation will be provided in order to support the health, well-being and productivity of the factory staff.

Local and sustainable

A simple and robust palette of materials will be employed that is appropriate to the modern and contemporary industrial context as well as the functional requirements of the development. Where feasible, materials will be sourced locally ore recycled from materials present on site.

MY ROLE:

- Senior Landscape Architect

- Working alongside

Lead Senior Landscape Architect

- Technical design

- Production of Stage 4 package

- Specification

- Landscape Management Plan

- Coordination

- Meetings

- Upskilling junior member of staff

RIVERSIDE

LANDSCAPE MASTERPLAN STRATEGY

Wandsworth Riverside Quarter is a large multi-disciplinary residential - commercial project located in south London. It is in continuous development for over ten years. The proposals for Building 6B are designed to build upon the existing prestigious scheme. This is to be achieved through the creation of new spaces including Riverside Gardens, Woodland Gardens, a network of incidental play opportunities and a series of biodiverse roof gardens.

New pedestrian connections and a river walk for pedestrians and cyclists will provide wide, convenient public access between the 6B Building and River Wandle, neighbouring riverside development and Wandsworth Park.

An outdoor dining terrace will create an area to sit, eat and relax with views onto the River Thames. The terrace will provide a spill out space for the proposed ground floor uses of Building 6B. The Riverside Gardens will form attractive terraced herbaceous gardens. Their ecological role will be to provide biodiverse rich and structurally complex habitat.

MY ROLE:

- Senior Landscape Architect

- Conceptual design

- Technical design

- Consultant to the Client at pre-novation stage

- Consultant to the Contractor at post novation stage

- Production of planning, tender and construction documents

- 3D Modelling

- Coordination

- Meetings

- Site inspections and Reporting

SUMMARY

Building 6B landscape is the last phase of 10 year long development programme which has come to completion as of February 2020.

MY ROLE:

- Senior Landscape Architect

- Conceptual design

- Technical design

- Construction information production

- Consultant to the contractor within the design and build contract post-novation

- Construction supervision

- Coordination

- Meetings

- Nursery stock and trees selection

- Site inspections and reporting

LANDSCAPE MASTERPLAN STRATEGY

Site History and Design Inspiration

The Landscape design proposals take inspiration from the railway sidings that previously occupied this site. The sidings serviced the grain depots to the south before their removal in the 1970’s. The linear elements in the design are a reflection on the formal layout of the sidings. The proposals allow for the creation of a space when 54 Marsh Wall comes forward for development. The space builds on the principles established for 54, creating a piazza that serves both buildings and creates a new pedestrian link between Marsh Wall and Byng Street.

The proposals are built on 3 core principles:

Green Infrastructure

The proposals create new green spaces, particularly between the building and Mastmaker Road, allowing residents of the area to enjoy being outside. The increased green space and planting will help to mitigate both pollution and the heat island effect. Rain garden and permeable paving to the south supports sustainable urban drainage. Green roofs for biodiversity at roof levels.

Connectivity

The proposals create new links between Marsh Wall and Byng Street, as well as a short cut between Marsh Wall and Mastmaker Road. The new links improve connections in this part of Millharbour, integrating the building into the surrounding public realm network and connecting to the wider context of the Isle of Dogs and integrating with the local network of streets and open spaces.

Home and Place Making

Provision of new urban landscape for people to live, work and prosper through inspiring high quality spaces at ground and roof terrace level and a creation of spirit of a place where people from the spectrum of the community feel safe and at home.

LEGEND

Public open space/community piazza

Marsh Wall pause point

Pocket park

Rain garden and permeable paving

Roof terrace

Green roofs

MY ROLE:

- Senior Landscape Architect

- Assistance to the Practice Director

- Planning documentation production

- Design Team Meetings

- Consultant to the client

- Conceptual design development

- Supervision of junior members of staff

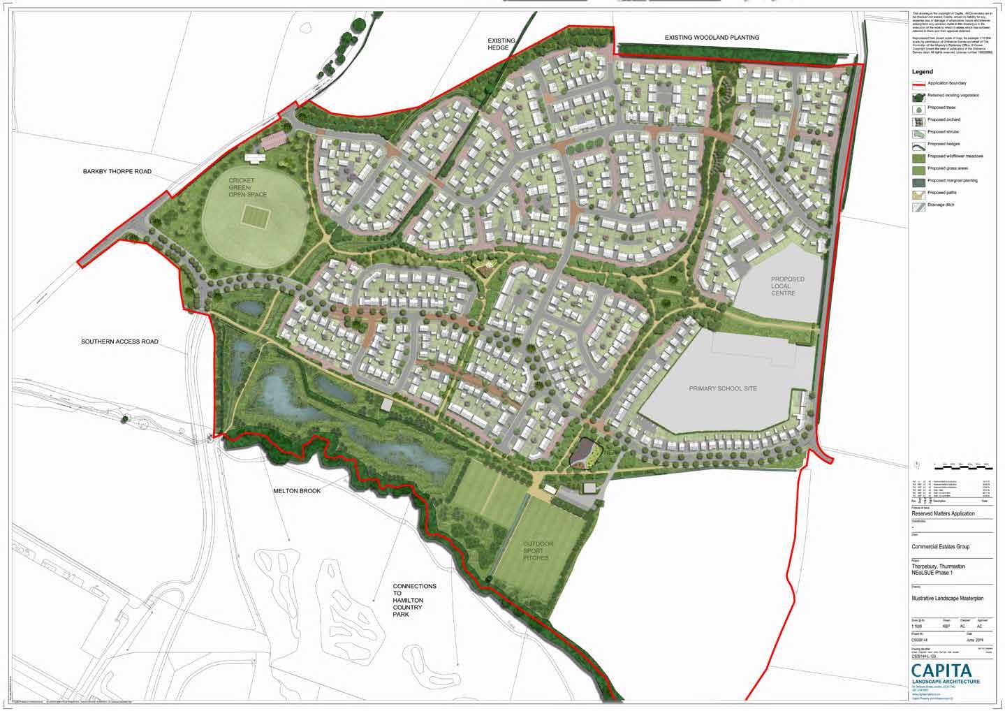
LANDSCAPE MASTERPLAN STRATEGY

The North East of Leicester Sustainable Urban Extension (NeoLSUE) is a major opportunity to develop a high quality and sustainable extension to Leicester. It will assist in realising regeneration opportunities for Thurmaston and create a new development for the community.

Design process specifically focuses on the green infrastructure including:

• Green Corridor/Linear Park

• Open Park/Forest Garden

• Cricket Green

• Melton Brook Wetland

• Outdoor Sports Pitches

• Residential Landscape

The landscape scheme also sets out a strategy and palette of boundary treatments, street tree planting, entrance gateways, street furniture, lighting, signage and play areas.

MY ROLE:

The delivery envisage to create a locally distinctive, sustainable and thriving new community, well integrated and connected to the surroundings.

- Senior Landscape Architect

- Assistance to the Land Planning Director

- Reserved Matters Application and Tender documentation production

- Design Team Meetings

- Client facing

- Conceptual design development

- Supervision of junior members of staff

SOUTHALL MASTERPLAN - STAGES:

LANDSCAPE MASTERPLAN STRATEGY

Southall is located in west London, part of the Borough of Ealing. It is identified as one of London’s Opportunity Areas by GLA in the London Plan.

The Landscape Masterplan has been developed on the basis of the following guiding themes:

Connectivity - Opening up and re-connection of the site by joining up fragmented routes and improving forgotten corners to provide a comprehensive network of friendly links for the existing and proposed community.

Multifunctional Public Realm – Provision of flexible spaces that are capable of responding to all users at different times of the day. Provision of amenity for residents, visitors and workers.

Play Strategy – Creating opportunities for formal and incidental play within landscape to encourage physical engagement with the external environment for all ages, including those with disabilities.

Green Infrastructure - Opportunities for greening are maximised throughout with a layering of soft landscape elements which will mitigate the effects of climate change and create a welcoming place to live.

Environment – Extensive and intensive roofs, rich herbaceous planting and large number of trees contributing to and enhancing the biodiversity of the site. Trees will create a sense of uniformity at human scale.

All themes together create truly biophilic residential-commercial quarter in the heart of a busy neighbourhood.

- Conceptual Design - Planning documentation production

MY ROLE:

LANDSCAPE MASTERPLAN STRATEGY

The overarching Landscape Concept has been to create a unique ‘place’ for BSkyB Campus located in Osterley Park, west London. A world class site that blends the high-tech communication led workplace with a parkland environment that engages and facilitates interaction, that grows over time to reflect BSkyB’s vision and connections at a global and local level.

Landscape is a form of narrative, not just the linear ‘approach/entrance/arrival’ sequence, but also as a setting, providing character and atmosphere for those who inhabit and visit this ‘place’. The Public Realm Strategy is integral to the concept and provides a wide range of diverse uses, set within an attractive setting. The uses are based on Stakeholder Consultations and the planning evolution of the proposed development. The Landscape Concept provides a robust Green Infrastructure Strategy, which is Landscape Character driven and responds positively to matters of sustainability, climate change and biodiversity. The Landscape Concept will transform the site into a robust urban landscape with architecture placed within a Green Infrastructure and new biodiverse habitat.

MY ROLE:

- Planning and technical documentation production/Product research

- 3D modelling

- Planning policy research

DRUK

Click to watch a short documentary:

https://www.youtube.com/watch?v=ObkCbMViszI

PROJECT DESCRIPTION

The Druk White Lotus School is located in Shey, Ladakh, in northern India. It is an initiative of the Drukpa Trust UK, a charity under the patronage of the XVII Gyalwang Drukpa, a spiritual leader of Ladakh. School maintains rich cultural traditions, based on Tibetan Buddhism, whilst equipping children for a life in the 21st century. In 2012, landscape architects from the School of Architecture, Design and Construction at the University of Greenwich began work on a landscape masterplan and gardens.

As an Alumni of Greenwich University Landscape Architecture department I took part in design team meetings and project planning. I acted as an intermediary between construction manager on site and lead architect in London while helping to deliver first phase of hard landscape construction.

MY ROLE:

- Working for The Drukpa Trust UK as a direct client

- ‘Crazy’ paving design concept from local slate

- Team meetings

- Stone material selection

- Site inspections and report writing

- Natural disaster site analysis and reporting

- Children’s playground concept design

TECHNICAL WORK EXAMPLES

TECHNICAL WORK EXAMPLES

TECHNICAL WORK EXAMPLES - HS2 MANUAL DESGIN TEMPLATES / GUIDANCE / CHECKLISTS

TECHNICAL WORK EXAMPLES - HS2 MANUAL DESGIN TEMPLATES

/ GUIDANCE / CHECKLISTS

Groundwork: Ponds / Construction Site Examples
Groundwork: Ponds / Construction Site Examples

Selected Projects

KONRAD BONCZA-PIORO MA CMLI

Turn static files into dynamic content formats.

Create a flipbook
Issuu converts static files into: digital portfolios, online yearbooks, online catalogs, digital photo albums and more. Sign up and create your flipbook.