Wolfpack Brochure - LCC 1525 West Walnut Hill flyer - 1525 W Walnut Hill Ln

Page 1

1525 WEST WALNUT HILL

PROPERTY FEATURES

Las Colinas Commons is a two-building, 224,771 SF development located at 1525 - 1555 Walnut Hill Lane in the Las Colinas Office Center. Extensive renovations in 2007 included new building entries, exterior facades, new high efficiency HVAC systems, upgraded mechanical, security and life safety systems, new lobbies, common areas, restrooms, elevator cabs and the addition of monument signage. The property is located adjacent to DFW International Airport and provides numerous amenities to tenants, abundant parking, and is in close proximity to many restaurants and hotels.

• Spec Suites available for immediate occupancy

• New Fitness Center, Training and Conference Rooms Available

• Covered drive facing Walnut Hill

• Monument Signage Available

• 5/1,000 parking

• The property currently has fiber provided by AT&T, Frontier and Spectrum

• Local Management with On-Site Engineering

• Year Built/Renovated: 1979/2001/2007

• Total RBA: 62,866 SF

• Floor Plate: approximately 22,000 SF

• Availability – 2,800 up to 62,866 RSF

GEOFF SHELTON 817.710.1113

gshelton@hlfortworth.com

MARSHALL MAYS 817.632.6150 mmays@hlfortworth.com

AMENITIES PLAN

gshelton@hlfortworth.com

GEOFF SHELTON 817.710.1113
MARSHALL MAYS 817.632.6150
RISER ROOM JAN 01 ENTRY 02 TRAINING 03 COFFEE/ LOUNGE 04 ENTRY 07 HALL 08 GYM 09 HALL 10 CONFERENCE 12 HALL ELEV ELEV EQUIP ELEC DN 11 STORAGE 13 CORR. BENCH BENCH
mmays@hlfortworth.com
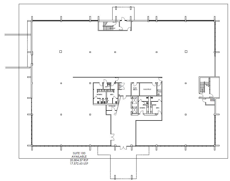
1525 W Walnut Hill –First Floor FLOOR PLANS GEOFF SHELTON 817.710.1113 gshelton@hlfortworth.com MARSHALL MAYS 817.632.6150 mmays@hlfortworth.com SUITE 100 - 20,805 RSF *DIVISIBLE TO 2,500 RSF

FLOOR PLANS

SECOND FLOOR SPEC PLAN

GEOFF SHELTON 817.710.1113

gshelton@hlfortworth.com

MARSHALL MAYS 817.632.6150 mmays@hlfortworth.com

314B OFFICE 304E OFFICE 301A RECEPTION 302A STOR. 303A CONFERENCE 304A CONFERENCE 305A IT/STOR 306A COPY 307A OFFICE 308A OFFICE 309A OFFICE 311A OFFICE 312A OPEN OFFICE 313A OFFICE 314A BREAK 315A OPEN OFFICE 301B RECEPTION 302B STOR. 303B COLLAB 304B CONFERENCE 307B OFFICE 308B OFFICE 309B OFFICE 311B OFFICE 312B OPEN OFFICE 313B COPY 301E RECEPTION 306B BREAK 305B IT/STOR 302E CONFERENCE 303E OFFICE 305E OFFICE 306E BREAK 308E IT/STOR 309E COPY 301F RECEPTION 302F CONFERENCE 303F IT/STOR 305F BREAK 306F OFFICE 307F OFFICE 308F OFFICE 310F COPY 6x8 6x8 6x8 6x8 6x8 10'-4" x 8'-8"± 8'-0" x 8'-8"± 17'-2" x 14'-10"± 14'-9" x 19'± 15'-10" x 10'-9"± 16'-7" x 11'± 14'-9" x 19'± 15'-10" x 10'-9"± 9'-4" x 8'± 9' x 10'-9"± 18'-7" x 7'-5"± 15'-10" x 12'-2"± 18' x 13'± 15'-10" x 14'-9"± 15'-10" x 11'-8"± 15'-10" x 10'-7"± 15'-10" x 15'-5"± 20'-7" x 13'± 15'-4" x 12'-0"± 14'-10" x 9'-6"± 15'-0" x 9'-6"± 15'-0" x 9'-6"± 310B OFFICE 12'-1" x 10'-9"± 11'-8" x 10'-9"± 11'-8" x 10'-9"± 11'-8" x 10'-9"± 310A OFFICE 11'-8" x 10'-9"± 11'-8" x 10'-9"± 11'-8" x 10'-9"± 12' x 10'-9"± 310D COLLAB 301D RECEPTION 302D CONFERENCE 303D IT/STOR 304D OPEN OFFICE 315B OPEN OFFICE 6x8 6x8 11' x 5'-5"± 16'-6" x 10'-9"± 21'-10" x 12'-6"± UP UP ELEV ELEV WOMEN MEN SECURITY/ENG WOMEN MEN JAN DN DN OFFICE ELEC SUITE E 2,391 USF 2,831 RSF SUITE F 2,788 USF 3,301 RSF SUITE A 3,682 USF 4,359 RSF SUITE D 5,346 USF 6,328 RSF SUITE B 4,054 USF 4,799 RSF 307E OPEN OFFICE 309F OPEN OFFICE 6x8 6x8 6x8 6x8 311D COPY/BREAK 21'-10" x 15'-7"± 305D OPEN OFFICE 306D OFFICE 12' x 10'-9"± 307D OFFICE 12' x 10'-9"± 308D OFFICE 12' x 10'-9"± 309D OFFICE 12' x 10'-9"± 6x8 6x8 304F OPEN OFFICE
Ready
Move-In
GEOFF SHELTON 817.710.1113
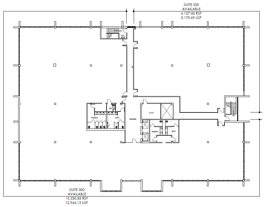
MARSHALL MAYS 817.632.6150 mmays@hlfortworth.com 1525 W Walnut Hill –Third Floor SUITE 300 - 15,351 RSF SUITE 320 - 6,128 RSF *DIVISIBLE TO 2,500 RSF
FLOOR PLANS
gshelton@hlfortworth.com

Inchin’s Bamboo Garden

Chennai Cafe

Southern Spice

Dimassi’s Mediterranean Buffet

Wingstop

Wow Hair Studio

Gentle Dentistry of Las Colinas

In-Out-Burger

Yummilicious Frozen Yogurt

Andalous Mediterranean Grill

Lenny’s Sub Shop

AMENITIES MAP

Bread Zeppelin

Salad Elevated

Five Guys Burgers & Fries

Pie Five Pizza Company

La Madeleine Country French Cafe

Sushi Tokyo

Sprint Store

Pollo Tropical

Zoes Kitchen

Primrose School of Las Colinas

Blu Ginger Thai Cafe

SPIN! Neopolitan Pizza

The Bistro

Veranda Greek Cafe

Jack in the Box

Wendy’s

Beirut Rock Cafe

Sonic Drive-In

Champps Kitchen and Bar

Benihana

Rodizio Grill

Vitality Bowls

Red Hot & Blue

Taco Diner

Terra Mediterranean Grill

Smashburger

SunstoneFIT

The Blue Fish

The Keg Steakhouse &Bar

The Ranch at Las Colinas

TPC Four Seasons

Cottonwood Valley Golf Course

N O R T H B E L T L N E R O A D N O R T H B E L T L N E R O A D N O R T H B E L T L N E R O A D N O R HT MA C A R T H RU B O ULEVARD THRON ACAM R T H U R B O U L E V A R D N O R H T M A C A R T H U R B O U L E V A R D RIVERSIDE D R I EV R I V E R S I DEDRIVE EDISREVIR EVIRD EDISREVIR EVIRD WEST ROYAL LANE WEST ROYAL LANE WEST ROYAL LANE WEST ROYAL LANE UT HILL LANE WEST WALNUTHILL LANE WESTWALNUTHILL L A N E NLAWTSEW U T H I LL LANE WEST WALNUT HILLLANE WESTNORTHWESTHIGHWAY WESTNORTHWESTHIGHWAY R T V ST WAL
GEOFF SHELTON 817.710.1113
MARSHALL MAYS 817.632.6150 mmays@hlfortworth.com
gshelton@hlfortworth.com
LOCATION MAP GEOFF SHELTON 817.710.1113 gshelton@hlfortworth.com MARSHALL MAYS 817.632.6150 mmays@hlfortworth.com DFW AIRPORT SOUTH ENTRY -12MINUTES DFWAIRPORT , NORTHENTRY-11MINUTES LOVEFIELDAIRPORT-20MINUTES

Information About Brokerage Services

Texas law requires all real estate license holders to give the following informa on about brokerage services to prospec ve buyers, tenants, sellers and landlords.

TYPES OF REAL ESTATE LICENSE HOLDERS:

A BROKER is responsible for all brokerage ac� vi� es, including acts performed by sales agents sponsored by the broker. A SALES AGENT must be sponsored by a broker and works with clients on behalf of the broker.

A BROKER’S MINIMUM DUTIES REQUIRED BY LAW (A client is the person or party that the broker represents): Put the interests of the client above all others, including the broker’s own interests; Inform the client of any material informa�on about the property or transac�on received by the broker; Answer the client’s ques�ons and present any offer to or counter-offer from the client; and Treat all par�es to a real estate transac�on honestly and fairly.

A LICENSE HOLDER CAN REPRESENT A PARTY IN A REAL ESTATE TRANSACTION:

AS AGENT FOR OWNER (SELLER/LANDLORD): The broker becomes the property owner's agent through an agreement with the owner, usually in a wri�en lis�ng to sell or property management agreement. An owner's agent must perform the broker’s minimum du�es above and must inform the owner of any material informa�on about the prop erty or transac�on known by the agent, including informa�on disclosed to the agent or subagent by the buyer or buyer’s agent.

AS AGENT FOR BUYER/TENANT: The broker becomes the buyer/tenant's agent by agreeing to represent the buyer, usually through a wri�en representa�on agreement. A buyer's agent must perform the broker’s minimum du�es above and must inform the buyer of any material informa�on about the property or transac�on known by the agent, including informa �on disclosed to the agent by the seller or seller’s agent.

AS AGENT FOR BOTH - INTERMEDIARY: To act as an intermediary between the par� es the broker must  rst obtain the wri � en agreement of each party to the transac�on. The wri�en agreement must state who will pay the broker and, in conspicuous bold or underlined print, set forth the broker's obliga�ons as an intermediary. A broker who acts as an intermediary: Must treat all par�es to the transac�on impar�ally and fairly; May, with the par�es' wri�en consent, appoint a different license holder associated with the broker to each party (owner and buyer) to communicate with, provide opinions and advice to, and carry out the instruc �ons of each party to the transac�on. Must not, unless specically authorized in wri�ng to do so by the party, disclose:

ᴑ that the owner will accept a price less than the wri�en asking price;

ᴑ that the buyer/tenant will pay a price greater than the price submi�ed in a wri�en offer; and

ᴑ any conden�al informa�on or any other informa�on that a party specically instructs the broker in wri�ng not to disclose, unless required to do so by law.

AS SUBAGENT: A license holder acts as a subagent when aiding a buyer in a transac� on without an agreement to represent the buyer. A subagent can assist the buyer but does not represent the buyer and mu st place the interests of the owner rst.

TO AVOID DISPUTES, ALL AGREEMENTS BETWEEN YOU AND A BROKER SHOULD BE IN WRITING AND CLEARLY ESTABLISH: The broker’s du�es and responsibili�es to you, and your obliga�ons under the representa�on agreement. Who will pay the broker for services provided to you, when pa yment will be made and how the payment will be calculated.

LICENSE HOLDER CONTACT INFORMATION: This no � ce is being provided for informa � on purposes. It does not create an obliga � on for you to use the broker’s services. Please acknowledge receipt of this no�ce below and retain a copy for your records.

11-2-2015
Designated Broker of Firm License No. Licensed Supervisor of Sales Agent/ Associate License No. Email Phone Licensed Broker /Broker Firm Name or Primary Assumed Business Name License No. Email Phone Regulated by the Texas Real Estate Commission Informa on available at www.trec.texas.gov IABS 1-0 Date Buyer/Tenant/Seller/Landlord Initials Sales Agent/Associate’s Name License No. Email Phone HoltLunsfordCommercial,Inc. 439776hlunsford@hldallas.com 972-241-8300 RichardHoltLunsford359505hlunsford@hldallas.com 972-241-8300 Email Phone

Turn static files into dynamic content formats.

Create a flipbook
Issuu converts static files into: digital portfolios, online yearbooks, online catalogs, digital photo albums and more. Sign up and create your flipbook.