Wolfpack Brochure - Horizon Way Business Park--4000 Horizon Way Brochure

Page 1

Up to 200,000 SF with FF&E And 7/1,000 parking available

Building Lobby and Amenity Renovations Coming Late 2020

Remarkably EfficienT And Ready To Go.

HIGHLIGHTS

■ 295,000 SF, Two-Story Building

■ 7/1,000 parking

■ Efficient, 100k SF rectangular pods

■ Excellent Signage Opportunity

■ Full Service Cafeteria

■ Fitness Center

■ Conference Center

■ Tenant Lounge

■ Outdoor Seating Area

■ Raised flooring throughout provides underfloor HVAC distribution and easy access to electrical, data and phone lines

■ 10’ Ceilings

■ Back Up Generator

■ Multiple Points of Power Entry

FORT WORTH

190 TE X A S 75 67 635 635 35E 35E 35E 35E 12 12 12 114 121 121 121 114 30 30 190 T E X A S 161 161 360 183 183 183 360 360 175 ACCESS DALLAS DFW INT’L AIRPORT LOVE FIELD INGRESS EGRESS FRISCO
HOTELS RETAIL RESTAURANTS
17 16 31
AMENITIES
DFW Airport 7 minutes to DFW Airport 635 635 10114 10114 W ROYAL LN N BELT LINE RD FREEPORTPKWY W ROYAL LN
CREEK WROYALLN
WAY
LOCATION
Creek Country Club
HACKBERRY
HORIZON
CONVENIENT
Hackberry

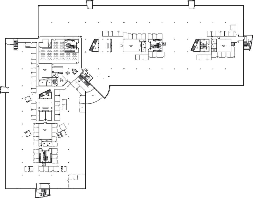
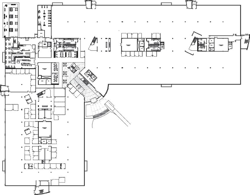
FLOOR PLANS

OUTDOOR COURTYARD

FITNESS CENTER LOCKER ROOMS

SUITE 100 APPROX 90,000 SF

FIRST FLOOR

SUITE 150 LEASED

CONFERENCE CENTER

SUITE 200

APPROX 100,000 SF

SUITE 250 LEASED

SECOND FLOOR

CAFETERIA

IRVING,TX

© 2020 CBRE, Inc. All rights reserved. This information has been obtained from sources believed reliable, but has not been verified for accuracy or completeness. You should conduct a careful, independent investigation of the property and verify all information. Any reliance on this information is solely at your own risk. CBRE and the CBRE logo are service marks of CBRE, Inc. All other marks displayed on this document are the property of their respective owners. Photos herein are the property of their respective owners. Use of these images without the express written consent of the owner is prohibited.

BARNES
6308 dennis.barnes@cbre.com FLETCHER CORDELL
979 6102 fletcher.cordell@cbre.com ALEXANDRA CULLINS 214 979 6389 alexandra.cullins@cbre.com
FOR ADDITIONAL INFORMATION, PLEASE CONTACT DENNIS
214 979
214

Turn static files into dynamic content formats.

Create a flipbook
Issuu converts static files into: digital portfolios, online yearbooks, online catalogs, digital photo albums and more. Sign up and create your flipbook.
Wolfpack Brochure - Horizon Way Business Park--4000 Horizon Way Brochure by Colliers - Issuu