Wolfpack Brochure - 1125 E. Campbell Brochure_v9 - 1125 E Campbell Rd

Page 1

A PROPERTY OF
LEASED & MANAGED BY

ADDRESS 1125 East Campbell Road Richardson, Texas 75081

SUBMARKET Richardson / Plano

YEAR BUILT 1996

YEAR RENOVATED 2011-2012; 2020

RENTABLE SQUARE FEET 199,259 SF

# OF FLOORS 4 floors

FLOORPLATE SIZE 54,000 SF Divisible to 27,000 SF (10,000 SF 1st Floor)

SITE ACRE 11.4 acres

PARKING RATIO Up to 6 per 1,000 SF

SUPERIOR ACCESSIBILITY

Adjacent to Central Expressway, four-minute drive to President George Bush Turnpike, seven-minute drive to LBJ Freeway, and a two-minute drive to Galatyn Park DART Station.

25 MIN TO DFW AIRPORT 25 MIN TO LOVE FIELD AIRPORT 20 MIN TO DALLAS CBD 20 MIN

CARROLLTON

RICHARDSON

75 75 75 75 75 380 380 380 380 380 380 380 635 635 635 635 35W 35W 35W 35W 35W 35W 35W 35E 35E 35E 35E 35E 35E 35E 12 12 12 114 121 121 121 121 114 30 30 30 30 30 30 30 30 190 TEXAS 190 TEXAS 190 TEXAS 161 161 360 183 183 183 360 175 BUILDING HIGHLIGHTS 01
TO MCKINNEY
DALLAS CBD
PLANO
DFW AIRPORT LOVE FIELD
AREA SNAPSHOT 02 ABUNDANT FOOD & BEVERAGE, HOSPITALITY & RECREATION AMENITIES 23 RESTAURANTS 70 RETAIL OPTIONS 14 HOTELS Conveniently located near CityLine with plenty of restaurants that will keep your tenants full and happy. See below for a few of the options. WITHIN 1 MILE N.GREENVILLEAVE CAMPBELL RD Over 7.5 Million SF of Industrial Space ENROLLMENT OF 26,700 TM SPRING CREEK NATURE AREA CHARLES W. EISEMANN CENTER FOR PERFORMING ARTS N COLLIN CREEK MALL PLANO INDUSTRIAL PARK TELECOM CORRIDOR More Than 82,000 Jobs Over 25 Million SF 600+ High-Tech Telecom Firms 50 HQ’s or Regional Hubs Over 1.3 Million People Within a 10-Mile Radius 209% Above National Average for Computer & Mathematical Talent #1 Ranked Location for High Tech Employment #1 In DFW Over 336,480 White Collar Workers Within 15 Minutes 600,000 Professionals Surrounded by a Deep Talent Pool 6 Area Post Graduate Schools Producing Over 2,100 Graduates Per Year ALLEN MCKINNEY PLANO GLENVILLEDR

03

ON-SITE AMENITIES

ON-SITE CAFÉ

CONFERENCE CENTER

TENANT LOUNGE

CAPITAL AMENITIES 04

Employees are at their best when they can enjoy a change of scenery, an energizing refreshment or a place to reconnect with their team. The Outpost has everything they need, including state-of-the-art fitness facilities, indoor lounges, fresh, local food and beverages, and landscaped outdoor spaces.

TENANT LOUNGE CAFÉ OUTDOOR AREA FITNESS CENTER MANAGEMENT OFFICE TRAINING CENTER
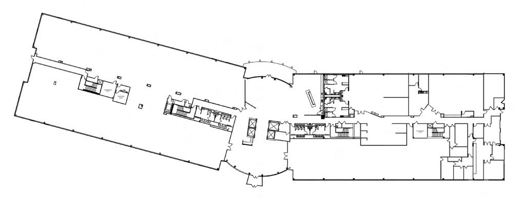
CLINT MADISON JOHN FANCHER 9690 SECOND FLOOR 53,803 RSF FLOORPLATES FIRST FLOOR 05 SUITE 250 25,856 SF (23,386 SF Remaining) SUITE 300 55,026 SF SUITE 450 | 15,807 SF N Fitness Center Conference Center Mgmt Mech Suite 100 24,318 RSF Lounge Cafe TYPICAL FLOOR Patio Lobby

HYPOTHETICAL

30,291 RSF

HYPOTHETICAL

23,386 RSF

CLINT MADISON +1 972 663 9828 clint.madison@cushwake.com JOHN FANCHER +1 972 663 9690 john.fancher@cushwake.com ZACH BEAN +1 972 663 9886 zach.bean@cushwake.com ©2021 Cushman & Wakefield. All rights reserved. The information contained in this communication is strictly confidential. This information has been obtained from sources believed to be reliable but has not been verified. NO WARRANTY OR REPRESENTATION, EXPRESS OR IMPLIED, IS MADE AS TO THE CONDITION OF THE PROPERTY (OR PROPERTIES) REFERENCED HEREIN OR AS TO THE ACCURACY OR COMPLETENESS OF THE INFORMATION CONTAINED HEREIN, AND SAME IS SUBMITTED SUBJECT TO ERRORS, OMISSIONS, CHANGE OF PRICE, RENTAL OR OTHER CONDITIONS, WITHDRAWAL WITHOUT NOTICE, AND TO ANY SPECIAL LISTING CONDITIONS IMPOSED BY THE PROPERTY OWNER(S). ANY PROJECTIONS, OPINIONS OR ESTIMATES ARE SUBJECT TO UNCERTAINTY AND DO NOT SIGNIFY CURRENT OR FUTURE PROPERTY PERFORMANCE. A PROPERTY OF LEASED & MANAGED BY

Turn static files into dynamic content formats.

Create a flipbook
Issuu converts static files into: digital portfolios, online yearbooks, online catalogs, digital photo albums and more. Sign up and create your flipbook.
Wolfpack Brochure - 1125 E. Campbell Brochure_v9 - 1125 E Campbell Rd by Colliers - Issuu