CHUANG
Professional work


(+886) 902 375 227
tsngkhailin@gmail.com
Education
2014 - 2019
建築學士
逢甲大學, 建築系
201802 - 201807
建築系交換
同濟大學, 建築系
Practical Experience
202305 - 202410
NTD Engineering Consultant LLC, 台北
/Rebar Shop
•Residential Project in Long Island City, NY
•Mixed-use Project in Queens, NY
/SOE Design
•Residential Project in Brooklyn, NY
•Excavation and shoring, MTA review and Safety maintenance plan
/ MEP Design
•Mixed-use Project in Brooklyn, NY
•Residential Project in Brooklyn, NY
•Mechanical, Electrical, Plumbing, Sprinkler, Lighting and RPZ
202105 - 202305
許黃勝兆建築師事務所, 台北
/建築
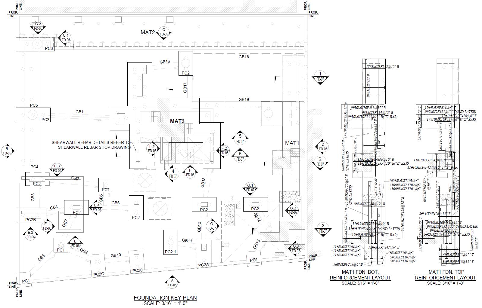
•臺南文化中心 停E5 立體停車場新建工程 202105202305
•執行契約變更設計施工圖、預算書圖
•執行建照變更設計
•結構、機電、景觀顧問技師與營造施工釋疑介面整合 •協助監造檢討BIM會議
•新北市林口麗林段集合住宅 202205202305
•執行可行性、法規與坪效評估
•建築平立面設計發展
•建築、景觀3D模型整合渲染
•建築、室內與景觀設計界面整合及 Revit 模板建置
•新北市板橋江子翠段集合住宅 202202202304
•執行可行性、法規與坪效評估 •前期規劃建築平面設計
•新北市泰山區義學市民活動中心重建工程 202202202304
•施工釋疑整合及圖說、3D模型調整
•執行建照變更設計
•台北市松山教會方案競圖 202208202209
•執行可行性、法規與坪效評估
•前期規劃平面、立面建築設計
•桃園八德轉運站新建工程 202108202203
•競圖設計方案發展
•建築平立面設計
•細部設計施工圖、3D設計
•桃園市長照大樓室內裝修方案設計 202304
•建置、檢討前期規劃3D
•長照單元平立面設計
•桃園市刑事鑑識中心新廳舍裝修工程 202202202304
•建置、檢討前期規劃 室內含管線3D
•細部設計影片渲染剪輯
•MEP模型建置、碰撞檢討
•新北市政府警察局勤務中心 前期規劃 202204202208
•建置、檢討前期規劃 室內3D
•新北市政府備援災害應變中心前期規劃 202202
•建置、檢討細設階段 室內含管線3D
•新北市消防局火災鑑識中心裝修工程 202106
201709 - 201801
半畝塘聯合建築師事務所, 台中 實習生 /室內
201607 - 201608
•建置、檢討細設階段 室內含管線3D
吳嘉栩建築師事務所, 台中 實習生
Other
201910 - 201912 好金門在地誌/天下微笑台灣 自由撰稿, 金門 2017 - 2019 逢甲大學建築系 評圖/活動攝影組
2018 Mixed Reality Robotic Fabrication Interface Workshop, 台中
2018 TTT Tectonic Workshop, 杜林
2017 Algorithmic Design and Bim Workshop, 台中
2017 Big-Data Informed Urban Design Workshop, 台北
2016 SCUT Urban design Workshop, 廣州
Proficiency
Rhinoceros
Grasshopper
Autocad
Revit
Enscape
Vray Rendering
Projects related to MEP and RPZ
Projects related to structural design and rebar shop drawings
臺南文化中心 展演暨立體停車場新建工程
新北市林口麗林段集合住宅
桃園市實驗室裝修工程
桃園轉運站新建工程
自定義參數工具 (grasshopper)
建築攝影
Projects related to MEP and RPZ




Projects related to structural design and rebar shop


















Automated Tool for Rebar Shop Drawings









K A I N I N G
CHUANG
academic work




Pentagonal Pavilion (freelance writer)
Ramp House -集合住宅 / 場所營造 -
逢甲建築系. 2017
指導老師:
台中七期重劃區為台中市20年來的主要發展區,市 政府、歌劇院、百貨公司與近五十棟的辦公、住宅大 廈集陸續落成於北七期在100公頃的土地上。
基地位於教師新村的邊界,與七期僅隔一條台灣大 道,以透天、小巷為主的社區生活與動輒10000米平 方的大型街區形成鮮明對比;而對比不僅止於都市紋 理或建築秩序,更存在於生活型態、商業形式、交通 選擇 ……。
此刻集合住宅彷彿是一個集體的決定,決定我們要如 何組織我們的生活。


教師新村落成於民國58年,為公家興建的示範教師宿舍,多為兩層 透天。如今多為一般住戶,近幾年老屋新用興起,進駐許多咖啡廳、 獨立書店、藝術與表演空間;而在台灣大道對面緊鄰的是一百三十公 尺的住宅大樓,其旁有三座百貨公司、三座電影院。









新舊街區的交界
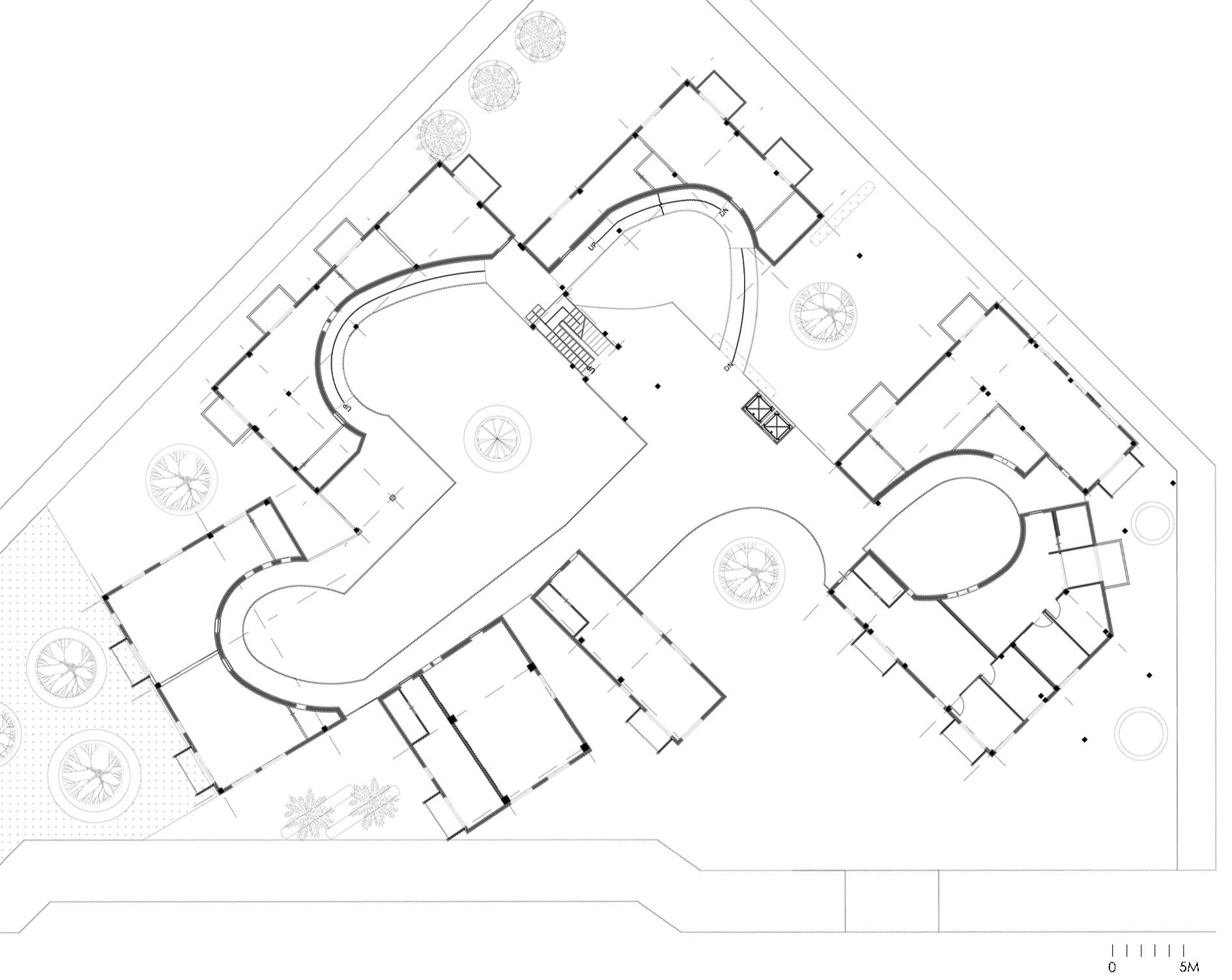
面對兩種截然不同的街道秩序,透過四點主要策略尋找建築型態: (1)將內部 動線形塑為環狀的公共空間,中央天井使每一戶單元皆有直接與公領域互動、 接觸之可能。 (2)綠化天井緊鄰個別單元。 (3)系列的坡道動線塑造連續的空間 體驗,感受完整的,由道路、小巷至住宅單元的空間變化。 (4)延續巷道生活 之空間連續性。

上層住宅單元

底層服務單元




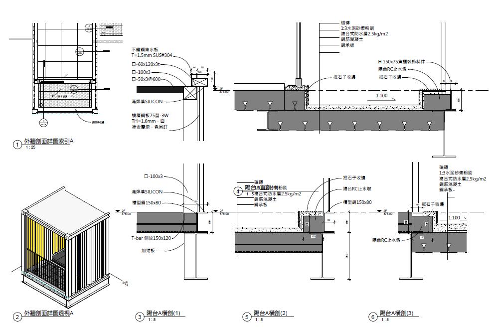
北面串聯巷弄縫隙、商業空間,開放的沿街空間不僅友善街區,對住戶而言也創造自然的生 活、交際場域;沿著曲牆返家,延續的動線使的住家單元與街道的連接不是單純的分界,途 中也值得探索。
西南面緊鄰台灣大道面則有管理室、回收間與地下室車道,視野上開放讓自 然光進入,動線上以服務空間管理、阻隔。



帷幕大樓立面設計
-立面造型 / 張拉結構設計 / 辦公室空間 -
逢甲建築系. 2018 指導老師:
項目專注於在傳統印象的玻璃帷幕辦公大樓的外層覆 蓋菱形遮陽織物,保留玻璃帷幕大樓所擁有的空間通 透感與自然採光,同時設法阻隔太陽輻射造成的內部 溫度上升。
外牆皮層利用鋼纜結構支撐,插入白色蓬狀結構作為 遮陽板,太陽光透過白色織物反射與折射將光線路徑 進行優化,在阻隔與穿透中取得平衡。且透過控制每 個單元由下方錨點固定、未完全受制的兩個張力邊, 可以在一定幅度上控制光線穿透率。



單元構成




張拉蓬結構共分為三種型式,標準單元為邊塊單元,由左右兩 方支撐桿件(B),與前後方菱形單元各取三個端點為錨點進行 張拉;其二為角塊單元,由邊末的兩個邊上支撐(B)輔以角上 支撐的一個錨點構成;最後為邊角塊單元,由45°的角上支撐 (A)與邊上支撐(B)為兩邊加上下方一錨點張拉而成。
邊塊單元 角塊單元/45 °
邊角塊單元
角上支撐/45 °
邊上支撐




基本配置
地面層北側為銀行大廳及銀行辦公區,南側為接待櫃 檯及供員工使用之商店;銀行顧客、洽公客戶由西側 進入,近接待區、大廳與會議空間,員工動線由東側 進入,藉以達到人員分流。
辦公室角隅透視
辦公室透視
裙樓大廳透視


辦公區
商店
展示區
機房
監控室
自行車架

Pentagonal Pavilion -參數化
/ 拓樸結構 / 算法生型 -
逢甲建築系. 2020
指導教授: Eddie Kao
多數設計流程在進行分析之前都依賴於預定義的形 式,而此項目以三維圖解靜力學(3DGS)在給定受力 幾何形式下,尋找結構拓樸、荷載路徑以及材料效率 之間的關係。
設計共分為四個階段: (1)由正二十面體的分割得到帶有五邊形比例屬性的 多種閉合多面體,(2)而後將其比例關係化為基於壓 力線網的拓樸結構,(3)最終由基於python的擬合 TNA法尋找出一個滿意的平衡力系(以Grasshopper _3D GRAPHIC STATICS插件完成)(4)依據受力情形決 定桿件及節點之形式與尺寸。
在拓樸過程中尋找各種可能形式的結構性能評估,生 成符合需求的形式、荷載、最局大局部應力。
力流與其對應形
在三維圖解靜力學中,外力平衡或節點上的力平衡由封閉多面體表示,力的方向垂直於多面 體的面,而相鄰的兩個邊的長度相等,方向相反,因此已支其中一個面的法線方向則其餘面 也可確定下來,通常情況單個多面體的法線是統一的,如全部指向或遠離多面體中心。




四面體與其力圖 四面體分割 二十面體與其力圖 二十面體分割

透過三維圖形靜力學設計受力圖的幾何形狀,可以直接控制內力的大小;又利用各種分割規 則尋找各種拓樸軸向受力結構,在此項目中,最終選擇對正二十面體進行三次平行於其面的 內部分割作為原始資料,帶入3D Graphic Statics插件 求解平衡方程。上圖顯示其結果,並 將桿件受力數值對應不同顏色呈現。 ▲
右圖呈現以四面體、十二面體、二十面體進行分割的拓樸選型。


























金屬接頭

2米 入口 1.8米 人體模型
細分情形可以用於處理長構件的彎曲問題;但也會增加施工成本及材料用量,根據互動式的 平衡方程,讓設計者可以在給定邊界條件下選擇合理的荷載路徑值、局部彎矩荷載變化、建 築材料與其體積。值得一提的是,上圖呈現的模型省略原始力圖中的五個受壓構件,在形式 幾何上減少的元素,而後必須在支撐處施加額外預應力保持平衡。

好金門在地誌. 微笑台灣. 建築景點撰文
-遊記 / 攝影 / 粉專 -
好金門在地誌. 微笑台灣. 2019
2019年末在畢業後等兵單期間,於金門歐厝好金 門在地誌進行旅遊撰稿、攝影、粉專經營,文章 刊登於好金門在地誌,與天下雜誌旗下微笑台灣 網站與社群媒體;而後恰巧遇上國內離島旅遊盛 行。
“有人說過,人在渴望遺世而獨立之時,便會想 像一座島嶼;對我而言,那座島嶼就是浯島 ── 金門。”


