Portfolio test 2

Page 1

Portfolio

LE Khoi ENSA Nantes 2023

Préface

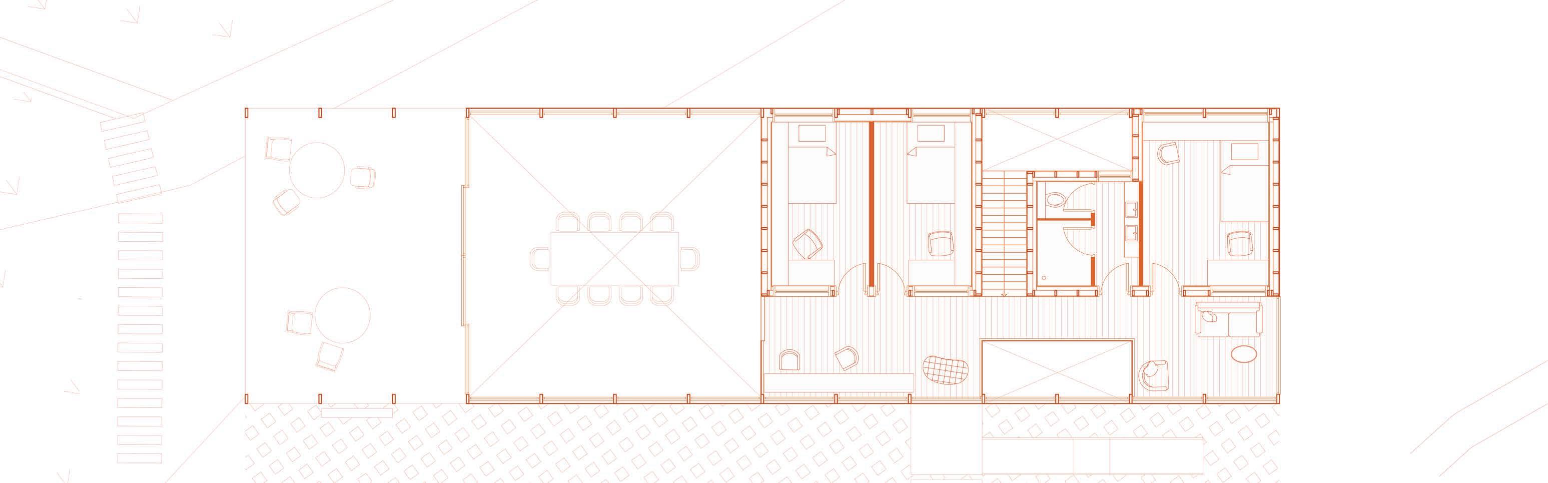
Beaucagnano 01

Requalification du chemin de faire commun, en donnant un point d’attraction en bordure de route, redonner la priorité aux places de piéton, possibilité de découvrir le paysage du territoire, les produits locaux. Possibilité de découvrir l’histoire de l’agriculture de Sorbo Ocagnano; introduisant parallèlement un modèle durable d’agriculture sur le piémont (la permaculture), gestion de source d’eau. Le projet comprend également un atelier d’artiste et des résidences d’artistes et d’agriculteurs.

Elévation >
< Plan masse Plan RDC < < Plan R+1
< Vue salle polyvalente < Détails techniques
< Maquette 1/500e

La butte de Bodon 02

Requalification du chemin de faire commun, en donnant un point d’attraction en bordure de route, redonner la priorité aux places de piéton, possibilité de découvrir le paysage du territoire, les produits locaux. Possibilité de découvrir l’histoire de l’agriculture de Sorbo Ocagnano; introduisant parallèlement un modèle durable d’agriculture sur le piémont (la permaculture), gestion de source d’eau. Le projet comprend également un atelier d’artiste et des résidences d’artistes et d’agriculteurs.

Schémas programmatiques >
Plan de situation existant >
< Maquette 1/200e < Plan masse

Pringles fauteuil 03

Requalification du chemin de faire commun, en donnant un point d’attraction en bordure de route, redonner la priorité aux places de piéton, possibilité de découvrir le paysage du territoire, les produits locaux. Possibilité de découvrir l’histoire de l’agriculture de Sorbo Ocagnano; introduisant parallèlement un modèle durable d’agriculture sur le piémont (la permaculture), gestion de source d’eau. Le projet comprend également un atelier d’artiste et des résidences d’artistes et d’agriculteurs.

< Form finding < Tests d’idées
< Axonométries
>
Photo dosier

Les reflets de la Vilaine 04

Requalification du chemin de faire commun, en donnant un point d’attraction en bordure de route, redonner la priorité aux places de piéton, possibilité de découvrir le paysage du territoire, les produits locaux. Possibilité de découvrir l’histoire de l’agriculture de Sorbo Ocagnano; introduisant parallèlement un modèle durable d’agriculture sur le piémont (la permaculture), gestion de source d’eau. Le projet comprend également un atelier d’artiste et des résidences d’artistes et d’agriculteurs.

< Maquette 1/200e
< Plan masse Passerelle < < Coupes transversales passerelle

Croquis 05

Requalification du chemin de faire commun, en donnant un point d’attraction en bordure de route, redonner la priorité aux places de piéton, possibilité de découvrir le paysage du territoire, les produits locaux. Possibilité de découvrir l’histoire de l’agriculture de Sorbo Ocagnano; introduisant parallèlement un modèle durable d’agriculture sur le piémont (la permaculture), gestion de source d’eau. Le projet comprend également un atelier d’artiste et des résidences d’artistes et d’agriculteurs.

Diverses 05

Requalification du chemin de faire commun, en donnant un point d’attraction en bordure de route, redonner la priorité aux places de piéton, possibilité de découvrir le paysage du territoire, les produits locaux. Possibilité de découvrir l’histoire de l’agriculture de Sorbo Ocagnano; introduisant parallèlement un modèle durable d’agriculture sur le piémont (la permaculture), gestion de source d’eau. Le projet comprend également un atelier d’artiste et des résidences d’artistes et d’agriculteurs.

Turn static files into dynamic content formats.

Create a flipbook
Issuu converts static files into: digital portfolios, online yearbooks, online catalogs, digital photo albums and more. Sign up and create your flipbook.