

Kristen Madalena Elsie Lawless
P O R T F O L I O 2 0 2 5
Landscape Architecture
There is a sense of wonder and beauty that comes with exploring nature and being surrounded by its elements. This curiosity and innate connection is in us all.
Through thoughtful design our connections to this world can shine. This holds great signi cance to me and is valued in my approach to the design process. This portfolio shows a range of work from professional to academic. Through these pages, I aim to convey not only design, but also the curiosity and creativity that drive my practice as a future landscape architect.
Education
Bachelors of Landscape Architecture / 2016 - 2020 University of Rhode Island
Professional Skills
AutoCAD
SketchUp
Enscape
Adobe Photoshop
Adobe Illustrator
Adobe InDesign
Focuses
Horticulture
Sustainability
Ecology
Personal Skills
Creativity
Collaboration
Adaptability
Languages
English
Portuguese
Project 01 Seaside Retreat
Project 02 Tropical Elevations
Project 03 Native Planting
Project 05 Border Planting
Project 07 Downtown Planting
Project 08 Oyster Aquaculture
Project 09 Living Shoreline
Project 10 Shopping Area Revitalization
Project 11 Rain Garden Study










Phase 1: Comprehensive site analysis of existing conditions.
Phase 2: All native planting to support local wildlife and showcase the capabilities of the beauty and ecology in native plantings.

Phase 2: Native Planting

























Rhododendron atlanticum (Coastal Azalea)
Amelanchier canadensis (Serviceberry)PL
Aesculus parvi ora (Bottlebrush Buckeye)
Juniperus virginiana 'Brodie' (Eastern Red Cedar)
Clethra alnifolia (Sweet Pepper Bush)
Ilex verticillata 'Sprite' (Winterberry Holly)
Lindera benzoin (Spicebush) Myrica pensylvanica
Prunus maritima (Beach Plum)
Rhododendron periclymenoides (Pink Azalea)
BARN
Sambucus nigra ssp. canadensis (Black Elderberry)
Viburnum acerifolium (Maple-leaved Viburnum)
Arctostaphylos uva-ursi 'Massachusetts' (Bearberry)
Chelone lyonii (Turtle head)
Dennstaedtia punctilobula
Asarum canadense (Canada Ginger)
Tiarella cordifolia (Foam Flower)
Spicebush Swallowtail
Coral Hairstreak
Gossamer-winged Butter y
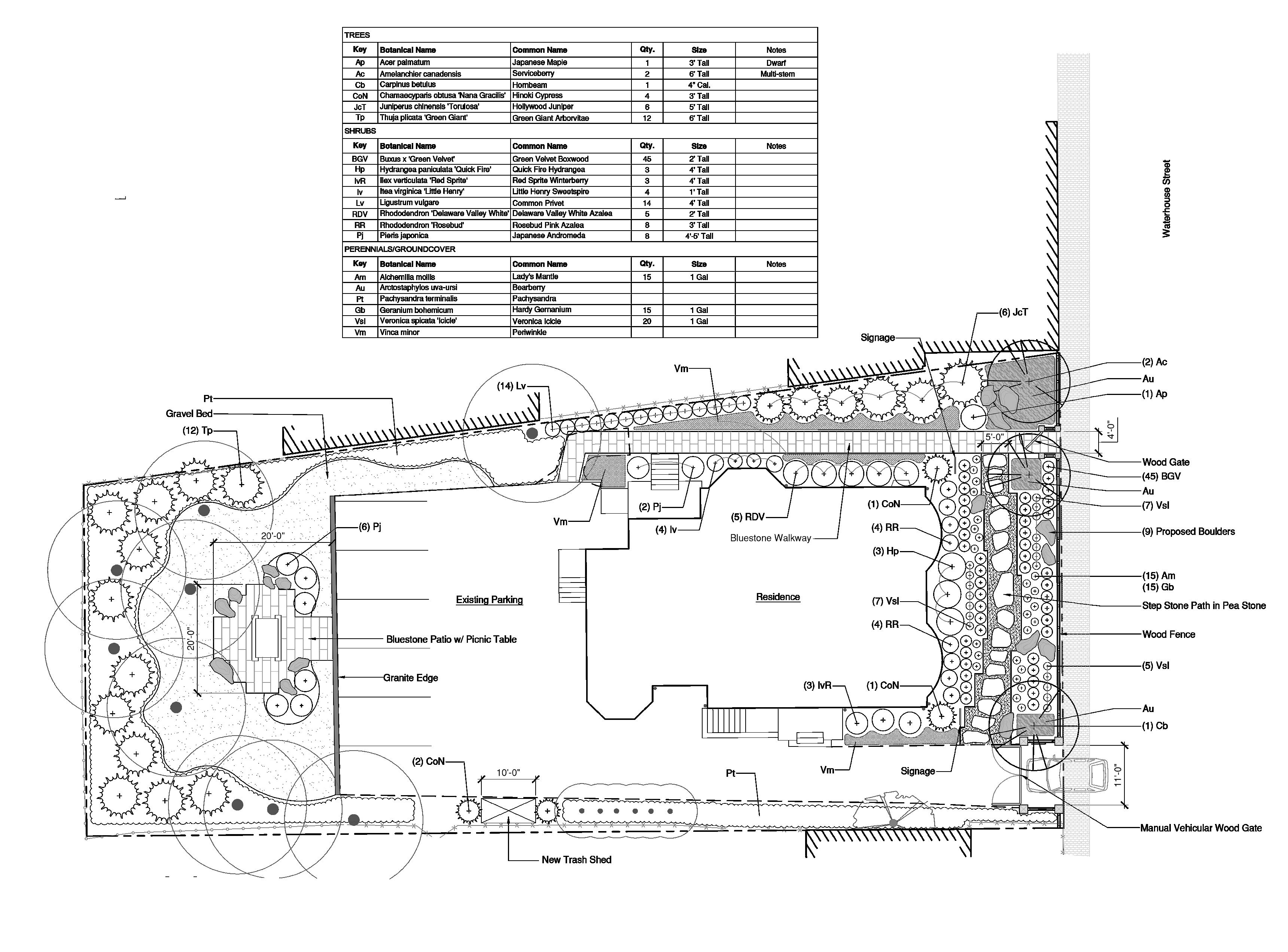
Trees and Shrubs
Perennials

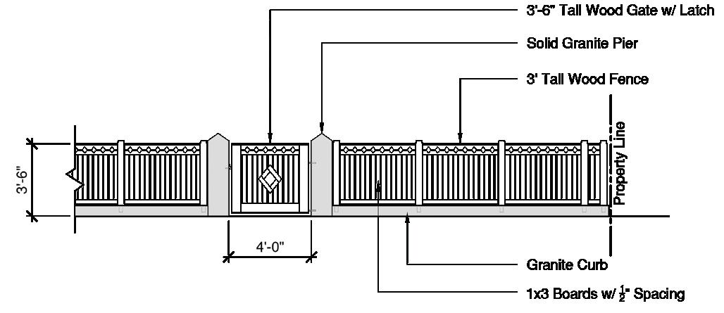
PATIO
RESIDENCE
WALKWAY DRIVEWAY









PLANT PALETTE








Autumn Joy Sedum
Little Henry Itea
Cool It Reblooming Daylily
Karl Foerster Feather Reed Grass
Puppy Love Fountain Grass
Blue Fescue
Forever Purple Heuchara
Nikko Blue Hydrangea
Fine Wine Wiegela
Blue Point Juniper
White Chi on Rose of Sharon
Catmint




VEHICULAR GATE

GATE

PEDESTRIAN



Community
OYSTER AQUACULTURE STUDY




Aquaculture

CreateshabitatSequesters carbon, Filters excess algae Fast reproduction



BRICKS
Seapowet Road












Watch Hill Cove
Reconnect
Create Resiliency






VACANT LOT SOLUTION

RAIN GARDEN STUDY
















Blue Flag Iris Pussy willow Red-twig Dogwood
Black Eyed Susan Cardinal Flower Red Milkweed
Common Bluestar
Oval Sedge New England Aster SIDE WALK OR PARING LOT


Thank you.



