

PORTFOLIO KLAUDIA MOZGA
1
2 3 4 5 6 7
RESIDENTIAL INTERIORS
MEDICAL FACILITIES
BACHELOR THESIS
MASTER THESIS - MAR’S HABITAT
PUBLIC SPACE - CLUB 77
THE GATE
INFOGRAPHIC
RESIDENTIAL INTERIORS
FUNCTIONAL PLANS - MIŃSK MAZ.















DENTAL CLINIC TECHNOLOGY LAYOUT



ZAKRES - PARTER
PRZEKRÓJ A-A
parapet kamienny do renowacji
projektowana tabliczka wg zestawienia informacji wizualnej
ZAKRES - PARTER PRZEKRÓJ K-K
obudowa grzejnika - ozdobna krata stalowa do renowacji wg opisu i rysunku detalu
LEGENDA
przeszklenie/ szyba
istniejąca rura do zabudowy/ pomalowania
elementy do wyburzenia /demontażu
tapeta zmywalna z nadrukiem
109 numer pomieszczenia
UWAGA:
1 Rury widoczne malowane na biało

kamienna okładzina ścian do renowacji wg karty materiałowej
skrzynka instalacji teletechnicznych 16x29cm,mocowana na wys do osi 156 cm sztukateria
projektowana tabliczka wg zestawienia informacji wizualnej lampy oświetleniowe ekspozycyjne do demontażu
kamienny cokół do renowacji wg karty materiałowej 10 cm
SUFITY PODWIESZANE
sufit podwieszany na wysokości 2,56 m
gniazdo elektryczne wg zestawienia osprzętu
przełącznik światła wg zestawienia osprzętu
istniejąca okładzina kamienna do renowacji wg karty materiałowej
2 Tapeta zmywalna biała RAL9003 wg według karty materiałowej
powiększenie drzwiowego kosztem nowe drzwi o wymiarach 9
renowacja sufitu z zachowaniem elementów sztukatorskich
tapeta zmywalna z nadrukiem

3 Renowacja sufitu z zachowaniem elementów sztukatorskich Instalacje nasufitowe/naścienne wykonać podtynkowo lub ukryć pod tapetą Można wykonać dojście pionowe do urządzeń w płytkiej bruździe ściennej - dotyczy ścian o grubości min 25 cm, niebruzdowanych z drugiej strony, maksymalna głębokość bruzdy pionowej 2 cm, szerokość 10 cm
kierunek układania płytek
4 Nie bruzdować stropów - w miejscach, gdzie nie przewidziano sufitów podwieszonych, instalacje podstropowe ukryć w tynku lub zakryć tapetą
5 Ławki, obudowy grzejników oraz balustrada ochronna okna wg rysunku detali
6 Nowe drzwi, okna według zestawienia stolarki drzwiowej i okiennej
7 Wszystkie gniazdka i przełączniki do wymiany wg zestawienia osprzętu i przesunięcia na wysokość 140 cm od posadzki (oprócz drzwi do toalety dla osób z niepełnosprawnością ruchową 110 cm).
przeszklenie/ szyba
istniejąca rura do zabudowy/ pomalowania
elementy do wyburzenia /demontażu
listwa LED w listwie zamykającej pas płytek wg rys detalu
gniazdo elektryczne wg zestawienia osprzętu przełącznik światła wg zestawienia osprzętu
projektowany cokół wys 10 cm, wg karty materiałowej
kontrola dostępu+domofon PWP apteki, H= 105cm

projektowana okładzina z płytek ceramicznych 60x120 cm, płytki wg karty materiałowej 4 TE
SUFITY PODWIESZANE
sufit podwieszany g-k w części środkowej z modułów demontowalnych 60x180, po bokach pełny;
blisko siebie w nowych skrzynkach, do pozostaweinia
instalacje - wkuć w ścianę, a jeśli to niemożliwe - obudować po konsultacji z projektantem
wymiana witryny kancelarii na nowąposzerzenie drzwi w skrajnym lewym polu do szerokości 90 cm w świetle przejścia (ok 100 cm w murze); parapety: kamienne do renowacji nad drzwiami sygnalizacja zajętości do wymiany na nową
tapeta zmywalna biała RAL 9003
kancelaria 14
instalacje - wkuć w ścianę, a jeśli to niemożliwe - obudować po konsultacji z projektantem sztukateria
archiwum przyjmowanie korespondencji
kamienny cokół do renowacji wg karty materiałowej, 10 cm
kamienna okładzina ścian do renowacji wg karty materiałowej
tapeta zmywalna biała RAL 9003
wc P P P
ubytki cokołu przy drzwiach do uzupełnienia
Przedmiot projektu:
czachor studio ARCHITECTURE & MEDICINE Marta Czachorowska ul Wólczańska 62/17 90-516 Łódź I te 69 88 46 2 49 I www czachorstudio com I czachorstudio@gmail com
stropem zabudowa do wymiany na nową
Przebudowa przestrzeni komunikacji ogólnej w Budynku Głównym Uniwersyteckiego Centrum Pediatrii Centralnego Szpitala Klinicznego Uniwersytetu Medycznego w Łodzi zlokalizowanego przy ul Pankiewicza 16 w Łodzi
Obiekt/Adres inwestycj :
Budynek Główny Uniwersyteckiego Centrum Pediatrii Centralnego Szpitala Klinicznego Uniwersytetu Medycznego w Łodzi 91-738 Łódź ul Pankiewicza 16 (ul Sporna 36/50)
tapeta zmywalna z nadrukiem tapeta zmywalna z nadrukiem

lokalizacja kładów ścian
1 681
Inwestor: Stadiu
Treść

Projektan :
listwa LED w listwie zamykającej pas płytek wg rys detalu nowych pozostaweinia projektowana tabliczka wg zestawienia informacji wizualnej
Samodzielny Publiczny Zakład Opieki Zdrowotnej Centralny Szpital Kliniczny Uniwersytetu Medycznego w Łodzi Łódź ul Pomorska 251
PROJEKT WYKONAWCZY ARANŻACJI WNĘTRZ
KŁADY ŚCIAN - PARTER - PRZEKRÓJ AA
mgr inż arch Marta Czachorowska upr nr 30/LOOKK/2011
mgr Joanna Wróblewska mgr Klaudia Mozga
skrzynka przy drzwiach, do pozostawienia lub demontażu - uzgodnić z inwestorem
11 2021
czachor studio ARCHITECTURE & MEDICINE Marta Czachorowska, ul Wólczańska 62/17 90-516 Łódź I tel 69 88 46 2 49 I www czachorstudio com I czachorstudio@gmail com
Przedmiot projektu:
Przebudowa przestrzeni komunikacji ogólnej w Budynku Głównym Uniwersyteckiego Centrum Pediatrii Centralnego Szpitala Klinicznego Uniwersytetu Medycznego w Łodzi zlokalizowanego przy ul Pankiewicza 16 w Łodzi
Obiekt/Adres inwestycji: Inwestor Budynek Główny Uniwersyteckiego Centrum Pediatrii Centralnego Szpitala Klinicznego Uniwersytetu Medycznego w Łodzi, 91-738 Łódź, ul Pankiewicza 16 (ul Sporna 36/50)
Samodzielny Publiczny Zakład Opieki Zdrowotnej










BACHELOR THESIS „VRÓĆ”
AREA DESIGNED FOR VIRTUAL REALITY ENTERTAINMENT. SPACE ABOVE 800M2 COMES WITH FULL GASTRONOMIC SERVICE AND GIVES THE OPPORTUNITY TO ORGANIZE CONFERENCES AND TOURNAMENTS. PROJECT FOCUSED ON CONVENIENCE, SAFETY AND FOR THE LARGEST NUMBERS OF CUSTOMERS.

TITLE: VRUĆ - PROJECT OF A VR SALON
TEACHER: DR INŻ. ARCH. RAFAŁ SZRAJBER
BACHELOR THESIS
LOCALIZATION: ARTINKUBATOR, ŁÓDŹ

ART_INKUBATOR IN FABRYKA SZTUKI IS SITUATED IN BUILDINGS CHARACTERISTIC FOR LODZ. THEY WERE MADE FROM RED BRICK AND USED TO BE A FACTORY OR AN ADJOINING WAREHOUSE.


1. BAR AND GASTRONOMIC SPACE
2. VR ZONE
3. CLOAKROOM
4. BATHROOMS
5. KITCHEN FACILITIES
6. COMMUNICATION
7. CONFERENCE/PRIVATE ROOM
8. ROOM FOR A STAFF

BUILDING SECTION



MARS’ HABITAT
TITLE: ONE IN A MILION. STRUCTURE AND INTERIOR OF MARS’ HABITAT
TEACHER: DR INŻ. ARCH. RAFAŁ SZRAJBER MASTER THESIS
LOCALIZATION: MARS
THE AIM OF THE PROJECT IS TO DEVELOP THE CONCEPT OF A HABITAT AS THE FIRST BASE ON MARS FOR A LONG-TERM STAY OF HUMANS WITH THE POSSIBILITY OF EXPANDING THE HABITAT AND CREATING A MARTIAN COMMUNITY. THE DESIGN CONCEPT INCLUDES ARCHITECTURAL SOLUTIONS THAT TAKE INTO ACCOUNT WEATHER AND CLIMATIC CONDITIONS. THE INTERIOR OF THE HABITAT SHOULD PROVIDE MENTAL AND PHYSICAL COMFORT FOR THE COLONISTS AND BE BASED ON LOCAL RESOURCES. THE INTERIORS REFER TO THE SCIENCE FICTION STYLE, AT THE SAME TIME THEY ARE SPACIOUS, FUNCTIONAL AND EASY TO CLEAN. THE PROJECT IS BASED ON A VISIONARY INSIGHT AT THE UPCOMING DESIGN POSSIBILITIES WITH THE USE OF EXTRATERRESTRIAL RAW MATERIALS.










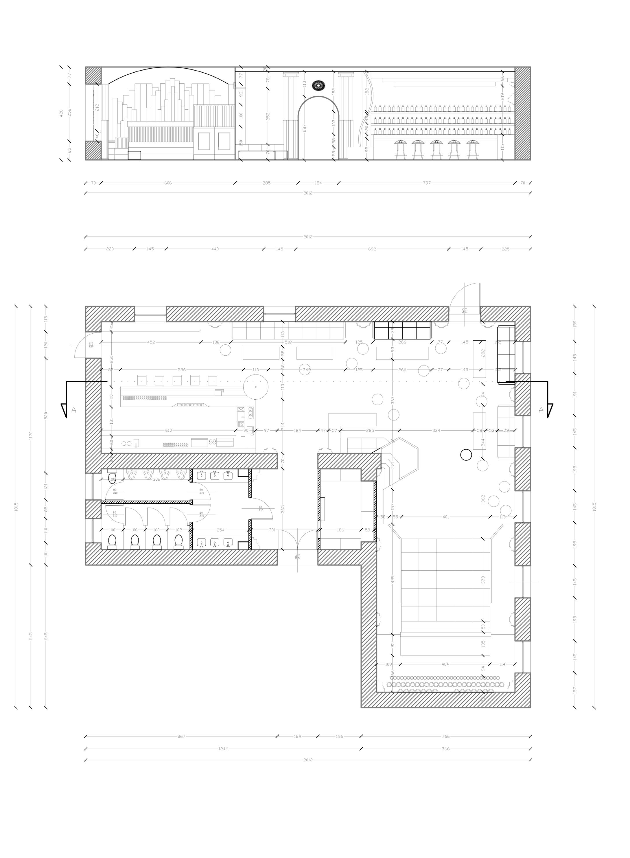
CLUB 77
INTERIOR DESIGN OF THE LUXURY CLUB INSPIRED BY NUMBER 77, WHICH IS A MESSAGE FROM YOUR ANGELS, ENSURING THAT YOU ARE ON THE RIGHT WAY. INTERIOR STYLING CREATED ON THE MODEL OF CHURCH ARCHITECTURE AND THEME OF HELL.

LAYOUT



THE GATE

DESIGN OF THE TENEMENT GATE AT 36 PIOTRKOWSKA STREET IN ŁÓDŹ FOR THE TUBĄDZIN COMPANY. THE MAIN CONCEPT OF THE PROJECT IS TO RESTORE THE „SPIRIT OF DETAIL” OF THE TENEMENT HOUSE AND THE GATE, WHICH IN THE PAST WAS DEPRIVED OF NINETEENTH-CENTURY ORNAMENTS. THE MAIN FEATURE OF THE DESIGN IS THE FLOOR DESIGN BASED ON PAST DETAILS.

INFOGRAPFIC
INPFOGRAPHIC OF TIMETABLE
INFOGRAPHIC PRESENTING THE SCHEDULE OF INTERIOR ARCHITECTURE FACULTY AND INDUSTRIAL DESIGN IN ACADEMY OF FINE ARTS OF THE YEAR 2018. THE TASK WAS TO ANALYSIS ALL THE LESSONS FOR EVERY GROUPS AND COMPARISION BETWEEN 2 FIELDS OF STUDY. DIAGRAMS SHOW THE NUMBER OF CLASSES IN RELATION TO THEIR DURATION. THERE IS ALSO A DIVISION OF TO OBLIGATORY, OPTIONAL AND DESIGN WORKSHOPS. INFOGRAPHICS HAVE MADE WITH MEMBERS OF THE STUDENT GROUP.

