KLÁRAMAŠKOVÁ

![]()







01 02 03
2008-2013ZŠDrtinova
2013-2021GymnáziumJiříhoGutha-Jarkovského
2019-2020BrginderAU,Rakousko
2021-2024Fakultaarchitektury,ČVUT
AteliérHnilička–Topinka|ATSS|ZS2025
AteliérSosna–Filsak|ATBP|ZS+LS2024
AteliérRedčenkov–Danda|ATOS|LS2023
AteliérCísler-Pazdera|ATBS|ZS2023
AteliérBuřičová-Králík|ZAN,ZAT|ZS+LS2021-22
Konceptual-2024-2025
DesignBlok–2020-2024
Airbnbinteriérovýdesign-2021-2024
POČÍTAČOVÉZNALOSTI
CAD-Revit,Autocad,SketchUp
ADOBE-Illustrator,Photoshop,InDesign
VIZUALIZACE-Blender,Lumion,Enscape,D5
MSOffice-Word,Powerpoint,Excel
JAZYKOVÉZNALOSTI
českýjazykrodnýjazyk anglickýjazykC1 nemeckýjazykB2

02.1REZIDENCELETNÁ
02.2 GALERIENÁCHOD
02.3JIHOČESKÁGALERIE
02.4BYDLENÍROKYTKA
02.5MILÁNSKÁKOLEJ
02.6DŮMSGALERIÍ
02.7 MEDITAČNÍPAVILON
BytovástavbasenacházívnověvzniklémblokunaLetné vbezprostředníblízkostiNárodníhotechnickéhomuzea aLetenskýchsadů.
Blokjetvořenpětirezidenčnímičástmi,kterémajípod aktivnímiparteryspolečnégarážeaarchiv,kterýrozšiřuje prostorymuzea.Samotnábudovajeorientovánajihovýchodně, svýhledemnaLetenskésadyajekoncipovánajakoosmi podlažníbudovasedvěmakomunikačnímijádry.Parterdomu sloužíjakovstupníčástproobyvateleapříjezdováčástpro garáže.
Významnourolivšakhrajeikomerčníplocha,určená předevšímprogaleriiagastronomii.Tímtozpůsobemsebudova stáváaktivnísoučástíveřejnéhoživota,oživujeměstskýprostor apodporujekulturníaspolečenskéaktivityvokolí. Najednotlivýchbytovýchpodlažíchsenacházídevětbytů,které jsoutypovězastoupenyodgarsonekažpo4+kk.Každýnich mábuďvlastníbalkonnebolodžii.Zjižněorientovanýchbytůje výhlednaLetenskésady.Omítkanafasádějepovrchově upravenastěrkami,kterévytvářejítexturukanelur.Parter austupujícípodlažíjsoumateriálověodlišenyodzbytkuhmoty použitímleštěnéhobetonuspigmentemtónovaným dorůžovéhoodstínu,kterýobsahujeikouskybarevnéhoskla.
LOKACE:Praha,Cz
5.SEMESTR
ATELIÉR:Sosna-Filsak




DETAILATIKY
DETAILFASÁDY







KONCEPT
Vsoučasníchvílijeviaduktvyužívánpouzejakožtoprůjezd apřejezd.Zároveňtvoříjakýsipředělmezivnitřníavnější částíměsta,cožpůsobíbariérovýmdojmem.Snávrhem galeriemádojítkvizuálnímupropojeníoboučástíměsta azárověňmáposkytnoutprostoryprouměleckádílá nejrůznějšíchměřítekaforem.Takésepočításrozšířením pěšízóny,cožoživípředprostorgalerie.
NÁVRH
Galerierespektujestávajícíhmotuviaduktuazpřístupňuje jiveřejnostizaúčelemkulturního,edukativního asociálníhoobohacení.Kroměpřechodnýchvýstavsezde mohoupořádativýtvarnéworkshopyapřednáškypro veřejnost.Návštěvnícimohouvnímathravoupráci sprostoremajednotlivýmiuměleckýmidílyvněm umístěných.
LOKACE:NÁCHOD,CZ
4.SEMESTR
ATELIÉR:REDČENKOV-DANDA





2.PATRO



Geometricképrincipyobloukůsepromítají,jaknafasáduprostřednictvímotvorůaoken,takiprostřednictvímkonstrukčníchprvků.Prostředníčástviaduktuvycházízestatickýchprincipů mostů.Jevynášenaskořepinovýmobloukem,díkykterémugaleriepůsobíotevřenýmdojmem,atakédíkykterésevnímohounacházetuměleckádílavětšíchměřítek.Skořepinasenasvých koncíchopírádooblouků,kteréjsouumístěnypříčněvpůdorysu.Nalevémkoncisenacházíprůjezdproautoanapravémkoncigaleriejevytvořenprůchod,kterýsloužíijakovchoddokavárny.

1.PATRO SEVERNÍPOHLED


KAVÁRNA

GALERIE

KAVÁRNA

GALERIE

PERSPEKTIVA



PERSPEKTIVA HLAVNÍVSTUP


KONCEPT
Stavbajerozdělenadotříhmot.Vedvoupropojených hmotáchjenavrženagaleriesdepozitářem.Zbylouhmotu tvořírestauracesadministrativnímiprostory.Další exhibičníprostoryspolusmultifunkčnímsálem atechnickýmzázemímjsousituoványvedvoupodzemních podlaží.
Uprostředstavbyjenavrženoatriumsplochouprostromy, keřeavodníplochu.Vodníplochajepakspuštěnado exhibičníhoprostoru,kdepozvolnastékápozadnístěně.
Zkaždéstranynávrhujevytvořenprůchodsměremdo centrahmot,kdesenacházíkrytéatrium.
Fasádajetvořenazezavěšenýchprefabrikovanýchpanelů UHPC(ultrahighpreformanceconcrete),kteréje probarvenodobíléačerné.Parterjednézhmotgalerieje obalenlehkýmobvodovýmpláštěmindikujícílevitující hmotunadním.Oknavbudováchjsoutrojizolačníazčásti fixní.Doplňujíkonceptpukléhokamenetím,žejejichboční stěnyspolusoknyustupujídovnitřobjektu.






LOKACE:ČESKÉBUDĚJOVICE,CZ
ARCHITEKTONICKÁSOUTEŽ
vespolupráci:JanKuhn,ViktorMašek























Galeriejakohmotavycházízmyšlenkykamene,kterýmáprasklinyaskrzenějprocházísvětlo.Jetotedypuknutýkámen,takjakhostvořilapříroda.Puknutýkámenmůžebýtnevypočitatelný, můžeserozpadnout.



Pročlověkavdnešnídobějezapotřebítrocharacionality,jetřebaumožnitlidskémuchápánípochopitprostorvekterémsenachází.Touracionalitoujepronásgeometrie.Vnesenígeometrie donávrhujezlomemvdefinováníhmoty,jetoonouracionalitouazároveňvyváženostímezianarchiiařádem.Návrhemsesnažímepřiblížitpřírodníkamennouhmotučlověkuavnéstdoní klidaharmoniiumožňujícísnazšísžitísprostoremavytvořenípříjemnépobytovéatmosféry.Puklinyvkamenijsounarovnányvosáchnasebekolmýchatvořítakprostupyaprůhledyve dvousměrechvítajícíjaknávštěvníkygalerie,takiširšíveřejnost.Dálejenaprůsečíkudvouosvytvořenkruh,kterýsedotýkávšechtřechhmot.
Návrhjetakdefinovántřemihmotami,kteréjsounasoběfunkčněnezávisléavytvářípevnánárožívkaždémrohuparcely.přičemžkaždéoknoustupujezlíceisbočnístěnouatvořítak puklinynafasádách.Galeriemápaksvévlastníumístěnívedvouhmotáchavetřetípakjeadministracearestaurace.Zkaždéstranylzebudovamiprojítadostatsetakkhlavnímuvchodu dovstupníhaly.Návrhjetakotevřenýavítávšechnycojdoukolem.Anejenty,díkysvéčlenitéhmotě,výrazuanáplnimágaleriejasnouidentituavytvářítakBilbaoefekt,kterýoslovínejen lidizJihočeskéhokraje.Nadpovrchemještězdalekanenívše.Díkysestrojenémukruhujsmenavrhlidalšíčástvýstavníchprostor,atovkruhovémuspořádánívpodzemníchpodlažích.Spolu stočitýmschodištěmuprostředkruhupakvyvolávajínevšednídojemzexhibice.Návrhbymělbýtjakosochavprostoru,kteránekonkuruje,spíšelákakprozkoumánísvýmiprasklinamimezi hmotami.




PERSPEKTIVA


PERSPEKTIVA




DRUHÉPODZEMNÍPODLAŽÍ

3.PATRO

1.PATRO

5.PATRO

NávrhjesoučástínovéhourbanistickéhoplánuPragovkanaPraze9.Tentoplán počításnovouměstskoučtvrtíparkem,najehožokrajimávzniknout navrhovanýsouborčtyřbytovýchobjektů.Takésepočításestavbou sportovníhocentra,mateřskéškolyadalšíchbytovýchstavebnaprotisouboru.
Hlavnímkonceptemnávrhujeotevřenostatransparentnost–budovynemají vytvářetvizuálníbariéru,alenaopakpropojovatveřejnýprostorapřirozeně navazovatnapark.Protojsouobjektynavrženyjako„solitéry“,kteréjsou uspořádánytak,abymezinimivznikalyprůhledyaveřejnéprůchody,kterése napojujínacestyvedoucíparkem.Navrženojecelkem80bytůrůznýchdispozic.
Všechnystavbyjsoupropojenypodzemnímigarážemi,kteréjsouzdůvodu příménávaznostistoupajícíhoterénunavstupyjednotlivýchobjektůnavrženy jakorampové.Prvnímzobjektůjepavlačovábytovástavba,jejížpřízemíje určenoprokomerčníprostoryorientovanédouliceadvaprostornébyty svlastnímizahrádkami,orientovanépřevážnědoparku.Vdalšíchčtyřech typickýchpartechsenacházísedmbytůnapatře,přičemžbytynapravéstraně objektujsouvětší,svýhledemdoparku,zatímconalevéstranějsoubytymenší kvůliblízkostistávajícíbudovy.
Dáletvořísoubortřičtvercovébytovkysvariabilnímidispozicemi.Každá ztěchtobytovekmápřízemnípatroačtyřitypickápatra.Vpřízemíjsou umístěnybytysvlastnímizahrádkamiavhorníchpatrechčtyřibytynapatře. Hlavnímkonstrukčnímipohledovýmmateriálemjebeton,kterýpodtrhuje čistotuajednoduchostformy.

LOKACE:PRAHA,CZ
7.SEMESTR
ATELIÉR:HNILIČKA-TOPINKA






POHLEDSEVERNÍ
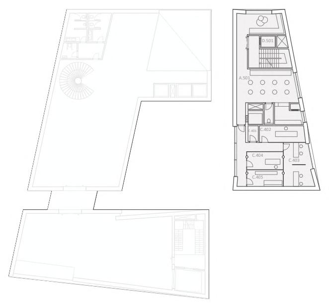
KolejsenacházívhistorickémcentruMilana vbezprostředníblízkostiuniversitydegliStudidi Milano.Jeumístěnavjižnímcípupozemku,aby urbanistickydotvořilakřižovatku,přitomjemírně ustoupenatak,abypředbudovouvzniklapiazzetta, kteráposloužíiprovenkovníposezeníkavárnyv přízemí.
Poskytujeprostorysloužícíjakprodlouhodobější bydlení,takkrátkodobé.Prostudentyvesdílených bytechčisamostatnýchjednotkách,hostujícím profesorůmvnárožníchčástechbudovysrohovými balkonyavýhledemdoparku.
Převážnáčástpozemkujezachovánaprozeleň, sloužícípropobytarelaxacistudentůavolnočasové venkovníaktivity.Vhorníchpatrechjsouumístěny doplňkovéprostoryprorozvojtělaaducha –studovna,posilovnaaodpočinkovárelaxační místnost.
LOKACE:MILANO,ITÁLIE
3.SEMESTR
ATELIÉR:CÍSLER-PAZDERA










1.01Cafe179m² 1.02Caféfacilities36m² 1.03Toilets18m² 1.04Facilities19m² 1.05Shop73m² 1.06Bikestorage48m²
3.01Studyroom115m² 3.02Apartment3kk64m² 3.03Apartment3kk64m² 3.04Apartment2kk60m² 3.05Apartment1kk21m² 3.06Apartment3kk64m² 3.07Apartment1kk32m² 3.08Apartment3kk64m² 3.09Apartment1kk20m² 3.10Apartment1kk20m²
6.01Multifunctionalroom88m² 6.02Coveredterrace120m² 6.03Technicalroom42m² 6.04Toilets18m² 1.01Cafe179m² 1.02Caféfacilities36m² 1.03Toilets18m² 1.04Facilities19m² 1.05Shop73m² 1.06Bikestorage48m²
3.01Studyroom115m² 3.02Apartment3kk64m² 3.03Apartment3kk64m² 3.04Apartment2kk60m² 3.05Apartment1kk21m² 3.06Apartment3kk64m² 3.07Apartment1kk32m² 3.08Apartment3kk64m² 3.09Apartment1kk20m² 3.10Apartment1kk20m²

6.01Multifunctionalroom88m² 6.02Coveredterrace120m² 6.03Technicalroom42m² 6.04Toilets18m²
1.01Cafe179m² 1.02Caféfacilities36m² 1.03Toilets18m² 1.04Facilities19m² 1.05Shop73m² 1.06Bikestorage48m²
3.01Studyroom115m²
3.PATRO
3.02Apartment3kk64m² 3.03Apartment3kk64m² 3.04Apartment2kk60m² 3.05Apartment1kk21m² 3.06Apartment3kk64m² 3.07Apartment1kk32m² 3.08Apartment3kk64m² 3.09Apartment1kk20m² 3.10Apartment1kk20m²
6.01Multifunctionalroom88m² 6.02Coveredterrace120m² 6.03Technicalroom42m² 6.04Toilets18m²

5.PATRO PARTER
Důmbylnavržentak,bysplnilpožadavkyklienta,AlexeWarhola, jenžsezabývágalerijníakurátorskoučinností,aleivlastní fotografickoutvorbouamalbou.
Jehoosobitýživotníapracovnístylsepromítádojehodomu. Procesnavrhováníseodvíjelodzáměruinvestoraastavebního programuumožňujícímu,jakpříjemnébydlení,takvytvoření reprezentativníhoprostředívhodnéhoprovykonávaní podnikatelskéčinnostiinvestora.
Kzákladnímpožadavkůmklientapatřiloumístěnígalerie, umožňujícípřímýpřístupveřejnostiazároveňmožnostkonání privátníchakcí,napříkladaukcí,kterémohouprobíhativenkovní formou.Vdolnímpodlažígaleriesenacházífotoateliéravhorních dvoupodlažíchprostorjeprezentovánaosobnítvorbaklienta.
LOKACE:ROKYCANY,CZ
2.SEMESTR
ATELIÉR:BUŘIČOVÁ-KRÁLÍK









Zadánímateliérovéprácebylonavrženímenšíbudovypro veřejnostnapozemku,kterýsenacházínaokrajiLipenců (Praha16),alesprávouspadápodDolníČernošice.Znějse hledípřesřekuBerounkunavilovéměstoČernošice.Vjeho okolísenacházíjakjez,cyklostezkyazastávkavlaku,taki centrumměsta.
Zvolilajsembudovusfunkcíčítárny.Lzesempřinéstknihu adátjítakdruhoušanci,zároveňsijinoubezplatněodnést. Díkysvémuproskleníbudovaposkytujedostatekdenního osvětleníapřímýpohlednaokolnípříroduařeku.Tímse utváříprostředívhodnénačtení,rozjímáníisoustředění. Nastřešesenacházíornamentvetvarutrojlístku,kterýje zároveňznakemČernošic.


LOKACE:ČERNOČICE,CZ
1.SEMESTR
ATELIÉR:BUŘIČOVÁ-KRÁLÍK
























































2021-2025vybranépráce