Portfolio


![]()



Landskapsarkitektur är för mig konstnärligt uttryck och hållbar förändring som gynnar både människor och miljön. I min master fördjupade jag mig särskilt i växtgestaltning, barn och ungas perspektiv och jämlikhetsfrågor. Jag har även kunskap om skötsel från mitt jobb som parkarbetare. Jag brinner för gestaltning och att visualisera såväl digitalt som för hand. I denna portfolio har jag valt ut projekt från min studietid och praktik.
AutoCad
Photoshop
Illustrator
InDesign
SketchUp
Officepaketet GIS
Arbete på väg B-körkort
Konst Grund
Wik folkhögskola
Landskapsarkitektprogrammet
SLU, Ultuna
Civilingenjör molekylär bioteknik
Uppsala Universitet
Parkarbetare
Uppsala kommun
Förskolevikarie
Uppsala kommun
Studenthandledare
AutoCad, Photoshop, Illustrator, InDesign & Sketchup
SLU, Ultuna
2024-nuvarande
2016-2022 2015-2016
2023-2024
Kontakt nov 2020-jan 2021
klara.hellgren@yahoo.se 0737189358
Salabacksgatan 19, Uppsala
Konst Kör
Dans Teater nov 2022-mar 2023
Praktik
White Arkitekter, Uppsala
Butikssäljare
Upsala Färg, Uppsala
2016-2025 feb-maj 2022









Allegro i Musikparken:
Ett gestaltningsförslag till en allaktivitetspark intill Gottsundaskolan (2022)
Examensarbetet gjordes tillsammans med Alexandra Astafourova. Vi gjorde ett gestaltningsförslag av Musikparken som ligger nära Gottsunda centrum. Uppsala kommun planerar en ny skolbyggnad, skolgård och bostäder intill Musikparken och
den har pekats ut som en framtida allaktivitetspark. Metoderna vi använde oss av var medborgarsamtal med intervjuer och enkät, Boverkets ekosystemtjänstverktyg ESTER, designprinciper för universell utformning och upplevelsevärden som främjar välmående.


Gestaltningsförslaget heter Allegro, en musikterm som betyder glatt och hastigt tempo. Detta symboliserar Musikparkens nya fartfyllda aktiviteter. Parken delas upp i 5 områden: bläckfisken, backen, gläntan, trädgården och rasten.

Gestaltningsförslagets programplan














Vy B-b höst skala 1:200/A3






Vy C-c sommarkväll skala 1:200/A3












Vy E-e höst skala 1:200/A3






Vy F-f vinter skala 1:200/A3

Fickpark på Ursviks torg
Avancerad växtgestaltning (2020)
Isparkens växtgestaltning inspireras av vinterns kalla färger, snöflingors spetsiga och symmetriska former och kontrasten mellan vit snö och vinterns mörker. Idegranshäcken bildar väggar, en mörk fond till den växtdynamik som sker över året.



Dessa vyer visar parken inifrån respektive utifrån. Isparken har en solig del i norr och en skuggig del i söder vilket möjligjort variation i växtval. Gestaltningen inkluderar en planteringsplan, lökplanteringsplan samt planer som visar parkens vinterkvaliteter och lökarnas blommning.










Ångströmslaboratoriet Hus 10
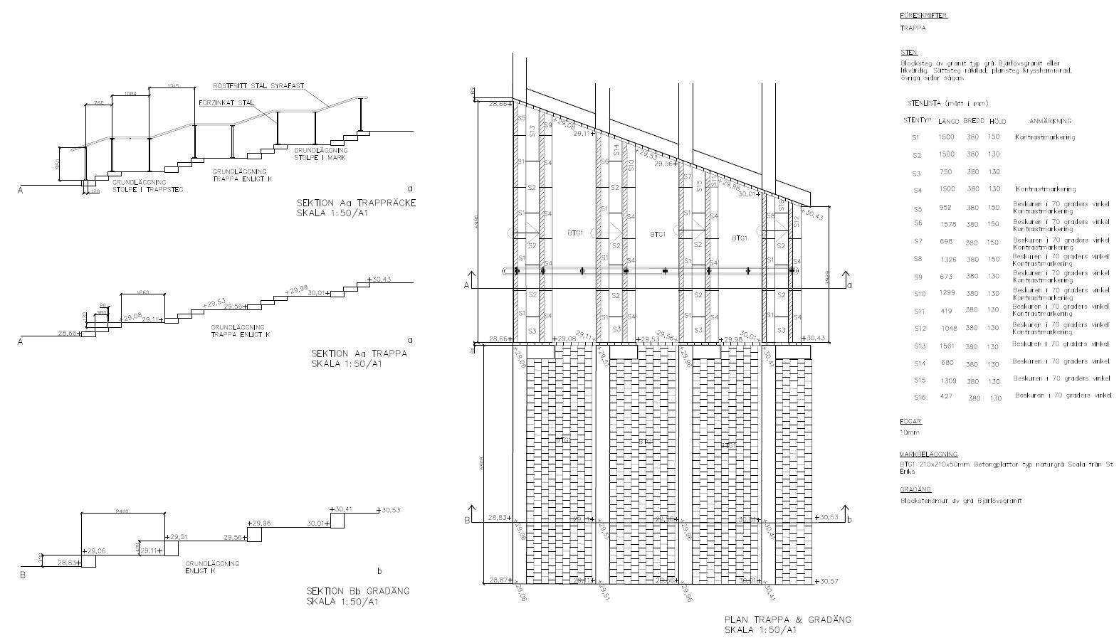
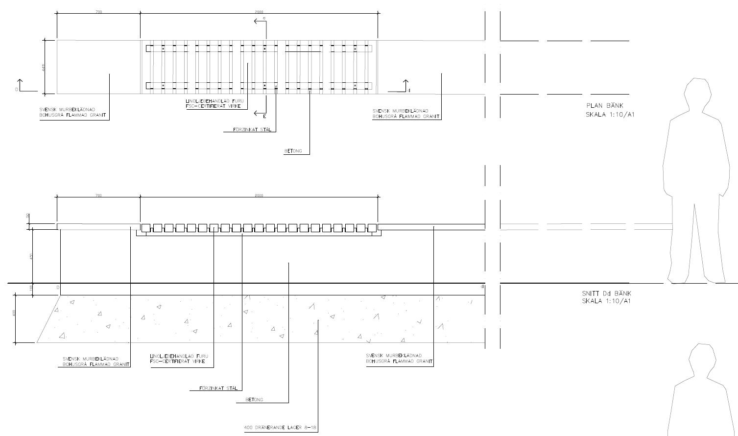
Markprojektering och markvetenskap forts. (2021)
Denna kurs gav mig fördjupade kunskaper om markuppbyggnad, markmaterial, höjdsättning, dagvattenhantering, skelettjordar och detaljritningar.




3 månader på White i Uppsala (2020-2021)
Under min praktik fick jag hjälpa till i flera projekt. Jag gestaltade en takterass och en aktivitetspark på ett parkeringshus. Jag beräknade avrinning och modellerade en trappa. Jag gjorde även inventering
av strandkant och parkeringar. Praktiken gav mig värdefulla färdigheter i Autocad, SketchUp, Enscape och Illustrator. Jag fick även inblick i hur arbetslivet som konsult kan se ut.









Stärka gröna korridorer i
Bergsbrunna
Urban Ecology (2020)
Grupparbete med Emil Karlborg, Maria Burén och Betsy Kamali. Målet var att stärka grönstrukturen i Bergsbrunna, genom att flytta på planerad bebyggelse och därmed bredda de gröna korridorerna med högt naturvärde. Visionsbilderna visar bilfria skogsgator.





Spårvagnshållplatser med grönt tak
Urban Ecology (2020)
Spårvagnshållplatser med insektshotell, sandhögar och dödved. Växtgestaltningen är färgstark med lång blomningstid för att attrahera pollinerare. Norra hållplatsen står i soligt läge och den södra skuggas av en byggnad. På den soliga hållplatsens tak finns solceller som driver lamporna. Båda hållplatser har en bänk och en gunga för bekvämlighet respektive lekfullhet.





Konstinstallation i Covid-19 Experimentellt projekt i landskapsarkitektur (2021)
Grupparbete med Alexandra Astafourova, Adriana de Lima Sampaio, Kyung-Jin Cho och Linnea Nyman. Temat för kursen var Covid-19 pandemin och vi valde att skapa en interaktiv konstinstallation på Sergels torg och på SLU campus Ultuna. Pop the isolation hette projektet och handlade om att låta
människor mötas på ett säkert sett genom känsel, syn, tal och hörsel. Känseldelen var en skärm med bubbelplast som man behövde vara två på varsin sida av skärmen för att kunna poppa bubblorna. Syn representerades av ett spegelrum utomhus där man kunde sitta på varsin sida om en skulptur och

se varandra genom speglarnas reflektion. Tal och hörsel användes i installationens tredje del där människor fick lyssna på och lämna meddelanden i en diktafon.
Arbetsprocessen sammanfattades med en pop-up bok och en video.








Ny stadsnod i Börjetull
Staden (2019)
Grupparbete med Lina Axelsson, Ellinor Hult Broman och Tuula Kuusemaa. En stadsdel med fokus på jämlika offentliga rum. Den nya stadsdelen har variation i byggnadstyper och hushöjder. Avskurna hörn och bilfria områden ökar tryggheten. Alla gator har trädrader och stort utrymme ges till gång- och cykeltrafikanter.




Akvarell, akryl, olja och blyerts (2015-2025)







