Kit Lum work interview portfolio

Page 1

01.EDUCATIONURBANINTERVENTION: SYNAPSE A proposal of neighbourhood revitailzation. The Manor Place, London 02. HARVESTING HEALTH A proposal of sustainable and healthy life style. ‘Jumbo’ the gasometer, Greenwich, London 03. MOTHER LONDON A proposal of sustainable working environment The Tea Building, Shoreditch, London 04.WORKZHENGRONG HEFEI BINYUTINGHU PAVILLION LACIME ARCHITECT Hefei, China 05. VANKE TAIYUAN SOUTH STATION NORTH CAMP PRIMARY SCHOOL LACIME Tiayuan,ARCHITECTChina 06. 鲁商万科城臻园 LACIME ARCHITECT Linyi, China 07. 万科石家庄翡翠书院 LACIME Shijiazhuang,ARCHITECTChina 08. 正荣合肥滨语听湖 LACIME ARCHITECT Hefei, China 09. 正荣滁州润熙府 LACIME Chuzhou,ARCHITECTChina

INTERVENTION: SYNAPSE

URBAN01 SYNAPSEINTERVENTION: A proposal of neighbourhood revitalization. This project renovate an ageing area, the Manor Place, within the Elephant & Castle area, including the famouse landmark Manor Place Bath. The project aims at using the Manor Place as a new urban living room, creating a multi functional landscape as the new centre of the redeveloping area. Also, introducing a new life style to the local community, Co-living and Co-working. The project provide workspace for teenagers who are planning for start up and workshops for creative industries, as well as a residential building for the community. In addition, the garden landscape and piaza are the new landmark and redifining the character of the area, work life balance. As a result, to revitalized the Elephant and Castle district and bring new opportunities for the localcommunity.URBAN

1

SURROUNDING CONTEXT

The Manor Place within context of the Elephant and CastleThe Manor Place Bath

HealthUnutilizedFoodSchoolPoliceMixedHousingRetailsHotelsUseStation&DinningCare

The region of Elephant and Castle serves as a tranportation hub within the Southwark borough. In early age, Elephant and Castle was famous with young professionals and artists due to the proximity to the city centre and low living cost. Today, the area is suffer ingwith social issues, such as unemploment and high crime rate, cause by under development. Terrance house as the dominant housing typology is one of the main reason risisted the tide of gentrification.

URBAN INTERVENTION: SYNAPSE 2

The local region in relation to the site is divided in two by a railway. The eastern part of site lies on the Walworth road which houses many retails, restaurants and hotel. On the western part of site contain the Manor Place Bath and the Pasley Estate.

The Manor Place is well-knowed with its Victorian public bath which was designed and built by Mr E B I’Anson in 1898, severed as a public bath and laundry for the locals. The building also included two swimming pools for each gender and re-purpoesed as event space in winter. The bath remain popular within the neighbourhood until the introduce of in-house bathrooms. Later, the openning of the Ellephant and Castle leisure center with modern swimming facilities put an end to the bath. Today, the bath is occupied by a Buddhist organizations. The sense of vatality and communal has disappered.

SITE RESEARCH

Anaylsis of surroundings and sun light

1. The site lies on the left of the Walworth Road. As the main road of the area connecting north and south, the Walworth road is extremely busy with trafic. Alternatively, it has the most vistiors flowrate which is suitable for the main entrance to access the site.

3. There main noise source to the site comes from the main road and the railway cut through the site. Therefore, the east side of the site is not suitablef for residential accomodation. While the west side may also need extra noise barrier such as greenings.

OVERALL SHADOW CASTING ON SITE

The diagram to the right displays the sum solar movement and variability throughout the days of the year and the total shadow cast upon different areas of the site. This may be an important consideration in the determination of areas of daylight autonomym ideally for the living quarters which the site should accomodate for, also for any green spaces that the site should have to allow any plants ample sunlight to photosynthesise.

SUN LIGHT ANALYSIS

1 2 3

ENVIRONMENTAL ANAYLSIS

2. The site sit between several parks. However, as an ‘Urban Living Room’ for recreation purpose, the site will need extra greening landscape to provide a natural environment.

To the right I have conducted a radiation analysis for the local block of the site. This diagram displays areas with the highest solar radiation exposure (measured in KW per M2.. The readings are taken from an average of the year round exposure to the sun and were conducted once again utilising the Diva plugin for Rhino.

URBAN INTERVENTION: SYNAPSE3

GARDEN The garden locate next to the Manor Place Bath, which will be renovate as a new leisure centre. The garden is forseen as an augumentation of the bath, extending the experience of leisure and socializing to the outdoor area.

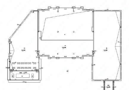
1. Entrance 2. Retail 3. Footbridge 4. Outdoor Theatre 5. Manor Place Bath 6. Church 7. Apartment 8. Garden 9. Carpark Entrance 10. Workshops 12 2 2 3 4 5 6 7 8 9 10 2 10 10 Landscape Footbridge Excavation TECHNICAL DRAWING Master Plan and Space Layering URBAN INTERVENTION: SYNAPSE 4

Piazza

Manor Place Garden

Manor Place Commercial Street PIAZZA Located at the south-east of the site, the Piazza is a public realm for events such as outdoor theatre and pop-up market. The fading landscape blurs the definition of ‘ground’, guiding people walk into the space and interact with the community.

SPACE AND EVENTS Master Plan and Space Layering

COMMERCIAL STREET

The commercial street locate at the excavate level, including retials, workshops and restaurants for residents and vistors.

Manor Place

SYNAPSE: CONNECTION AND PUBLIC ENGAGEMENT URBAN INTERVENTION: SYNAPSE5

Sectional Drawing

The concept is inspired by synapse. In the nervous system, a synapse is a structure that permits a neuron (or nerve cell) to pass an electrical or chemical signal to another neuron or to the target effector cell. Upon entering the site, a person can be forseen as a cell to interact with others with no limitation in time and space. In a bigger picture, the site connect the Elephant & Castle area with other part of London, as a synapse.

The space features a gradual slope from one end to another, providing disability access to the excavate level. Over the excation, solid ground is replaced with foot bridges to connect the whole site at ground level. Which also project boundary of space for the excavate level with form and shadow.

Sectional Drawing and Renderings

URBAN INTERVENTION: SYNAPSE 6

TRANSPARENT SPACE

The footbridge is the main connection of the site at ground level. Allow residents to overlook the space and events happening at the excavation level.

MAIN ENTRANCE

The shape of the main entrance respected the shape of the railway arch within the site as a continue of space. The entrance connects to the both the bridge level and excavate level, also include retail space on top of the tunnels.

FOOTBRIDGE

EXCAVATION SPACE The excavation level provide spaces for shops, workshops and restaurants. Also, include an entrance to the apartment, allow residents to enter the excavate level directly. WEST EXIT The exit to the west can be acces via staircase and ramp as a disability friendly facility. The west exit connect to the renovated Bathroom and the garden area as a continue of recreational experience. URBAN INTERVENTION: SYNAPSE7

27m 48m FORM OF SPACE Entrance and retail This concept was partly derivative from some of the geometries in proximity to the site, namely the artwork elephant, a box-park like structure created through arraying a series of storage containers atop of a platform. Each of these containers serves as a creative space, retail unit or social hub. I also noticed that there was a housing estate opposite which featured a number of different dormers jutting out at different points in the facade. I have appropriated this in the design of this concept which is located in an office space above the retail block on Walworth road. Each shipping container could encapsulate a pop up store run by local creatives and entrepreneurs. The containers could be staggered to create space for people to walk on top of these platforms as well as a interesting pixelation effect to the facade of the building. The building could serve as a marketplace for ideas and people. The structure iteslf is seated within the shelled interior of the old office building. A grid of supporting beams could possibly run alongside the containers to provide structural support for the cantilevering containers. services such as lifts, fire escapes and staircases could be located to the rear of the building (east relative to the site) with a marketspace in the intermediate space between the front and the rear of the URBANstructure.INTERVENTION: SYNAPSE 8

Apartment on site Roof Garden Common Space Gymnasium Ramp Circulation

URBAN INTERVENTION: SYNAPSE9

Circulation

The design of the accomodation is using corridor as third space as concept, encouraging social interactions and foster connectivity and creativity. The building features a multi-functional ramp running through each floors, scrolling around the building. The external section of ramp locate at second and third floor, featuring roof top garden for socializing and leisure activities such as yoga. The interior sections connect common spaces on each floor and using as a circulation for accessing accommodation rooms. People walkin to the community and continuesly interating with it, going home does not equal to disconnection.

CORRIDOR AS THIRD SPACE Residential Accomodation

10Aproposal of sustainable and healthy life style. This project aim at seeking a solution for famers who are facing metal heath issues, including loneliness and stress, brought by the critical working condition. The idea is to design an urban farming facility at the Greenwich peninsula, which is planned to be the next center of London. The farm will create a natural enviornment for visitor to relax and spend time with family or friends, forgetting the busy works and taking a mental relieve session. The farm will run by experienced farmer, producing organic food and providing farming tutorials to publics. This provide a chance for them to reconnect to the society. Public engagement would potencially reduce their working amount in a long term bases and acheiving “Consumer as the Producer” in the future. The urban farm will demostray a new life style, organic and sustainable. HARVESTING02 HEALTH HARVESTING HEALTH

Greenwich Peninsula is the latest project from Knight Drag-on. Their previous London project, The Knightsbridge, was named Residential Development of the Year at the 2006 Property Awards, and this new project follows the same lifestyle-led approach. Research from Jones Lang LaSalle (JLL) forecasts that property values and rental growth in this new district will outperform the Central London average over the next five years, making Greenwich Peninsula a hot ticket for local and oversea property buyers.

Greenwich Peninsula has also been designed with the needs of families in mind, featuring two new schools, a public park and 48 acres of green space. Peninsula Central is the district’s buzzing retail and entertainment precinct, while the neighboring O2 Arena brings the world’s biggest performers to your neighborhood. The Ravensbourne University London next door as one of the best universtiy for media and broadcasting has tight conversation with the O2. Which built the basis for a Creative industry hub and attract companies to set their base at the Greenwich Peninsula.

HARVESTING HEALTH11NEIGHBOURHOOD 1. The O2 2. Office area 3. Residetntial area 4. The Blackwall Tunnel 5. North Greenwich Pier 6. The Ravensbourne University London 7. North Greenwich underground station 1 4 6 2 7 5 3 3

The gas holders consits if vessels situated on the inside of each other so that when the inner vessel was fully extended the next vessel would also start to rise Once the gasholder reseaches its full capacity the gas fows out throught the main pipe causing the top most vesse to collapse

HARVESTING HEALTH 12 Built by George Livesey in the 1880s, with a capacity of 8,600,000 cubic feet. 1880s In1889 The Times in 1889, an article referred to “the monster gasometer in marshesGreenwich-known as ‘Jumbo,’ believed to be the largest in the world.” A1892 second holder built at the East Greenwich Gas Works in 1892 with a capacity of 12,200,000 cubic feet. 1917 Jumbo explotion.massivedamagesufferedintheSilvertown 1892 Jumbo demolished.secondWorldIRAdamagedamagesufferedmorefromthebombduringWarll.Theholderwas The2018 Department of Culture, Media & Sport declined a Listing proposal and issued a Certificate of Immunity meaning that the gas holder cannot be listed, or have a building preservation for five years. RESEARCH OF ‘JUMBO’ THE GASOMETER

HARVESTING HEALTH13HABBITATION AND STRUCTURE 1. ‘Farming’ Circulation 2. ‘Shopping’ Circulation 3. Habbitation 4. Farm Area Market Area 5. Gasometer Grid 6. Glass Facade 7. Rain Collector Support Structure 8. ‘Farm Area’ Ramp Elevation with glass facade (left), Elevation without glass facade (right) TECHNICAL DRAWING Elevation 5 6 7 831 42

HARVESTING HEALTH 14

MASTER MAP & SCHEME

The structure is covered with glass facade whcih function as a glass house. Utilizing sunlight for farming and capture heat, porivding a warm enviornment. Rain will be collect into the water tank undergroud for watering after filtration

SUN LIGHT & GLASS HOUSE EFFECT PHOTOSYNTHESIS FOOD MARKET & PICNIC AREA

The design of building maximise the usage of natural resources in the urban farming system, in order to achieve sustainable farming.

HARVESTING HEALTH15

FERTILIZING

TOTRANSPORTATIONLOCALSTORE

RAIN COLLECT

The design is visioned a growing tree. By collecting natural resources into the building crops will be produced, which is similar to the photosynthesis proccess of an actual plant. Aim at creating a complete natural enviornment and introduce an organic life style, raising the public awareness of sustainability.

MOTHERcommunity.LONDON MOTHER03 LONDON 16

S U

A proposal of sustainable working environment. This is a renovation project of the Tea Building at the Shoreditch District in London. The project aim at designing a modern working environment which emphasize work life balance. The design include an office for the advertisment company, Mother London, which required collabrative and inspired working space. On the other hand, the building include the Shoreditch House, a hotel providing 25 accomodation rooms for visitors. In order to achieve work life balance, the design will highlight leisure facilities and common space which allow staffs and visitors to relax and socializing. People will explore the building, engage into different events and sharing their life, developing an unique

House, 14.8m 1 9 3 1 9 1 1 8 7 5 to 11 Shelter 1 9 5 5 6 1 9 2 0 2 4 6 8 10 12 14 6 8 20 m P o ect on B sh Na ona G d Scale 1:200 © C own o y gh an da ab se g s 20 8 O dn n e Su e D map cen e OR EDUCAT ONAL USE ONLY SURROUNDINGS Today. Shoreditch is wellknown for its trendy bars, arty coffee shops and retro clothing stores. Many people see it as the birthplace of English theatre and the cultivator of London fashion and street art. Nowadays, it has become increasingly gentrified. TECHNICAL DRAWINGS Tea building (project site) ResidentialCommercialRetailCafe/Bar/Restaurant MOTHER LONDON17

SITE RESEARCH Exsisting Condition and History

This project aim at renovate the Tea Building located in Shoreditch, an entertainment district within Londong. The eightstoreys building sits at the junction of Shoreditch High Street and Bethnal Green Road, along with the neighbouring Biscuit Building.TheTea building is the landmark of Shoreditch since early 1930s, served as a factory for Allied Food Lipton brand. Today it is a hub of creative industry, head quater of Mother London and hotel accomodation, Shoreditch house.ditch

MOTHER LONDON 18

The office entrance lies on the coner of Ebor Road and Redchurch Street. To differ with the Hotel, also to established a smart and modern company impression, the office is designed with glass facade. The skin is a mutifunctional covering structure made with alluminium pannels. On one hand reduced direct sunlight, on the other hand casting unique shadow into the inteiror space.

OFFICE ENTRANCE

The hotel entrance lies on the Bethnal Green Road, next to the Biscuit building. The design of the facade repects the materials and details of the original Tea building. Using bricks for the frame of the facade and decorated with Victorian style details. However, minimalism is used as the overall design language to show the sense of modernism.

The entrance of the restaurant is designed next to the corner park, facing the main road, for people to access without entering the hotel. The corner park provides a comfort waiting area for the public.

1. Hotel Reception 2. Hotel Lounge 3. Hotel Lift Lobby 4. Hotel Bar 5. Hotel Restaurant 6. Restaurant Kitchen 7. Corner Park 8. Office Front Desk 9. Office Lounge 10. Gallery 11. Toilet 12. Storage Room TECHNICAL DRAWING First Floor Floorplan 123 4 56 7 98 101211

HOTEL ENTRANCE

RESTAURANT ENTRANCE

MOTHER LONDON19URBAN ENCOUNTER Facade and entrances

MOTHER LONDON 20

MOTHER LONDON21PROGRAMME Hotel RestaurantReception Office Lobby Office Area Common Space Leisure-GymFacilities 3/F -Dance/Yoga Studio 4/F -Game Room 5/F -Swimming Pool 6/FSecond Floor floorplan Fifth Floor floorplan Private Office Open Plan Office Hotel Room Hotel RoomGym Office Kitchen Open Plan Office Hotel Room Hotel Room Meeting Room Event Space TECHNICAL DRAWING Floor plan and Exploded ISO

MOTHER LONDON 22

23 MOTHER LONDON

Original Volume Reduced Volume Greenery Space Breakout

FORM AND SPACE Development and space diagram

The building is divided in three sectors, hotel(blue), leisure space(green) and workspace(yellow). Part of the leisure space structure has been taken away to form an atrium, where the negative space will allow visual and physical connection between the hotel and workspace. Thus, the hotel and workspace has seperate circulation to ensure certain standard of security and privacy.

CommunalSpaceSpaceAccessability

MOTHER LONDON 24

TRANSPARENT SPACE Sectional Drawing The project use sustainable workplace concept, aim at building a work environment which dissolve with leisure space and city scape. The design shows a kind of transparency from north to south. Merging the surrounding context, the office space and leisure facilities as one. MOTHER LONDON25

MOTHER LONDON 26

MOTHER LONDON27

MOTHER LONDON 28

WORK PORTFOLIO

This project aim develop a Co-Living oasis neibourhood. Using the concept of “Fun Link”to design diverse scenario, create chances for conections between people, neighbourhood and life. Expressing the vision of Co-Living oasis with common prosperity, life enjoyment, vitality and joyful.

ZHENGRONG04

HEFEI BINYUTINGHU PAVILLION

ZHENGRONG HEFEI BINYUTINGHU PAVILLION31

ZHENGRONG HEFEI BINYUTINGHU PAVILLION 32

34

35

VANKE05 TAIYUAN SOUTH STATION NORTHCAMP PRIMARY SCHOOL This project used the concept of centralized design, also responding to the exsisting environment. Aim at develop a new ecological campus.

1 Sport and Assistance building Specialized Classroom and Library Classroom and Staff room Athletic field Urban green belt5432 1 2 3 4 5 3 VANKE TAIYUAN SOUTH STATION NORTH CAMP PRIMARY SCHOOL37

VANKE38 TAIYUAN SOUTH STATION NORTH CAMP PRIMARY SCHOOL

39 VANKE TAIYUAN SOUTH STATION NORTH CAMP PRIMARY SCHOOL

VANKE40 TAIYUAN SOUTH STATION NORTH CAMP PRIMARY SCHOOL

41 VANKE TAIYUAN SOUTH STATION NORTH CAMP PRIMARY SCHOOL

打造富有特色的现代新中式风格的公园化社区。鲁商万科城臻园06

43 鲁商·万科城臻园

鲁商·万科城臻园 44

鲁商·万科城臻园 45

以“双小学”“三幼”塑造书院教育价值体系。从文化荒漠到高知社区,营造学院派美学生活新样板。万科石家庄翡翠书院07 46 万科石家庄翡翠书院

48 万科石家庄翡翠书院

49 万科石家庄翡翠书院

50 万科石家庄翡翠书院

51 万科石家庄翡翠书院

52 万科石家庄翡翠书院

53 万科石家庄翡翠书院

以绿洲邻舍,容享生活为理念,通过“Fun正荣合肥滨语听湖08 人与人、人与商品、人与社区、人与生活“有趣”互联互动。Link”的多元化趣味场景链接,营造出

1 2 3 4 5 街角公园室外体育活动场集中绿地18班幼儿园商业+养老用房商业商业+物业用房6 7 1 1 2 3 4 5 5 5 6 6 6 7 7 5

56 正荣合肥滨语听湖

打造富有特色的现代新中式风格的公园化社区。正荣滁州润熙府09

米黄色真石漆 深灰色真石漆 灰色真石漆 图例: 米黄色石材 灰色铝板 1F 2F 3F 4F 5F 6F 7F 8F 9F 10F 11F 12F 13F 14F 15F 16F 17F 18F 19F 20F RF 1F 2F 3F 4F 5F 6F 7F 8F 9F 10F 11F 12F 13F 14F 15F 16F 17F 18F 19F 20F RF

Turn static files into dynamic content formats.

Create a flipbook
Issuu converts static files into: digital portfolios, online yearbooks, online catalogs, digital photo albums and more. Sign up and create your flipbook.