IDS 60804 E Portfolio

Page 1

NAME:KIRTINIRAVENDRAN

STUDENTID:0355173

SEMESTER:MARCH-JULY2023

ASSIGNMENT:ASSIGNMENT3

PROGRAM:BA(HONS)ININTERIORARCHITECTURE

TUTOR:MS.FATIMAHKHAIRI&MS.SINAI

REVISION TRACKING

DRAWING NO. SHEET NAME CURRENT REVISION DATE DESCRIPTIONISSUEDCHANGES PHASE 1 - SCHEDULE OF ACCOMODATION (SOA) 1 26/06/23ISSUED FOR CONSTRUCTIONNO AVC_DWD_KR_SOP_03 SETTING OUT PLAN (SOP) 3 10/07/23ISSUED FOR CONSTRUCTIONNO AVC_DWD_KR_FLP_03 FURNITURE LAYOUT PLAN (FLP) 3 10/07/23ISSUED FOR CONSTRUCTIONNO AVC_DWD_KR_RCP_03 REFLECTED CEILING PLAN (RCP) 3 10/07/23ISSUED FOR CONSTRUCTIONNO AVC_DWD_KR_LLP_03 LIGHTING AND LOOPING PLAN (LLP) 3 10/07/23ISSUED FOR CONSTRUCTIONNO AVC_DWD_KR_FFP_03 FLOOR FINISHES PLAN (FFP) 3 26/06/23ISSUED FOR CONSTRUCTIONNO PHASE 2 AVC_DWD_KR_SEC_02 SECTION 2 10/07/23ISSUED FOR CONSTRUCTIONNO AVC_DWD_KR_BES_PL_02 BESPOKE - PLAN 2 10/07/23ISSUED FOR CONSTRUCTIONNO AVC_DWD_KR_BES_SEC_02 BESPOKE - SECTION 2 10/07/23ISSUED FOR CONSTRUCTIONNO AVC_DWD_KR_BES_BUD_02 BESPOKE - BLOW UP DETAILS 2 10/07/23ISSUED FOR CONSTRUCTIONNO - BILL OF QUANTITIES 1 10/07/23ISSUED FOR CONSTRUCTIONNO PHASE 3 - FURNITURE, FITTINGS AND EQUIPMENT SCHEDULE 1 10/07/23ISSUED FOR CONSTRUCTIONNO -SCHEDULE OF FINISHES 1 10/07/23ISSUED FOR CONSTRUCTIONNO

SCHEDULE OF ACCOMODATION

AREA/SPACE NO. OF OCCUPANTSNO. OF ROOMS AREA OF ONE ROOM (m2) TOTAL AREA OF ROOM PUBLIC SPACES MEDITATION AREA 40 1 162.40162.40 TREEHOUSES 15 5 5.7128.55 SALES ROOM 15 1 29.0729.07 SEMI - PUBLIC SPACES TOILETS 5 2 000 25.30 CONSULTATION ROOM 10 1 21.8421.84 TREATMENT ROOM 15 1 43.2043.20 PRIVATE SPACES PERSONAL STORAGE ROOM 15 1 22.5622.56 SALES STORAGE 3 1 6.186.18

SOP GF GROUND FLOOR SETTING-OUT PLAN SCALE 1:100

UP NEW WATER LILY POND NEW TREATMENT ROOM FFL 26.100 NEW PERSONAL STORAGE ROOM NEW SALES ROOM FFL 2 .1 NEW SALES STORAGE FFL 26.100 NEW TOILET FFL 26.000 NEW CONSULTATION ROOMS FFL 26.700 KOI POND STAIR 3 FFL 26.100 FFL 26.100 50 up FFL -300 8260 3243 1154 97 1878 1571 1 2531 2550 288 2798 6825 1475 2825 1447 2458 SFL -500 SFL -500 584 429 1475 4549 4002 1 729 72 1065 6345 8835 723 1081 745 1475 01 W 1543 1700 2121 721 1062 P1 356 02 D 01 W 02 W 02 W 03 W 01 D 3151 2085 1750 538 03 D 3335 1571 04 W FFL 26.100 SFL -500 FFL 26.100 SFL -500 FFL 26.100 SFL -500 FFL 26.100 SFL -500 P1 P1 W2 W2 P3 1101 1571 1085 1740 1409 57 831 04 4879 P1 P1 P1 P1 P1 FFL 26.100 FFL 26.100 FFL 26.100 FFL 26.100 up EXISTING 5MM THK. TEMPERED LAMINATED GLASS STAIRCASE WITH STEEL HANDRAIL TO BE REMAINED THREAD= 400MM RISER=110MM P2 P2 P2 P2 P3 P3 P3 EXISTING GLASS WALLS TO BE DEMOLISHED 1572 2197 988 2013 977 2201 2008 989 987 1056 1000 1086 896 1000 2034 1658 1571 1312 2147 7 721 2600 835 2034 3753 1116 1167 1000 1000 3417 1742 1000 1049 3285 3285 1138 1496 3248 1256 5750 1311 2400 1540 1248 3776 +200 +200 +200 +200 5521 1537 H DDEN LINE IND CA E ROOF STRUCTRURE A BOV D D EN L INE ND C E ROOF STRUCTURE A BO V E D D EN L INE IND CATE OOF STRUCTURE A B O V H DDEN L NEINDCATE R OF STRUCTURE AB V E DDEN LINE NDIC TE ROOFSTRUCTURE ABO V 1368 1368 1355 1355 PROPOSED BUILT-IN PLATFORM 05 D 05 D 922 3500 9000 4424 1 B1 C C1 D D1 E B A1 A 2 3 4 5 6750 2366 6750 2250 18000 4500 4502 4500 4500 4500 4500 4501 4506 36000 EXISTING WALLS TO BE DEMOLISHED EXISITING GLASS WALL TO BE DEMOLISHED EXISTING GLASS WALLS TO BE DEMOLISHED SYMDESCRIPTION WALL AND PARTITION NEW FULL HEIGHT INTERNAL BRICK WALL IN PAINT FINISH 5MM THK. DOUBLE TEMPERED GLASS WALL TO MANUF'S DETAIL NEW INTERNAL CURVED BRICKWALL P1 SYMDESCRIPTION WINDOW LEGEND 10MM THK SINGLE PANEL WINDOW WITH BLACK TINT TO MANUF'S DETAIL 10MM THK SINGLE PANEL WINDOW WITH BLACK TINT TO MANUF'S DETAIL 15MM THK. CURVED TEMPERED GLASS TO MANUF'S DETAIL 15MM THK. CURVED TEMPERED GLASS TO MANUF'S DETAIL 01 W SYMDESCRIPTION DOOR LEGEND ALUMINUM FRAME WITH 45MM THK LOUVERED WOODEN SLIDING DOOR TO MANUF'S DETAIL 2000MM (L) 2100MM (H) LOUVERED TIMBER SLIDING DOOR WITH SMOOTH ROLLER TO MANUF'S DETAIL 800MM (L) X 2100MM (H) COMPOSITE DOOR PAINT AT BOTH SIDES TO DESIGNER'S APPROVAL 4000MM (L) 2100MM (H) LOUVERED TIMBER SLIDING DOOR WITH SMOOTH ROLLER TO MANUF'S DETAIL 600MM (L) 2100MM (H) POLYMER COATED DOOR TO MANUF'S DETAIL 01 D SYMDESCRIPTION DEMOLITION LEGEND EXISTING BRICKWALL NEW EXTERNAL WALL (200MM) NEW INTERNAL WALL (150MM) P2 P3 02 W 03 W 04 W 02 D 03 D 04 D 05 D
AVC_DWD_KR_SOP_02 MS. SIN AI

FLP GF GROUND FLOOR FURNITURE LAYOUT PLAN SCALE 1:100

UP WATER LILY POND TREATMENT ROOM FFL 26.100 PERSONAL STORAGE ROOM SALES ROOM FFL 26.100 SALES STORAGE FFL 26.100 CONSULTATION ROOMS FFL 26.700 KOI POND STAIR 3 FFL 26.100 FFL 26.100 50 up FFL -300 SFL -500 SFL -500 02 D 01 D 03 FFL 26.100 SFL -500 FFL 26.100 SFL -500 FFL 26.100 SFL -500 FFL 26.100 SFL -500 04 D FFL 26.100 FFL 26.100 FFL 26.100 FFL 26.100 75MM THK. MELAMINE-COATED PARTITION WALL RECESSED SEATING AREA COVERED W PVC LEATHER FABRIC PROPOSED CUSTOMIZED 500M DEPTH FIBREGLASS WATERPOND TO MANUF'S DETAIL 50MMØ INDOOR STAINLESS STEEL HANDRAIL TO MANUF'S DETAIL CUSTOMIZED NON-SLIP SUSPENDED TEMPERED GLASS FLOOR TO BE INSTALLED PANEL-BY-PANEL TO MANUF'S DETAIL CUSTOMIZED NON-SLIP SUSPENDED TEMPERED GLASS FLOOR TO BE INSTALLED PANEL-BY-PANEL TO MANUF'S DETAIL 10MM THK SINGLE PANEL WINDOW WITH BLACK TINT TO MANUF'S DETAIL 15MM THK. CURVED TEMPERED GLASS TO MANUF'S DETAIL 800MM (W) X 2100MM (H) COMPOSITE DOOR PAINT AT BOTH SIDES TO DESIGNER'S APPROVAL 10MM THK SINGLE PANEL WINDOW WITH BLACK TINT TO MANUF'S DETAIL 15MM THK. CURVED TEMPERED GLASS TO MANUF'S DETAIL EXISTING 5MM THK. TEMPERED LAMINATED GLASS STAIRCASE WITH STEEL HANDRAIL TO BE REMAINED THREAD= 400MM RISER=110MM 5MM THK DOUBLE TEMPERED GLASS TO MANUF'S DETAIL 5MM THK DOUBLE TEMPERED GLASS TO MANUF'S DETAIL up 03 W 01 W 01 W 02 W 02 W 04 W BF5 BF3 BF2 BF6 BF7 BF4 BF1 BF3 LF1 LF1 LF2 LF2 LF2 LF3 LF3 BF8 BF9 BF10 BF10 BF11 BF12 +200 +200 +200 +200 H DDEN LINE IND CA ROOF TRUCTRURE A BOV E D DEN L NE ND CA ROOF STRUCTURE A BO V E H D D E N L INE ND CATE ROOF STRUCTURE A B O H DDEN L NE NDCA E OOF STRUCTURE ABO V E DDEN LINEINDCAT ROOFSTRUCTURE B O +50+50+50+50+50+50+50 +50 +50 +50 +50 +50 +50 +50 +50 +50 +50 +50 +50 +50 NEW TOILET FFL 26.000 05 D 05 1 B1 C C1 D D1 E B A1 A 2 3 4 5 6750 2366 6750 2250 18000 4500 4502 4500 4500 4500 4500 4501 4506 36000 BF10 BF10 PROPOSED BUILT-IN PLATFORM SYMDESCRIPTION QTY LOOSE FURNITURE: CHAIR/SEATS CHAIR UPHOLSTERED IN BONDED BLACK LEATHER AND PEWTER FINISH 2 PINK IVORY PANEL WITH GLOSSY LAMINATE ATTACHED TO ALUMINIUM BRACKET COFFEE TABLE 3 MODERN LEATHER OFFICE CHAIR2 SYMDESCRIPTION QTY BUILT-IN FURNITURE: CABINET AND TABLE RECESSED SEAT FABRICATED WITH PVC LEATHER 1 PLYWOOD BENCH UPHOLSTERED IN PINK COTTON CANVAS 1 CUSTOM LAMINATED WOODEN SHELF CABINET WITH TRANSLUCENT GLASS DOORS 2 INDOOR LANDSCAPE TOPOGRAPHY INSTALLATION 1 CUSTOM ALUMINUM SHELVING UNIT WITH PRIVACY GLASS DOORS 1 2000MM (L) TIER BOLTLESS STEEL RACK 1 1600 MM (L) TIER BOLTLESS STEEL RACK 1 SOLID WOOD LAMINATED RECEPTIONIST TABLE 1 SOLID WOOD LAMINATED CASHIER TABLE1 SOLID WOOD SUSPENDED SHELF4 ALUMINUM CIRCULAR DISPLAY SHELF1 CUSTOM ORGANIC SHAPED DISPLAY SHELF ATTACHED TO WALL 1 BF1 BF2 BF3 BF4 BF5 BF6 BF7 BF8 BF9 BF10 BF11 BF12 LF1 LF2 LF3
AVC_DWD_KR_FLP_03 MS. SIN AI

FLP GF GROUND FLOOR - REFLECTED CEILING PLAN SCALE 1:150

UP WATER LILY POND NEW TREATMENT ROOM CH 29.100 NEW SALES ROOM CH 2.900 NEW SALES STORAGE CH 2.900 NEW CONSULTATION ROOM CH 2.900 B1 C C1 D D1 E B A1 A KOI POND STAIR 3 1 2 3 4 5 CH 2.900 4500 4500 4500 4500 4500 4500 4500 4500 35998 6750 2250 6750 2250 18000 CH 2.900 50 up CH 2.900 02 D 01 D 03 CH 2.900 SFL 3.100 CH 2.900 CH 2.900 04 D CH 6.000 FFL 26.100 FFL 26.100 up H DDEN LINE IND CA ROOF STRUCTRURE A BO E H D EN L NE ND CA ROOF STRUCTURE A B O V H D D EN L INE ND CATE ROO STRUCTURE A B O H DDEN L NE NDCA E OOF STRUCTURE ABO V E DDEN LINEINDCAT ROOF STRUCTURE ABO NEW TOILET CH 29.100 05 D 05 SFL 3.100 SFL 3.100 SFL 3.100 CH 29.100 SFL 100 CH 2.900 NEW PERSONAL STORAGE ROOM NEW MEDITATIVE AREA NEW TREEHOUSES CH 3.500 CH 2.900 CH 3.100 CH 3.100 WIFI A/C A/C A/C A/C A/C A/C A/C EL AREA 14m AREA 21.84m AREA 2 5 m AREA 6.18m AREA 29.07m AREA 4 2 m AREA 25.30m AREA 1 m AREA 28.55m A/C EL EL EL EL EL EL EL EL EL WIFI WIFI CM1 CM2 CM3 CM4 CM3 SYMDESCRIPTION CEILING MATERIAL LEGEND ALUMNIUM BAFFLE CEILING FACADE CUSTOM LINEAR BAFFLE CEILING WITH OPENINGS FOR LIGHTING CUSTOM TRANSLUCENT FIBRE FALL CEILING PLASTER CEILING SYMDESCRIPTION QTY M&E LEGEND FIRE DETECTOR 4 CENTRALISED AIR CONDITIONING 8 EMERGENCY EXIT LIGHT 10 WIFI ROUTER 4 SYMDESCRIPTION QTY LIGHTING LEGEND 300mm DOWNLIGHT 22 200mm PENDANT LIGHT 2 400mm RECESSED LIGHTING 4 550mm RECESSED LIGHTING 11 CM1 CM2 CM3 CM4 A/C EL WIFI

FLP GF GROUND FLOOR - LIGHTING AND LOOPING PLAN SCALE 1:150

UP WATER LILY POND NEW TREATMENT ROOM CH 29.100 NEW SALES ROOM CH 2.900 NEW SALES STORAGE CH 2.900 NEW CONSULTATION ROOM CH 2.900 B1 C C1 D D1 E B A1 A KOI POND STAIR 3 1 2 3 4 5 CH 2.900 4500 4500 4500 4500 4500 4500 4500 4500 35998 6750 2250 6750 2250 18000 CH 2.900 50 up CH 2.900 02 D 01 D 03 D CH 2.900 SFL 3.100 CH 2.900 CH 2.900 04 D CH 6.000 FFL 26.100 FFL 26.100 up 03 W 01 W 01 W 02 W 02 W H DDEN LINE IND CAT ROOF STRUCTRURE ABO E H D DEN L NE ND CA ROOF STRUCTURE A BO V H D D EN L INE ND CATE ROO STRUCTURE A B O H DDEN LINE NDICA E OOF STRUCTURE A O V E DDEN LINEINDCAT ROOF STRUCTURE ABO NEW TOILET CH 29.100 05 D 05 SFL 3.100 SFL 3.100 SFL 3.100 CH 29.100 SFL 3.100 CH 2.900 NEW PERSONAL STORAGE ROOM NEW MEDITATIVE AREA NEW TREEHOUSES CH 3.500 CH 2.900 CH 3.100 CH 3.100 SYMDESCRIPTION QTY LIGHTING LEGEND 300mm DOWNLIGHT 22 200mm PENDANT LIGHT 2 400mm RECESSED LIGHTING 4 550mm RECESSED LIGHTING 11 SINGLE GANG SWITCH 4 DOUBLE GANG SWITCH 5 DOUBLE DIMMER SWITCH 3

FFP GF GROUND FLOOR - FLOOR FINISHES PLAN SCALE 1:150

UP WATER LILY POND TREATMENT ROOM FFL 26.100 PERSONAL STORAGE ROOM SALES ROOM FFL 26.100 SALES STORAGE FFL 26.100 TOILETS FFL 26.000 CONSULTATION ROOM FFL 26.700 KOI POND STAIR 3 FFL 26.100 FFL 26.100 up FFL -300 SFL 0 SFL -500 FFL 26.100 SFL -500 FFL 26.100 SFL -500 FFL 26.100 SF 0 FFL 26.100 SFL -500 FFL 26.600 FFL 26.100 FFL 26.100 up 02 W 02 W SUSPENDED GLASS FLOOR 5M SUSPENDED GLASS FLOOR 5M SUSPENDED GLASS FLOOR 5M FIBREGLASS WATERPOND 14M WHITE EPOXY 22.56M MARBLE MOSAIC 29.07M WHITE EPOXY 6.18M HEXAGON MOSAIC 25.34M BIANCO DOLOMITE TILE 43.20M CERAMIC TILE 21.84M MEDITATIVE AREA ARTIFICIAL CARPET GRASS 162.40M TREEHOUSES TIMBER LAMINATE FLOORING 28.55M 1256 1311 1311 2400 1540 2603 1248 3776 5521 1537 1355 1355 PROPOSED BUILT-IN PLATFORM PROPOSED BUILT-IN PLATFORM 1447 2458 84 429 9 2 3 723 1081 745 1571 1050 1571 1085 831 1572 2197 988 2013 977 2201 2008 989 987 3468 1000 1086 896 1000 2034 1658 1571 1312 2147 957 721 835 2034 1167 1000 1000 1049 1445 3285 921 921 +200 +200 +200 +200 +50+50+50+50+50+50+50 +50 +50 +50 +50 +50 +50 +50 +50 +50 +50 +50 +50 +50 1496 3248 5750 2603 721 918 3500 729 723 3285 1138 9000 4424 1 B1 C C1 D D1 E B A1 A 2 3 4 5 6750 2366 6750 2250 18000 4500 4502 4500 4500 4500 4500 4501 4506 36000 SYMDESCRIPTION QTY FLOOR FINISHES CUSTOMIZED NON-SLIP SUSPENDED TEMPERED GLASS FLOOR TO BE INSTALLED PANEL-BY-PANEL TO MANUF'S DETAIL 5m2 PROPOSED CUSTOMIZED 500M DEPTH FIBREGLASS WATERPOND TO MANUF'S DETAIL 14m2 3MM THK WHITE EXPOXY FINISHES11.18m2 3MMTTHK MARBLE MOSAIC IN POLISHED FINISH 5m2 3MM THK WHITE MARBLE HEXAGON MOSAIC TILE 25.34m2 BIANCO DOLOMITE LYNX POLISHED MARBLE MOSAIC TILE 43.20 m2 BEIGE MATT CERAMIC TILE21.84m2 ARTIFICIAL CARPET GRASS194.6m2
AVC_DWD_KR_FFP_03
E D1 D C1 C B1 B A1 A CM2 FF1 FF2
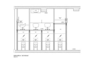
SEC GF SECTION A-A SCALE 1:150

CUSTOM PROPOSED

CONCRETE BUILT-IN

PLATFORMS C/W COMPOSITE WOOD VENEER PANELS

50MM (THK) x 900MM (H)

CIRCULAR GLASS PANEL WITH

Ø 25MM STEEL RAILING TO MANUF'S DETAIL

CUSTOM CIRCULAR WOODEN

STAIRS C/W WOOD VENEER

PANEL (RISE : 180MM, RUN : 225MM)

Ø50MM CIRCULAR STAINLESS STEEL COLUMN WITH DARK GREY MATTE POWDER COATING

2.5MM (THK) NON-SLIP PVC LEATHER FLOORING PANEL TO CUSTOM SIZES

400MM (H) x 50MM (THK)

CUSTOM SHAPED PLYWOOD PANEL C/W WATERPROOF EPOXY FINISH

SCALE 1:75

+180 +180 +180 +180 +180 +180 +180 +180 +180 +180 +180 +180 +180 + 180 + 180 +180 +180 +180 + 180 +180 H I D D E N L I N E I N D C A T E S T R U C T R U R E A B O V E H I D D E N L I N E I N D C A T E S T R U C T R U R E A B O V E H I D D E N L I N E I N D I C A T E S T R U C T R U R E A B O V E FFL +0.40 FFL +0.58 FFL : +1.12 FFL : +1.48 FFL : +2.2 FFL : +3.28 FFL : +2.7 FFL : +3.42 FFL : +3.06
PL BES BESPOKE PLAN
SCALE 1:50 EL BES BESPOKE ELEVATION
RENDERED BESPOKE VIEW

50MM (THK) x 900MM (H) CIRCULAR GLASS PANEL WITH Ø 25MM STEEL RAILING TO MANUF'S DETAIL

2.5MM (THK) NON-SLIP PVC LEATHER FLOORING PANEL TO CUSTOM SIZES

CUSTOM CIRCULAR WOODEN STAIRS C/W WOOD VENEER PANEL (RISE : 180MM, RUN : 225MM)

CUSTOM PROPOSED CONCRETE BUILT-IN PLATFORMS C/W COMPOSITE WOOD VENEER PANELS

Ø50MM CIRCULAR STAINLESS STEEL COLUMN WITH DARK GREY MATTE POWDER COATING

400MM (H) x 50MM (THK) CUSTOM SHAPED PLYWOOD PANEL C/W WATERPROOF EPOXY FINISH

DETAIL A DETAIL B
SEC BES BESPOKE - SECTION A-A SCALE 1:50

DET-A BES BESPOKE - DETAIL A SCALE 1:10

CUSTOM PROPOSED CONCRETE BUILT-IN PLATFORMS C/W COMPOSITE WOOD VENEER PANELS

50MM (THK) x 900MM (H) CURVED GLASS PANEL WITH Ø 25MM STEEL RAILING TO MANUF'S DETAIL

CUSTOM CIRCULAR WOODEN STAIRS C/W WOOD VENEER PANEL (RISE : 180MM, RUN : 225MM)

2.5MM (THK) NON-SLIP PVC LEATHER FLOORING PANEL TO CUSTOM SIZES

20mm THK. TIMBER STRIPS (SMOKE OAK) C/W TIMBER NOSING TO MANUF'S DETAIL AT THREAD

30mm (W) X 5mm THK. MS PLATE TO BE EMBEDDED INTO RC STAIRCASE

Ø50MM CIRCULAR STAINLESS STEEL COLUMN WITH DARK GREY MATTE POWDER COATING

UNDERSIDE OF STAIRCASE C/W PLASTER & PAINT FINISH FROM NIPPON PAINT FRIAR TUCK (CODE : N 1869 A)

DET-B BES BESPOKE - DETAIL B

SCALE 1:5

BF1
LF2 P3 P1 W2
CM2 FF7 AYURVIRYA CENTRE - CONSULTATION ROOM

SCHEDULE OF FINISHES OF AYURVIRYA CENTRE

CODE IMAGE AREA (SQM) LOCATION

1.1 FLOOR FINISHES

FF1

DESCRIPTIONSUPPLIER

5 GROUND FLOORWALKWAYS

CUSTOMIZED NON-SLIP SUSPENDED TEMPERED GLASS FLOOR TO BE INSTALLED PANEL-BY-PANEL TO MANUF'S DETAIL

H M Glass Sdn Bhd Lot 1222, Jalan KPAT 6, Kawasan Perindustrian Kampung Baru Ampang, 68000 Ampang, Selangor, Malaysia.

FF214 WATER LILY POND

PROPOSED CUSTOMIZED 500M DEPTH FIBREGLASS WATERPOND TO MANUF'S DETAIL

Chemrex Corporation Sdn Bhd (667801-H) No. 4, Jalan CJ 1/6, Kawasan Perusahaan Cheras Jaya, 43200, Cheras, Selangor, Malaysia

FF311.18

PERSONAL STORAGE ROOM and SALES STORAGE 3MM THK WHITE EXPOXY FINISHES

Recon Topseal Sdn. Bhd. No. 59G, Jalan PJS 1/50, Taman Petaling Utama, 46150, Petaling Jaya, Selangor, Malaysia

FF4

5 SALES ROOM3MMTTHK MARBLE MOSAIC IN POLISHED FINISH

Stoneace Industries Sdn Bhd Lot 7949, Jalan Sungai Buloh, Kampung Bukit Cherakah, 40150 Shah Alam, Selangor Darul Ehsan. Malaysia

FF5

25.34 TOILETS3MM THK WHITE MARBLE HEXAGON MOSAIC TILE

Leo Ceramiko Sdn Bhd No.25, Jalan Astaka U8/84A, Bukit Jelutong IParc, 40150 Shah Alam Selangor

FF643.20

TREATMENT ROOMBIANCO DOLOMITE LYNX POLISHED MARBLE MOSAIC TILE

Leo Ceramiko Sdn Bhd No.25, Jalan Astaka U8/84A, Bukit Jelutong IParc, 40150 Shah Alam Selangor

FF7

21.84

CONSULTATION ROOMBEIGE MATTE CERAMIC TILE

Leo Ceramiko Sdn Bhd No.25, Jalan Astaka U8/84A, Bukit Jelutong IParc, 40150 Shah Alam Selangor

FF8194.60

YOGA AND MEDITATION AREA

ARTIFICIAL CARPET GRASS

Konzept Garden Showroom Lot 45, Jalan Sg Buloh, Kota Damansara 47000 Selangor

1.2 WALL FINISHES

W0122.56

PERSONAL STORAGE ROOM INTERIOR NIPPON PAINT Slate Crest (Code: BGG 1807 D)

NIPPON PAINT (M) SDN. BHD. (196701000578) Lot I-17, Taman Perindustrian Subang Utama, Jalan SU4, 40300 Shah Alam, Malaysia

W0221.84

1.3 CEILING FINISHES

CF1

22.56

CONSULTATION ROOM INTERIOR NIPPON PAINT ALPINE PINK (CODE : R 1289 D)

NIPPON PAINT (M) SDN. BHD. (196701000578) Lot I-17, Taman Perindustrian Subang Utama, Jalan SU4, 40300 Shah Alam, Malaysia

PERSONAL STORAGE ROOM INTERIOR NIPPON PAINT Harbour Shadow (Code: BGG 1808 T)

NIPPON PAINT (M) SDN. BHD. (196701000578) Lot I-17, Taman Perindustrian Subang Utama, Jalan SU4, 40300 Shah Alam, Malaysia

CF2

21.84

CONSULTATION ROOM INTERIOR NIPPON PAINT ZINNIA SCENT (Code: R 1284 P)

NIPPON PAINT (M) SDN. BHD. (196701000578) Lot I-17, Taman Perindustrian Subang Utama, Jalan SU4, 40300 Shah Alam, Malaysia

FIXTURE, FINISHES AND EQUIPMENT SCHEDULE

Econlite (M) Sdn Bhd 23, Jalan PJS

LE-908SL EXIT / KELUAR SIGN FITTING

ROOM, TREATMENT ROOM, PERSONAL STORAGE ROOM, SALES ROOM

AX5400 DUAL-BAND GIGABIT WI-FI 6 ROUTER

TPLINK DISTRIBUTION MALAYSIA SDN BHD

Lot 3.01 - Lot 3.02, 3rd Floor, Podium Block, Plaza Berjaya, 12, Jalan Imbi 55100 Kuala Lumpur

DECASA LIGHTING SDN BHD 38, JALAN SURIA PUCHONG 1, PUSAT PERNIAGAAN SURIA PUCHONG, 47110 PUCHONG, SELANGOR,

CODE PICTURES QTY LOCATION SPECIFICATIONSSUPPLIER PRICE/UNIT (RM) GROUND FLOOR ME1 4 CONSULTATION ROOM, TREATMENT ROOM, PERSONAL STORAGE ROOM, SALES ROOM FIRE DETECTOR FIRE FIGHTER indsutry SDN BHD. 1A, 10th Mile, Federal Highway, 47301 Petaling Jaya, Malaysia 90 ME2 8 CONSULTATION ROOM, TREATMENT ROOM, PERSONAL STORAGE ROOM, SALES ROOM, YOGA AND MEDITATIVE AREA CENTRALIZED AIR CONDITIONER Daikin Malaysia Sales & Service Sdn. Bhd. 2023 TB-L22, Level 22, Tower B, Plaza
Jalan Kemajuan, Seksyen
Petaling Jaya, Selangor Darul Ehsan, Malaysia 1900 ME310
ROOM,
ROOM,
STORAGE ROOM, SALES ROOM, YOGA AND MEDITATION AREA, TOILET
33, No. 1,
13,46200,
CONSULTATION
TREATMENT
PERSONAL
7/17, Bandar Sunway,
Subang Jaya, Selangor Darul Ehsan, Malaysia 50 ME44 CONSULTATION
Syarikat
47500
549 L01 22 PERSONAL STORAGE ROOM, SALES ROOM, YOGA AND MEDITATION AREA, TOILET 300mm DOWNLIGHT
20 L02 2 CONSULTATION ROOM 200mm PENDANT LIGHT 60 L03 4TREATMENT ROOM 400mm RECESSED LIGHTING 50 L04 11 AYURVIRYA WALKWAY AND MEDITATION AREA 550mm RECESSED LIGHTING 200
MALAYSIA.
01 INDIVIDUAL PRECEDENT STUDIES REVISION TRACKING 24 APRIL 2023 - NO 03 - NO - NO - NO - NO MEZZANINE FLOOR - FURNITURE LAYOUT PLAN BESPOKE DETAILS - SECTION A-A INDIVIDUAL UBBL & FIRE REQUIREMENT SCHEDULE OF ACCOMMODATION DOOR - WINDOW SCHEDULE SCHEDULE OF FINISHES FIXTURE, FITTINGS AND EQUIPMENT SCHEDULE INDIVIDUAL REFLECTION - NO - NO - NO - NO - NO DRAWING LIST SHEET NAME REVDATE DESCRIPTIONISSUE KR_DWD_AS2_IE_03 KR_DWD_AS2_BDS_02 KR_DWD_AS2_DWS_02 KR_DWD_AS2_FLP_03 03 03 01 02 02 02 02 01 KR_DWD_AS2_BDPFE_03 BESPOKE DETAILS - PLAN AND FRONT ELEVATION - NO 02 22 MAY 2023 22 MAY 2023 KR_DWD_AS2_SEC_02 MEZZANINE FLOOR - INTERNAL ELEVATION MEZZANINE FLOOR - SECTION A-A - NO 02 22 MAY 2023 22 MAY 2023 22 MAY 2023 22 MAY 2023 22 MAY 2023 22 MAY 2023 22 MAY 2023 22 MAY 2023 22 MAY 2023
KR_DWD_AS2_IPS_01
KR_DWD_AS2_IUF_01 KR_DWD_AS2_SOA_02 KR_DWD_AS2_SOF_02 KR_DWD_AS2_FFE_02 KR_DWD_AS2_INDEF_01

MINDVALLEY HEADQUARTERS

LOCATION: Level 23 A, Menara UOA Bangsar, Kuala Lumpur, Malaysia

ARCHITECTS: PCL Architect in association with Idea Workshop

Sdn Bhd

YEAR: 2018

AREA: 330 sqm

Inspired by the jungle gym playscape and Gaudi’s Sagrada Familia, the new Mindvalley Creative Office in Kuala Lumpur features a multileveled workspace bathed in polychromatic light that shifts throughout the day. Deemed the “Temple of Light”, this workspace’s design is an architectural exercise on Pleochroism (an optical phenomenon in which the colour of a substance shifts when observed at different angles) and its dynamics with user experience as well as productivity. Use of 3M dichroic film across the office-wide, multilevel steel-and-glass framed structure reflects a contemporary take on Sagrada Familia’s stained glass, combined with the playfulness of a jungle gym. Composed of both quiet and contained spaces to suit user needs, complemented with plant walls, and suffused with natural, iridescent light, the workspace physically demonstrates how architecture stimulates anthropological interaction dynamics with its environment.

PLAN MATERIALS SECTION
FINISHES WOOD GLASS STEEL
3M DICHROIC GLASS

FLOOR FINISHES LEGEND

FLP

MEZZANINE FLOOR FURNITURE LAYOUT PLAN SCALE 1:150

DUCT DUCT ..\..\..\Downloads\Black & White Minimalist Business Logo.png ..\..\..\Downloads\A letter tech logo.png
1 DFGH E DUCT 150 B A REFER TO DRAWING KR_DWD_BD_01 VOID 1 IE 1 IE SEC A A SEC W2 DN FURNITURE LEGEND CODEDESCRIPTION QUANTITY OFFICE CHAIR WITH ARMREST 400 mm (L) x 370 mm (W) 37 2250MM X 850MM STEEL BENCH 1900MM X 900MM SINGLE BED 4 4250MM(L) X 2100MM (W) CUSTOM MADE U SHAPED COUCH 1340 MM (L) X 600 MM (W) WOODEN TABLE TOP WITH METAL FRAME WORK DESK 23 1340 MM (L) X 600 MM (W) WOODEN TABLE TOP WITH METAL FRAME WORK DESK 2 L1 T4 DOOR AND WINDOW LEGEND CODEDESCRIPTION QUANTITY 1200mm (W) x 2000mm (H )x 50mm (THK) SINGLE PANEL CAVITY SLIDING DOOR WITH DICHROIC WINDOW PANEL 2 AWING WINDOW 2 D4 W1 T5 D4 D4 D1 T4 L1 T4 L1 T4 T4 T4 T5 T5 T4 T4 T4 T4 T4 T4 T4 T4 T4 L1 L1 L1 L1 L1 L1 L1 T4 L6 W1 W1 W7 W5 W6 DUCT FFL +2.950 AREA 11.4m 2 WORK AREA AREA 14.2m WORK AREA 2 AREA 14.5m WORK AREA 3 FFL +2.950 AREA 9.7m 2 WORK AREA 4 AREA 15.2m WORK AREA 5 AREA 13.6m WORK AREA 6 AREA 13.0m 2 WORK AREA 7 AREA 15.2m 2 WORK AREA 8 AREA 11.6m WORK AREA 9 FFL +2.850FFL +2.950 FFL +2.850FFL +2.950FFL +2.950FFL +2.850FFL +2.950 AREA 6.4m QUIET POD 4 FFL +3.100 AREA 6.4m QUIET POD 3 FFL +3.100 AREA 6.4m QUIET POD 1 FFL +3.100 AREA 6.4m QUIET POD 2 FFL +3.100 AREA 12.8m CHILL OUT AREA FFL +3.100 AREA 5.4m DISCUSSION ROOM 4 FFL +3.100 L6 L7 L8 2 3 4 DN DNDN VOID
HATCHDESCRIPTION 12MM BALINESE TEAK RIO LAMINATE FLOORING PLANK 25 MM GREY CARPET TILES CPT 303 C

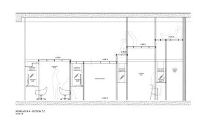
MEZZANINE FLOOR - SECTION A-A

FLP SCALE 1:50

..\..\..\Downloads\Black & White Minimalist Business Logo.png ..\..\..\Downloads\A letter tech logo.png
WORK AREA 6 AREA : 15.2m 2 FFL +2.950 WALKWAY STAIRS
CFL 5.000 FFL 2.800 1 2 3 4 VOID L1 T4
WALKWAY

FLP

MEZZANINE FLOOR - INTERNAL ELEVATION SCALE 1:100

CFL 5.000
FFL 2.800 WORK AREA 1 AREA 11.4m 2 FFL +2.950 WORK AREA 2 AREA 14.2m 2 FFL +2.850 WORK AREA 3 AREA 14.5m 2 FFL +2.950 WORK AREA 4 AREA 9.7m 2 FFL +2.950 WORK AREA 5 AREA 15.2m 2 FFL +2.850 WORK AREA 6 AREA : 15.2m 2 FFL +2.950 DISCUSSION ROOM AREA 15.2m 2 FFL : +3.100 WORK AREA 7 AREA : 13.0m 2 FFL +2.950 WORK AREA 8 AREA 15.2m 2 FFL +2.950 WORK AREA 9 AREA 11.6m 2 FFL +2.950 L1 L1 T4 T4 L1 L1 T4 T4 L1 T4 L1 T4 L1 T4 L1 L1 T4 T4 L1 L1 T4 T4 L1 L1 T4 T4 L1 T4 L1 T4 DFGH E B A C

50MM THK STAINLESS STEEL SHELF BEAM

100MM THK GALVANISED STEEL BEAM FOR HORIZONTAL SUPPORT

100MM x 100MM UNIVERSAL GALVANIZED STEEL COLUMN

50MM THK STAINLESS STEEL SHELF BEAM

SINGLE GLAZED SAFE TEMPERED CLEAR GLASS PANEL WITH DICHROIC FILM

DOUBLE GLAZED SAFE TEMPERED CLEAR GLASS PANEL WITH DICHROIC FILM

A BD-S ..\..\..\Downloads\Black & White Minimalist Business Logo.png ..\..\..\Downloads\A letter tech logo.png A BD-S BD BESPOKE DETAILS - PLAN SCALE 1:25 FFL : 1.150 BD BESPOKE DETAILS - FRONT ELEVATION SCALE 1:25 FIXED L1 T4

FFL : 1.150

DETAIL A

50MM THK STAINLESS STEEL SHELF BEAM

100MM THK GALVANIZED STEEL BEAM FOR HORIZONTAL SUPPORT

100MM x 100MM UNIVERSAL GALVANIZED STEEL COLUMN

50MM THK STAINLESS STEEL SHELF BEAM

SINGLE GLAZED SAFE TEMPERED CLEAR GLASS PANEL WITH DICHROIC FILM

DOUBLE GLAZED SAFE TEMPERED CLEAR GLASS PANEL WITH DICHROIC FILM

100MM x 100MM

UNIVERSAL GALVANIZED STEEL COLUMN

BD

DETAIL B

BESPOKE DETAILS - SECTION A-A

SCALE 1:25

100MM x 100MM

STAINLESS STEEL L-BRACKET

BESPOKE DETAILS - DETAIL A

SCALE 1:1

100MM x 100MM UNIVERSAL GALVANIZED STEEL COLUMN

25MM THK HSFG BOLT BOLTED TO FLOOR BEAM

5MM GROUTING FOR JOINERY

25MM THK STAINLESS STEEL BASE PLATE

25MM THK HSFG BOLT BOLTED TO FLOOR BEAM

BESPOKE DETAILS - DETAIL B

SCALE 1:1

..\..\..\Downloads\Black & White Minimalist Business Logo.png ..\..\..\Downloads\A letter tech logo.png

SCHEDULE OF ACCOMMODATION

AREAS NUM. OF OCCUPANTSNUM. OF ROOMSAREA OF THE ROOM (m

)

MEZZANINE FLOOR
1.FILM STORE ROOM 3.CONSULTING ROOM 4.SERVER ROOM 5.UTILITY ROOM 6.VIP LUXURY LOUNGE 7.WORKING DESK AREA 8.MEDITATION ROOM 1 9.MEDITATION ROOM 2 10.MEDITATION ROOM 3 11.MEDITATION ROOM 4 12.DISCUSSION POD 13.HOT DESK AREA GROUND FLOOR 1.DISCUSSION ROOM 4 2.WORK DESK AREA 1 3.WORK DESK AREA 2 4.WORK DESK AREA 3 5.WORK DESK AREA 4 6.WORK DESK AREA 5 7.WORK DESK AREA 6 8.WORK DESK AREA 7 9.WORK DESK AREA 8 10.WORK DESK AREA 9 11 6.32m2 2.SKYPE ROOM & MEETING ROOM
2
TOTAL
ROOM (m2) 6.32m2 31 7.08m2 7.08m2 317.5m2 7.5m2 1 1 5 19 1 1 1 1 1 23 1 1 1 1 1 1 1 1 3 3 TOTAL BUILT-UP SPACE OF GROUND FLOOR 124.54m2 3.19m2 3.19m2 6.7m2 6.7m2 9.45m2 9.45m2 10.8m2 32.4m2 5.79m2 5.79m2 9.01m2 27.03m2 1.88m2 5.64m2 5.79m2 5.79m2 5.71m2 5.71m2 1.901m2 1.90m2 105.3m2 TOTAL BUILT-UP SPACE OF THE OFFICE 229.84m2 TOTAL BUILT-UP SPACE OF MEZZANINE FLOOR 11 33 35 1 1 5 19 1 1 1 4 3 5 3 3 5 4 8m2 8m2 7.77m2 7.77m2 6.32m2 6.32m2 6.52m2 6.52m2 7.73m2 7.73m2 5.2m2 5.2m2 8.43m2 8.43m2 7.82m2 7.82m2 7.12m2 7.12m2 1.72m2 1.72m2 11.QUIET POD 1 12.QUIET POD 2 1 1 1 15.CHILL OUT AREA 13.QUIET POD 3 1 1 1 4 1 6.4m2 6.4m2 6.4m2 6.4m2 6.4m2 6.4m2 14.QUIET POD 4 1 1 6.4m2 6.4m2 12.8m2 12.8m2
AREA OF THE
LOCATION D1 D. SIZE (mm) SPECIFICATION OPENING S. 1050mm (L) ACCESSORIES DOOR CODE GROUND FLOOR - SKYPE BOOTH & MEETING ROOM - CONSULTING ROOM - VIP LUXURY LOUNGE GLASS DOOR HINGE 1 PANELSLEAF MATERIAL SYM FRAME LESS DICHROIC GLASS QUANTITY 3 FFL
FLOOR 01 SCALE 1:50 DW MEZZANINE FLOOR LVL X 2000mm (H) 1050 2100
SKYPE BOOTH CORRIDOR & MEETING ROOM LOCATION D2 SPECIFICATION OPENING S. 950mm (L) ACCESSORIES DOOR CODE GROUND FLOOR - UTILITY ROOM - SERVER ROOM - REST OF THE UNNAMED ROOM STANDARD DOOR HINGE 1 PANELSLEAF MATERIAL STANDARD WOOD DOOR X 2100mm (H) SYM 1000 550 550 SYM D. SIZE (mm) QUANTITY 10 FFL CEILING LVL 950 2100 930 LOCATION D2 SPECIFICATION OPENING S. 950mm (L) ACCESSORIES DOOR CODE GROUND FLOOR - UTILITY ROOM - SERVER ROOM - REST OF THE UNNAMED ROOM STANDARD DOOR HINGE 2 PANELSLEAF MATERIAL STANDARD WOOD DOOR PAINTED IN WHITE PAINT X 2100mm (H) D. SIZE (mm) QUANTITY 4 FFL CEILING LVL SKYPE BOOTH CORRIDOR & MEETING ROOM 710 710 2100 40 1500 930
DOOR SCHEDULE - GROUND
DOOR

WINDOW SCHEDULE - GROUND FLOOR

WINDOW

50MM WHITE ALUMINUM FRAME POWDER COATED WITH 15MM DICHROIC GLASS PANEL LOCATION W1 D. SIZE (mm) SPECIFICATION OPENING S. ACCESSORIES WINDOW CODE1 PANELS FIXED WIN. PANEL MATERIAL SYM 200MM THK WHITE ALUMINUM FRAME POWDER COATED QUANTITY 17
02 SCALE 1:50 DW 580mm (W)x 650mm (H)x 200mm (THK)
LOCATION W2 SPECIFICATION OPENING S. ACCESSORIES1 PANELS MATERIAL SYM SYM D. SIZE (mm) QUANTITY 5 LOCATION W3 SPECIFICATION OPENING S. ACCESSORIES1 PANELSMATERIAL D. SIZE (mm) QUANTITY 1 LOCATION W4 D. SIZE (mm) SPECIFICATION OPENING S. ACCESSORIES GROUND FLOOR - CONSULTING ROOM 2 PANELSLEAF MATERIAL SYM QUANTITY 1 1200 580 PLAN VIEW FFL 2000 1090 PLAN VIEW 1800 2000 2745 PLAN VIEW 1090mm (W)x 2000mm (H)x 50mm (THK) 2745mm (W)x 2000mm (H)x 50mm (THK) WIN. PANELWIN. PANEL FIXED 50MM WHITE ALUMINUM FRAME POWDER COATED WITH 15MM DICHROIC GLASS PANEL FIXED CFL 580 650 4801060 1090 150 50 50 FIXED FFL FFL FIXED PLAN VIEW 2000 FFL 2000 2000 GROUND FLOOR - VIP LUXURY LOUNGE GROUND FLOOR - FILM STORE ROOM - SKYPE BOOTH & MEETING ROOM - CONSULTING ROOM GROUND FLOOR - FIRE ESCAPE WINDOW CODEWINDOW CODEWINDOW CODE 1000mm (W)x 2000mm (H)x 50mm (THK) 50MM WHITE ALUMINUM FRAME POWDER COATED WITH 15MM DICHROIC GLASS PANEL FIXEDFIXEDFIXED

DOOR

LOCATION D. SIZE (mm) SPECIFICATION OPENING S. ACCESSORIES WINDOW CODE MEZZANINE FLOOR1 PANELSWIN. PANEL MATERIAL SYM TEMPERED GLASS C/W ALUMINUM FRAME QUANTITY 17 1500mm (W)x 2000mm (H)x 100mm (THK) LOCATIONSPECIFICATION OPENING S. ACCESSORIES1 PANELSMATERIAL SYM SYM D. SIZE (mm) QUANTITY 1 LOCATIONSPECIFICATION OPENING S. ACCESSORIES1 PANELSMATERIAL D. SIZE (mm) QUANTITY 1 1500 2000 1500 PLAN VIEW FFL 100 55 3000 2000 3000 PLAN VIEW 100 55 1800 2000 1800 PLAN VIEW TEMPERED GLASS C/W ALUMINUM FRAME TEMPERED GLASS C/W ALUMINUM FRAME MEZZANINE FLOOR MEZZANINE FLOOR 3000mm (W)x 2000mm (H)x 100mm (THK) 1800mm (W)x 2000mm (H)x 100mm (THK) FFL FFL WIN. PANELWIN. PANEL LOCATION D4 D. SIZE (mm) SPECIFICATION OPENING S. ACCESSORIES DOOR CODE MEZZANINE FLOOR - DISCUSSION ROOM 4 GLASS DOOR HINGE 1 PANELSLEAF MATERIAL SYM SINGLE PANEL CAVITY SLIDING DOOR WITH DICHROIC WINDOW PANEL QUANTITY 2 FFL
AND WINDOW
MEZZANINE FLOOR 04 SCALE 1:50 DW
DOOR
SCHEDULE -
1200 1200 2000 1200mm (W)x 2000mm (H)x 50mm (THK) CEILING LVL PLAN VIEW
WINDOW CODEWINDOW CODE W5 W6 W7
WINDOW

SCHEDULE OF FINISHES

1.1

FLOOR
FF1 12MM BALINESE TEAK RIO LAMINATE FLOORING PLANK 1285MM (L) x 188MM (W) INOVAR FLOOR WORK DESK AREA GROUND FLOOR, HOT DESK AREA, MEDITATION ROOM, SERVER ROOM, UTILITY ROOM, CONSULTATION ROOM, SKYPE & MEETING ROOM, VIP LUXURY LOUNGE FF2 25 MM GREY CARPET TILES CPT 303 500MM (L) x 500MM (W) DYANLOC SDN BHDWORK DESK AREA MEZZANINE FLOOR 1.2 WALL FINISHES B1 BRICK WALL COATED IN NIPPON BRILLIANT WHITE PAINT 150MM (THK) NIPPON PAINTOPEN WORKING AREA G1 DICHROIC DF-PA BLAZE GLASS FINISHES 0.15MM (THK) 3M MALAYSIAALL INTERNAL GLASS PARTITION WALLS 1.3 CEILING FINISHES P1 PLASTER CEILING COATED IN NIPPON PERFECT WHITE PAINT 9MM (THK) NIPPON PAINTOPEN WORKING AREA
FINISHES CODEIMAGESPECIFICATIONSIZESUPPLIERLOCATION

FIXTURE, FITTINGS AND EQUIPMENT SCHEDULE

FIXTURES CODEIMAGES

L1 L2 L3 L4 L5 SO1 P1

· HOT DESK AREA

CEILING DOWNLIGHT ∅140MM X 40MM (D) 80RM25

· WORK DESK AREA

· MEDITATION ROOM

· HOT DESK AREA

WALL LAMP 180MM (L) X 240MM (W) X 200MM (H) 40RM65

· WORK DESK AREA

· MEDITATION ROOM

·

HOT DESK AREA

TRACK SPOT LIGHTS50MM X 100MM160RM30

· WORK DESK AREA

· MEDITATION ROOM

· HOT DESK AREA

LED SOFT ROPE LIGHT 10000MM(L) X 16MM(W) 20RM110

· WORK DESK AREA

· MEDITATION ROOM

· HOT DESK AREA

LED BULB E27 1521 LUMEN, DIMMABLE/GLOBE OPAL WHITE ∅60MM X 100MM80RM27

· WORK DESK AREA

· MEDITATION ROOM

· HOT DESK AREA

ELECTRICAL SOCKETS SERIES90MM X 90MM80RM10

· WORK DESK AREA

· MEDITATION ROOM

· HOT DESK AREA

FLOWER POTS380MM X 200 MM40RM100

· WORK DESK AREA

· MEDITATION ROOM

DESCRIPTION SIZE QTY PRICE UNITLOCATION

INDIVIDUAL REFLECTION

Learning about the Mindvalley Headquarters showed me that a typical office setting does not have to be all business all the time; there is room for fun, too. This concept's intelligent structural and architectural features implore people to be active in the routine jobs they do with a computer. While at the same time ensuring that the design of the office makes the most of available space and area, an obvious focus was placed on ergonomics and anthropometry in this design.

The office consists of a multilevel workstation illuminated by polychromatic glass that changes color throughout the day and is inspired by the jungle gym playscape and Gaud i's Sagrada Familia. The entire process, created in collaboration with IDEAWORKSHOP, started by significantly optimising office layouts, materials, and places for human performance.

The design of this workstation, considered a "temple of light," represents an architectural examination of the phenomenon of pleochroism, whereby materials change their colour when viewed at different angles and affect both user experience and productivity To create a fun, modern interpretation of the stained glass from the Sagrada Familia, the multilevel, officewide steel and glass framed structure uses 3M dichroic film.

In my opinion, the play of materials and heights in this design fascinated me in how users also see colours in rigid behaviours associated with working. However, the location does not resemble a conventional workplace. The workspace physically demonstrates how architecture stimulates anthropology's interaction dynamics with its environment. It comprises quiet, enclosed spaces to meet user needs, complemented by plant walls and with natural, iridescent light.

Studying and putting myself to the test to better understand a location have never visited but hope to visit one day was enjoyable. The option of precedent study that our group went with was fantastic.

.,..
�-- .... • t

Assignment 1 : Work-From-Home + Doors & Windows

IDS 60804 - Detailing and Working Drawings

Name : Kirtini Ravendran

ID : 0355173

Tutor : Ms Fatimah Khairi & Ms Tan Sin Ai

Semester : 04

Programme : Bachelor of Arts (Honours) in Interior Architecture

LF3 LF2 LF5 LF4 LF1 D2 F1 W1 W1 W1 W1 W2 D1 D2 W1 W2 LF1 LF2 LF3 LF4 LF5 F1 D1 01 FLP
F1 D1 WF BW PC
02 D.E 01 D.P
D1 D.D
D2 D.D
01 WS D1 WD D2
WD

Turn static files into dynamic content formats.

Create a flipbook
Issuu converts static files into: digital portfolios, online yearbooks, online catalogs, digital photo albums and more. Sign up and create your flipbook.
IDS 60804 E Portfolio by Kirtini Ravendran - Issuu