Selected works, 2025

Page 1


ARCHITECTURE PORTFOLIO WORK BY KIRSTEN SEXTON

SELECTED WORKS

2025 HARVARD UNIVERSITY, GRADUATE SCHOOL OF DESIGN

Living Single, Living Together Fall 2021

Elle Gerdeman

Loose Ends, LeanTo’s, and Backdrops

Spring 2022

Jennifer Bonner

Partner: Lilly Saniel-Banrey

2020-2024

Ordinary, Except 2021

Gerdeman

Biofactory 2023

Regine Leibinger

03 06

Offsets & Renditions

Spring 2024

Jing Liu

Partner: Emily Eggers

Mulithyphenation Exhibit

Summer 2023

MILLIONS Architecture

City Shed Spring 2022 Emmett Zeifman

Studio MBM Summer 2024

Selected works

Harvard Graduate School of Design

Living Single, Living Together / Elle Gerdeman / 2021

Ordinary, Except / Elle Gerdeman / 2021

City Shed / Emmett Zeifman / 2022

Loose Ends, Lean-To’s, and Backdrops / Jennifer Bonner / 2023

Biofactory: A Gesture Toward Regenerative Building / Regine Leibinger / 2023

Offsets and Renditions: the Guggenheim, Contemporary / Jing Liu / 2024

LIVING SINGLE, LIVING TOGETHER

In reference to Palladio’s 16th century villas as opposed by American southern vernacular shotgun houses, this project emulates the typology of a duplex as a single enclosure for disparate identities. The residents of this duplex are characterized by the duality of life itself. The two inhabitants are not necessarily individuals, but rather an allegorical depiction of human yearning for both external approval and internal satisfaction. This is derivative of the social desire to present an unattainable reality underscored by the innate need for intimacy. This project is a social provocation that alludes to the myth of external social conclusions as indicated in architectural form. The users of the duplex are entirely different yet one in the same: Monolithic yet Modest, Proprietous and Abormal.

DESIGN CRITIC: ELLE GERDEMAN

EXTERIOR RENDERINGS

Form study diagram
Fig. Model photos
Fig. Unrolled axonometric

ORDINARY, EXCEPT

Nominated for Archival

This project proposes an institutional intervention at a domestic scale through the formal devices of the gable and wooden frame. Designed as an artist residency, gallery space, and community center, Ordinary, Except is sited as an addition between two extant triple decker frame houses, the vernacular housing stock of the Boston area. Ordinary, Except maintains the language of the triple decker through its shared roof type, the gable. Extruded gables from the standing triple deckers intersect within the central addition, producing complex ridge lines and dynamic interior space. The tectonics of the triple decker type is defined by stud framing, a language expanded upon and abstracted within the addition. Typical stud framing is transformed from a hidden structural element into a versatile facade scheme which permits moments of transparency and opacity for the program within.

CORE 01

DESIGN CRITIC: ELLE GERDEMAN PARTNERS: PARIS BEZANIS AND ASHLEY ERIN DOTSON

EXTERIOR RENDERING

EXTERIOR RENDERING

WALL CONSTRUCTION AXONOMETRIC SECTION

LEVEL 1.5 + 2 PLAN

MODEL PHOTOS

DESIGN CRITIC: ELLE

CITY SHED

CITY SHED is a proposed community center and sports shed featuring basketball, tennis, and pickleball courts in addition to sheltered and unsheltered parks. The project was derived from intitial field observations of the neighborhood and program of the current site, a somewhat delapidated park in the North End in Boston, MA. From these observations, it was made clear that the program of “park” is inherently public, and has no true belonging to a certain demographic or organization as an innate materialization of community. The ethos of this project is, at its core, public.

This project became IS scale, or rather, the dissolution of scale. The basic diagram of the structure exists on a spectrum of most enclosed, completely interior to least enclosed, completely exterior. This, in addition to the presence of long-span interior spaces, is made possible through a combination of CLT and Glulam timber composed in a deep-beam configuration. Another defining moment of the project is the invasion of landscape against structure. The landscape reclaims its permanence by penetrating the otherwise rigid structure, becoming activated by spectatorship as it becomes viewing platforms at certain moments.

DESIGN CRITIC: EMMETT ZEIFMAN

EXTERIOR RENDERING

Fig. : Ground level site plan
Fig. : Perspective
Fig. : Structural diagram
Fig. : Axonometric drawing

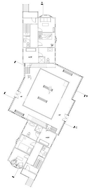
LOOSE ENDS, LEANTO’S, AND BACKDROPS

LE, LT + BP is a proposal for the adaptive re-use of a vacant office park located in Charlestown, MA. This project addresses the central pondering of the ability of the still-life as an art concept to produce architecture. As an assemblage of parts, this project conceives of a “loose-ends urbanism” that aims to address the spillover of its surrounding exurban condition. It questions traditional notions of housing through a set of distinct site operations, each owing to the still life. A CLT addition is tacked on to the outer perimeter of each office building, formed by the lean of an oversized wall that creates an extension of community. Cyc walls are placed at intentional moments throughout the complex, serving as a blank backdrop that may be activated by various activites. Finally, a completely new housing type is introduced in the live-work bar buildings in the middle of the courtyard, that work to break up the original parking lot and provide space for unconvential living arrangements.

INTERIOR VIEW OF CLT ADDITION
Fig. : Section through collective artist housing
Fig. : Site plan
Fig. : Section through former office building
Fig. : Converted office building floor plan
Fig. : Artist housing floor plans
Fig. : Interior view of typical kitchen
Fig. : View of CLT balcony
Fig. : CLT Wall Addition detail section
Fig. : Cyc wall uses
PM.
Fig. : Exterior view of courtyard through seasons

BIOFACTORY A Gesture Toward Regenerative Building

Situated in the West Texas desert, The Biofactory aims to take advantage of the potential of bacterial cellulose (B.C.) production. Translating a natural-occurring phenomenon, the Biofactory houses the transformation of bacterial cellulose from bio-waste to an industrial product, one that may be used in building applications from roofing, facade, and other surface treatments. The Biofactory builds itself, as the products that are being made within the factory are returned to the structure. As the biomaterial inevitably decomposes, it can be replaced easily and in-situ.The Biofactory is invested in the local and regional economy as it sources food waste from surrounding farms to act as the nutrient source for the fermentation process. Food waste such as corn husks, fruit and vegetable pulp and pomace, among others, are transported to the site, processed into liquid waste within the Biofactory, and used to support the growth of B.C. The B.C. is then harvested in its wet state, dried into the final stock material, and made into standardized building components that may be used in architectural applications. It is highly modular, highly customizable, and can be easily expandable, reduced, or decomposed. By involving the logistics of construction at all stages of the life cycle of the Biofactory, it exists in a liminal state of what we call “Utopia”, both ideal and real.

OPTION STUDIO / REVISITING UTOPIA: BIO-BASED MEGASTRUCTURES IN THE TEXAS DESERT

DESIGN CRITIC: REGINE LEIBINGER + KAREN STEIN

Fig. : Rendering of drying facility
Fig. : Ground level plan
Fig. : Site plan
Fig. : Preliminary collage

: Detailed section/axonometric drawing

Fig.
Fig. : Rendering of Bacterial Cellulose production facility
Fig. : Exterior view from highway
Fig. : Diagramatic plan and section

Offsets and Renditions: the Guggenheim, Contemporary

Exhibited in the Guggenheim Museum, May 2024

What happens when a temporary structure becomes permanent? In this space of margin, what new programs can occur? How does the rendition of the building make new such an iconic, historic landscape like the Guggenheim?

The Guggenheim is undergoing almost constant renovation, and we took inspiration from the temporary, highly-functional and cost-effective nature of scaffolding. We chose to utilize a thin space frame structure for its more varied structural and formal possibilities than ordinary scaffolding, but the construction and restoration lineage is clear.

We wanted our intervention to both provide a protective layer to facilitate the ease of upkeep of the existing building and also to provide a more contemporary aesthetic without completely re-skinning Wright’s original architecture. Besides its temporary and cost-effective nature, our proposal is intended to have a minimal impact on the existing building. The space frame‘s scaffold-like functionality also doubles as new way for the museum to engage with its context as it can host a variety of temporary exhibitions and special events. In this way, it turns the museum inside-out, allowing it to reach a broader audience and engage in a less-mediated way with the city.

OPTION STUDIO / THE COMING COMMUNITY DESIGN CRITIC: JING LUI

PARTNER: EMILY EGGERS

Fig. : Physical model
Fig. : Study models
Fig. : Rotunda plan
Fig. : Rotunda perspective section
Fig. : Long section
Fig. : Physical model

: Section perspective of “span” structural system on roof of tower

Fig. : Section perspective of “stand” structural system, connecting to Guggenheim cafe

Fig.

Independent artwork

Selected works

Featuring works from show “New Beginnings” 2016 - 2020

SELECTED ARTWORK

2016-2020

Artist statement from the show “New Beginnings” at the Appalachian Artisan Center in Hindman, Kentucky, where the works are showcased from November 2020 to January 2021.

“The paintings in this show are a quiet observation of what it means to be an Appalachian youth. In the work Portrait of My Father, the artist is depicted as an infant in the hands of her father. They are surrounded by the picturesque greenery and light that characterizes the mountainous landscape of Appalachia. In the next work, Portrait of A Coal Miner, an unnamed man is depicted, fitted in a coal miner’s uniform with soot on his face. The anonymity of this man serves as a reminder of the numerous men who have sacrificed their physical health and wellbeing to provide for their families by working in the mines. This is related to the artist’s upbringing, as her grandfathers and their fathers before them were proud coal miners. The last work, Portrait of the Mountains, depicts the ephemeral beauty of the sprawling mountains atop Pine Mountain. The artist saw this scene almost everyday throughout her early life and sought to translate the unabashed beauty of landscape to paper. These snapshots of Appalachia serve as a gentle love letter to the artist’s upbringing.”

Shown at the Loudoun House in Lexington, KY, the Appalachian Artisan Center in Hindman, KY, the School of Arts and Visual Studies in Lexington,KY and at Heritage Kitchen in Whitesburg, KY.
Portait of the Mountains
paint
Shown at the Appalachian Artisan Center in Hindman, KY.
Portait of My Father Acrylic paint
16” x 20” 2019
Portait of A Coal Miner Oil paint
16” x 20” 2018
Portait of A Mountain Man Oil paint
16” x 20” 2019

Turn static files into dynamic content formats.

Create a flipbook
Issuu converts static files into: digital portfolios, online yearbooks, online catalogs, digital photo albums and more. Sign up and create your flipbook.
Selected works, 2025 by kirstenmaya - Issuu