Portfolio by Kingsley Chong

Page 1


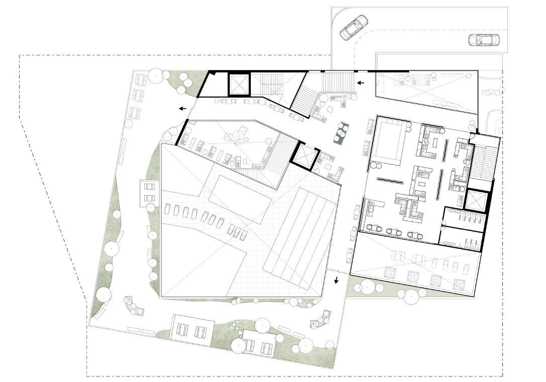
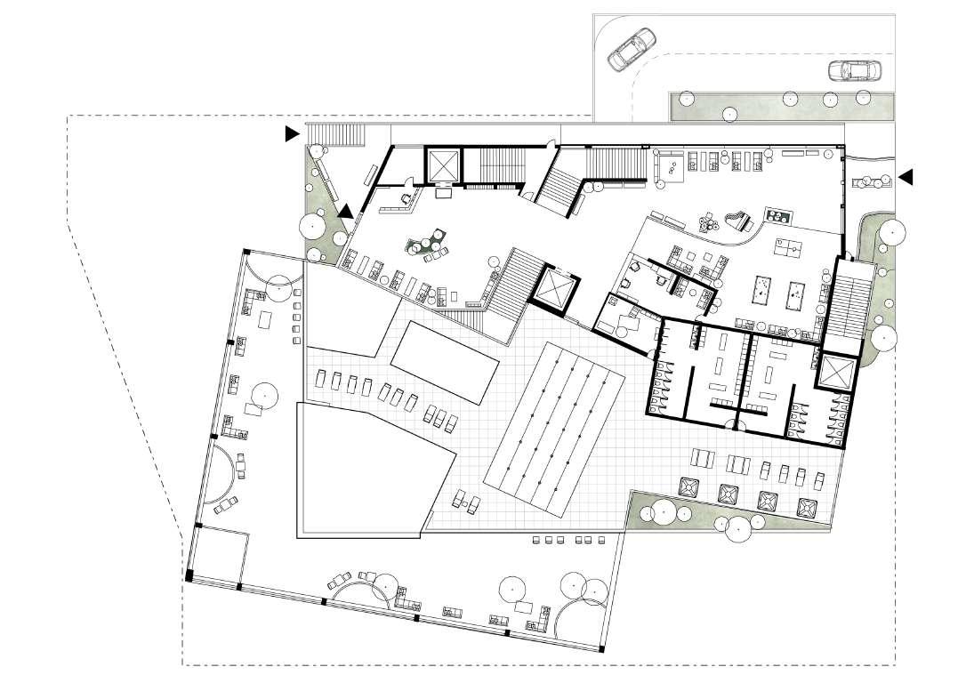
Bronx Collective Ecology

Bronx Collective Ecology (B.C.E) is an effort to address the issues of food insecurity and environmental challenges in the Bronx. It is designed to operate on principles of sustainable vertical farming, thus providing fresh produce to the local community, and stimulating the economy with a marketplace prioritizing small businesses.

Community engagement is a central component of the project, with a strong emphasis on education and outreach programs. Amenities such as maker spaces, arboretum greenhouses, offices, and chicken farms are programs that encourage the active involvement of locals and visitors. Additionally, B.C.E aims to promote healthy eating habits and raise awareness about sustainable agriculture.

Winner of 2023 Bronx AIA Empowerment Scholarship
(AIA Bronx Kingsbridge Armory Competition - 1st place)
“Ten architecture projects by students at City College of NY”
(Dezeen magazines - 2023, October 31)
In collaboration with Shiva Abbaszadeh Wyatt Scott Kuebler

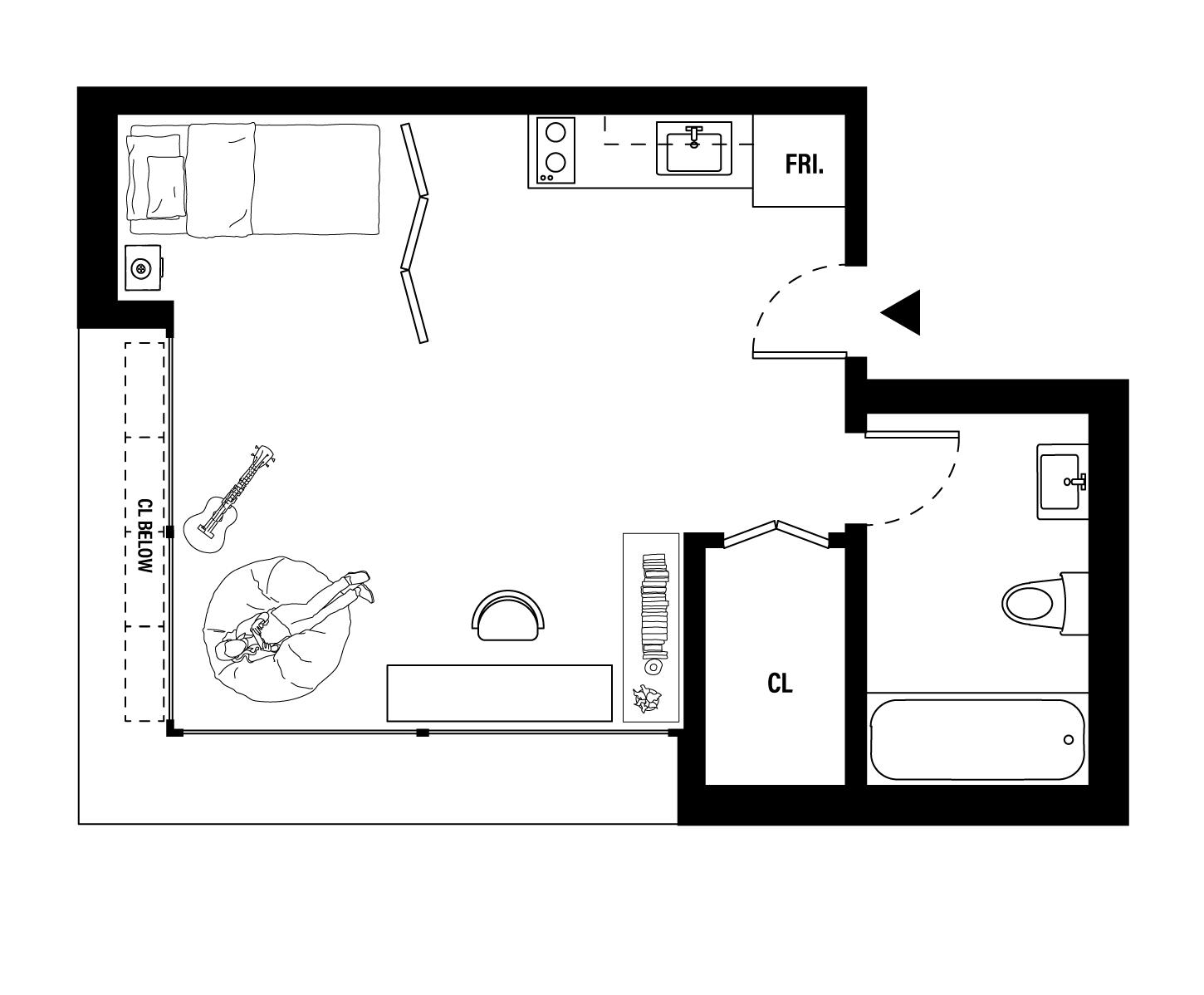
Lumino House

Lumino House is a project defined for integrating expansive, lofty spaces and separation of living from working area. Drawing inspiration from an imaginary client’s special need for heightened ceiling, the design aims to enhance the sense of openness, allowing natural light to permeate and illuminate the interior spaces.

Taking advantage of an existing rock on site, Lumino House is carefully characterized by blending rock, wood, and plaster to achieve a balance between nature and man-made. The incorporation of glass atop the rock serves to elevate the “rustic-contemporary” design, and thereby allowing the client to be intimately connected to rock formation while inside a functional living space.

Second Floor Plan (Enlarged)
Porch area intended for front-house features built-in shoe rack and access to the second floor. Powder room with transparent floor highlights the existing “rat rock” below. Master
Dominant material finishes
Eggshell
Fawn Bark
Black Olive Sand Limestone 1. Textured plasterboard

Preliminary sketch

Tree House 128

Treehouse 128 is a childcare facility aims to mitigate generational challenges such as substandard educational opportunities, a growing number of single-parent households, and pervasive financial constraints in the Manhattanville community. The project includes a new public library, employment, and daycare center.

We were inspired by the element of a forest. The feeling of the scattered light that gets filtered through when sulight shines through the trees, or as they refer to it as Komorebi in Japanese. It was a huge inspiration when it came to the placement of light wells distributed throughout the center and is also reflected in our facade through our perforated panels. The larger openings are used sparingly and highlight special moments from within our building.

Isometric View

Bio-Facade: Blossom

Blossom is an experiment with combined efforts of ceramic technology, lichen research, and complex robotic computation. With clay - a versatile material which was tested and later fired as hardened ceramic, is used as a bio-container capable of growing lichen. To complement this characteristic, an isotoxal figure is designed with careful manipulation of different variables like its opening, concavity, and depth in software.

The mission of Blossom is to tile all of its varied modules into a bio-facade system, thus establishing a symbiotic relationship between lichen and organism - a step towards green architectural feature.

Blossom Elevation View (Chunk)
Blossom Rear View (Assembly)
Blossom Module (Singular)
Blossom Module (Singular)
Blossom Front View (Assembly)
Blossom-integrated Facade Section
Hand-drawn directory map in contract with Chinatown Partnership / District Management Association

La Manida is a mixed-income housing complex with entertainment facilities specifically designed for GenZ and Millenials. More than just a place to live, it aims to be a hub of empowerment. The multi-purposed theater on the 1st floor deliver various performance and movies, accompanied by a local-based food court. Swimming pool on the second floor generates income by public uses while remains free-of-charge for the La Manida residents. The complex is also equipped with a mini cafe-styled library visible from the pool. The development seamlessly combines leisure, food, and exploration in one place.

La Minda utilizes polycarbonate on its facade as a way to differentiate its residential massing from the community massing below, which is mostly transparent. On top of various facilities, La Manida provides 40-mixed income units ranging from studio, 1-bedroom, 2-bedroom, and 3-bedroom. To accomodate younger generation’s lifestyle, residents are offered private gym and fitness center, such as sport courts, outdoor garden, and a featured rock-climbing.

In collaboration with Katerina Kwong
La Manida
La Manida Axon view (Facade)

Preliminary Design

3-Bedroom Unit
1-Bedroom Unit
La Manida Floor Plan (Second Floor)
La Manida Floor Plan (First Floor)
La Manida Circulation Diagram (Residential)

K.C Wood Stool

Inspired by Japanese traditional joint and woodwork techniques, the K.C wood stool is crafted from high-quality poplar wood, which is known for its long-lasting nature and smooth appearance. This design is an effort to address functionality and aesthetically pleasing appearance, where traditional method of craft meets modern design.

Four-Way Intersection

The study follows an analytical approach of sequential dissection to gain an in-depth understanding of “four-way intersection” in a typical curtain wall system. Through the exploration of sets of shop drawings by several existing buildings, we analyzed and research topics includingtranslation of construction documents to shop drawings and fabrication, responsibilities of architects and fabricators, installation sequencing and logistics, off-site fabrication procress, global market and supply chain, and material utilization.

In collaboration with Katerina Kwong
Visualization of a Curtain wall system

125: Cultural Center

In collaboration with Aakanksha Maharjan Genesis Soto

125 Cultural Center is accompanied with an event hall, cafe, management office, conference room, and public student workspaces all connected within the atrium.

The atrium, as a visual link to all programs, displays a concept of central circulation. We see glass as a material to interconnect the vision between spaces that were formed by the initial concept - the idea of center. Our center mass is framed as the center of attention, whether structurally or visually on the idea of light perception. No matter what activities people are partaking in, they are nevertheless - sharing to the atrium.

RIGID INSULATION

WATER PROOFING

VERTICAL SUNSHADE

SPIDER CONNECTION

BLOCKING CONCRETE

METAL DECKING

C-CHANNEL

24” X 12” AIR VENTS

BATT INSULATION

Intersection of volumes WATER PROOFING

W30 X 72 BEAM C-CHANNEL (ANCHORED TO CONCRETE SLAB)

C-CHANNEL (ANCHORED TO CONCRETE SLAB)

W30 X 72 BEAM

EXTERIOR CORIAN BOARD

EXTERIOR CORIAN BOARD

WATERPROOFING

SUSPENSION ROD

SUSPENSION ROD

BATT INSULATION

BATT INSULATION

CORRIGATED DECKING

Cantilever Wall Detail
Cantilever Wall Section Detail
Northwest sectional view
Southwest sectional view
1st floor plan (Elev.+14)
2nd floor plan (Elev.+25)
Snow retaining concept (snow-to-water)

Additional Work

Hand drawn illustrations presented in pixel art style and monochromatic “crowded” style, all in isometric format. Each illustration represents a message in how architecture can be perceived by people.

“The Architecture found in Everyday’s Object”
“What in the Macy’s Thanksgiving Parade?” - Best of 2nd year Projects, with Philip Lee
“How to cook a Flat-noodle Soup”
“Dream in the Backrooms”

Turn static files into dynamic content formats.

Create a flipbook
Issuu converts static files into: digital portfolios, online yearbooks, online catalogs, digital photo albums and more. Sign up and create your flipbook.
Portfolio by Kingsley Chong by Kingsley Chong - Issuu