ARCHITECTURAL TECHNOLOGIST PORTFOLIO
PERSONAL VALUES
Cooperation
Responsibility
Creativity
Growth
Discipline
Perseverance
Commitment
Adaptability
Curiosity
Nature-friendly
Flexibility
Respect

“Every challenge is an opportunity to learn and grow.”
— Kim Torres
SKILLS
• Building information modelling (BIM), 3D modeling, construction drawings & detailing, rendering/visualization, physical modeling, presentation skills, time management, dedication, strong work ethic
• Solid knowledge of the Ontario Building Code (OBC) and municipal zoning bylaws
LANGUAGES
English (fluent)
Tagalog (native/fluent)
Kapampangan (native)
EDUCATION Advanced Diploma, Architectural Technology Co-op | Sheridan College, Mississauga, ON | 2025 – Present
3.5 GPA | Second Semester
• Completed Semester 2 with a focus on residential building design and detailed construction drawings; developed strong proficiency in Revit and solid working knowledge of AutoCAD and SketchUp
• Gained a solid foundation in the Ontario Building Code (OBC) and municipal zoning bylaws
• Currently in third semester (Fall 2025), developing advanced knowledge in commercial building projects, detailing, and code compliance
EXPERIENCE
Freelance Designer | Mississauga, ON | May 2025 – Present
• Independently designed residential home projects with creative problem-solving and innovative thinking
• Developed layouts, structural designs, and interior planning in compliance with the Ontario Building Code (OBC) and municipal zoning bylaws
• Created 3D models and produced fully detailed working drawings using Revit
Academic Projects | Sheridan College, Mississauga, ON | February 2025 – Present
Residential Building
• Gained strong working knowledge of residential design and construction, with a focus on applying Ontario Building Code (OBC) requirements to framing and detailing Commercial Building
• Currently studying commercial building design, with an emphasis on applying the Ontario Building Code (OBC) and municipal zoning bylaws Team Collaboration
• Engaged in team-based projects focused on sustainable and innovative solutions for commercial developments
Revit
AutoCAD
SketchUp
Twinmotion
Microsoft Office Suite
Adobe InDesign
Adobe Illustrator
Adobe Photoshop
Beziér Curve
Detailing


































































Main Material: Brick Veneer, Vertical Oak Siding
Date: May. 2025
Course: Studio 2
Duration: 2 Months
Software: Revit



The primary goal of this project was to take full advantage of the site’s conditions–sun path, prevailing winds, lot area, and setbacks. The design aims to create a residence that is enduring, efficient, and architecturally distinct.









The main living area is located on the upper floor, featuring a large window that maximizes natural light and frames surrounding views. A one-way mirror enables the family to connect with the outdoors while preserving privacy, while full-height curtains provide comfort and enclosure during the evening.






























































































































































































NORTH-EAST PERSPECTIVE

NORTH-WEST PERSPECTIVE

















































































































































































































































































































































































































































































EXTERIOR WALL AT FOUNDATION GRADE


Main Material: Wood
Date: Jan. 2025
Course: Studio 1
Duration: 1 Week
Software: SketchUp
The physical model explores architectural principles of asymmetry and balance. The composition uses additive forms to create a dynamic interplay, while a diagonal surface introduces movement to the static volumes. The study emphasizes the relationships between the forms, independent of function or site.



Main Material: Wood
Date: Jan. 2025
Course: Building Material 1
Duration: 2 Months
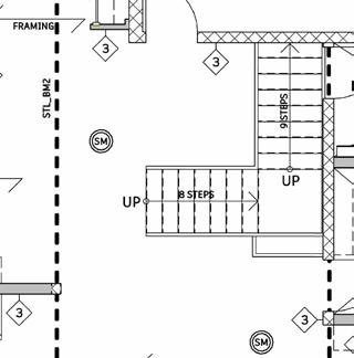
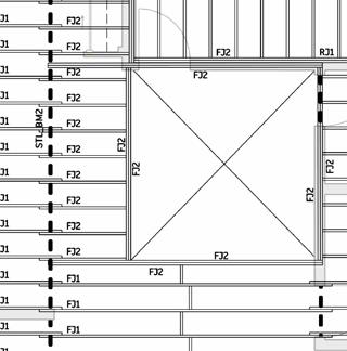
This scale model was developed as a study of the Ontario Building Code (OBC) and its application in residential design. The project emphasized how code requirements influence framing methods while exploring the integration of structure, comfort, and design.
Constructed using the platform framing method, the model features 12” O.C. spacing on walls and floors for enhanced structural strength, a dormer window that introduces natural light and additional storage, and a modified foundation wall designed to provide both structural stability and visual appeal.

SECTION MODEL- BIRD’S EYE PERSPECTIVE




Thank you for your time.