PORT FOLIO
KIA KÄRKKÄINEN





![]()





5



6


Toteutus: Revit/Twinmotion
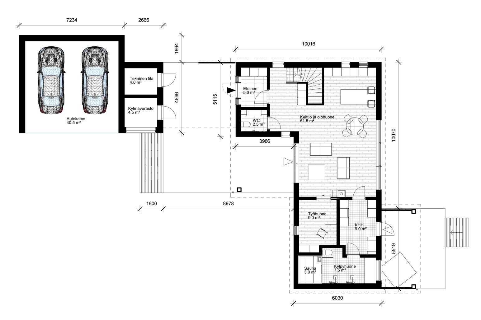
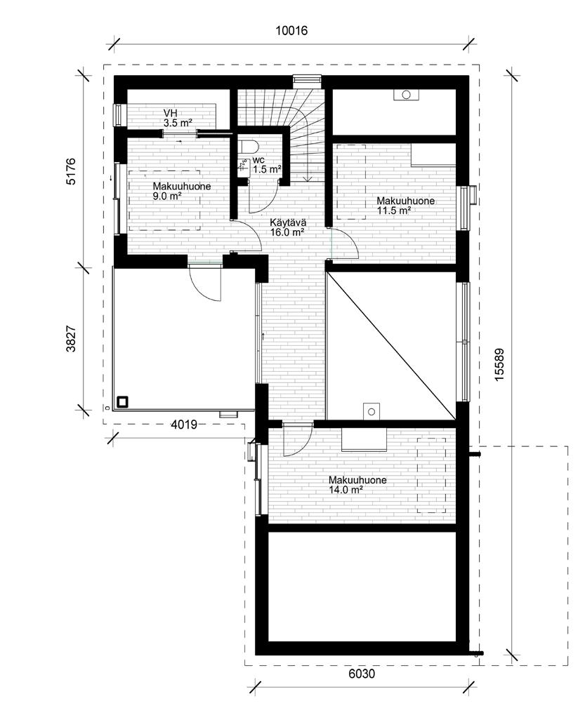
KEVÄT 2020, PIENTALO VASKIKANKAALLE
Tekijä: Kia Kärkkäinen

Asemapiirustus 1:200
Tehtävänäolisuunnitellakuvitteelliselletilaajaperheelle pientaloVaskikankaalle.Työtoteutettiinensimmäisenä opintovuonnajatätentoimiensikosketuksenasuunnitteluohjelmienkäyttöön.
Projektin suunnittelua vei eteenpäin tilaaja perheen toiveet ja alueen rakennusmääräykset. Rakennus sijaitsee tiheästi rakennetulla ja suositulla asuinalueella, jolloin tärkeää oli myös se, että rakennuksen ulkomuoto ei liikaa poikkea viereisistä taloista sekä alueen teemasta/tunnelmasta. Julkisivumateriaalina toimii musta vaakalaudoitus, sekä vaalea pystylaudoitus tehostekohdissa.






KERROSTALO, AS OY TUIRAN SOLINA
Toteutus: ArchiCAD/Twinmotion
KEVÄT 2021, KERROSTALO TUIRAN RANTAAN
Tekijä: Kia Kärkkäinen




TehtävänäolisuunnitellakerrostaloTuiranrantaantontille,jossaolisuojelturakennusjokapitiottaahuomioonsuunnitelmissa..Rakennussaiollamaksimissaan 5-kerroksinen,muttamuutensuunnittelussaolivapaatkädet.
As Oy Tuiran Solina sisältää asuntoja yksiöistä neljän huoneen asuntoihin ja kaikista asunnoista on näkymä joelle. Parkkihalli sijaitsee osittain maan alla ja parkkihallin kantta on hyödynnetty sisäpihana asukkaille. Sisäpihalta on myös kulku rantaan. Julkisivumateriaalina on käytetty valkoiseksi maalattua betonia ja parvekkeissa ja muissa tehostekohdissa vaaleaa laudoitusta.
Työ sisältyi toiseen opintovuoteen ja on toteutettu ArchiCADilla ja viimeistellyt havainnointikuvat on tehty Twinmotionilla.

Asemapiirustus 1:200




IDEAKILPAILU: SILTA
Toteutus: ArchiCAD/Twinmotion
3
SYKSY 2021, SILTA TUKKISAAREEN
Tekijä: Kia Kärkkäinen
TehtävänäolisuunnitellaTukkisaareensilta,käyttäenrakennusmateriaalinapelkästäänpuuta.
Tukkisaaren ympäristö on hyvin metsäistä ja huolittelematonta, joten halusin luoda sillasta modernin, mutta silti maanläheisen ja ympäristöönsä istuvan. Mitat sillan koolle oli annettu jo etukäteen, mutta mitään rajoitteita ulkonäeölle ei oltu asetettu.
Työ toteutettiin kolmannen opintovuoden syksyllä.









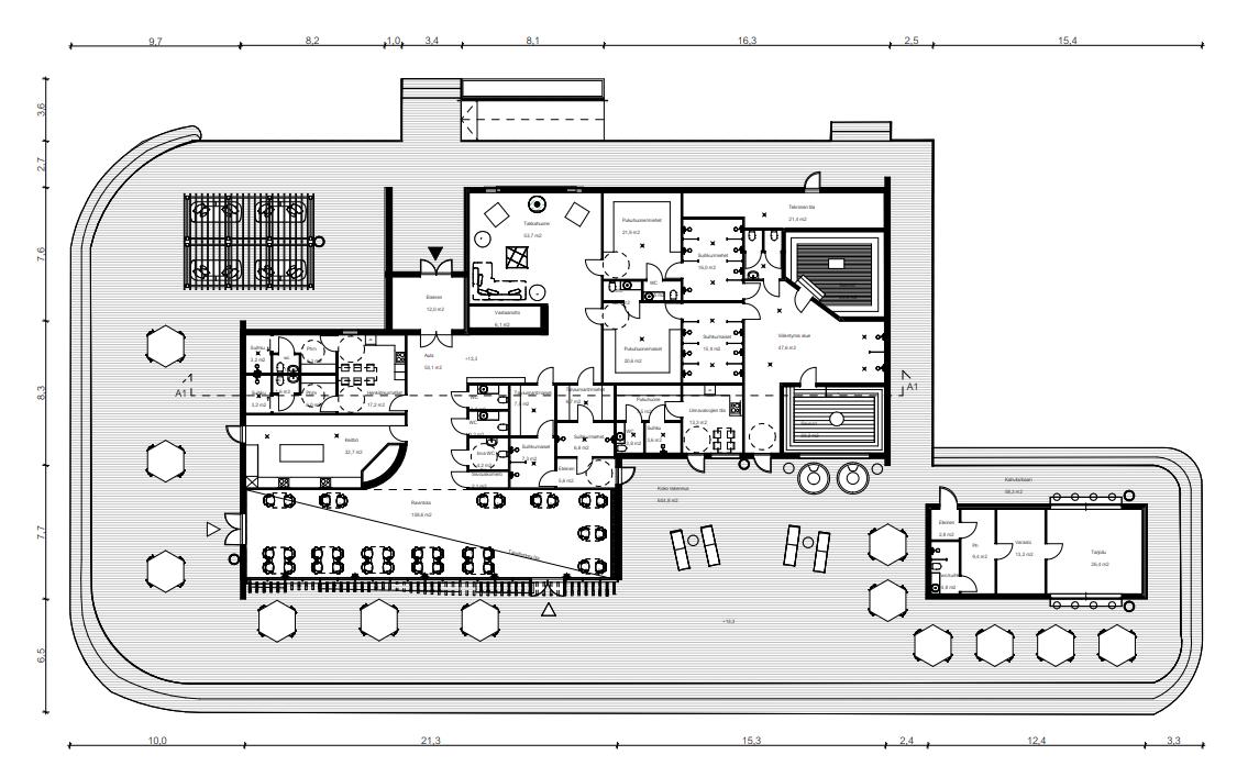
JULKINEN SAUNA, ROIHU
Toteutus: ArchiCAD/Lumion
4
TUIRAN RANTAAN
Tekijä: Kia Kärkkäinen
TehtävänäolisuunnitellajulkinensaunaTuiranrantaan.Rakennukseentulisisältyäsaunatoimintojenlisäksimyösravintola.
Rakennuksen julkisivumateriaalina toimii hirsi. Sauna- ja ravintolatilat on suunniteltu erillisiin siipiin, ja rakennuksen pystyy kiertämään ulkokautta isoa terassia pitkin. Saunapuoli on suunniteltu niin, että se on hieman syrjemmässä, kun taas ravintola sijaitsee keskeisellä paikalla, johon valoa tulvii isoista eteläpuolen ikkunoista. Kokonaisuudessaan rakennus sisältää ravintolan, kaksi julkista saunaa, sekä tilat talvi uimareille. Päärakennuksen kanssa samalla terassilla on myös erillinen kioski rakennus.
Harjoitusyö on toteutettu kolmantena opintovuonna.





Tein Saunaravintola Roihusta myös julkisivuotteen, jossa näkyy lähemmin kaikki materiaalit joita pääjulkisivussa on käytetty. Julkisivu on etelään päin, ja isojen maisemaikkunoiden toisella puolen rakennuksen sisällä on ravintola. Kuva on viimeistelty Photoshopilla.


Julkisivuote 1:50




Toteutus: ArchiCAD/Lumion
5 SANIAISTIE 3, KUURA
SYKSY 2022, KERROSTALON KORJAUS- JA LISÄRAKENTAMINEN
Tekijät: Kia Kärkkäinen ja Pauliina Tomperi
Tehtävänäolisuunnitellakorjaussuunnitelma1979vuodennelikerroksiselle kerrostalolle.Tehtäväänsisältyilisäksilisäkerrosrakentaminen(2uuttakerrosta).Allakuvakohteestaalkuperäisessäkunnossa.Harjoitustyötoteutettiin pareittain.Tietomallinkasasimmeyhdessäjakaikkimuutoksetalkuperäiseen rakennukseenpäätettiinyhteisesti.Minunosuutenityössäolisuunnitellalisäkerrostenpohjatjalisäksitietomallinvalmistumisenjälkeenmyöspiirustusten tekokuuluiminulle.Harjoitustyötoteutettiinneljännelläopintovuodella.
Minun ja Pauliinan ehdotuksessa halusimme peittää vanhan ja tunkkaisen elementti punatiilijulkisivun ja luoda rakennukselle raikas uusi ilme. Rakennuksen kahteen uuteen kerrokseen saimme luotua hulppeita ja yleellisen tuntuisia tiloja kaksikerroksisiin asuntoihin. Haimme rakennukselle modernia ja minimalistista tyyliä, sekä rauhallista tunnelmaa.

Leikkaus 1:50




MINITALO KLAPI
Toteutus: ArchiCAD/Twinmotion
KEVÄT 2023, OPINNÄYTETYÖ
Tekijä: Kia Kärkkäinen

Pohjapiirustukset 1:100
Osanaomaaopinnäytetyötänisuunnittelinkuvitteellisenminitalon,jonkanimesin Klapiksisensironjapienenulkomuotonsavuoksi.Työontoteutettuneljännenopintovuodenkeväällä.
Minitalo Klapi on puinen, parvellinen ja noin 50 m2 kokoinen pieni omakotitalo. Klapi pitää sisällään tilavan eteisen, kylpyhuoneen, yhdistetyn keittiön ja olohuoneen sekä makuuparven. Pienestä koosta huolimatta rakennukseen on saatu mahdutettua kaikki normaalikokoisellekin omakotitalolle ominaiset toiminnot. Minitalo Klapissa on myös maksimoitu säilytystilojen määrä, joita on eteisessä, kylpyhuoneessa, portaiden alla, keittiössä ja parvella.
Tyyliltään Minitalo Klapi on moderni ja minimalistinen. Julkisivujen aukotus on mietitty tarkkaan ja rakennukseen on haluttu tuoda hauskoja pieniä yksityiskohtia, kuten leveät ja matalat maisemaikkunat parvella, sekä syvennyksessä olevat terassit molemmin puolin rakennusta. Olohuoneesta aukeaa iso lasiliukuovi terassille, jolla saa kivasti esimerkiksi kesällä jatkettua tilaa ulos.

