Skip to main content

UPN Taller de Arquitectura 4 - Análisis de entorno - La Victoria - Sector 21

Page 1

TALLER 4 GRUPO7

ANÁLISISDE ENTORNO

PICON ACUÑA, KIMBERLY JANITZA (100%)

POLO CAMARGO, DANIELA ALEXANDRA (100%)

QUIÑONES PONCE, ADRIANA NICOL (100%)

ROJAS AGÜERO, ANILU GIANDRA (100%)

VERANO DEL ÁGUILA, KHRYSTALL MERCEDES (100%)

ARQUITECTOS:

WINCHO CHILQUILLO, OMAR ANGELO BRENIS GUTARRA MARICIELO

INTEGRANTES

KIMBERLY PICON

SoyestudiantedearquitecturayUrbansmo decidíestudarestacarreraporquedesde pequeñasiempremellamólaatención as formasyeldiseñoquesepuedenlograrenlos proyectos.

ADRIANA QUIÑONES

Soy estudiante de Arquitectura y urbanismo, decidí cursar esta carrera ya que desde niña me llamaba la atención las maquetas y el diseño.

DANIELA POLO

Soy estudiante de arqu tectura y Urbanismo decidí estud ar esta carrera, ya que me llamo la atención como se llega a componer diferentes edificaciones

ANILU ROJAS

Soy estudiante de Arquitectura y diseño de interiores , dec dí estudiar esta carrera ya que me permite explotar mi creatividad .

KHRYSTALL VERANO

Soy estudiante de arquitectura y diseño de interiores, decidí estudiar esta carrera porque desde chiquita me llamaba la atención las creaciones que realizaban los arquitectos

ÍNDICE

SÍNTESISGRÁFICA

PROBLEMÁTICADELTEMA

OBJETIVODELAINVESTIGACIÓN

MARCOCONCEPTUAL

MARCOHISTÓRICO

VI. VII. VIII. IX. X.

MARCONORMATIVO

CRITERIODESELECCIÓNDELPREDIO

A) PLANO DE UBICACIÓN DEL TERRENO

B) CRITERIOS DE SELECCIÓN DEL TERRENO

C) MICRO ANÁLISIS DE TERRENO ELEGIDO

ANÁLISISDEENTORNO-CONTEXTO

A) COMPRENDER EL LUGAR

B) MOVIMIENTO Y QUIETUD

C) ANÁLISIS SENSORIAL

D) ELEMENTOS CONSTRUIDOS

E) ZONAS VERDES Y ESTUDIO ETNOGRÁFICO

CONCLUSIONES

REFERENCIAS

TALLER DE ARQUITECTURA 4 INTEGRANTES: Adriana Quiñones - Daniela Polo - Kimberly Picon - Anilú Rojas - Khrystall Verano DOCENTE : ARQ. OMAR WINCHO CHILQUILLO / ARQ. MARICIELO BRENIS GUTARRA FECHA : 31/08/2023 LÁMINA: 1 ANÁLISIS DE CASOS DISTRITO LA VICTORIA
I. II. III. IV. V.

INTEGRANTES: Adriana Quiñones - Daniela Polo - Kimberly Picon - Anilú Rojas - Khrystall Verano

I. TALLER DE ARQUITECTURA 4
DOCENTE : ARQ. OMAR WINCHO CHILQUILLO / ARQ. MARICIELO BRENIS GUTARRA FECHA : 31/08/2023 LÁMINA: 2 ANÁLISIS DE CASOS DISTRITO LA VICTORIA I. SÍNTESIS
GRÁFICA

III. OBJETIVO GENERAL

Realizar un análisis de tres terrenos propuestos del distrito de LA VICTORIA, de acuerdo a la MATRIZ DE PONDERACIÓN DE TERRENOS podremos determinar el mejor terreno para poder realizar una vivienda multifamiliar, determinando los factores de la problematica y asi dar una solucion y potencia al distrito, con el fin de garantizar la mejora de la calidad de vida en los pobladores del distrito, lo cual se esperar generar un impacto que tiene una vivienda multifamiliar bien desarrollada. Este trabajo posee un material recopilado y productivo con la finalidad de generar valoración y soluciones para obtener una mejor calidad de vida para las personas.

DOCENTE : ARQ. OMAR WINCHO CHILQUILLO / ARQ. MARICIELO BRENIS GUTARRA II.
TALLER DE ARQUITECTURA 4 FECHA : 31/08/2023 LÁMINA: 3 ANÁLISIS DE CASOS DISTRITO LA VICTORIA PROBLEMÁTICA DEL TEMA
CIUDADANA CONGESTION VEHICULAR BASURA
INTEGRANTES: Adriana Quiñones - Daniela Polo - Kimberly Picon - Anilú Rojas - Khrystall Verano
INFORMALIDAD COMERCIO AMBULATORIO
INSEGURIDAD

TOPOGRAFÍA : Técnica que consiste en representar y describir la superficie terrestre con sus formas y detalles tanto naturales como artificiales.

ALTITUD : Es la distancia vertical de un punto de la superficie terrestre respecto al nivel del mar.

PARAMETRO URBANISTICO : Contiene las disposiciones técnicas que establecen las características que debe tener una edificacion ya que deben ser respetadas .

ARQ. OMAR WINCHO CHILQUILLO / ARQ. MARICIELO BRENIS GUTARRA
INTEGRANTES: Adriana Quiñones - Daniela Polo - Kimberly Picon - Anilú Rojas - Khrystall Verano DOCENTE :
TALLER DE ARQUITECTURA 4 FECHA : 31/08/2023 LÁMINA: 5 ANÁLISIS DE CASOS DISTRITO LA VICTORIA IV. MARCO CONCEPTUAL

El distrito de La Victoria fue creado por Resolución Suprema el 2 de Febrero de 1920 y 5 días después fue nombrado su primer Alcalde, el Señor JUAN CARBONE, cristalizándose definitivamente su creación el 16 de Agosto del siguiente año mediante la Ley 462 promulgada por el Presidente de la República, Señor Augusto B. Leguía.

1535

1610

La ciudad de lima fue fundada por Francisco Pizarro y establecida en el valle del rio Rimac, tomando el nombre de la "Ciudad de los Reyes"

1896

En esta época, el Virrey Marques de Montesclaros construye el Puente de Piedra, que reemplazaría a los anteriores puentes, así como la Alameda de los Descalzos.

Ya que el centro de lima se hallaba sobrepoblado, en 1896 se estableció el área residencial de la Victoria como un barrio obrero

La ciudad también se convirtió en un importante centro religioso, en 1541 llegó a ser sede de la Iglesia Católica.

1541

Independencia del Perú

La población creció aceleradamente, esto llevó a la sobrepoblación de barrios periféricos conocidos como pueblos jóvenes.

1920-1940

* MG. ARQ.
TALLER DE ARQUITECTURA 4 INTEGRANTES: Adriana Quiñones - Daniela Polo -
Picon - Anilú Rojas - Khrystall Verano DOCENTE : ARQ. OMAR WINCHO CHILQUILLO / ARQ. MARICIELO BRENIS GUTARRA FECHA : 31/08/2023 LÁMINA: 6 ANÁLISIS DE CASOS DISTRITO LA VICTORIA V. MARCO HISTÓRICO
1821-1824
Kimberly

Artículo 8º.- Alturas de Edificación:

e ) E n l a z o n a c a l i f i c a d a c o m o C o m e r c i o M e t r o p o l i t a n o C M c o m p r e n d i d a e n t r e l a A v . M é x i c o , A v . S a n P a b l o , A v . 2 8 d e J u l i o y A v . P a r i n a c o c h a s s e p e r m i t i r á u n a a l t u r a m á x i m a d e e d i f i c a c i ó n u n m á x i m o d e 1 2 p i s o s ( 3 6 m e t r o s ) .

f ) L a a l t u r a m á x i m a d e p i s o a p i s o d e l o s d e p a r t a m e n t o s e n e d i f i c i o s m u l t i f a m i l i a r e s s e r á d e 3 . 0 0 m

Título IV.- Áreas Libres.

Artículo 14º.- P o r c e n t a j e d e á r e a l i b r e d e s t i n a d o s a á r e a s v e r d e s : E n e d i f i c i o s d e u s o m u l t i f a m i l i a r s e d e b e r á t e n e r c o m o m í n i m o e n e l p r i m e r p i s o ( + / - 0 . 0 0 o h a s t a + 1 . 5 0 m . ) , e l p o r c e n t a j e d e l á r e a l i b r e ( i n c l u i d o e l á r e a d e l r e t i r o m u n i c i p a l ) d e s t i n a d o a j a r d i n e s y a r b o r i z a c i ó n ( á r e a s v e r d e s ) d e p r o p i e d a d p r i v a d a o p r o p i e d a d y u s o c o m ú n , s e r á e l 5 0 % .

Título VI.- Áreas mínimas

Artículo 22º.- Especificaciones: a ) P a r a m u l t i f a m i l i a r e s y C o n j u n t o s r e s i d e n c i a l e s : S e r á a p l i c a b l e p a r a l a s z o n i f i c a c i o n e s R D M , R D A , C M , C Z , C V y V T . D e p a r t a m e n t o s d e 1 d o r m i t o r i o e l á r e a m í n i m a d e u n i d a d s e r á d e 4 0 . 0 0 m 2 . D e p a r t a m e n t o s d e d o s d o r m i t o r i o s e l á r e a m í n i m a s e r á d e 5 5 . 0 0 m 2 . D e p a r t a m e n t o s d e t r e s d o r m i t o r i o s e l á r e a m í n i m a s e r á d e 7 5 . 0 0 m 2 . L a s u n i d a d e s d e v i v i e n d a d e 4 0 . 0 0 m 2 n o p o d r á e x c e d e r e l 3 0 % d e l t o t a l d e u n i d a d e s d e v i v i e n d a q u e c o n s t i t u y a n e l p r o y e c t o p r e s e n t a d o

Título VII.- Estacionamientos

Artículo 24º.- E n e d i f i c i o s m u l t i f a m i l i a r e s y c o n j u n t o s r e s i d e n c i a l e s , s e d e b e r á c o n t a r c o n e s t a c i o n a m i e n t o s p a r a v i s i t a s a r a z ó n d e 1 0 % d e l a t o t a l i d a d d e l c á l c u l o r e q u e r i d o p a r a e s t a c i o n a m i e n t o s p o r v i v i e n d a .

C u a n d o e l c á l c u l o d e e s t a c i o n a m i e n t o s s e a i n f e r i o r a 1 0 e s t a c i o n a m i e n t o s , n o s e r á o b l i g a t o r i o c o n t a r c o n e s t a c i o n a m i e n t o p a r a v i s i t a s . L o s e s t a c i o n a m i e n t o s d e v i s i t a d e b e r á n e s t a r s e ñ a l i z a d o s , a g r u p a d o s y l a u b i c a c i ó n d e e s t o s e s t a c i o n a m i e n t o s d e b e r á e s t a r u b i c a d o s e n z o n a s c o m u n e s t a m b i e n d e b e n c o n t e m p l a r e s t a c i o n a m i e n t o s p a r a b i c i c l e t a s e n u n c i n c o p o r c i e n t o ( 5 % ) s o b r e e l á r e a p r e v i s t a p a r a e s t a c i o n a m i e n t o v e h i c u l a r , n o p u d i e n d o s e r , e n n i n g ú n c a s o , m e n o r a u n ( 0 1 ) e s t a c i o n a m i e n t o .

TALLER DE ARQUITECTURA 4
DOCENTE
ARQ. OMAR WINCHO CHILQUILLO / ARQ. MARICIELO BRENIS GUTARRA FECHA
31/08/2023 LÁMINA: 7 ANÁLISIS DE CASOS DISTRITO LA VICTORIA VI. MARCO NORMATIVO
INTEGRANTES: Adriana Quiñones - Daniela Polo - Kimberly Picon - Anilú Rojas - Khrystall Verano
:
:

VII

CRITERIODE SELECCIÓNDELPREDIO

FECHA : 31/08/2023 LÁMINA: 7

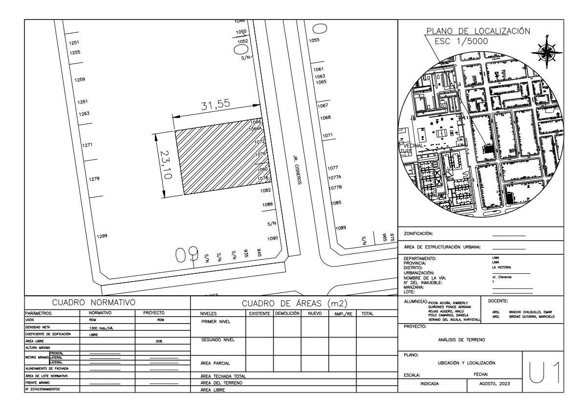
PRIMERA PROPUESTA DE TERRENO

DEL TERRENO

Jr. Manuel Cisneros 1066, La Victoria 15033

EQUIPAMIENTO URBANO

-12.071950486804925

, -77.02088405179275

VISTAS

Restaurantes

Paste er as Brosterias Bodegas

Comple o deport vo Cancha de basquet (Matute)

Parques

Estadio Matute

:

INTEGRANTES:

T endas de repuestos de carros

Transportes de carga

Adriana Quiñones - Daniela Polo - Kimberly Picon - Anilú Rojas - Khrystall Verano

I E Mar a Mercedes

I E N° 1119 Nuestra Señora del Rosar o de Fatima Inst tución Educat va sabe la Catól ca

IIAP Inst tuto de Invest gación de a Amazonía Peruana

DOCENTE
ARQ. OMAR WINCHO CHILQUILLO / ARQ. MARICIELO BRENIS GUTARRA
Perú TALLER DE ARQUITECTURA 4 FECHA : 31/08/2023 LÁMINA: 8 ANÁLISIS DE CASOS DISTRITO LA VICTORIA
UBICACIÓN
Lima
Victoria Sector 21
La
Area del terreno Coordenadas Topografia 728m2

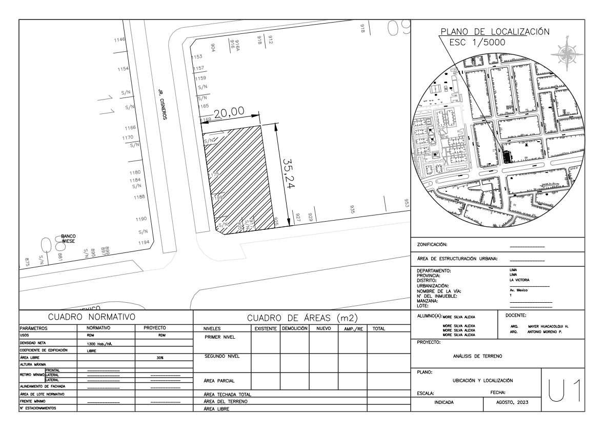
SEGUNDA PROPUESTA DE TERRENO

INTEGRANTES:

Adriana Quiñones - Daniela Polo - Kimberly Picon - Anilú Rojas - Khrystall Verano

DOCENTE : ARQ. OMAR WINCHO CHILQUILLO / ARQ. MARICIELO BRENIS GUTARRA Sector 21 Perú UBICACIÓN DEL TERRENO Lima La Victoria TALLER DE ARQUITECTURA 4 FECHA : 31/08/2023 LÁMINA: 9 ANÁLISIS DE CASOS DISTRITO LA VICTORIA
Coordenadas Area del terreno Topografia Max. 349m Min. 107m VISTAS 704m2 -12.073985719748412, -77.02111322389484 Av. Mexico 905,La Victoria 15033

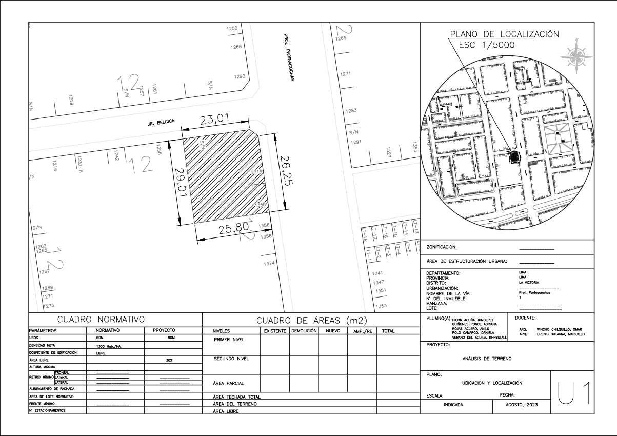
TERCERA PROPUESTA DE TERRENO

INTEGRANTES:

Adriana Quiñones - Daniela Polo - Kimberly Picon - Anilú Rojas - Khrystall Verano

DOCENTE : ARQ. OMAR WINCHO CHILQUILLO / ARQ. MARICIELO BRENIS GUTARRA Sector 21 Perú UBICACIÓN DEL TERRENO TALLER DE ARQUITECTURA 4 FECHA : 31/08/2023 LÁMINA: 10 ANÁLISIS DE CASOS DISTRITO LA VICTORIA
Lima La Victoria Coordenadas Area del terreno Perimetro 737.70m2 VISTAS -12.071692663038542, -77.01684946708401 pasaje hacia el parque 107.61 Jr. Parinacochas 1314, La Victoria
DOCENTE : ARQ. OMAR WINCHO CHILQUILLO / ARQ. MARICIELO BRENIS GUTARRA 08 08 08 TALLER DE ARQUITECTURA 4 FECHA : 31/08/2023 LÁMINA: 8 ANÁLISIS DE CASOS DISTRITO LA VICTORIA TERRENO
INDICADOR SUB-CRITERIO CRITERIO TERRENO 2 TERRENO
zona urbana zona de expansión urbana zonificación de reglamento especial CONSOLIDACIÓN DEL TERRENO otros usos agua / desagüe electricidad USO DEL SUELO SERVICIOS BÁSICOS vía principal vía secundaria vía vecinal ACCESIBILIDAD transporte zonal transporte local TRANSPORTE regular irregular 1 frente 2 frente 3 frente llano ligeramente pendiente parque tiendas FORMA NÚMERO DE FRENTES TOPOGRAFÍA ZONIFICACIÓN VIABILIDAD MORFOLOGÍA
INTEGRANTES: Adriana Quiñones - Daniela Polo - Kimberly Picon - Anilú Rojas - Khrystall Verano
1
3
escuelas TOTAL 02 LEYENDA 00 puntos 01 puntos 02 puntos No cuenta con Cuenta con poco Si cuenta con 02 02 00 00 02 00 00 00 00 02 02 02 02 02 00 02 00 01 02 00 02 00 02 00 02 02 00 25 02 02 02 02 00 00 02 00 02 00 00 02 00 02 00 00 02 00 20 02 02 00 02 00 02 00 02 00 02 00 00 02 00 00 00 01 19 PROPUESTA1 PROPUESTA2 PROPUESTA3
MATRIZ DE PONDERACIÓN DE TERRENOS

VIII

ÁNALISISDEENTORNO -CONTEXTO

1.

UBICACIÓNYEMPLAZAMIENTO

TALLER DE ARQUITECTURA 4

DOCENTE : Ú SECTOR21

ANÁLISIS DE CASOS DISTRITO LA VICTORIA

Nuestro terreno se encuentra en un suelo llano y tiene un nivel de vulnerabilidad alto

4. ANÁLISISHISTÓRICO

´´ 1535 1610

Fue fundada con el nombre ‘’Ciudad de los reyes

Fue construido el puente de piedra

1970

Terreno Av Méxco Av Parinacochas Jr Abtao AV PARINACOCHAS JR BÉLG CA AV MÉXICO

Con la llegada de los migrantes a la capital se aumentaron las viviendas precarias como el cerro San Cosme.

FECHA :

31/08/2023

1986

/ Comercialzonal Vvendataler

LÁMINA: 9

ARQ. OMAR WINCHO CHILQUILLO
INTEGRANTES: Adriana Quiñones - Daniela Polo - Kimberly Picon - Anilú Rojas - Khrystall Verano ARQ. MARICIELO BRENIS GUTARRA
Se encuentra ubicado en Av. Parinacochas 1314, La Victoria 15018
COMPRENDER EL LUGAR
2. TOPOGRAFÍA
3. CROQUISYANOTACIONES
1896
Origen a los asentamientos humanos Naylamp y Andrés Avelino Cáceres
Debido a la sobrepoblación, La victoria se estableció como un barrio obrero

FLUJOS 1. 2. TIPOSDEVÍAS

3. CONCLUSIONES

PUNTOSDEQUIETUD

Dado lo analizado el flujo mayor en el dia es la Av. México , la Av. Aviación , Jr. Italia y Jr. Huanuco la intensidad mas que nada se presenta en horas puntas.

Con respecto a los puntos de quietud los mas visuales son el grifo Repsol y las tiendas de respuestos de carros que abundan por la zona.

INTEGRANTES: Adriana Quiñones -
-
Picon - Anilú Rojas - Khrystall Verano DOCENTE : ARQ. OMAR WINCHO CHILQUILLO / ARQ. MARICIELO BRENIS GUTARRA
ERRENO B GC VER DA V RED TERRENO VER DA VE DA E AR DOR P AOH A A A A TALLER DE ARQUITECTURA 4 FECHA : 31/08/2023 LÁMINA: 1 3 ANÁLISIS DE CASOS DISTRITO LA VICTORIA MOVIMIENTO
Daniela Polo
Kimberly
víasprincipales víassecundarias víaspeatonales terreno
Y QUIETUD
GrifoRepsol ParqueSanGerman
IE.Mariadelas Mercedes Tiendasde repuestosdecarro

ANÁLISIS SENSORIAL

VIENTOSYTEMPERATURA 1.

3. VISUALES

Entre5a38km/h

4. COLORESYTEXTURAS

2. ASOLEAMIENTO

Min:15C°

Max:25C°

INTEGRANTES:

Adriana Quiñones - Daniela Polo - Kimberly Picon - Anilú Rojas - Khrystall Verano

DOCENTE
ARQ. OMAR WINCHO CHILQUILLO / ARQ. MARICIELO BRENIS GUTARRA TALLER DE ARQUITECTURA 4 FECHA : 31/08/2023 LÁMINA: 1 3 ANÁLISIS DE CASOS DISTRITO LA VICTORIA
:

5. RUIDOS

Terreno

Focosderuido Ruidovehicularypeatonal

6. OLORES

:

Terreno

Humovehicular

INTEGRANTES: Adriana Quiñones - Daniela Polo - Kimberly Picon - Anilú Rojas - Khrystall Verano

Basura

DOCENTE
ARQ. OMAR WINCHO CHILQUILLO / ARQ. MARICIELO BRENIS GUTARRA TALLER DE ARQUITECTURA 4 FECHA : 31/08/2023 LÁMINA: 1 3 ANÁLISIS DE CASOS DISTRITO LA VICTORIA
ANÁLISIS SENSORIAL

ELEMENTOS CONSTRUIDOS

TOPOGRAFIA 1.

:

2. DETALLESDELAFACHADA

INTEGRANTES: Adriana Quiñones - Daniela Polo - Kimberly Picon - Anilú Rojas - Khrystall Verano

DOCENTE
ARQ. OMAR WINCHO CHILQUILLO / ARQ. MARICIELO BRENIS GUTARRA TALLER DE ARQUITECTURA 4 FECHA : 31/08/2023 LÁMINA: 1 3 ANÁLISIS DE CASOS DISTRITO LA VICTORIA
AvprincipalMEXCO AvParinacocha JrBelgica GrioRepso en a esquinadelaavMexico Mercadomoderno Tendasrepuestosdecarro

ZONAS VERDES Y ESTUDIO ETNOGRÁFICO

ÁREASVERDES 1.

3. POBLACIÓNYUTILIZACIÓNDESUELO

comercio zonal

2. FLORAGENERAL

Vvivienda taller

POBLACIÓN FLOTANTE

Parte de la población la cual solo transita por la zona para dirigirse a sus respectivos destinos fuera o dentro del sector.

COMERCIANTE

se encuentran ubicados en los diferentes comercios.

RESIDENTE

Esta parte de la población forma la mayor parte del flujo peatona, debido a que se dirigen a distintos sectores comerciales.

:

INTEGRANTES:

Adriana Quiñones - Daniela Polo - Kimberly Picon - Anilú Rojas - Khrystall Verano

ARQ. OMAR WINCHO CHILQUILLO / ARQ. MARICIELO BRENIS GUTARRA TALLER DE ARQUITECTURA 4 FECHA : 31/08/2023 LÁMINA: 1 3 ANÁLISIS DE CASOS DISTRITO LA VICTORIA
DOCENTE
Zona recreación pública Escuela

ZONAS VERDES Y ESTUDIO ETNOGRÁFICO

RANGOETARIO 1.

POBLACIÓN TOTAL ESTIMADA

2. REGISTRODELENTORNO

Iingreso al terreno pasaje hacia el parque

POBLACIÓN SEGÚN GRUPOS DE EDAD

3. CONCLUSIONES

IMPLEMENTACION

:

INTEGRANTES:

Adriana Quiñones - Daniela Polo - Kimberly Picon - Anilú Rojas - Khrystall Verano

DOCENTE
ARQ. OMAR WINCHO CHILQUILLO / ARQ. MARICIELO BRENIS GUTARRA TALLER DE ARQUITECTURA 4 FECHA : 31/08/2023 LÁMINA: 1 3 ANÁLISIS DE CASOS DISTRITO LA VICTORIA

REFERENCIAS X

https://web.munilavictoria.gob.pe/mlv/data_files/COMPENDIO%20ESTADISTICO%202021%20MLV%204.pdf

https://www.cuandovisitar.pe/peru/la-victoria-2993660/tiempo/

https://www.meteoblue.com/es/tiempo/historyclimate/climatemodelled/lima_per%C3%BA_3936456

https://salidaypuestadelsol.com/weather?lat=-12.0708&lon=-77.0171

TALLER DE ARQUITECTURA 4
DOCENTE : ARQ. OMAR WINCHO CHILQUILLO / ARQ. MARICIELO BRENIS GUTARRA FECHA : 31/08/2023 LÁMINA: 1 4 ANÁLISIS DE CASOS DISTRITO LA VICTORIA
INTEGRANTES: Adriana Quiñones - Daniela Polo - Kimberly Picon - Anilú Rojas - Khrystall Verano
REFERENCIAS

I. SÍNTESIS GRÁFICA

CRITERIO DE SELECCION DEL PREDIO

III. OBJETIVO GENERAL

TERRENOELEGIDO

Determinar los factores de la problematica y asi dar una solucion y potencia al distrito con el fin de garantizar la mejora de la calidad de vida en los pobladores del distrito lo cual se esperar generar un impacto que tiene una vivienda multifamiliar bien desarrollada

TIPOSDEVÍAS

Nuestro terreno se encuentra en un suelo lano y tiene un nivel de vulnerabil dad alto

PUNTOSDEQUIETUD

VISUALES

Gri oRepso ParqueSanGerman EMa iade as Mercedes Tiendasde repuestosdecarro

Dado lo analizado el flujo mayor en el dia es la Av Méx co la Av Aviación Jr Italia y Jr Huanuco la intensidad mas que nada se presenta en horas puntas

Con respecto a los puntos de qu etud los mas v suales son el grifo Repsol y las t endas de respuestos de carros que abundan por la zona

RUIDOS

F d d Rudovhcuaypeaona

POBLACIÓN Y UTILIZACIÓN DE SUELO

RES DENTE Esta parte de la pob ac ón forma a mayor parte del flu o peatona debido a que se d rigen a d st ntos sectores comerc ales

POBLAC ÓN FLOTANTE

Parte de la pob ación a cual solo trans ta por a zona para d r g rse a sus respectivos dest nos fuera o dentro del sector

COMERCIANTE

se encuentran ub cados en los d ferentes comerc os

OLORES

Tereno Humovehcuar Basura

COLORES Y TEXTURAS

CONCLUSIONES

IMPLEMENTACION

TEMPERATURA MAX

25°C

TEMPERATURA MIN

15°C

VIENTOS entre 5 a 38k/h

comercio zonal

Vvivienda taller

Zona recreación pública

Escuela

INTEGRANTES: Adriana Quiñones - Daniela Polo - Kimberly Picon - Anilú Rojas - Khrystall Verano DOCENTE : ARQ OMAR WINCHO CHILQUILLO / ARQ MARICIELO BRENIS GUTARRA 25 20 19 PERÚ SECTOR 21 Comercial zonal Vivienda taller Terreno Av Méx co Av Parinacochas Jr Abtao vías principales vías secundarias vías peatonales terreno
TALLER DE ARQUITECTURA 4 6728 LÁMINA: 2 ANÁLISIS DE ENTORNO Y CONTEXTO
ANALISIS
ENTORNO II. INFORMALIDAD COMERCIO AMBULATORIO PROBLEMÁTICA DEL TEMA INSEGURIDAD CIUDADANA CONGESTION VEHICULAR DESECHOS
DE
PROPUESTA PROPUESTA2 PROPUESTA3 TERRENO 1 IND CADOR SUB-CR TERIO CRITERIO TERRENO 2 TERRENO 3 zona urbana zona de expansión urbana zonificación de reglamento especial CONSOLIDACIÓN DEL TERRENO otros usos agua / desagüe electricidad USO DEL SUELO SERVICIOS BÁSICOS vía principal vía secundaria vía vecinal ACCESIBILIDAD transporte zonal transporte local TRANSPORTE regular irregular frente 2 frente 3 frente llano ligeramente pendiente parque tiendas FORMA NÚMERO DE FRENTES TOPOGRAFÍA ZONIFICACIÓN VIABILIDAD MORFOLOGÍA escuelas TOTAL 02 02 02 00 00 02 00 00 00 00 02 02 02 02 02 00 02 00 0 02 00 02 00 02 00 02 02 00 02 02 02 02 00 00 02 00 02 00 00 02 00 02 00 00 02 00 02 02 00 02 00 02 00 02 00 02 00 00 02 00 00 00 0 C 0 6 V D ecconAvMexco905 aVco a 503 Aea 04m2 D ecc nJ
SeencuentraubcadoenAv Parnacochas1314 LaVctoria 15018 TOPOGRAFÍA
FLUJOS
FECHA : 07/09/2023

Turn static files into dynamic content formats.

Create a flipbook