Portfolio - Kendall Hartley 2025

Page 1


SELECTED WORKS

UNIVERSITY OF NEBRASKA-LINCOLN

ARCHITECTURE

Chocolate Factory

About Me

I am a fifth-year graduate student in the Architecture program at the University of Nebraska-Lincoln. My lifelong passion for design has shaped my academic and creative pursuits, providing me with opportunities to explore, express, and refine my ideas. With a particular enthusiasm for graphic representation and design schematics, I am eager to bring these skills into my professional career and contribute meaningfully to innovative projects.

Kendall Hartley

(402) 570-4686

khartley5@huskers.unl.edu Lincoln, NE

Education

2024 - 2026 | Graduate Studies | M.Arch University of Nebraska-Lincoln

2020 - 2024 | Undergraduate Studies | B.Arch University of Nebraska-Lincoln

2016 - 2020 | General Education Waverly High School

Work Experience

Summer 2025 | DLR Group Chicago

Architectural Design Internship

2023 - 2025 | Clark & Enersen Lincoln

Architectural Design Internship

2022 - 2023 | Tattoo & Art Customs

Graphic Design, Social Media Management & Reception

Technical Skills

Achievement

2020 - Present

UNL Dean’s List Scholar

2020 - Present

David’s Distinguished Scholar - 3.98 GPA

Spring 2023

BVH Architecture - Design Excellence Competition Winner

Fall 2024

Schemmer Associate’s Scholar

01 The Verge 2024

Redefining the post-pandemic workplace in Omaha, Nebraska.

02 Favarger Chocolate Factory 2024

Historical preservation and adaptive reuse of a factory located in Geneva, Switzerland.

03 Niobrara Visitor Center 2023

An immersive visitor experience blending landscape design with place-oriented architecture.

04 KCAI Dept. of Architecture 2023

05

*With scholarship distinction Proposal for the addition of an architecture program at the Kansas City Art Institute. Professional Practice 2023 - Present

Selected work from professional experience outside of school.

01

The Verge

2024 | Arch 411

Omaha, Nebraska

Office + Mixed-Use

Collaboration: Chelsea Anderson

REDEFINING THE MODERN WORKPLACE

This project reimagines the traditional office as a dynamic hub that serves both employees and the surrounding community. The Verge creates a seamless connection between two distinctly different parts of Omaha and acts as an interactive passageway through the city. To encourage employees to return to the office, a range of amenities were thoughtfully integrated, prioritizing well-being and productivity. The design features a market, retail spaces, a restaurant and bar, a coffee shop, and a library, transforming the building into a vibrant destination. These spaces offer opportunities to step away from desks during the typical 8-to-5 workday. This strategy fosters a stimulating and engaging work environment that motivates employees to return to the office post-pandemic. The seamless integration of different building systems is vital to this project and providing maximum user comfort. By addressing the needs of office workers and the community, this project establishes a new benchmark for workplace design, revitalizes its urban surroundings, and enhances the wellbeing of all users.

DESIGN DEVELOPMENT

Located at the corner of 8th and Farnam in Downtown Omaha, this site previously acted as a breaking point between the central business district and a more park-oriented part of the city. It became a primary project goal to integrate these two distinctive areas rather than perpetuate the barrier that existed between the two. At this particular location, we found many opportunities

to activate the site and integrate the building with its surroundings. A series of imaginative site vignettes were completed in early stages of the project to help us reframe our thinking about the site. A lot of inspiration came from these vignettes, including the use of vibrant color, organically shaped architecture, and seamless integration of the building and the land.

Remove the building’s center to create a central passage.

CONNECT

Accommodation of 15’ grade change from entry to exit.

SITE
354 x 192 footprint with 85’ height restriction
EXTRACT

THE ATRIUM AS A SOCIAL CENTER

The central atrium emerged as the focal point of this project, with all programming arranged in the two adjacent building wings. Whether passing through or spending time within the building, this vibrant space serves as the heart of circulation. The program surrounding the atrium is intentionally designed to blur the boundaries between public and private space. To move beyond the redundancy of a typical office layout, we considered the settings where we personally enjoy working—primarily public spaces such as libraries and coffee shops. This inspired the integration of numerous open workspaces throughout the building, deviating from the traditional desk grid. More conventional office spaces are located on the upper levels to ensure privacy, while the lower levels provide access to parking and public amenities such as a restaurant, bar, retail spaces, childcare, and a gym. Vertical separations between these areas have been dynamically shaped, creating volumetrically diverse environments with double-height ceilings and open-tobelow floor plates.

ENCLOSE

BRIDGE Catwalks connect the two masses for circulation.
ALTER Balconies created in the building’s exterior envelope.
Glass shell added to shelter the central atrium.

INTEGRATION OF BUILDING SYSTEMS

This project integrates mechanical, structural, environmental, and electrical systems, each organized differently within the building’s dynamic form. In spaces such as the atrium, the focus was on achieving a clean and streamlined aesthetic. This was done by concealing all systems within thickened floor slab edges. Cove lighting details were also incorporated to subtly guide users through the space. On the interior sides of the two building masses, systems were left exposed to maximize ceiling heights and create a sense of openness.

Atrium Render

Favarger Chocolate Factory 02

2024 | Arch 510

Geneva, Switzerland

Adaptive Reuse

Collaboration: Joseph Miller

EXISTING STRUCTURE AS A SITE

This project took a unique approach by treating an existing chocolate factory building as the “site” rather than a traditional plot of land. Located in Geneva, Switzerland, this factory has long been a cornerstone of Favarger’s identity. To honor its historical significance, we chose to design an addition that partially surrounds the original building rather than altering its facades. Our primary objective was to respect the existing context while introducing a contemporary addition that contrasts with the original design principles.

The proposal envelops the factory with a new exterior that appears monolithic from the outside but is occupiable on the inside. The original building lacked an engaging spatial experience or a defined path of travel, so we prioritized creating these elements in our addition, adding a dynamic and inviting layer to the existing structure.

USER PROMENADE

The program of this addition contains a chocolate shop, cafe, and live-work studios for on-site chocolatiers. To incorporate these vastly different programs into one cohesive user experience, we designed each space with respect to shaping a central promenade. The users are encouraged to immerse themselves into the chocolate making experience by engaging fully with the different programs. The true beauty of the existing Favarger building can be experienced once users enter into the central courtyard space between the two structures.

THE FAVARGER BRAND

Maintaining the Favarger brand was cornerstone in this project, as their identity is something they hold with pride within the chocolate making industry. Because of this, we maintained and refurbished their existing sign and made it a focal point within the building. We also chose to represent this project adhering to the iconic yellow and red colors of the existing structure.

DETAILED MODEL STUDY

Model-making was an integral phase of this project. In this study, we carefully modeled the existing chocolate factory before any intervention took place. The entire model was created using the Thomas Demand method, in which each individual component is covered with paper to provide it with its color. Since this factory was

relatively small, attention to detail proved to be very important. From broader elements such as the roof patterning and facade weathering, all the way down to small details like the downspouts and window planters, each detail helped to inform our future design and increase our understanding of the building as a site.

03 Niobrara State Park Visitor Center

2023 | Arch 410

Niobrara, Nebraska

Hospitality

Collaboration: Jessie Grieser & Sarah Cope

This project in Niobrara, Nebraska, is guided by a set of goals that aim to create a dynamic and engaging space for users visiting the State Park. Focusing on interior-exterior connections, the design seeks to seamlessly integrate the building with its natural surroundings, fostering a harmonious relationship between the interior

spaces and the landscape of Niobrara State Park. The visitor center serves as an educational hub, enlightening visitors about the rich diversity of flora and fauna within the park, thus fostering a deeper appreciation for the local ecosystem and creating excitement surrounding the park.

SITE FOCUS

The picturesque landscape of Niobrara State Park was to be the star of this project. Every design choice that was made was done so in a way that showcases the natural environment rather than detract from it. The project prioritizes providing unobstructed views of the surroundings to immerse visitors in the park’s beauty and encourage a sense of connection with nature.

DESIGN DEVELOPMENT

To enhance user experience, this design promotes interaction between staff and visitors, creating a welcoming and informative atmosphere. Strategically captivating attention from the highway, the center becomes a landmark and encourages travelers to explore the park. The building’s primary material palette consists of cross-laminated timber structural elements and a charred timber facade.

SQUARE FOOTAGE

The project’s maximum footprint is 10,000 SF.

ENTRY

The form was placed parallel to the main road and rotated inward to create a corner entry.

By pushing and pulling the building’s mass, pockets of space were created that fold the exterior environment into the building’s interior. Additionally, the incorporation of fire-wise landscape and building techniques underscores a commitment to safety and sustainability, ensuring the longevity and resilience of the visitor center within the natural environment.

PROGRAM

The mass was split into modules for staff, lobby, and lounge.

CONNECT

The envelope was altered by pushing and pulling to allow exterior pockets within they building’s interior.

VIEWS

The pockets that were created act as viewports for the outside surroundings.

ROOF

The roof plane angled to create a main pitch above the entrance.

ENVIRONMENTAL

The roof angles allow for natural light to enter the building and control water drainage.

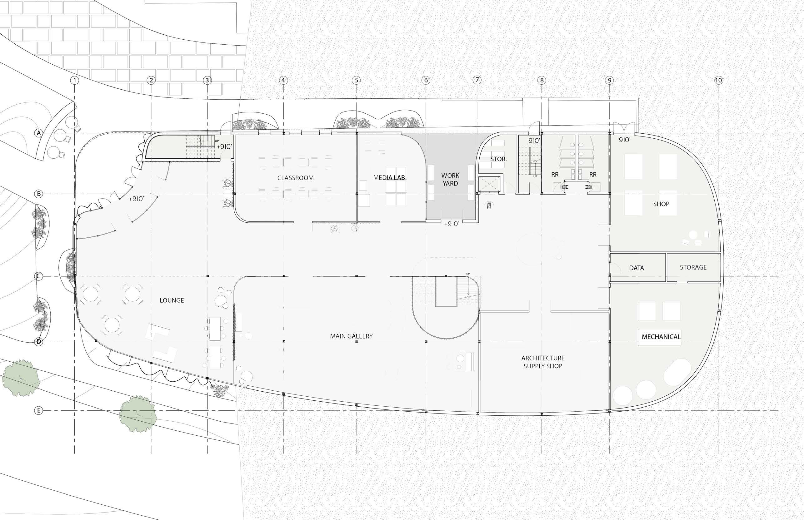
04 KCAI Department of Architecture

2023 | Arch 311

Kansas City, Missouri

Higher Education

Collaboration: Jessie Grieser, Abriana Wilson, and Halima Moore

The Kansas City Art Institute, located in a culturally rich area of Missouri, is a private arts university that tasked us with introducing a new architecture college to the campus. Our mission for this project was to adequately prepare gifted students to transform the built environment through sustainable design. This proposal explores the consideration of mental well-being in architectural education in connection to sustainable systems, integrating additional programs such as a research center and an architecture supply shop.

TOTAL PROGRAM

The

DIVIDE

The

SUN STUDY

ALTER

The

WIND STUDY

SUBTRACT

Subtractive gestures were made by pushing the building’s facade inward to create exterior green spaces.

ADJUST

The building’s entrances were placed on two different levels to respond to site conditions.

RESPONSE

With a southern face made of glazing, mesh metal paneling was added to avoid excessive solar heat gain.

MAIN GALLERY

WEST ELEVATION & SECTION

GREEN FOCUS & WELL-BEING

A significant portion of this project was designed with sustainability at its core, emphasizing the importance of educating students through these principles. In a rapidly changing world impacted by the climate crisis, we believed it was essential to prioritize these issues in the curriculum. A key aspect of this educational approach was teaching by example, with the college itself serving as a learning tool for sustainable design. This was achieved in several ways. Comprehensive analysis of the site’s sun and wind patterns informed decisions on massing, programming,

and material selection. Additionally, the mental well-being of students was a major consideration, shaped by our own educational experiences. Green buildings have been shown to enhance the mental and physical health of their occupants, which influenced our inclusion of multiple outdoor green spaces. These areas offer students opportunities to recharge and engage with nature, both during their studies and in their free time, fostering a healthier and more inspiring learning environment.

SOLAR PANELS REDUCE ENERGY COSTS

CONTINUOUS OPENINGS ALLOW HOT AIR TO RISE FOR PASSIVE COOLING

GREEN ROOF REDUCES STORMWATER RUNOFF & AIDS IN PASSIVE COOLING

METAL PANELING PROTECTS AGAINST SOLAR HEAT GAIN

RAINWATER HARVESTED AND REUSED FOR GREYWATER

GREEN SPACES INCORPORATED FOR SOCIAL AND HEALTH BENEFITS

LARGE OPENINGS ALLOW DEEP SUNLIGHT TO REDUCE ENERGY COSTS

05 Professional Practice

Internship experience

2023 - Present

PIUS X ADDITIONS

The Pius X High School “Forward in Faith” campaign encompasses a series of additions and renovations to the existing highschool in Lincoln, Nebraska. My role in this project was to contribute to the schematic design process and develop a graphics package aimed at generating excitement and support for the campaign. The pursuit includes a new performing arts addition, a chapel renovation, upgrades to athletic facilities, and a redesigned site to accommodate these improvements. The designs enhance Pius’s existing high school while staying true to their core design preferences and values.

MU VETERINARY MEDICINE

Missouri University Vet Med is a laboratory project that I worked on in 2024. I primarily assisted in producing renders for the schematic design package, as well as 3D floorplans to provide easily digestible visuals of the interior layout. This project was my first time using the TwinMotion rendering software, which I now have an advanced understanding of. Later in the year, I assisted in giving an introductory seminar on the software to some of the members of the firm.

Revit TwinMotion

CENTERPOINTE CLINIC

The Centerpointe Campus for Health and Well-Being is a clinic in Lincoln, Nebraska that provides programs including mental health and substance use treatment, primary care services, rehabilitation, and housing. In this project, I was brought on to produce graphics of the completed addition for design award submissions.

Revit Adobe

khartley5@huskers.unl.edu

Turn static files into dynamic content formats.

Create a flipbook
Issuu converts static files into: digital portfolios, online yearbooks, online catalogs, digital photo albums and more. Sign up and create your flipbook.