Khang Do Portfolio

Page 1

Portfolio Undergraduate Khang Do Academic Works
and
2021-2024
Gerald D. Hines College of Architecture
Design
PORTFOLIO KHANG DO C O N T E N T S Sculptures Tap Central Northside Bio Crossing 4510 5500 2501 5500 03 02 04 01 Connected Exteriors

I. Central Northside

Situated in Houston’s Near Northside neighborhood, this master plan seeks to preserve the existing community and its heritage, while pivoting towards future oriented energy and career paths. Biotech labs, factories and schools will be created to provide long lasting education and career for the community. With a focus on adaptive reuse, infill development, and community projects will revitalize communities while remembering where they came from.

ARCH5500/Spring 2024

Software Used: Rhino, Autocad, Illustrator, Photoshop, Midjourney

Group Members: Khang Do, Flavie Giquel, Adil Mohammed, Salim Omar, Jehanne Bihan

CENTRAL NORTH SIDE SELECTED WORKS

Bio Campus

A campus for biotech students and professionals with a Satellite University, R&D Laboratories, Manufacturing Factory, and Supporting Industries

Museum Plaza

A cultural plaza with heavy adaptive reuse of warehouses and factories. Lush greenery, event spaces, commercial buildings, & restaurants surround the museum that acts as an anchor.

PORTFOLIO KHANG DO

A park with a community center, WIC center, artists lofts, art exhibits, and restaurants for the community to take part in. Old storage tanks used as sculptures and park fixtures.

CENTRAL NORTH SIDE SELECTED WORKS 70.00’ 8’ 10’ 11’ 4’ 2’ 10’ 11’ 2’ 4’ 8’ 60.00 12.00 60.00 16.00 18.27 20.00 105.73 10.00 124.00 88.00
Heritank Park Willow Street Sections Live Oak Magnolia Sycamore Poplar

II. Bio Crossing

This is a Satellite school for Life Science and Biotech majors of the University of Houston. is all about allowing for these majors to have an integrated experience that will allow them to have the best education they can get, while being a gateway for the surrounding community to have a long lasting biotech career. Focused on efficiencies and sustainability, the school focuses on optimizing energy usage while maximizing the experience of the occupants

ARCH5500/Spring 2024

Software Used: Revit, Rhino, Illustrator, Photoshop, VRay

PORTFOLIO KHANG DO

Bio Campus Site Plan

Program Diagram

Laboratories

Classrooms Atrium

20’x30’

Structure Grid

Steel

Structural System

BIO CROSSING SELECTED WORKS

Laboratories Classrooms

Level 1

Level 3&4

PORTFOLIO KHANG DO
Social Areas Office/Meeting/Admin
BIO CROSSING SELECTED WORKS
East Elevation

South Elevation

South Section

PORTFOLIO KHANG DO
BIO CROSSING SELECTED WORKS
Sustainability Section

III. Sculpture’s Tap

This mixture of Biergarten, art studios, and exhibition space seeks to uplift and represent local artists in Bellaire, Texas, while being a place of refuge for the rest of the community. The area has a noticeable lack of activity and deeply needed a focal point that can drive the community together. With a focus on sculpture gardens on the bottom floor and roof, it is an oasis from the average Houstonians daily life.

ARCH4510/FALL 2024

Software Used: Autocad, Rhino, Revit, Illustrator, Photoshop, VRay

Group Members: Khang Do, Zachary Johnson, Victoria Melling

PORTFOLIO KHANG DO

FORM DEVELOPMENT

FORM DEVELOPMENT

Punctured Fence Hinge Form

Elevated Form Ground Structure

FORM DEVELOPMENT

Extended Corners

Massing Site
Site
Massing Elevated Site
Massing Elevated Cores Site Massing Elevated Cores Intersect Site SCULPTURES TAP SELECTED WORKS Axon
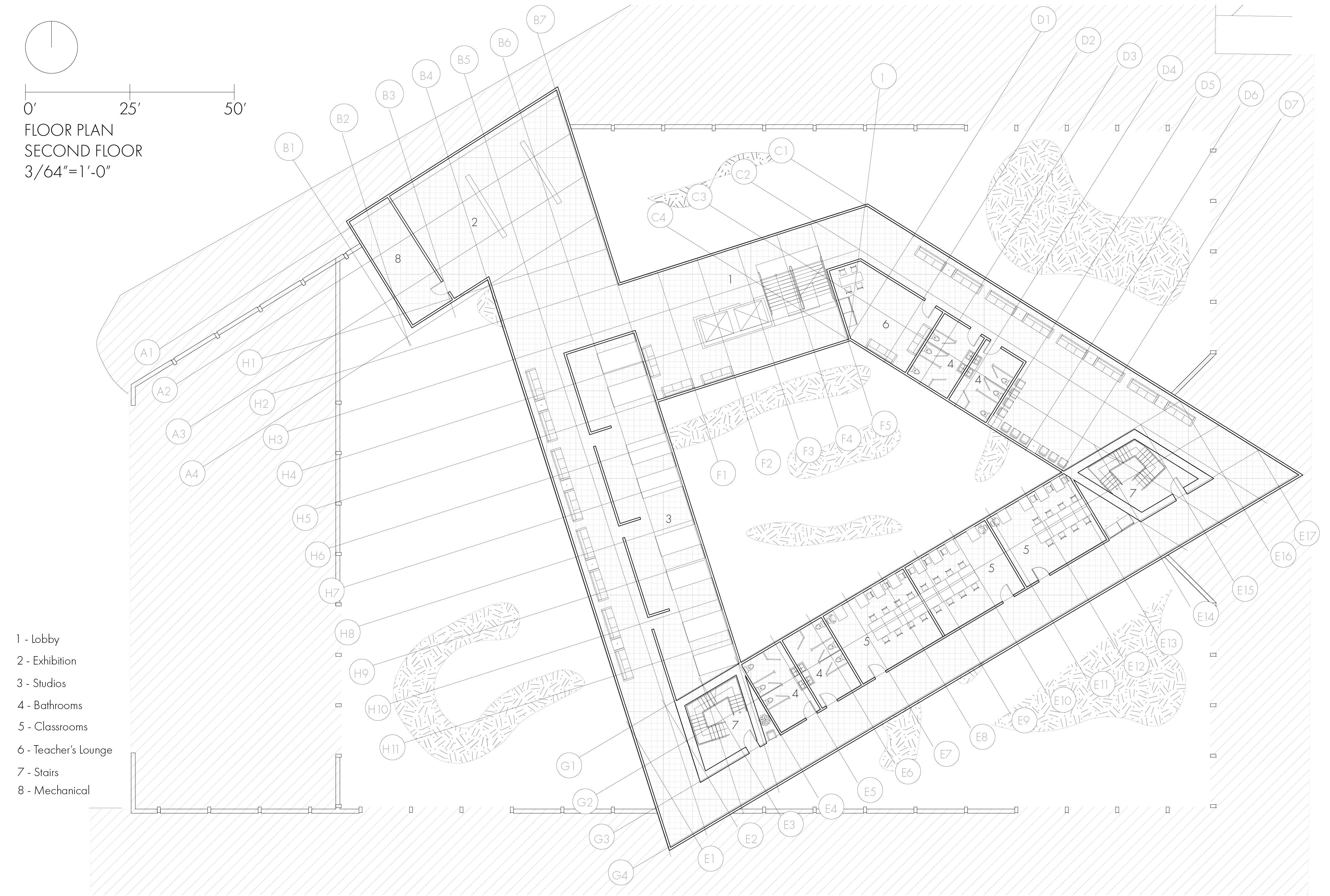
PORTFOLIO KHANG DO Level 2
SCULPTURES TAP SELECTED WORKS
West Section East Elevation

Material Section

PORTFOLIO KHANG DO
SCULPTURES TAP SELECTED WORKS
Structure Axon Column Chunk Oblique
PORTFOLIO KHANG DO
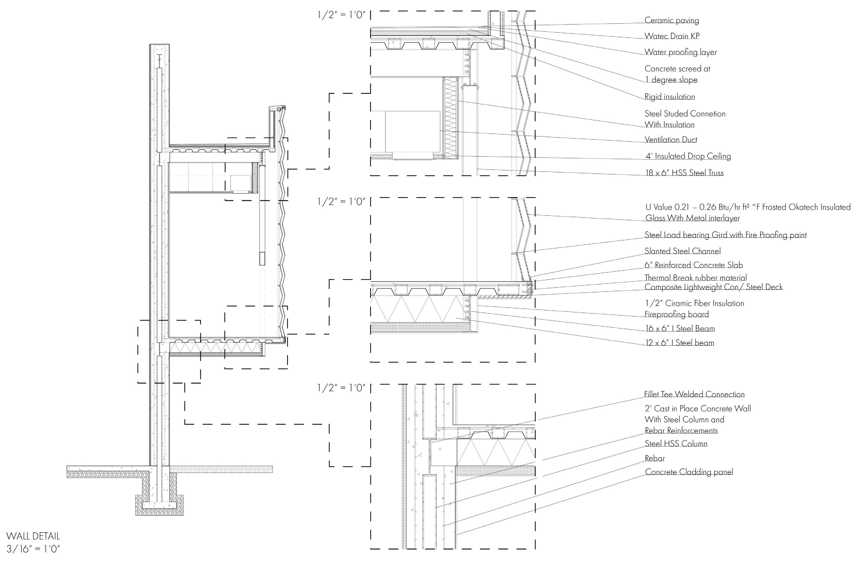
Wall Detail
SCULPTURES TAP SELECTED WORKS

IV. Connected Exteriors

Located near The Menil Drawing Institute, the project is a combination of a gym, student housing, a cafe, and book store. The project utilizes multiple greenhouses and a large spanning balcony system to connect these differing programs, provide exterior social spaces, and acts as a way to preserve all existing trees on the site in a non destructive manner.

ARCH4510/FALL 2024

Software Used: Rhino, Illustrator, Photoshop, Enscape

PORTFOLIO KHANG DO
CONNECTED EXTERIORS SELECTED WORKS
Balconies Greenhouses Program Spaces Columns Axon
3.
4.
5.
PORTFOLIO KHANG DO Level 1 Level 2 1 2 3 3 1 1 4 5 5 5 5 5 5 5 4 1 1
1. Greenhouse Social Area
2.
Book Store Rec Center Cafateria Dorms
CONNECTED EXTERIORS SELECTED WORKS
South Elevation West Elevation

South Section

PORTFOLIO KHANG DO

Turn static files into dynamic content formats.

Create a flipbook
Issuu converts static files into: digital portfolios, online yearbooks, online catalogs, digital photo albums and more. Sign up and create your flipbook.