Project 2.1 Re_Source | Material Tales Exhibition and Community Building

Page 1

/ PROJECT 2.1 RE_SOURCE JANUARY 2023 KERL VARGAS BA (Hons) Interior Architecture

PROJECT Re_Source

PROPOSAL

The exhibition addresses our growing problem of finite resources and the great need for material literacy as part of our responsibility and response to the ongoing climate crisis.

GLOBAL

SITE LOCAL

I

BRIEF/ SUTHERLAND

HOUSE

Part of the wider Sutherland Building, your site ‘Sutherland House’ is a self-contained structure, formerly housing Univerity security staff. It is currently unoccupied. You are being asked to re-imagine the currently derelict Sutherland House security building, to create a small-scale visitor centre, that will house a semi-permanent exhibition and a designer-in-residence.

MATERIAL TALES

Exhibition design uses space, object and user-experience to tell a story. Your exhibition ‘Material Tales’ will be broken into 4 distinct zones, through which the narrative will unfold. The exhibition to be hosted has been developed by the Design Museum, to educate and inspire visitors around the topic of materials, and the wider implications of the things we produce. The exhibition will be hosted for 12 months, after which the space will transform for the next theme.

1. Origins: ‘Where do materials come from?

2. Transformation: ‘How do we manipulate materials?’

3. Consequences: ‘What have we done?’

4. Evolution: ‘What is the future of materials?’

As part of the schedule of accomodation, you should include a space for a designer to work. Their work will respond to the contents of the exhibition.

With regard to the proposal, to be sustainable is a measure of whether an action or process can indefinitely keep going; a belief that empowered and resilient communities are the critical yet least tangible aspect of sustainable development.

“to take position, to situate” understanding my role and my circle of control (ideas), influence (local community) and concern (global)

My proposal aims to go beyond designing a semipermanent exhibtion space for ‘Material Tales’ to recognise the project’s important potential for community (re)building as one of the tools of sustainable development. It recognises the site’s potential for both temporary and long-term projects. The proposed exhibition space focuses on education and problem awareness, while the community aspect aims to engage the local and reach the wider public with the belief that the need to protect the planet and the people requires a larger, resilient and collaborative effort.

These proposed spaces, inside, outside and beyond, hopefully prioritise education and action in tandem to lead us to a more sustainable and responsible society. ProjectRe_Sourceexploresthepotentialofspaces for empowering and nurturing communities of future leaders, designers and changemakers towards a more resilient future.

MATERIALS

The main materials for the proposal are steel, polycarbonate and timber. The procurement of these materials aims to align with the proposal’s wider objective of sustainable sourcing that supports community relationships and local economies in the North East.

DESIGN STRATEGY

The starting point for the proposal’s design strategy stems from the careful understanding of the building’s background and context: Sutherland’s long-standing educational history. Sutherland building was part of the timeline when there was a struggle to find a place to situate and teach medicine. And while recalling one of my prompts How we can take actions, from where we are at present? I discovered that our architecture studio was once the dissection room of Durham’s College of Medicine. This led me to the path of comparing the dissection of bodies to the dissection of buildings.

Ultimately, this led me to focus on a dissection procedure: cutting, pulling, filling. The cutting and pulling of the south facade not only as a design strategy for insertion, but also as a symbolic act of moving away from the traditional, of opening a concrete space for a more abstract expansion, and inviting the community in. This design strategy embraces the proposal’s objective of ceating adaptive spaces for the exhibtion and the community.

CONSTRUCTION

The construction process is mainly divided into two categories: the proposed structure and the semi-permanent exhibition. Permanence and workability are the main parameters considered when choosing the materials. Understanding the importance of these paramaeters helps ensure a more sustainable construction strategy. For instance, reclaimed and/or recyled steel is used for the semi-permanent exhibition design due to its impermanence, whereas more durable and quality steel is used for the proposed structure.

Similarly, workability such as ease of assembly and disassembly differs between the structure and the exhibition. The latter make use of reclaimed scaffolding pipes that can be easily assembled, customised and adapted for modular design. On one hand, the former uses beam and column system that can be dismantled without and/or less disruption to the existing. This workability also plays a major part in providing the community the opportunity to take part in designing installations or interventions on and off site.

Another parameter considered is exposure to the elements, specifically applying to the building skin. The building skin is constructed in two layers, polycarbonate for outer skin and glass for inner skin. This approach floods the space with controllable natural light and atmosphere.

Downtaken and demolished interior parts such as doors, floor and walls are recycled and/or stored to be used in community build projects.

Kerl Gracely Ann Vargas Interior Architecture Year 2 | Semester 1

SECOND FLOOR c

The existing Sutherland house shares a wall with Sutherland building’s west wing. It is a domestic space surrounded with vacant outdoor spaces, and it is situated next to the contemporary studio extension. My proposal recognises the existing layers of architectural language and aims to communicate and contribute to the clusters of high brick walls through presevation of the existing and insertion of the proposed. This is done by preserving the north wall to be used for shelving, circulation experience, and most importantly, as a structural guide. On the other hand, the south facade is carefully cut and displaced to make room for a new space that connects inside and outside, old and new, exhibition and community. Displacing the south facade, provides an open plan programme that can be adapted to different functions, whether it is a space for the exhibition or the community. The proposed circulation supports this by acting as a partition, creating two rooms in each floor. The proposed facade creates a visual contrast with its translucent materiality, but its function complements the existing buildings and the site. It creates inside-outside spaces that communicate with the studio extension, and enhances the existing biodiversity on site.

Overall, the spatial design can accomodate a variety of function from semitemporary exhibitions spaces to lasting yet everchanging and dynamic community spaces.

FIRST FLOOR b

g EXISTING PROPOSED

f

a. site and ground works b. restored and displaced facade c. preserved existing structure d. proposed insertion structure e. proposed facade f. proposed storeys g. proposed circulation and access d

e

PROGRAMME
LIBRARY
PROGRAMME CAFE I - ORIGIN II - TRANSFORMATION III - CONSEQUENCES IV - EVOLUTION PUBLIC COMMUNITY EXHIBITION PROPOSED EXISTING SITE a. main entrance b. lift c. reception d. library e. lounge f. book shop g. side entrance h. furniture shop i. cafe j. the hatch k. balcony l. courtyard a b c d e f g h i j k l a a. lift b. brick shelf c. interactive book projection d. exhibition: I origin e. exhibtion: II transformation f. exhibition terrace b c d e f a. lift b. interactive wall projection c. exhibition: III consequences d. in-residence e. exhibtion: IV evolution a b c e d
GROUND FLOOR a

LONG SECTION

EXHIBITION:

ORIGIN TRANSFORMATION CONSEQUENCE I II III

Where do materials come from?

The first chapter of the exhibition provides an introduction to its main protagonists, examining materials such as wood, clay, glass, metal, plasticandfibreintheirrawstate.

Experience

Origin box

Upon arrival, the visitors are invited to gather by a large glass box that exhibits raw materials and how every materials no matter how complex or seemingly synthetic finds its origins in the earth.

Interactive archive projection

Tucked away on the corner, material properties are explored through a more focused and sensory experience, where visitors can interact with a projected book archive. Interactive microscopic images are aslo paired with large-scale raw material images to illustrate each of their unique properties.

Cultural Awareness

In collaboration with local and cultural venues, additional material and information can be exhibited on the wall and remaining display space. For instance, the section on emotional qualities can be supplemented with objects from Discovery museum’s collection and place a greater emphasis on history, anthropologyor science as required.

How do we manipulate materials?

This chapter showcases the technical possibilities and overwhelming scale of the materials that are being processed and mass produced today. It is a high-density,dynamic, and inspiring overview of how we have pushed materials to their technical limits, with an emphasis on speed,varietyandahighdegreeofspecialization.

Experience

The spatial design of this room evokes the overwhelming scale of materials we consume today through a controlled, layered experience. Mesh partitions are added as a complementary feature to the existing geometryand materials of the room: display units, brickwork, wooden flooring, exposed ceiling and translucent facade.

Inner, outer and in-between layers

The inner layer floods the the visitors’ field of view with displays of material inventions and technologies that have had a negative impact in our world, exhibiting the darker side of transformation. Whereas the outer layer exhibits the good side of transformation. Finally, the spaces in-between are filled with other categories of transformation, completing a spectrum of experience.

Local Enterprise

As part of the exhibition and the community’s values, the ground floor promotes local and second life material innovations. It also place a great emphasis on supporting young creatives’ works, providing them spaces to promote, exhibit and sell their works.

What have we done?

The third chapter of the exhibition examines the environmental and human impact of current global systems of material extraction and consumption.

Experience

A quiet, sensory and provocative space invites the visitor to reflect, as an important preparation for the final chapter of exhibition.

Main screen

Environmental impact is explored through a newly commissioned film, drawing together a mosaic of photography and moving image to illustrate the disastrous consequences of material extraction, from mining through tointensive cotton farming.

Interactive screen

Human impact is explored through a more focused case study, charting the violent history and legacy of the rubber industry. This section of the exhibition will bring to light the complex and often shocking stories linked to nature’s wonder material.

Memory space

In collaboration with Tyne and Wear Archives, Newcastle’s industrial revolution history and forgotten local stories are retold through an animated film to tell an alternative human impact story with greater local resonance.

I ORIGIN
III CONSEQUENCE II TRANSFORMATION I II III IV EVOLUTION
MATERIAL

MATERIAL TALES

Overview: Material Tales is a uniquely poetic exploration of the world of materials, taking visitoros on a journey through the origins, uses and evolution of matter. The objective of the exhibition is to offer an informative and empowring experience, aiming to foster greater respect, and care, for our material world.

As part of the wider Architecture and Built environment, the exhibition brief prompted me to think about the role we play as designers and an institution (creative thinkers and problem solvers) and the growing problem presented (finite resources and material literacy) in recognising how we can take actions, fromwhereweareatpresent.

The first part is understanding what is lacking in our community: a lack of education and understanding of the issue, a lack of resources, a lack of communal space and finally a lack of communal support and encouragement.

Second, is recognising the great potential of this brief and the site in reimagining a space where we can support and empower future changemaker and designers, to reimagine a space where we can grow and nurture resilient communities-the critical yet least tangible aspect of sustainable development.

Therefore, my design proposal focuses on designing a recurring flagship exhibition space (e.g. material lieteracy) as part of a wider community: Project Re_Source.

OBJECTIVE

This project aims to build a learning and resources hub as a practical response to the exhibtion, with a paritcular emphasis on community empowerment through creative participation. It aims to revive and re-evaluate community support traditions that shape our built enivronment. The exhibtion serves as the starting point for learning the importance of the project, an encouragement to engage in environmental, social and structural issues.

INPUT

The inputs will be mainly from the curated responses and materials of the exhibition, and a series of focused community workshops. The workshops can include tools such as storytelling, mapping, drawing, and model making. Ultimately, this will determine a common understanding of what, where, who, when, and how the structure should be built.

Theexhibtionisthecommunity’sopportunity to learn about the current situation. These tools aimtoelevatetheirlearningandexperiencesin determiningwhatvaluesandworldviewsmatter tothem,ultimatelyformingthebasis offuturediscussionandprojects.

These tools can help define what the community wants for the future and make connection between their values and the architecture.

IV

EVOLUTION IV

A backyard transformed by the community

As part of Exhibtion Chapter IV: Evolution, Project Re_Source Pavilion invites commited members of the community to transform the current derelict backyard of Sutherland building through a mutual support process.

What is the future of materials?

Thefinalchapteroftheexhibitionlookstothefutureofmaterials,and how designers are working to find more intelligent and sustainable ways of working with finite resources. The chapter reminds visitors thatmaterialsdesignisaconstantlyevolvingfield,andonethatplays animportantroleintacklingurgentenvironmentalandsocietalissues.

COMMUNITY IN-RESIDENCE

The most important chapter of the exhibition empowers the visitors to take postion and join the conversation through different initiaves and projects with the support of the community in-residence. This combines the exhibition’s material literacy objective and my proposal’s objective of community building.

Community

Project: Re_Source Pavilion

This project includes a ‘Participatory Design in Action’ element whereby new thinking around materials is generated, documented and shared through the Project Re_Source website. The community will design a toolkit based on mutual support and community empowerment to allow the visitors to take part in materials workshop and activities, allowing them to generate new thinking around materials and sustainability within a local context.

Ultimately, this will create a collaborative and ever-expanding depository of materials knowledge and framework to be used in designing and building a learning and resource pavilion as part of the wider community project of reactivating the derelict Sutherlandbackyard.

ProjectRe_Sourceanditspavilionareaconstantwork inprogress.Therefore,theaimistogenerateenough ownershipandcapacityforthecommunitytomaintain andoperatethebuildingsovertime.

Exhibtion Community Resources

The community in-residence provides a space for discussion and negotiation in determining the principles, values, and knowledge meaningful to the community and the project.

Process

The proposed structure, demolished and reclaimed materials can serve as starting point for the pavilion design, with materials sourced locally.

Learning Questioning Making-Concept-Design

This phase aims to reflect on what a ‘learning and resources hub’ mean to the community. It can focus on themes of life, work and places grounded in people’s experiences to better understand the needs of the users and function of the space.

Tools

The aim of the questioning space is to reflect on the benefits and challenges of the situation identified in the Learning phase. These reflections can form the basis in proposing ideas and concept for the design.

Storytelling

Storytellingisaboutsharingone’s personalexperience,andoffinding somethingincommonwithothers. Personalandcollectivestorytelling cangeneratenewnarratives,goals and collective actions.

Mapping

Theactoforganizing,categorizingand establishingrelationsbetweendifferent elements. This could be in the form of a communitymapthathighlightsspaces andbuildingsthatareimportanttothe grouporastakeholdermapgivingan accountofthepeopleinvolved.

Model making

Modelmakingenablesthetranslation ofideas,programsandconceptsinto space.Whileroleplayingormock-ups offeraveryconcreteexperienceofa building,amodeloffersamoreabstract understanding.

OUTPUT

PAVILION

The most tangible result of the project will be the pavilion developed through colloborative effort and process. This will function as a communal space for learning and collaboration.

Theambitionoftheproject elevate the exhibtion experience, to create collaboration and empower the community by giving them ownership of the process.

The next three phases aim to explore creative ways of working together to achieve a common goal and developing a common language to communicate and transform ideas into a design.

With theses phases and tools, a more diverse set of voices and values become reflected by the pavilion. The pavilion can then be seen as an embodiment of stories, meanings and ambitions carried by those who will occupy and relate to it.

Therelationshipofthe buildingasoutputtowhat goesintoitanditslongtermimpact.

Relationships The community and other relationships that will be built in the process are immediate outputs of the process. This will also serve as a precdent for how the pavilion and future projects will be operationalised

Empowerment

During the project, a community-led exhibtion can be mounted on site to give the community to share their ideas and reflect upon the project.

Interventions Smaller scale structures or projects can be created as a way to test ideas and other spatial relationships and on site. This can be another way of learning more about materials and construction methods.

Material and spatial literacy Through focused workshop and committed participation, the community will gain a more conscious and better understanding of material and space.

Precedent: Structures of Mutual Support Philippine Pavilion, 17th International Architecture Exhibition of La Biennale di Venezia, 2021

FACILITY

COMMUNITY + ENVIRONMENT

To create a space that fosters collaboration and empowers the community, the proposal looks beyond by the walls of the exhibtion to finally bring the derelict backyard of the Sutherland building into use. Currently, the backyard is primarily used for functional purposes such as storing bicycles, trash bins, etc., but not for community purposes even with a great potential of having a green wall, rain garden and colonnade in place. Thisproposalrecognisesthelackof collective spaces, the potential of reactivating the derelict and the dialoguewiththeexistinglanguagesofthesite.

Starting with the (1) central space that is the ground floor. A welcoming open plan cafe and library is designed between and within the outdoor spaces to promote interaction. To its east, the rain garden and colonnade are reactivated as a (2) courtyard that connects the building to the rest of the site. To its west, a more (3) public space is created by the existing brick fences. Finally to the south, the (4) displaced facade is turned into a community wall, whereas the (5) proposed facade creates a strong connection between the interior and exterior, consequently creating a variety of shared and private spaces for the community. The community is also encourage to participate in the care and enhancement of (6) biodiversity on site.

Similar to the facade, the programme follow’s an open plan design, with the ground floor serving as the spine that connects the site to its host building (east) and the public (west). This approach aims to accommodate a wide range of users and support the flexibility of the community space.

GREEN ROOF

The roof acts as an extension of the facade and the existing biodiversity on site. The skylight is supported by an internal translucent layer that gently disperses light and an external layer that collects rainwater.

GROUND WORKS

The cafe has concrete floors that absorb radient energy from low angled sun during winter months. The outdoor ground is leveled for useability and made permeable using downtaken materials to enhance rainwater collection.

THE CUT

The displaced south facade of the existing site now serves as an information carrier and a hatch. It tells the story of the site, and promotes the use of the outdoor space.

The site shares comfort room facility with its host building.

OUTDOOR SPACE AND BEYOND

For such objective, the building and its perimeters are secondary to realising how we can design spaces with no physical boundaries that can truly empower the communities and allow creative ideas, conversations and actions to take place. In this proposal, the cut/displaced existing facade is a symbol of how we can achieve this by moving away from architecture’s traditional focus of making spaces, to open and expand our ways of making and occupying spaces.

Exhibition: Resources

Theexhibtionasastartingpoint

To make use of materials that are readily available and simple to work with to support self-build and modular system approach

Empowerment Thereactivationofthesite

To provide the community with the resources and spaces that act as an open invitation to create and build together

Experimentation Thein-residenceandhostinstitutionasmediators

To collectively discuss, investigate and design projects, activities and intervations aimed at informing, empowering and stimulating a wider public participation

Expansion

Empoweredandresilientcommunityinaction

An evergrowing and changing collection of workshops, solutions and projects that supporting local, cultural, social, and environmental initiatives that are aligned with Project Re_Source’s values and objectives.

Beyond

Recognisingthe community’s circleofinfluenceandconcern

To slowly reactivate derelict spaces within the univeristy through designing a temporary yet recurring mobile exhibition or project using reclaimed and readily available materials such as scaffolding pipes (skeleton) and translucencies such as plastics and fabric (skin).

Precedents: Public Works, Folk Float, 2007. Public Works, Mobile Porch, 2000.

3
5 6
4

ENTERPRISE

A 2-in-1 cafe and shop where customers get to experience the products and connect not just with the space but with each other. The arrangement of the furniture allows space for conversation to take place. The selection offers both new and secondhand products, supporting small and local businesses. The space can also be converted into a public event space, and a community meeting space outside opening hours.

EDUCATION

Similar to the cafe, the library space is not only for reading and borrowing books, it is also a space where visitors can purchase zines and other small-circulation of local writing and prints, supporting young creatives and initiatives. It also showcases up-to-date news, exhibition related materials, and a community board, alongside the community’s digital archive.

STUDENT EXHIBITION

The main purpose of the courtyard is to promote a meaningful connection between the project site and the faculty. Students’ work and projects can be exhibited around the space, and on the the walls, either as part of the community exhibition or as standalone, recognising the important role the youth, students and educators play in Material Tales exhibition and beyond.

1 2 CAFE
a b c d e
LIBRARY COURTYARD
a b c d e f g
a. curtain wall partition b. furniture and craft shop c. storage and display d. cafe e. the hatch
a. reception b. shelf
to
b. operable window
access to balcony
rain garden
access to library and exhibition f. green wall
exhibition wall a b c d e f g
c. display d. polycarbonate partition e. lounge f. carpet g. courtyard and pavilion access a. access
cafe
c.
d.
e.
g.
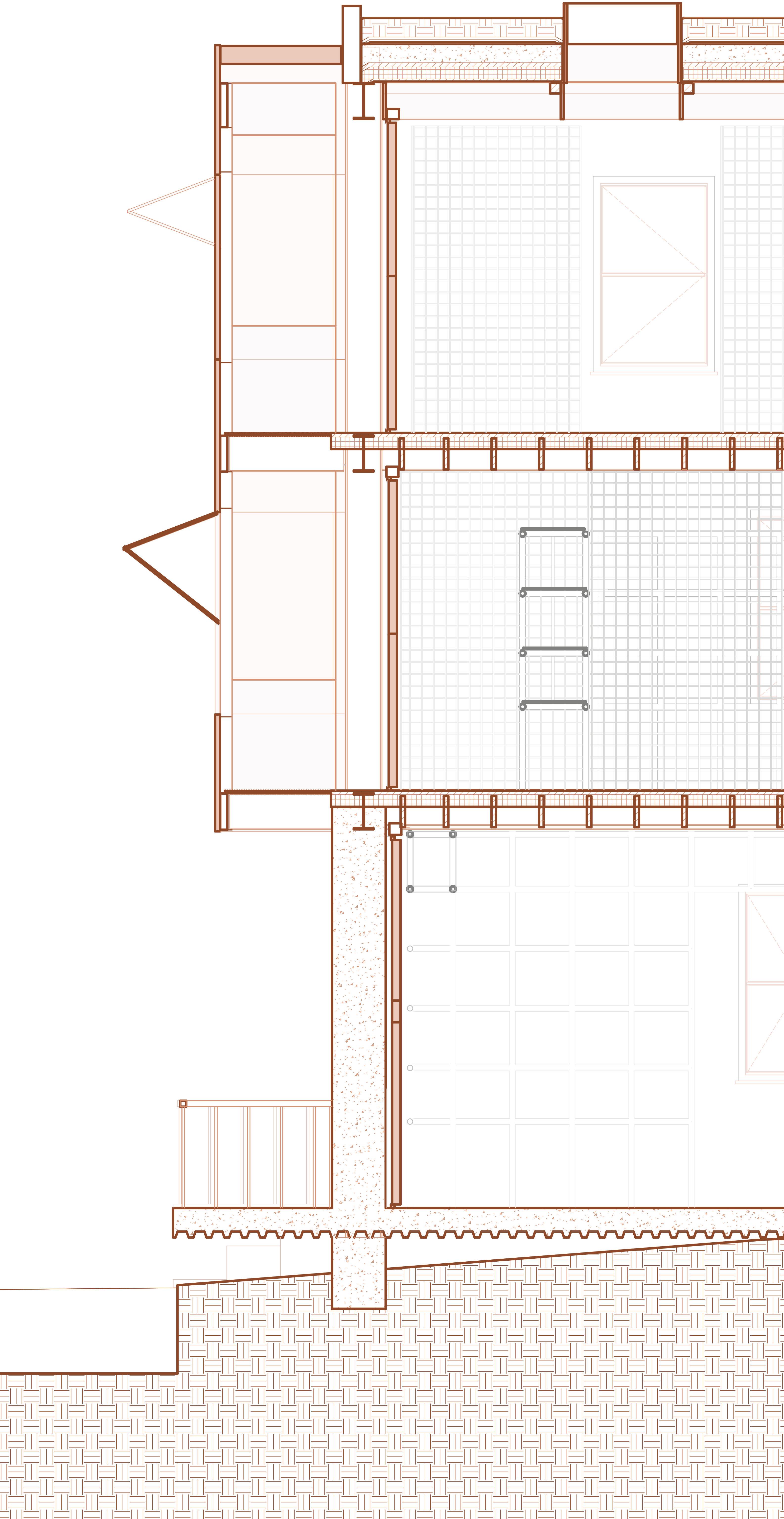
AXONOMETRIC SECTION OF EAST FACADE SOUTH ELEVATION EAST ELEVATION 1 structural concrete foundation 2 structural concrete flooring with 50mm metal deck 3 triple glazed sliding curtain wall partition 4 adjustable curtain wall anchor with hanger-suspension 5 exposed timber joist with hangers 6 structural beam system 7 insulation and acoustic layers between joists 8 two-layer wood planks flooring DETAIL 2 5 6 7 8 4 3 1 9 10 11 12 13 14 23 15 16 17 18 20 19 21 22 26 25 24 9 structural beam system 10 flat steel bars welded to exposed steel beams 11 folding polycarbonate window 12 stainless steel hinge 13 steel rail bolted to strutural steel 14 polycarbonate cladding with transparent insluation and stainless steel pin connection to steel rail 15 suspended polycarbonate ceiling system for solar control 16 timber framing support 17 plasterboard ceiling finish 18 insulation and protection layer 19 plywood deck with vapour control layer 20 concrete roof deck with and roof structure 21 skylight 22 stainless steel frame with waterproof membrane 23 polycarbonate ceiling with transparent insulation and stainless steel pin connection to steel rail 24 waterproof membrane and protection layer 25 green roof substrate 26 roof frame with hidden drainage system

Turn static files into dynamic content formats.

Create a flipbook
Issuu converts static files into: digital portfolios, online yearbooks, online catalogs, digital photo albums and more. Sign up and create your flipbook.
Project 2.1 Re_Source | Material Tales Exhibition and Community Building by Kerl Vargas - Issuu