Kezia Ranillo Interior Design Portfolio

Page 1

PORTFOLIO

INTERIOR ARCHITECTURE AND DESIGN - KEZIA RANILLO

KEZIA RANILLO

Columbia College Chicago

Interior Architecture BFA

My name is Kezia Ranillo and I am an Interior Design student currently studying in Chicago. Prior to college, I grew up and lived in Oakland, California. I discovered my love for design and architecture in high school, where I had the opportunity to compete statewide for Interior Design through FCCLA. I eventually placed 4th in state. I now attend Columbia College Chicago as a Dean’s List student and am working towards completing my Interior Architecture B.F.A.

As a designer, I have been deeply influenced by people like Bruce Mau (see cover quote) and Jeanne Gang. Like them, I hope to create more spaces to bring people together while being simultaneously accessible and equitable. I hope to embrace unique and vivid designs, and to celebrate the excitement of life within spaces.

CONTACT

IG: @keziamichalinteriors

EMAIL: keziaranillo@gmail.com

introduction

PROJECT 1 - NEXT CORPORATE OFFICE

Corporate Studio (studio 3) Final Project

PROJECT 2- OBSERVE AND LEARN

Corporate Studio (studio 3) Project One

PROJECT 3 - THE PAVILLION PROJECT

Narrative Studio (studio 4) Project One

PROJECT 4 - THE PIXEL HOTEL

Surface Manipulation Studio (studio 2) Final Project

PROJECT 5 - BATAD RESTAURANT

Introductary Studio (studio 1) Final Project

contents

Project One:

NEXT Corporate Office

PROJECT 5 - NEXT Corporate Office - Concept Design

DESIGN CONCEPT

A beehive is a strong, supportive structure with many different working parts and spaces for designated tasks. Beekeepers have developed this structure and just like manmade box hives, this design will feature easy wayfinding, intentional and translucent barriers, geometric structures, and modular features.

As people enter, the open layout will display the activity and buzz of the space and will encourage hands-on collaboration, learning, and experimentation.

With this design, we hope to promote diversity and inclusion; we are equity-focused with hopes that everyone who passes through this space has the same inspirational experience. This space provides modular options to create semi-private spaces throughout the building to encourage authenticity and integrity within our team and subsequently build trust and confidence with one another.

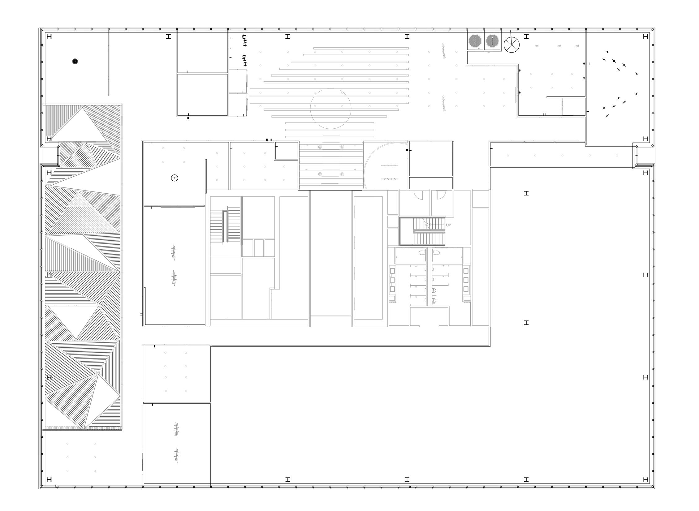
PROJECT 5 - NEXT Corporate Office - Plans and Section

Floor plan section cut north

reflected ceiling plan

Finishes

Logo
Reception
PROJECT 5 - NEXT Corporate Office -

NE T

PROJECT 5 - NEXT Corporate Office - Work Cafe

Finishes

Emerald by Benjamin Moore Leprechaun by Benjamin Moore Venetian Plaster Ice Mist by Benjamin Moore

PROJECT 5 - NEXT Corporate Office - Game room/Work Cafe

Finishes

Corridor Render Wellness room Render
Pet relief section Workstation Render

PROJECT 5 - NEXT Corporate Office - FURNITURE

SPECIFICATIONS

COLLABORATIVE MEETING SPACE

Poof by Bolia

CH-16

MODEL # AB0204640

Finish: Upholstry Location: Collaborative Team Spaces

Media:scape by Steelcase

CH-9

Material: Laminate and Veneer Location: Collaborative Team Spaces

High Tide Rug by Blu Dot

CPT-1

MODEL #

BD1RU1HIGHTD

Finish: Jute Location: Collaborative Team Spaces

Poof by Bolia

CH-4

MODEL # AB0204640

Finish: Upholstry Location: Collaborative Team Spaces

Secastopol by Steelcase

CH-15

MODEL # COEB2723H

Finish: Laminate and Wood Location: Collaborative Team Spaces

WORKSTATIONS

Flex Desk by Steelcase

T-8

MODEL #FLXERQ

Finish: Veneer and Plywood Location: Workstations

Gesture Chair by Steelcase

CH-14

Model # 442A30

Finish: Aluminum Location: Workstations

Screen by Steelcase

F-2

MODEL # FLXBUNDLE7

Finish: Upholstry Location: Workstations

RESOURCE ROOMS

LaserJet Printer by HP

F-5

MODEL # CF066A#BGJ

Location: Resource center

Turnstone Table by Steelcase

T-7

MODEL #TSBLNTOV

Material: N/A

Location: Inclusive Design Lab

Turnstone Chair by Steelcase

CH-13

Model # TSAVNST

Location: Inclusive Design Lab

Border Soft Seating by Orange Box

CH-10

MODEL #OBBORDER02

Finish: Laminate

Location: Inclusive Design Lab

PRIVATE OFFICES

Sterling by West Elm

CH-2

MODEL # WESMDC4CNFNA

Finish: Upholstry

Location: Private Offices

Greenpoint Desk by West Elm

T-1

MODEL # WESINDMP

Finish: Oak and Laminate

Location: Private Offices

KEY

PROJECT 5 - NEXT Corporate Office - FURNITURE

GAME ROOM

SPECIFICATIONS

Victor 2 by Steelcase

F-6

Finish: Oak Wood and Laminate

Location: Work

Cafe/Game Room

Billiard Table by Bedford

T-3

Model # su019oo

Finish: Walnut Location: Game Room

LARGE MEETING ROOM

Karmen Chair by Steelcase

CH-3

Model # 419B000

Finish: Intermix Textile

Location: Large Meeting Room

Karmen Chair by Steelcase

T-5

Model # SBMSEMR

Finish: Laminate

Location: Large Meeting Room

KEY

Sticks by Extrimis

F-4

Model # LAB038

Finish: Rubber and Rubberwood

Location: Work Cafe

Ready Stool by Blu Dot

CH-11

MODEL #BD1RD1BARSTL

Finish: Laminate

Location: Work Cafe

WORK CAFE

Established and Sons Beam Table

T-9

Model # EASBMTL2400

Finish: Black Location: Work Cafe

Sleek Low Back by Bolia

CH-5

Model # AB0207560

Finish: Beech wood, Oak wood, Black Leather

Location: Work Cafe

Coalesse Table by Steelcase

T-6

MODEL # 45-T1300H

Finish:Walnut and Veneer

Location: Work Cafe

Flex Active Frames by Steelcase

SH-1

Finish: Laminate Location: Work Cafe

Savina by Steelcase

CH-7

Model # VCBSAVCOMP1

Finish: Textiles

Location: Work Cafe

Perch Light by Mooi

L-1

MODEL #MI3PERCH1

Finish: Gold and White

Location: Work Cafe

Privacy Pod by OrangeBox

CH-12

MODEL #OB1QT04

Material: Various Location: Work Cafe

Fuuga Chair by Bolia

CH-6

Model # AB02124015

Finish: Wool Location: Work Cafe

Cugino Stool by Steelcase

CH-17

MODEL #IAM61

Finish: Oak Wood

Location: Work Cafe

Board Cart by Steelcase

F-3

MODEL #

FLXCTBDFinish: Metal Location: Collaborative Team Spaces

Migration by Steelcase

T-4

MODEL # MGELTLC

Finish: Laminate and Veneer

Location: Work Nooks

Lagunitas Table by Steelcase

T-2

Model #COLAGTO

Finish: Laminate

Location: Work Cafe

Belle Sofa by West Elm

CH-8

Model # WESBELC

Material: Upholstry

Location: Work Cafe

Entry Corridor

PROJECT 1 - OBSERVE AND LEARN

In this project, I explored Human Centered Design: theories that are related to the impact of the built environment on human experience, behavior and performance.

I first begun by exploring the emotional aspects of the space, then I observed its physical attributes. Afterwards, I measured and recorded dimensions related to the space I was in. I sketched my work, home, school, and things along my commute and eventually compiled them to capture my user journey. When my research was complete, I created a final collage of my work and experience.

HAND SKETCH -classroom

HAND SKETCH -bedroom

HAND SKETCH -office

HAND SKETCH -final collage pre photoshop

SKETCH -house
HAND
final collage

Project three:

The Pavillion Project

PROJECT 3 - THE PAVILLION PROJECT - Conceptual Storytelling

Anticipation: the expectation or prediction of something foreseen.

The emotion of anticipation lasts for varying lengths. It can be drawn out, abrupt, or it lingers as you take your mind off of it. My first iterations of this

pavilion depended on the transitional factor of the emotion. I wanted to create transitional space, like a walkway to represent it. But as I continued to

develop it, I realized that anticipation was minimal while complex, both happy and sad, and it wasnt as simple as i thought. It was dynamic with a hidden truth.

As I continued with this idea, I played with the triangle; it reminded me of the crescendo and decrescendo within music. For myself, I anticipate the build of the crescendo and

where it might take me… an abrupt stop? A mellow finish? The anticipation leaves me on the edge of my seat as the song finishes.

PROJECT 3 - THE PAVILLION PROJECT - Sketches and Draft Models

As you can see in my draft models, I eventually decided on three different spaces for my pavilion; an entryway to build the suspense, a middle chamber to invoke contemplation and prediction, and the light at the end of the tunnel, to show hopelessness and maybe… hope.

PROJECT 3 - THE PAVILLION PROJECT - Storytelling

Approach

As the viewer approaches, the smell of grass engulfs them as the surrounding is a grass terrain. Grass is a multi facetted greenary that could mean anything, envoking mystery

and anticipation as they get closer.

The first thing that draws the viewer to the pavillion from afar is the center pyramid. This pyramid is made out of a one way mirror; on the

exterior it reflects its environment; the trees, people, sky, and clouds. This interest draws the observer closer and they cant help but be interested on what might be inside.

As guests move through the space, the circulation is quite straight forward. Its open on both sides, and becomes a passageway and forms a physical extension of the space.

Circulation Floorplan

As you enter the main chamber the floor changes and you are guided by a walkway. This walkway is made of highly reflective steel, to match the facade as well as create a mysterious acoustic sound effect as viewers can here the click of every heel that meets the path. This causes a sense of curiousity and reflection.

Entry

As they enter the threshhold, they pass through the skeleton of triangles that slowly leads them to a small opening.

This entry way showcases movement and easy wayfinding to the viewer as the triangles start larger and gradually decrease, guiding them along the path.

The path they follow is linear, walking guests through the sequence as they make their way.

PROJECT 3 - THE PAVILLION PROJECT - Storytelling

metal beams

grass terrain

Axonometric

black monolithic metal

Parallel to walk, above their head is a slit in the structure to let in light. This feature could also be used for wayfinding. You‘ll notice that all the edges of the planes don’t touch, representing

one way dimmed glass

metal beams

reflective steel pathway

concrete floor

anticipation as a transitional emotion, as there is a possibility of an end in sight but not guaranteed. The viewer soon realizes the reflective box isnt as exciting as they had hoped, because all

concrete stairs

they see are just windows to the outside world. This dissatisfaction causes them to cross the threshold to the final stage.

Perspective

As guests follow the straight pathway through the chamber, they are let out to an amphitheaterlike area. As the viewer looks around wondering what awe they

might be struck with, they might be a bit confused or let down by the absence of excitement. But as the viewer takes one last sigh from their adventure they

take a seat and what they see next… is something they hadn’t anticipated from the beginning. The anticipation, wasn’t just that -it was hope.

PROJECT
Storytelling
3 - THE PAVILLION PROJECT -

Final Model

Perspective: Pavillion Unveiled

PROJECT 4 - Pixel Hotel - Site and Concept

DESIGN CONCEPT

The Pixel Hotel hopes to contribute to the local gaming community of Chicago. We have a targeted demographic of millenials but are also welcoming of all ages.

A large part of our featured amenities involves the local gaming tournament scene. Every week our hotel holds tournaments in our special event rooms on the 2nd and 3rd floors. Our bar and restaurant stream these matches and many people come to cheer on their friends or just to watch some games and have a drink.

GAMER INSPIRED

Over the years, the gaming aesthetic has evolved from a retro arcade style to a new sleek look. This new style features lots of bright colored LED lights,geometric shapes, and simple colored furniture.

The Pixel Hotel design hopes to feature the evolution of gaming starting with the chunky retro look to today‘s modern style. It has a color palette of purple, magenta, white, cyan, and blue with green highlights. The color palette was inspired by an outdated arcade

PROJECT 4 - Pixel Hotel - Floor Plans

FIRST FLOOR PLAN

SECOND FLOOR PLAN

Kitchen Cafe bar
cafe seating Restaurant Reception Office/ Storage Storage Lightwell Entry

THIRD FLOOR PLAN

FOURTH FLOOR PLAN

PROJECT 4 - The Pixel Hotel - First Floor Section and Callouts
PROJECT 4 - The Pixel Hotel - First Floor Cafe
PROJECT 4 - The Pixel Hotel - First Floor Restaurant

PROJECT 4 - The Pixel Hotel - Second Floor Bar

PROJECT 4 - The Pixel Hotel - Third Floor Tournament Room

PROJECT 4 - The Pixel Hotel - Corridors

Internet cafe corridor
Guest room corridor

PROJECT 4 - The Pixel Hotel - Standard Guest Bedroom Design

Antonia armchair Cadmium area rug white carpet Floorplan Section Cut taylor bone side table
Standard Bedroom Render
ADA Bedroom Render

PROJECT 4 - The Pixel Hotel - ADA Guest Bedroom Design

Floorplan Section Cut tetris wall art Miryam sideboard manhatten armchair blue lusc wall sconce

PROJECT 2 - Batad Restourant - ConceptDesignandAnalysis

SITE ANALYSIS

619 S. Wabash

Built: 1920

This building has a rich culture which has been passed down by many organizations and used for many different reasons like commercial, restaurant, and office. Many people walk through this neighborhood in hopes to find some place new to eat at and enjoy. This environment creates an exciting opportunity to thrive and stand out.

Batad is a restaurant inspired by Filipino cuisine and culture. The menu will consist of traditional Filipino dishes as well as some new recipes but the same traditional ingredients. The highlight of the menu are the chicken wings that are made at the demonstration bar, and will come in 4 flavours familiar to this cuisine: adobo, sinigang, calamansi&pepper, and Filipino BBQ.

Batad is named after the place the rice terraces are located, because the design is heavily inspired by the beautiful waves of the rice terraces and the bustling markets of the Philippines. The green and orange color scheme, as well as the warm lighting, hopes to create an atmosphere in which the viewers can imagine being in the humid and life-filled Batad Mountains.

The style of the restaurant was inspired by a more modern, contemporary look at Filipino interior design. Lots of greenary is used along with rattan, bamboo, and unique accent pieces inspired by Filipino culture.

PROJECT 2 - Batad Restourant - technicaldrawings

axonometric section cut north
reflected ceiling plan floor plan

PROJECT 2 - Batad Restourant - RENDERS(handrawnandwatercolored)

arya rattan chair peacock chairs remini bookshelf cermaic floor tile orange textile bamboo finish large varnished dining table adarna chair banana leaf hanging light mountain wall sconce (led) emerald green subway tile

Kezia Ranillo 2023

end
Kezia Ranillo 2023

Turn static files into dynamic content formats.

Create a flipbook
Issuu converts static files into: digital portfolios, online yearbooks, online catalogs, digital photo albums and more. Sign up and create your flipbook.