KEZIA RANILLO INTERIOR ARCHITECTURE PORTFOLIO

Page 1

PORTFOLIO

INTERIOR ARCHITECTURE AND DESIGN - KEZIA RANILLO

My name is Kezia Ranillo and I am an Interior Design student currently studying in Chicago. Prior to college, I grew up and lived in Oakland, California. I discovered my love for design and architecture in high school, where I had the opportunity to compete statewide for Interior Design through FCCLA, in which I placed 4th in California. I now attend Columbia College Chicago as a Dean’s List student and am working towards completing my Interior Architecture B.F.A.

As a designer, I have been deeply influenced by people like Bruce Mau and Jeanne Gang. Like them, I hope to create more spaces to bring people together while being simultaneously accessible and equitable. I hope to embrace unique and intentional designs, which celebrate the excitement of life within spaces.

KEZIA RANILLO Columbia College Chicago Interior Architecture BFA
introduction

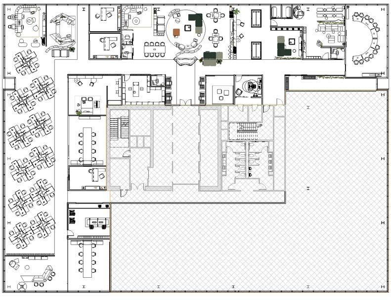
PROJECT 1 - NEXT CORPORATE OFFICE

Corporate Studio (studio 3) Final Project

PROJECT 2- A S S I M I L A T E

Narrative Studio (studio 4) Final Project

PROJECT 3 - THE PAVILLION PROJECT

Narrative Studio (studio 4) Project One

contents

3

Project One:

NEXT

Corporate Office

PROJECT 1 - NEXT Corporate Office - Concept Design

DESIGN CONCEPT

A beehive is a strong, supportive structure with many different working parts and spaces for designated tasks. Beekeepers have developed this structure and just like manmade box hives, this design will feature easy wayfinding, intentional and translucent barriers, geometric structures, and modular features.

As people enter, the open layout will display the activity and buzz of the space and will encourage hands-on collaboration, learning, and experimentation.

Ventilation

Product Storage

Resource Rooms

Private Offices

Honeycomb

With this design, we hope to promote diversity and inclusion; we are equity-focused with hopes that everyone who passes through this space has the same inspirational experience. This space provides modular options to create semi-private spaces throughout the building to encourage authenticity and integrity within our team and subsequently build trust and confidence with one another.

HVAC
Storage Bottom
reducer
Flooring Reception
Entrance
Deep brood box
7
Corporate
Floor plan 8
PROJECT 1 - NEXT
Office - PLANS and SECTIONS
Reflected Ceiling Plan Office Electircal Plan
cut north 9
Finish plan Section

PROJECT 1 - NEXT Corporate Office - RECEPTION

NE T
Logo

PROJECT 1 - NEXT Corporate Office - WORK CAFE

Venetian Plaster Ice Mist by Benjamin Moore Leprechaun by Benjamin Moore Blond by Benjamin Moore

PROJECT 1 - NEXT Corporate Office - GAME ROOM

12

PROJECT 1 - NEXT Corporate Office - Collaborative Team Space

Green Laminate by Steelcase Bo Peep Upholstry by Steelcase Belle Sofa by West Elm Board Cart by Steelcase

PROJECT 1 - NEXT Corporate Office - GAME ROOM

Wellness room Pet relief section Corridor Workstation Render

PROJECT 1 - NEXT Corporate Office - FURNITURE SPECIFICATIONS

COLLABORATIVE MEETING SPACE

PRIVATE OFFICES

Poof by Bolia

CH-16

MODEL # AB0204640

Finish: Upholstry

Location: Collaborative Team Spaces

Media:scape by Steelcase

CH-9

Material: Laminate and Veneer Location: Collaborative

High Tide Rug by Blu Dot

CPT-1

MODEL #

BD1RU1HIGHTD

Finish: Jute Location: Collaborative Team Spaces

Sterling by West Elm

CH-2

MODEL # WESMDC4CNFNA

Finish: Upholstry Location: Private Offices

GAME ROOM

Greenpoint Desk by West Elm

T-1

MODEL # WESINDMP

Finish: Oak and Laminate

Location: Private Offices

Poof by Bolia

CH-4

MODEL # AB0204640

Finish: Upholstry

Location:

Collaborative Team Spaces

Secastopol by Steelcase

CH-15

MODEL # COEB2723H

Finish: Laminate and Wood

Location: Collaborative Team Spaces

RESOURCE ROOMS

Victor 2 by Steelcase

F-6

WORKSTATIONS

Flex Desk by Steelcase

T-8

MODEL #FLXERQ

Finish: Veneer and

Plywood

Location: Workstations

Gesture Chair by Steelcase

CH-14

Model # 442A30

Finish: Aluminum Location: Workstations

LaserJet Printer by HP

F-5

MODEL # CF066A#BGJ

Location: Resource center

Turnstone Table by Steelcase

T-7

Finish: Oak Wood and Laminate

Location: Work

Cafe/Game Room

Billiard Table by Bedford

T-3

Model # su019oo

Finish: Walnut Location: Game Room

LARGE MEETING ROOM

MODEL #TSBLNTOV

Material: N/A

Location: Inclusive

Screen by Steelcase

F-2

MODEL # FLXBUNDLE7

Finish: Upholstry Location: Workstations

Turnstone Chair by Steelcase

CH-13

Model # TSAVNST

Location: Inclusive Design Lab

Border Soft Seating by Orange Box

CH-10

MODEL #OBBORDER02

Finish: Laminate Location: Inclusive Design Lab

Karmen Chair by Steelcase

CH-3

Model # 419B000

Finish: Intermix Textile

Location: Large Meeting Room

Karmen Chair by Steelcase

T-5

Model # SBMSEMR

Finish: Laminate

Location: Large Meeting Room

KEY

PROJECT 1 - NEXT Corporate Office - FURNITURE SPECIFICATIONS

WORK CAFE

Sticks by Extrimis

F-4

Model # LAB038

Finish: Rubber and Rubberwood Location: Work Cafe

Ready Stool by Blu Dot

CH-11

MODEL #BD1RD1BARSTL

Finish: Laminate Location: Work Cafe

Coalesse Table by Steelcase

T-6

MODEL # 45-T1300H

Finish:Walnut and Veneer Location: Work Cafe

Flex Active Frames by Steelcase

SH-1

Finish: Laminate Location: Work Cafe

Savina by Steelcase

CH-7

Model # VCBSAVCOMP1

Finish: Textiles Location: Work Cafe

Established and Sons Beam Table

T-9

Model # EASBMTL2400

Finish: Black Location: Work Cafe

Sleek Low Back by Bolia

CH-5

Model # AB0207560

Finish: Beech wood, Oak wood, Black Leather Location: Work Cafe

Fuuga Chair by Bolia

CH-6

Model # AB02124015

Finish: Wool Location: Work Cafe

Cugino Stool by Steelcase

CH-17

MODEL #IAM61

Finish: Oak Wood Location: Work Cafe

Board Cart by Steelcase

F-3

MODEL #

FLXCTBDFinish: Metal

Location: Collaborative Team Spaces

Perch Light by Mooi

L-1

MODEL #MI3PERCH1

Finish: Gold and White Location: Work Cafe

Privacy Pod by OrangeBox

CH-12

MODEL #OB1QT04

Material: Various Location: Work Cafe

Migration by Steelcase

T-4

MODEL # MGELTLC

Finish: Laminate and Veneer Location: Work Nooks

Lagunitas Table by Steelcase

T-2

Model #COLAGTO

Finish: Laminate Location: Work Cafe

Belle Sofa by West Elm

CH-8

Model # WESBELC

Material: Upholstry

Location: Work Cafe

KEY 16

PROJECT 1 - NEXT Corporate Office - Entry Corridor

Project Two:

A S S I M I L A T E

Art by Sally Deng; artistic interpretation on the struggle of Asian American assimilation

exhibition: Assimilate

Assimilate : A cultural exhibition, explores 4 main topics within the Asian acculturation to the melting pot of the US. These topics are:

1) Generating New Identities,

2) Challenging the “Model Minority” Label,

3) Origins and Ethnicities

4) Emerging Diversities.

building: d u A lity of culture

This exhibition focuses on the dualities of cultural abstraction. We hope to provide a platform in which artists can ground themselves in creating conversations that promote diversity, inclusion, and aims to bring con -

neighborhood: ravenswood

Surrounding buildings

Streets

l ocation: chic A go, il

Greenery River PROJECT 2 - A S S I M I L A T E - SITE ANALYSIS 20
PROJECT 2 - A S S I M I L A T E - INSPIRATION
21
IMAGES
PROJECT 2 - A S S I M I L A T E -
IDEATION SKETCHES

An intertwining coil. Infinity transpired from a singular wall, where anteriority begins to entangle with posteriority.

PROJECT 2 - A S S I M I L A T E - IDEATION SKETCHES
23

Multiple Path

Areas of Affinity

Space within a space

Adjacent Spaces

PROJECT 2 - A S S I M I L A T E -
Circulation Diagram

i dentity: w ho A re you? (interactive)

emerging diversities: profile narr Atives

who A re we seen A s: A sian origins A nd “model minority”

PROJECT 2 - A S S I M I L A T E - Circulation Diagram

THERMOFORMED CORIAN

Exploded Axonometric & Model

VENETIAN PLASTER

REFLECTIVE INTERIOR MIRROR

CUSTOM CORIAN SEATING

SANDBLASTED GLASS PANELS

INITIAL ENTRY (FRONT)

METALLIC EPOXY FLOOR -

SECOND ENTRY (BACK)

PROJECT 2 - A S S I M I L A T E -
26

Section Breakdown

ORIGINS: TRADITIONAL DRESS EXHIBIT

WOODEN STAND WITH UPLIGHT

SECOND ENTRY

EMERGING DIVERSITIES: PROFILE NARRATIVES

CUSTOM CORIAN DECORATIVE MIRROR

WHO ARE WE SEEN AS?: INTERACTIVE REFLECTION WALL

PROJECT 2 - A S S I M I L A T E -

Approach Render

PROJECT 2 - A S S I M I L A T E -
28
PROJECT 2 - A S S I M I L A T E - Entry Render

PROJECT 2 - A S S I M I L A T E - Exploration Render

31
PROJECT 2 - A S S I M I L A T E - Reflection Render

Project Three:

The Pavillion Project

PROJECT 3 - THE PAVILLION PROJECT - Conceptual Storytelling

Anticipation: the expectation or prediction of something foreseen.

The emotion of anticipation lasts for varying lengths. It can be drawn out, abrupt, or it lingers as you take your mind off of it. My first iterations of this

pavilion depended on the transitional factor of the emotion. I wanted to create transitional space, like a walkway to represent it. But as I continued to

develop it, I realized that anticipation was minimal while complex, both happy and sad, and it wasnt as simple as i thought. It was dynamic with a hidden truth.

As I continued with this idea, I played with the triangle; it reminded me of the crescendo and decrescendo within music. For myself, I anticipate the build

of the crescendo and where it might take me… an abrupt stop? A mellow finish? The anticipation leaves me on the edge of my seat as the song finishes.

PROJECT 3 - THE PAVILLION PROJECT - Sketching and Sketch Models

As you can see in my draft models, I eventually decided on three different spaces for my pavilion; an entryway to build the suspense, a middle chamber to invoke contemplation and prediction, and the light at the end of the tunnel, to show hopelessness and maybe… hope.

Approach

As the viewer approaches, the smell of grass engulfs them as the surrounding is a grass terrain. Grass is a multi facetted greenary that could mean anything, envoking mystery

and anticipation as they get closer. The first thing that draws the viewer to the pavillion from afar is the center pyramid. This pyramid is made out of a one way mirror; on the

exterior it reflects its environment; the trees, people, sky, and clouds. This interest draws the observer closer and they cant help but be interested on what might be inside.

PROJECT 3 - THE PAVILLION PROJECT - Approach (Storytelling)
36

Circulation Plan

As guests move through the space, the circulation is quite straight forward. Its open on both sides, and becomes a passageway and forms a physical extension of the space.

Floorplan

As you enter the main chamber the floor changes and you are guided by a walkway. This walkway is made of highly reflective steel, to match the facade as well as create a mysterious acoustic sound effect as viewers can here the click of every heel that meets the path. This causes a sense of curiousity and reflection.

PROJECT 3 - THE PAVILLION
PROJECT - Plans
37

As they enter the threshhold, they pass through the skeleton of triangles that slowly leads them to a small opening.

This entry way showcases movement and easy wayfinding to the viewer as the triangles start larger and gradually decrease, guiding them along the path.

The path they follow is linear, walking guests through the sequence as they make their way.

PROJECT
THE
Entry (Storytelling)
3 -
PAVILLION PROJECT -
38
Entry

Axonometric

Parallel to walk, above their head is a slit in the structure to let in light. This feature could also be used for wayfinding. You‘ll notice that all the edges of the planes don’t touch, representing

anticipation as a transitional emotion, as there is a possibility of an end in sight but not guaranteed. The viewer soon realizes the reflective box isnt as exciting as they had hoped, because all

they see are just windows to the outside world. This dissatisfaction causes them to cross the threshold to the final stage.

PROJECT 3 - THE PAVILLION PROJECT - Axonometric (Storytelling)
concrete
concrete
one
grass
39
metal beams metal beams
stairs
floor reflective steel pathway
way dimmed glass black monolithic metal
terrain

PROJECT 3 - THE PAVILLION PROJECT - Exit Perspective

PROJECT 3 - THE PAVILLION PROJECT - Perspective and Final Model

Perspective

As guests follow the straight pathway through the chamber, they are let out to an amphitheaterlike area. As the viewer looks around wondering what awe they

might be struck with, they might be a bit confused or let down by the absence of excitement. But as the viewer takes one last sigh from their adventure they

take a seat and what they see next… is something they hadn’t anticipated from the beginning. The anticipation, wasn’t just that -it was hope.

Final Model

41
KEZIA RANILLO STUDENT PORTFOLIO Columbia College Chicago 2024 Interior Architecture BFA

Turn static files into dynamic content formats.

Create a flipbook
Issuu converts static files into: digital portfolios, online yearbooks, online catalogs, digital photo albums and more. Sign up and create your flipbook.
KEZIA RANILLO INTERIOR ARCHITECTURE PORTFOLIO by keziaranillo - Issuu