Kevin Portfolio 2024

Page 1

ARCHITECTURE PORTFOLIO | 2024

PHONE NO: 6235554566

EMAIL ID: kevintarkowsky@gmail.com

1
KEVIN

Hey! Kevin here,

I am Kevin Luis, currently in my fifth semester at DC School of architecture and design Trivandrum. As a dedicated architecture student, i am on a continous journey of exploration and learning.

This portfolio is a snapshot of my passion for innovative design and my commitment to pushing boundaries of architectural creativity.

Enjoy the journey through my selected architectural works.

Language proficiency: English,Malayalam,Tamil

DOB:16/04/2002

PHONE NO : 6235554566

EMAIL ID : Kevintarkowsky@gmail.com

Kerala.

2 PORTFOLIO | 2024

EDUCATION

2021-2026 BACHELORS IN ARCHITECTURE

DC School of Architecture and Design, Trivandrum

2018-2020 SENIOR SECONDARY EDUCATION

MGM Higher Secondary School, Wayanad

2005-2018 SECONDARY EDUCATION

St.Patricks ICSE School, Wayanad

SKILLS

CAD and 3D Modelling

Autodesk AutoCAD

Sketchup

Revit (beginner)

Composition and Presentation

Adobe Photoshop

Adobe Indesign

Adobe Premiere pro

Adobe Illustrator

3D Rendering

Twin motion

Enscape

V-Ray

D-5

Other

Physical Modelling

Physical Drafting

Laser Cutting

CNC Cutting

WORKSHOPS

Bamboo Workshop

Tac Design Lab

Modeling and Rendering Workshop

Aswin Kumar,BAMAKA STUDIO

Europe Summer School Exchange Program

LxS Summer school workshop on ephermal devices

Pottery Workshop

Byju SR , CERRAA BAGS

3 PORTFOLIO | 2024 Curriculum Vitae

1.

Tree Of Life

Academic Project/semester 2

Office design

2. KUFOS Fisheries Campus

Academic project/semester 5

Campus design

3. Junction Space

LxS Summer School Workshop

Ephemeral device design

4. Revathy Kalamandir

Academic project/Semester 5

Retrofitting

5. Layanam Academic project/semester 4

Historiscm

6. Catrumara padal

Academic project/semester 3

Community centre

7. Working Drawings

Ephermal device design

8. Miscellanious Projects

Compilation of other projects

PORTFOLIO | 2024
TABLE OF CONTENT

01. Tree Of Life

Academic Project/Semester 2

Location: Akulam,Trivandrum

Category: Architecture Office

Software Used: AutoCAD,Sketchup, Photoshop,Twin Motion

Individual Project

The concept of this design is inspired from Terrance Mallicks Tree of life film.

Initially i tried to connect with the site features such as trees,water,pond,muddy soil and then i tried to integrate the idea of earths existence is solely depended on trees and the trees are depended on water.

in a way i abstracted the scenes and frames of the film tree of life through the journey of designing this project.

6 PORTFOLIO | 2024
ELEVATION
7 PORTFOLIO | 2024
FIRST FLOOR PLAN
GROUND FLOOR PLAN
8
SECTION A-A
PORTFOLIO | 2024
SECTION B-B
10 PORTFOLIO | 2024
CONSTRUCTION DETAIL
RENDERED VIEW
11 PORTFOLIO | 2024

Academic Project/Semester 5

Location: Kundara,kollam.kerala

Category: Campus Design

Software Used: AutoCAD,Sketchup,Photoshop,Adobe Illustrator

Individual Project

12
02. KUFOS Fisheries Campus
PORTFOLIO | 2024

The basic concept of the the campus design is to interpret the old kollam harbour, port and the historical importance it had in the past. also the masterplanning of of the orientation of kollam city and its harbours at different areas which are connected to the main port neendakara, by means of bridges and lakes, so as a part of design, the spatial zoning is an interpretation of kollam harbour and city planning .by using the principles like datum, hierarchy and order. also on designing different space typologies, the spaces are the interpretation of old ports harbours and water bodies which are incorporated with site and surrounding considering the analysis of the site and the function of the campus that is to be designed.

since the campus is for fisheries and ocean studies, it is believed to maintain the cultural importance and history of the place which is strategically interpreted in the design which will enhance the authenticity of spatial language.

13
Master plan
14 PORTFOLIO | 2024

Views

15 PORTFOLIO | 2024
Site
plan
16 PORTFOLIO | 2024
17 PORTFOLIO | 2024
PORTFOLIO | 2024
FIRST FLOOR PLAN CANTEEN SECTION AQUARIUM SECTION
PORTFOLIO | 2024
SECTION A-A
SECOND FLOOR PLAN PHYSICAL MODEL

03. Junction Space

Lxs Summer School Workshop

Location: Bagnolet,Paris

Category: Ephemeral Device Design

Software Used: AutoCAD,Sketchup, Photoshop, Lumion.Enscape

Group Project

This design proposal explores the concept of dynamic spaces that are detachable, easy to use, and interactive.

By combining innovative architectural design with usercentric features, the proposal aims to create adaptable environments that cater to the changing needs and preferences of users, promoting engagement, accessibility, and a sense of ownership.

Developing a modular design approach that allows for easy assembly and disassembly.

Isometric view

20 PORTFOLIO | 2024

User and Users

Fragmentation

Developing The Framework

Developing The Plates

Working Models

21 PORTFOLIO | 2024
Site
Analysis

Interlocking System Of Framework

22 PORTFOLIO | 2024 Iterations
Drawings
Working
23 PORTFOLIO | 2024
Rendered Views Real Life Photos Real Size Product
Exploded View

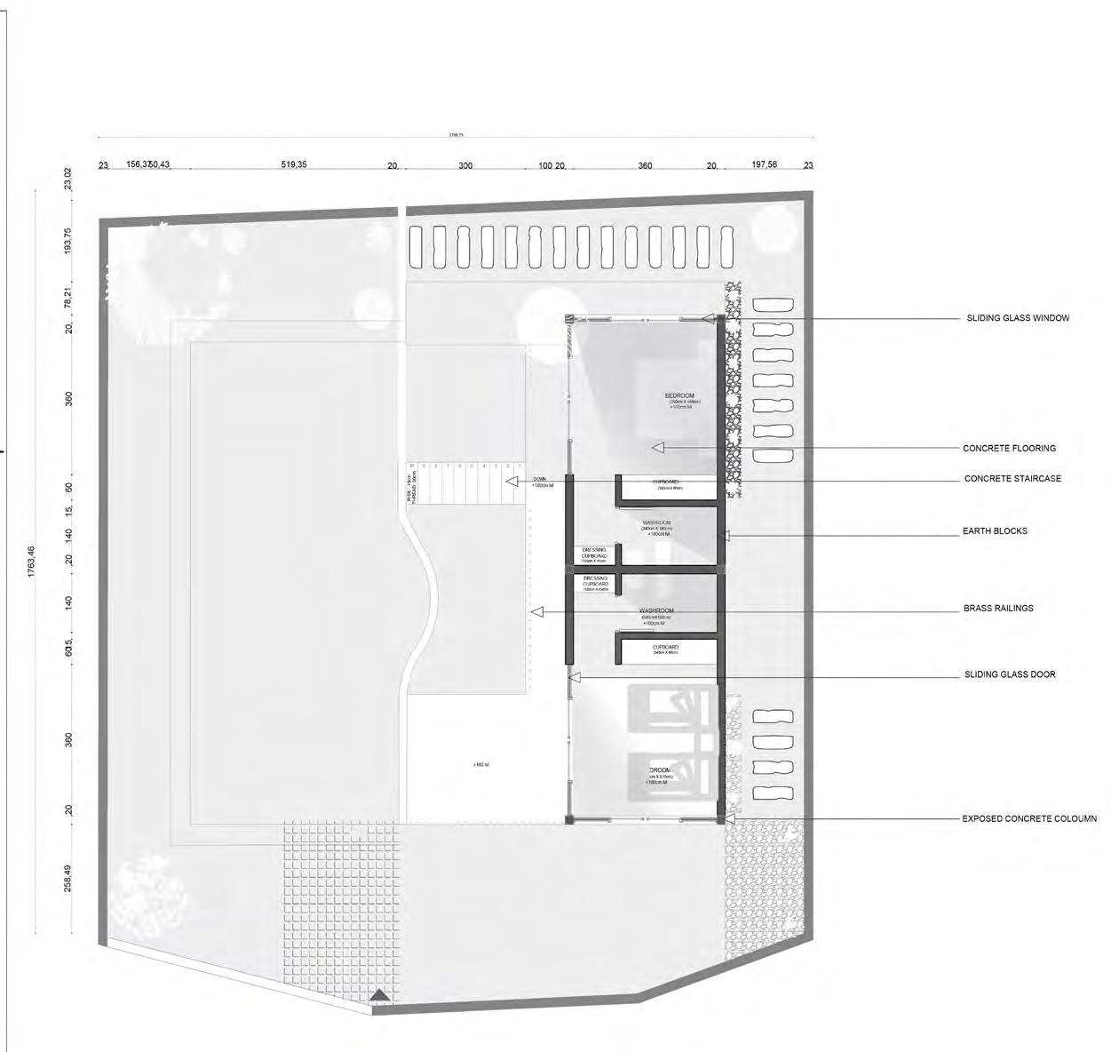
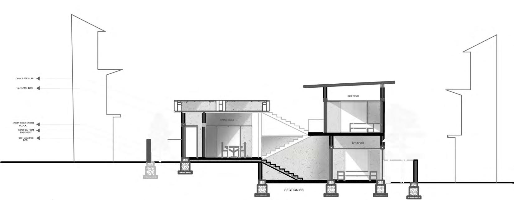
04.

Modernist pavilion

Academic

Project/Semester 4

Location: Powdikonam,Trivandrum

Category: Residence

Software Used: AutoCAD,Sketchup,Photoshop,Enscape,Adobe Premiere Pro

Group Project

This design proposal explores the concept of dynamic spaces that are detachable, easy to use, and interactive.

By combining innovative architectural design with usercentric features, the proposal aims to create adaptable environments that cater to the changing needs and preferences of users, promoting engagement, accessibility, and a sense of ownership.

Developing a modular design approach that allows for easy assembly and disassembly.

This ino ives uting holar easier such as removed to create various configurations.

24 PORTFOLIO | 2024
GROUND FLOOR PLAN
25 PORTFOLIO | 2024
SECTION A-A
FIRST FLOOR PLAN
26 PORTFOLIO | 2024
RENDERED VIEW
SECTION B-B 3D MODEL
27 PORTFOLIO | 2024 RENDERED VIEW

05. Layanam

Academic Project/Semester

4

Location: Kulathupuzha,Kollam

Category: Historiscm

Mode: Manual Drawing

Individual Project

The rehabilation design concept centres on a deep connection with nature, emphasizing natural elements like earth,contours,trees and water.inspired by the traditional architecture styles of srilanka accomodating the migrants of srilanka into the site of kulathupuzha,kollam.

Natural light and ventilation are proritized using innovative techniques, and sustainable materials like rammed earth and bamboo are extensively utilized.

The design embodies eco-friendly principles creating a historical memoir in a different topography while respecting the cultural beliefs of the community.

28 PORTFOLIO | 2024
PHYSICAL MODEL
PORTFOLIO | 2024 MASTER PLAN
30
SECTION A-A
PORTFOLIO | 2024
SECTION B-B
31 PORTFOLIO | 2024
SECTION C-C SECTION D-D

06.

Catrumara Padal

Academic Project/Semester 3

Location: Perumathura,Trivandrum

Category: Community centre

Mode: Manual Drawing

Individual Project

The design concept of this community centre was inspired the quote of Dr BR Ambedkar “educate , agitate , organize”.

The community lies on the coastern side of trivandrum whom are still underdeveloped.so to upring this community a soulfull integration of education and community services could help them where they could inspire each other in every age group by having seemless design o no obstruction and living.

32 PORTFOLIO | 2024
ELEVATION PHYSICAL MODEL

SECTION A-A

SECTION B-B

PORTFOLIO | 2024
GROUND FLOOR PLAN

07. Revathy Kalamandir

Academic Project/Semester 5

Location: Kinfra Park,Trivandrum

Category: Retrofitting

Software Used: AutoCAD,Sketchup,Photoshop

Group Project

In kinfra film and video park lies the Revaty kalamandir , a previous arts and film institute poised for a siqnificant transformation.

The architectural proposal aims to breathe a new life into this institutional structure through adaptive reuse.

The vision is to repurpose the structure into a bachelor of design institution incorparating workshop spaces and studios.

This initiative seeks to revitalize the existing structure, creating a eco-friendly yet dynamic environment where students from different community and department converge,ushering in a new era of purposeful functionality and art culture.

34 PORTFOLIO | 2024

The requirement was to connect both the existing buildings of visually contrasting character using a wall with openings of various scale and shapes. This seperating wall is actually holding together both the buildings and it’s functions, by accommodating various learning activites with the seperation wall. other key idea was to provide a character rised opening to the facades of both buildings to elude the visual seperation and contrast in terms of material and construction

35 PORTFOLIO | 2024
36 PORTFOLIO | 2024
37 PORTFOLIO | 2024

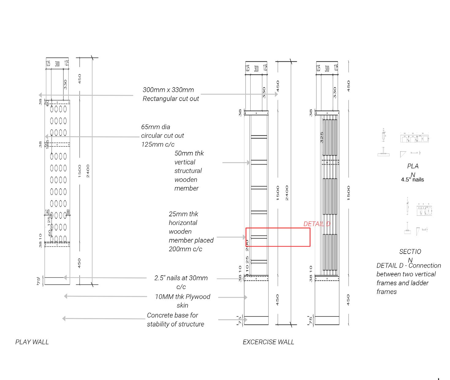
08. Working Drawings

Academic Project/Semester 4

Location: Bagnolet,Paris

Category: Ephermal Device

Software Used: AutoCAD,Photoshop

Working drawings and details for the ephermal device designed at europe summer workshop.

38 PORTFOLIO | 2024
39 PORTFOLIO | 2024
40 PORTFOLIO | 2024
41 PORTFOLIO | 2024

09. Kuthiramalika Documentation

Academic Project/Semester 4

Location: Trivandrum,kerala

Category: Historical Documentation

Software Used: AutoCAD,Adobe Photoshop

Group project

42 PORTFOLIO | 2024
43 PORTFOLIO | 2024 MISCELLANEOUS PROJECT
44 PORTFOLIO | 2024
45 PORTFOLIO | 2024

10.

Architectural and Travel Photography

Freelance Project

Aside as a student architect i am having intense passion in photography which in turn heped me into the field of architecture photograpy and traveling.

46 PORTFOLIO | 2024
47 PORTFOLIO | 2024 MISCELLANEOUS PROJECT

- -

T h i s i s t o c e r t i f y t h a t

K E V I N L U I S

H a s s u c c e s s f u l l y c o m p l e t e d

- -

– E U R O P E S U M M E R C O U R S E 2 0 2 3 –

C R E A T I N G E P H E M E R A L A R C H I T E C T U R E

F O R T R A N S I T O R Y U R B A N S P A C E S

[ a t P a r i s , B a r c e l o n a , M a d r i d a n d L i s b o n ]

1 6 0 - H o u r s H a n d s - O n A r c h i t e c t u r e P r o g r a m A n e x p l o r a t i o n o f S o l u t i o n s f o r T r a n s i t o r y U r b a n i s m , c o n c l u d i n g w i t h t h e D e s i g n a n d B u i l d i n g o f T r a n s f o r m a b l e a n d M u l t i f u n c t i o n a l D e v i c e s

M l M D l H

- O r g a n i z e d b y L x S F o u n d a t i o nw i t h I n s t i t u t i o n a l P a r t n e r s ' S u p p o r t

PORTFOLIO | 2024
49 PORTFOLIO | 2024 THANK YOU PHONE NO: 6235554566 EMAIL ID: kevintarkowsky@gmail.com

Turn static files into dynamic content formats.

Create a flipbook
Issuu converts static files into: digital portfolios, online yearbooks, online catalogs, digital photo albums and more. Sign up and create your flipbook.
Kevin Portfolio 2024 by Kevin Luis - Issuu